Réhabiliter un équipement
Réhabiliter un équipement

Crédit agricole de Saint Mathieu

29000 QUIMPER - Finistère - Bretagne

BÂTIMENT / LOGEMENT

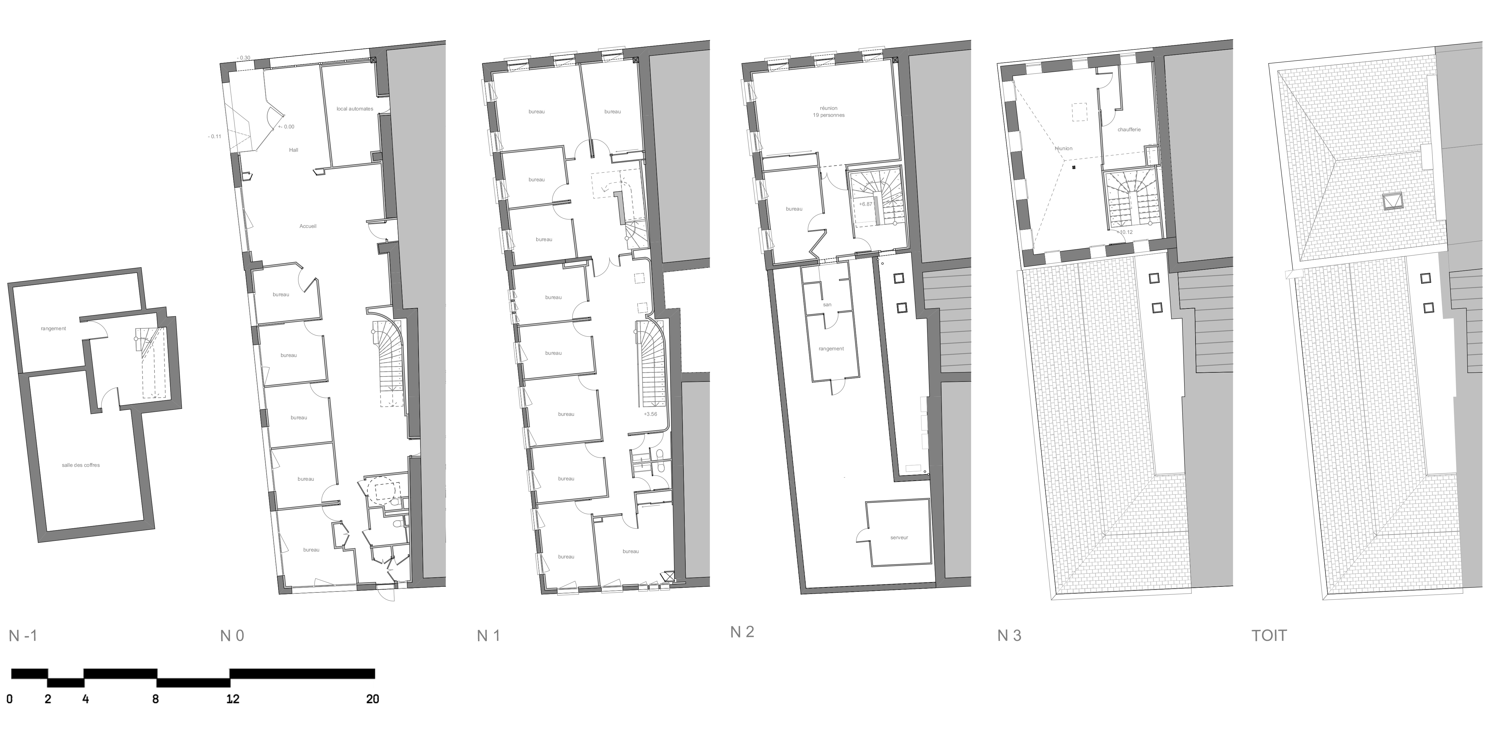
Le projet intègre une réhabilitation du bâtiment existant ainsi qu’une surélévation de la toiture du bâtiment à R+1. La réhabilitation vise à améliorer les conditions de travail pour le personnel de l’agence et de l’accueil du public, et à mieux intégrer l’identification de l’agence grâce à une signalétique sobre et unitaire. Le caractère historique du bâti en R+3 est mis en valeur grâce à la mise en œuvre de menuiseries reprenant les proportions de celles des bâtiments voisins. Au-delà du projet de construction, l’enjeu de cette opération est urbain. Il s’inscrit dans une logique de densification.

Catégorie Bâtiment / logement
Numéro de projet8044
Adresse du projet 29000 QUIMPER
Date de candidature09/03/2023

Bâtiment / logement

Détail projet

Typologie de bâtiment : Extension / surélévation
Type de bâtiment : Industrie et commerce
Année de livraison : 2021
Surface totale du bâtiment en m² : 612
Dont extension / surélévation en m² : 94
Coût total en € HT (hors foncier, hors VRD, hors honoraires) : 1411000
Lot bois n°1 concerné : Charpente bois
Lot bois n°2 concerné : Menuiserie extérieure bois
Coût du lot bois n°2 - € HT : 115000
Bois Français : non
Matériaux issus du ré-emploi (préciser dans le descriptif technique) : non
Isolations biosourcées (préciser dans le descriptif technique) : oui
Matériaux géosourcés (préciser dans le descriptif technique) : non
Finitions intéreures biosourcées ou géosourcées (préciser dans le descriptif technique) : oui

Structure bois du bâtiment

Structure verticale :

ProduitEssenceProvenances (lieu de croissance du bois)Traitements de préservationMarque et certification produit
Panneau ossature bois

Structure horizontale :

ProduitEssenceProvenances (lieu de croissance du bois)Traitements de préservationMarque et certification produit
Non précisé

Charpente :

ProduitEssenceProvenances (lieu de croissance du bois)Traitements de préservationMarque et certification produit
Caisson de toiture

Revêtement bois extérieur

Autre revêtement métallique :

Produit
Zinc

Menuiserie intérieure et extérieure

Menuiserie intérieure :

ProduitEssenceProvenances (lieu de croissance du bois)FinitionMarque et certification produit
Escalier, Mobilier, Panneau massif d'agencement

Menuiserie extérieure :

ProduitEssenceProvenances (lieu de croissance du bois)Marque et certification produitFinition
Menuiserie mixte

Isolation des murs

Isolation intérieure des murs :

Produit
Laine de chanvre
Epaisseur (mm) Isolation intérieure des murs : 45

Isolation entre-montant des murs :

Produit
Laine de roche
Epaisseur (mm) Isolation entre-montant des murs : 200

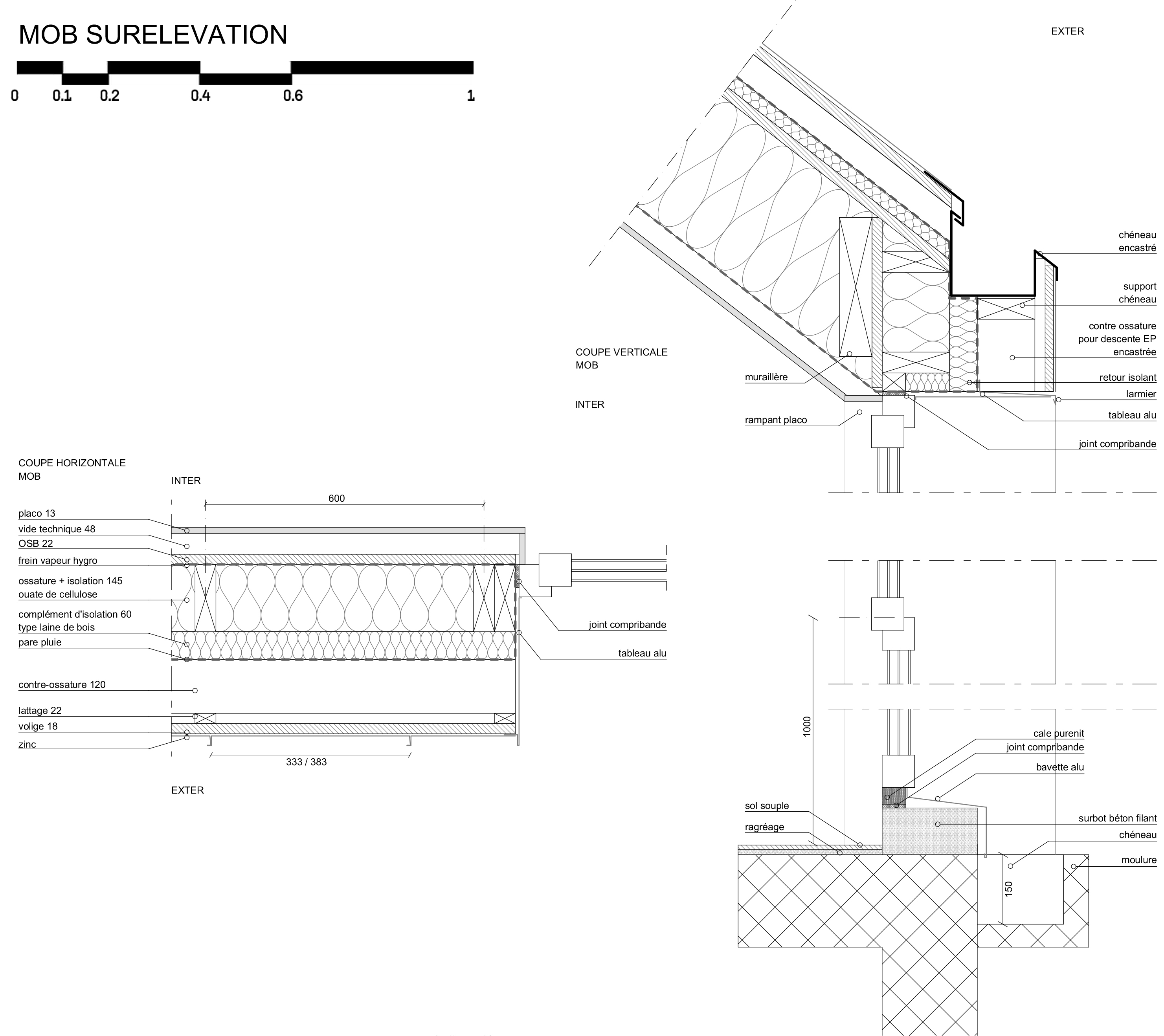
Isolation de la toiture

Epaisseur (mm) Isolation intérieure de la toiture : 95
Epaisseur (mm) Isolation entre-montant de la toiture : 200

Approche environnementale : L’implantation du projet de surélévation permet : - de limiter l’impact sur l’environnement en densifiant (de lutter contre l’étalement urbain) - de participer à la composition de perspectives urbaines de qualité en lien avec le gabarit des bâtiments voisins - une orientation sud-ouest permettant de capter des apports solaires passifs - d’offrir des vues lointaines pour la nouvelle salle de réunion.

Descriptif technique : La surélévation est construite majoritairement en bois : - murs : ossature bois avec isolation intégrée - Charpente : bois lamellé-collé - la CTA double-flux à haut rendement permet de réguler parfaitement la qualité de l’air intérieur tout en limitant les déperditions thermiques Pour la rénovation de l'existant, utilisation de matériaux biosourcés : enduit-chaux

Chauffage au Bois : non
Données déclaratives

Acteurs du projet

Maître d'ouvrage (1)

Maître d'ouvrage - Industriels - commerçants - entreprise

Crédit Agricole Finistère (29)

Etudes et ingénieries (5)

Maître d'œuvre - Architecte mandataire

BRULE ARCHITECTES ASSOCIES (29)

Bureau d'études structure bois

KONSTRUKTIF (29)

Bureau d'études environnement

Batitherm Conseils (29)

Bureau d'études thermique

Batitherm Conseils (29)

Economiste

BRULE ARCHITECTES ASSOCIES (29)

Entreprises des lots bois (3)

Charpentier

ENTREPRISE BRITTON (29)

Menuisier

ML SOLUTIONS (29)

Autre lot de la construction (en lien avec le bois)

DECOSTRAT (29)

Fournisseurs du bois (2)

Industriel

BIOFIB Cavac Biomatériaux (85)
INTERNORM FENETRE (68)




* : L'entreprise n'est plus active
Retour à la liste