Habiter une maison
Habiter une maison

La maison derrière le mur

49270 Champtoceaux - Maine et Loire - Pays de la Loire

BÂTIMENT / LOGEMENT

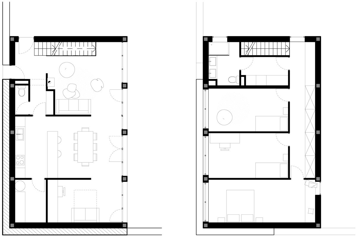
Préserver l’identité du lieu fut le point de départ de ce projet : des murs de clôture en pierre, une vieille grange, un abri de jardin en brique et un lavoir abandonné donnent son caractère à ce petit terrain de centre bourg. Les espaces de service (cellier, cuisine, wc, entrée) sont concentrés au rez de chaussée dans une bande technique qui fait office de sas thermique. A l’étage, un grand linéaire de dressing forme un couloir et permet d’optimiser l’espace des chambres.

Catégorie Bâtiment / logement
Numéro de projet1017
Date de candidature15/01/2019

Bâtiment / logement

Détail projet

Typologie de bâtiment : Neuf
Type de bâtiment : Logement individuel supérieur à 120 m²
Année de livraison : 2018
Surface totale du bâtiment en m² : 125
Coût total en € HT (hors foncier, hors VRD, hors honoraires) : 160000
Lot bois n°1 concerné : Charpente bois
Coût du lot bois n°1 - € HT : 28000
Lot bois n°2 concerné : Bardage bois
Coût du lot bois n°2 - € HT : 11000
Bois Français : oui

Structure bois du bâtiment

Structure verticale :

ProduitEssenceProvenances (lieu de croissance du bois)Traitements de préservationMarque et certification produit
Panneau ossature boisÉpicéa communGrand-EstTraitement Classe 3a (trempage)

Structure horizontale :

ProduitEssenceProvenances (lieu de croissance du bois)Traitements de préservationMarque et certification produit
Solivage traditionnelÉpicéa communGrand-EstTraitement Classe 3a (trempage)

Charpente :

ProduitEssenceProvenances (lieu de croissance du bois)Traitements de préservationMarque et certification produit
Charpente bois lamellé-colléÉpicéa communGrand-EstTraitement Classe 3a (trempage)

Revêtement bois extérieur

Revêtement bois ou dérivés :

ProduitEssenceProvenances (lieu de croissance du bois)Marque et certification produitFinitionTraitements de préservation
Lame bois massifPin maritimeNouvelle-AquitaineAucune finitionTraitement Classe 4 (autoclave)

Menuiserie intérieure et extérieure

Isolation des murs

Isolation intérieure des murs :

Produit
Laine de verre
Epaisseur (mm) Isolation intérieure des murs : 60

Isolation entre-montant des murs :

Produit
Laine de verre
Epaisseur (mm) Isolation entre-montant des murs : 145

Isolation de la toiture

Epaisseur (mm) Isolation intérieure de la toiture : 280

Approche environnementale : La maison a été pensée en terme de coût global, c'est-à-dire en optimisant les coûts de construction et le budget de fonctionnement : - une trame simple (charpente bois traditionnelle), - une conception bioclimatique (inertie des murs existants, orientation, grands vitrages), - un volume compact (deux niveaux identiques, hauteur réduite à l’étage dans le dressing), - des matériaux bruts (agencement en bois brut, bardage agricole, chape peinte).

Descriptif technique : La nouvelle construction vient s’adosser au mur existant grâce à une structure en bois rationnelle. Côté jardin, une structure poteau/poutre permet une façade vitrée sur toute la hauteur du rez de chaussée et un espace de vie très ouvert. Côté ruelle, le mur en pierre est doublé d'une structure à ossature bois qui se prolonge à l'étage. La charpente en fermettes lamellé collé et couverte de tuiles de terre cuite permet d'optimiser les coûts. Un bardage en planches de pin maritime utilisé habituellement pour les bâtiments agricoles donne un aspect brut à la maison.

Chauffage au Bois : oui
Appareil de chauffage au bois : Poële/insert
Données déclaratives

Acteurs du projet

Etudes et ingénieries (2)

Maître d'œuvre - Architecte mandataire

Camille Breton (33) *
Malween Henocq (44)

Entreprises des lots bois (1)

Charpentier

Charpentier du Bord de Logne (44)

Fournisseurs du bois (1)

Industriel

BMD (85)




* : L'entreprise n'est plus active
Retour à la liste