Habiter une maison

Projet Maison B

40660 MOLIETS - Landes - Nouvelle-Aquitaine
Lauréat régional

BÂTIMENT / LOGEMENT

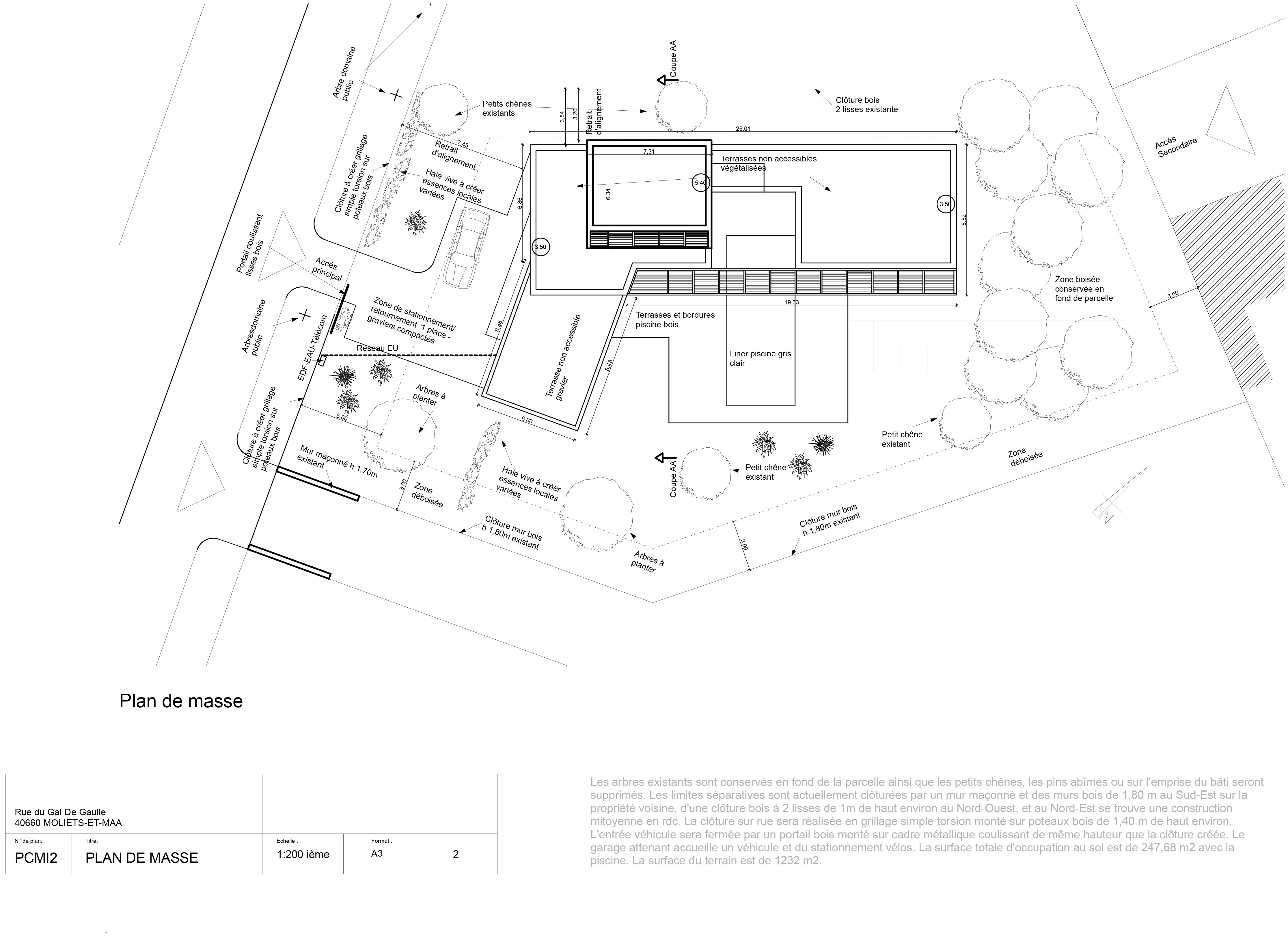
La maison est de facture contemporaine et exploite les capacités du bois pour sa légèreté et ses possibilités de mise en œuvre. Organisée autour de la piscine, qui s'inscrit entre la partie jour et la partie nuit, l'habitation s'ouvre largement au sud sur le jardin protégé de la rue par l'aile du garage en façade rue. La maison est articulée sur les deux axes du terrain, l'alignement sur rue et l'autre angle donné par l'orientation à 110° de la parcelle, donnant un angle ouvert. Elle est principalement de plain pied surmontée d'un édicule, petite mezzanine avec la vue sur la forêt.

Catégorie Bâtiment / logement
Numéro de projet1055
Date de candidature21/01/2019

Bâtiment / logement

Détail projet

Typologie de bâtiment : Neuf
Type de bâtiment : Logement individuel supérieur à 120 m²
Année de livraison : 2017
Surface totale du bâtiment en m² : 151.61
Coût total en € HT (hors foncier, hors VRD, hors honoraires) : 340000
Lot bois n°1 concerné : ossature bois
Lot bois n°2 concerné : Bardage bois
Bois Français : non

Structure bois du bâtiment

Structure verticale :

ProduitEssenceProvenances (lieu de croissance du bois)Traitements de préservationMarque et certification produit
Panneau ossature boisDouglasTraitement Classe 3a (trempage)

Structure horizontale :

ProduitEssenceProvenances (lieu de croissance du bois)Traitements de préservationMarque et certification produit
Plancher béton
Solivage traditionnel

Charpente :

ProduitEssenceProvenances (lieu de croissance du bois)Traitements de préservationMarque et certification produit
Charpente bois lamellé-collé

Revêtement bois extérieur

Revêtement bois ou dérivés :

ProduitEssenceProvenances (lieu de croissance du bois)Marque et certification produitFinitionTraitements de préservation
Lame bois massifDouglasSaturateur

Menuiserie intérieure et extérieure

Isolation des murs

Isolation entre-montant des murs :

Produit
Epaisseur (mm) Isolation entre-montant des murs : 220

Isolation de la toiture

Epaisseur (mm) Isolation intérieure de la toiture : 200

Approche environnementale : La technique de construction bois utilisée vise à obtenir un bâtiment performant et perspirant, utilisant le plus possible des matériaux biosourcés. La maison est ouverte sur toute la façade Sud par de larges baies vitrées protégées par un brise soleil sur toute sa longueur réglé pour le soleil d'été.

Descriptif technique : Maison murs bois(hors garage) et toits-terrasses à ossature bois. Bardage et terrasses bois. Isolation en ouate de cellulose. Une dalle maçonné apporte le déphasage thermique nécessaire au confort d'été.

Chauffage au Bois : non
Appareil de chauffage au bois : Poële/insert
Données déclaratives

Acteurs du projet

Etudes et ingénieries (1)

Maître d'œuvre - Architecte mandataire

Luc AGUILERA, architecte DPLG (64)

Entreprises des lots bois (2)

Charpentier

HABITAT BOICLIMATIC (40)

Constructeur bois

HABITAT BOICLIMATIC (40)




* : L'entreprise n'est plus active
Retour à la liste