Apprendre – se divertir

Golf de Salouel

80480 Salouel - Somme - Hauts-de-France

BÂTIMENT / LOGEMENT

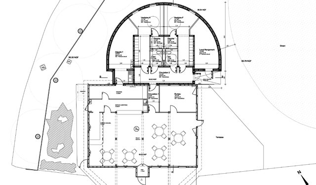
Le Golf de Salouel propose un parcours 9 trous situé à proximité immédiate du centre-ville d'Amiens. Pour améliorer le confort des usagers, le projet prévoit des vestiaires, un local caddy et une réserve en extension du club-house existant. L’extension vient tout naturellement se placer au Nord du club-house libérant totalement la façade Est sur le golf. C'est une construction cylindrique qui fait écho aux courbes du parcours et qui s’insère entre l’alignement d’arbres et le green de practice. La nouvelle construction rompt délibérément avec l'existant et redonne au club-house une nouvelle identité.

Catégorie Bâtiment / logement
Numéro de projet123
Adresse du projet Avenue du Golf
80480 Salouel
Date de candidature26/02/2018

Bâtiment / logement

Détail projet

Typologie de bâtiment : Neuf
Type de bâtiment : Sport
Année de livraison : 2017
Surface totale du bâtiment en m² : 110
Coût total en € HT (hors foncier, hors VRD, hors honoraires) : 199100
Lot bois n°1 concerné : ossature bois
Lot bois n°2 concerné : Aucun
Bois Français : non
Isolations biosourcées (préciser dans le descriptif technique) : non
Finitions intéreures biosourcées ou géosourcées (préciser dans le descriptif technique) : non

Structure bois du bâtiment

Structure verticale :

ProduitEssenceProvenances (lieu de croissance du bois)Traitements de préservationMarque et certification produit
Panneau ossature boisTempéré

Structure horizontale :

ProduitEssenceProvenances (lieu de croissance du bois)Traitements de préservationMarque et certification produit
Solivage traditionnelTempéré

Charpente :

ProduitEssenceProvenances (lieu de croissance du bois)Traitements de préservationMarque et certification produit
Charpente traditionnelleTempéré

Revêtement bois extérieur

Revêtement bois ou dérivés :

ProduitEssenceProvenances (lieu de croissance du bois)Marque et certification produitFinitionTraitements de préservation
Lame bois massifMélèzeAucune finitionAucun traitement
Panneau de synthèse ou compositeTempéré

Revêtement minéral :

Produit
Autres

Autre revêtement métallique :

Produit
Acier

Menuiserie intérieure et extérieure

Isolation des murs

Isolation intérieure des murs :

Produit
Fibre de bois (Panneaux)
Epaisseur (mm) Isolation intérieure des murs : 50
Epaisseur (mm) Isolation entre-montant des murs : 150

Isolation de la toiture

Epaisseur (mm) Isolation extérieure de la toiture : 200

Approche environnementale : Le projet d'aménagement est modeste mais entend limiter au maximum les consommations énergétiques à la charge du club. Ainsi nous avons proposé des principes simples et efficaces, limitant les coûts de maintenance : compacité, bonne isolation thermique, pompe à chaleur, ventilation naturelle, lumière naturelle...

Descriptif technique : A l'instar de l'existant l'extension est en ossature bois. La façade courbe est constituée d’un bardage vertical à couvre-joints en mélèze naturel. La façade Sud, adjacente au bâtiment existant est recouverte d’un bardage composite minéral lisse de couleur bleue qui vient délibérément rompre avec les matériaux existants. Les deux entités sont reliées par une galerie de circulation plus basse recouverte de métal ondulé anthracite. La mise en œuvre de l'ossature et de la charpente s'est faite en moins d'un mois Les vestiaires disposent d'une bonne isolation thermique : laine de bois 145mm dans les modules OB, laine de verre 50mm en doublage intérieur et 200mm de laine de roche en toiture La production de chaleur est réalisée par une pompe à chaleur Air/Eau, associée à un ballon thermodynamique pour l'eau chaude sanitaire.

Chauffage au Bois : non
Données déclaratives

Acteurs du projet

Maître d'ouvrage (1)

Maître d'ouvrage - État ou collectivité (locale et territ)

AMIENS METROPOLE (80)

Etudes et ingénieries (1)

Maître d'œuvre - Architecte mandataire

Grégoire DEFRANCE Architecte (75)

Entreprises des lots bois (1)

Constructeur bois

ACROTERRE (60)




* : L'entreprise n'est plus active
Retour à la liste