Aménager
Aménager

Maison Aribert _ transformation d'une Bâtisse du 19ème en restaurant - maison d'hôtes

38410 Saint Martin d'Uriage - Isère - Auvergne-Rhône-Alpes

AMÉNAGEMENT INTÉRIEUR

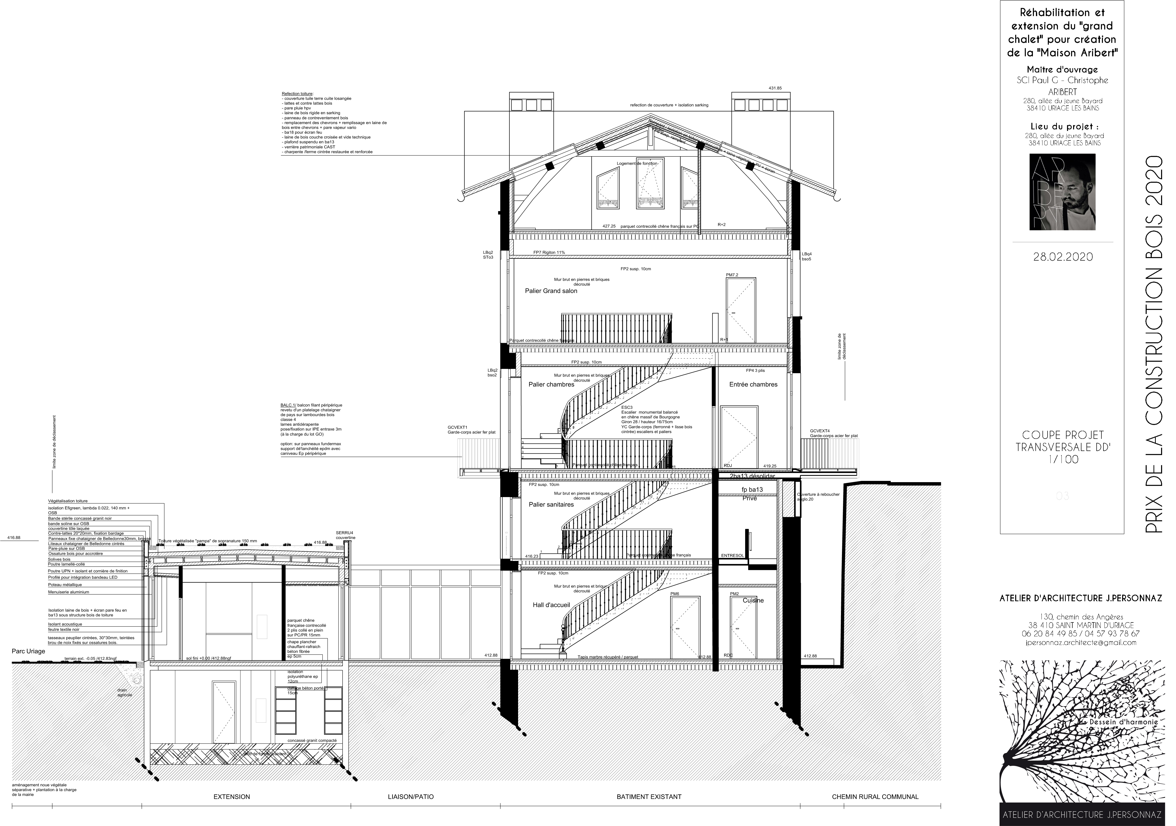
Transformation d'une bâtisse patrimoniale de 1875 en ruine, dans le parc d’Uriage. Programme reparti sur les 5 niveaux: 1 bistrot, 1 cuisine gastronomique, 5 chambres d'hôtes, 1 salle de réception, 1 logement de fonction. Restauration de la façade, mise en oeuvre du balcon perdu, rénovation de la charpente traditionnelle cintrée, réemploi d'éléments d'origine (briques, solives, marbres, ferronneries) Bois mis à l'honneur : escalier monumental, parquet, mobilier, plafond bois cintré en étuve, portes, réemploi d'éléments de 1875, mettant en évidence les savoirs faire spécifiques des artisans.

Aménagement exterieur

Les aménagements extérieurs concourent à l’intégration du projet au cœur du parc d’Uriage sans barrière ni limite jusqu’au jardin potager en permaculture du chef. Les cheminements bois, les sculptures de T. Martenon en bois de site, les plantations, jeux d'eau participent à la création d’une ambiance vibrante et apaisante, d’un environnement propice à une pause gustative et à un séjour dans le respect de soi et du lieu. Les patios tout en mousses et délicatesse, participent à la mise en valeur des deux bâtiments en les mettant à distance et en instaurant un dialogue poétique entre les deux.

Catégorie aménagement intérieur, aménagement exterieur
Numéro de projet1252
Adresse du projet 280 allée du Jeune Bayard
38410 Saint Martin d'Uriage
Date de candidature06/02/2020

aménagement intérieur

Année de réalisation : 2019
Coût total Aménagement Intérieur en € HT : 2290000
Coût lots bois en € HT : 399949
Volume bois m³ : 22
Surface aménagée en m² : 1338

Liste des produits :

ProduitEssenceProvenances (lieu de croissance du bois)Marque et certification produitFinition
MobilierChêneBourgogne-Franche-ComtéHuile
EscalierChêneBourgogne-Franche-ComtéHuile
ParquetChêneGrand-EstHuile
Panneau acoustiqueChâtaignierAuvergne-Rhône-AlpesHuile pigmentée
Bois Français : oui

Approche environnementale : Un projet infiniment durable et écologique de part : - sa conception bioclimatique du bâtiment, - son utilisation de matériaux bio sourcés, - son réemploi des matériaux et bois du bâtiment existant, - ses matériaux sains, écolabellisés, sans COV, - sa production eau chaude et chauffage par granulé bois, - sa mise à l'honneur des ressources locales : - bois de provenance locale (80% Belledonne et Rhône alpes et France pour le reste), - ressources humaines locales (MOE et entreprises rayon 30km), - son jardin en permaculture.

Descriptif technique de l'aménagement : Bâtisse de 1875 en pierres et briques, charpente bois entièrement restructurés, mise en avant du bois : - Charpente traditionnelle, avec pièce semi-ronde, fermes cintrées, restaurée; - tous isolants en laine de bois pour perspirance des murs en pierre, et confort d'été; - escalier monumental en chêne massif, balancé avec limon latéraux cintrés, débillardés, avec main courante ferronnée ; - 80% des sols en parquet chêne français ; - tables d’hôtes d’exception et plans vasque réalisés en plateau de chêne de Bourgogne assemblé et finition huilé ; - chauffage et production d'ECS par chaudière à granulés.

aménagement exterieur

Année de réalisation : 2018
Coût total aménagement extérieur en € HT : 483063
Coût lots bois : 94250
Volume bois : 7
Surface aménagée en m² : 1751

Liste des produits :

ProduitEssenceProvenances (lieu de croissance du bois)Traitements de préservationFinitionMarque et certification produit
Lame de terrasseChâtaignierAuvergne-Rhône-AlpesAucun traitementAucune finition
GanivelleChâtaignierAuvergne-Rhône-AlpesAucun traitementAucune finition
Pieux / tuteurs / piquetsChâtaignierAuvergne-Rhône-Alpes
Bois Français : oui
Notice architecturale : Les aménagements extérieurs concourent à l'intégration du projet au cœur du parc d'Uriage sans barrière ni limite jusqu'au jardin potager en permaculture du chef. Les cheminements bois, les sculptures de T. Martenon en bois de site, les plantations, jeux d'eau participent à la création d'une ambiance vibrante et apaisante, d'un environnement propice à une pause gustative et à un séjour dans le respect de soi et du lieu. Les patios tout en mousses et délicatesse, participent à la mise en valeur des deux bâtiments en les mettant à distance et en instaurant un dialogue poétique entre les deux.
Approche environnementale : Les extérieurs comme le reste du projet sont emprunts de conscience écologique et vision holistique: - Cheminements en châtaigner non traité issues de Belledonne (Isère) - Clôtures en ganivelle de châtaigner (Chambarans/ Isère) - Bois posé sans traitement et destiné à griser -Plantations d'essences locales mélifères et arbres endémiques de la région. - Mise à l'honneur des platanes: transformation en 6 sculptures bois de l'artiste T. Martenon installées à quelques pas de là où les arbres poussaient.
Descriptif technique de l'aménagement : L'ensemble des cheminements bois et escaliers extérieurs est réalisé en lames de châtaigner bombées, posée sur lambourdage bois classe 4. Pour les balcons, le tout est posé sur un support de panneaux d'OSB , support de l'étanchéité en EPDM. Les clôtures ganivelles sont fixées sur des piquets de châtaigner de pays directement plantés en terre. Les sculptures taillées dans les platanes de coupe de site, sont brulées en surface au chalumeau pour résister aux intempéries. Le tout dialogue avec le bardage de l'extension en panneau de châtaigner massif découpé avec tasseaux cintrés par étuve.
Données déclaratives

Acteurs du projet

Maître d'ouvrage (2)

Maître d'ouvrage - État ou collectivité (locale et territ)

COMMUNE DE SAINT MARTIN D'URIAGE (38)

Maître d'ouvrage - Particuliers

particulier (x)

Etudes et ingénieries (7)

Maître d'œuvre - Architecte mandataire

JOËLLE PERSONNAZ ARCHITECTE (38)

Bureau d'études acoustique

THERMIBEL (38)

Bureau d'études structure bois

SORAETEC (38) *

Bureau d'études thermique

ENERCOBAT (74)

Economiste

JOËLLE PERSONNAZ ARCHITECTE (38)

Paysagiste

GIORDANO PAYSAGISTE (38)

Architecte / paysagiste concepteur

JOËLLE PERSONNAZ ARCHITECTE (38)

Entreprises des lots bois (6)

Charpentier

CRISTAL CHARPENTE (38) *
MANCA CHARPENTE SAS (38)

Menuisier

SARL ATELIER A (38) *

Autre lot de la construction (en lien avec le bois)

BRUN-BUISSON (38)
MARTENON THIERRY GERARD (73)
Loellmann Valentin (NL)

Fournisseurs du bois (3)

Scierie

SCIERIE BOTTAREL (38) *
SCIERIE SILLAT (38)

Industriel

D.M.B.P DISPANO CHAMBERY (73)




* : L'entreprise n'est plus active
Retour à la liste