Travailler – accueillir

Construction d'une maison de santé à Hanvec

29460 HANVEC - Finistère - Bretagne
Lauréat régional

BÂTIMENT / LOGEMENT

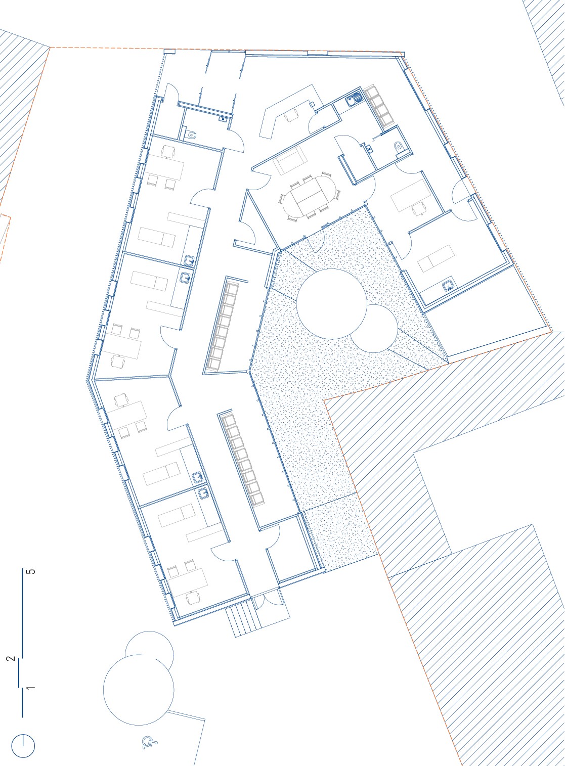
La Maison de Santé est implantée en centre-bourg. L'objectif était de l'intégrer dans le tissu urbain, comme un travail délicat de couture sur le paysage et les bâtiments environnants. Le bâtiment est de plain-pied, avec un toit 2 pentes et des pignons maçonnés comme tous les bâtiments du bourg. Il est implanté en limite de parcelle côté rue, formant un patio en son centre. Celui-ci apporte de la lumière naturelle dans les espaces sensibles : on voit dehors sans être vu. Le bardage bois, couvrant l'intégralité du bâti, permet d'agir comme un filtre visuel côté rue et thermique côté ouest.

Catégorie Bâtiment / logement
Numéro de projet1323
Adresse du projet Rue du musée
29460 HANVEC
Date de candidature12/02/2019

Bâtiment / logement

Détail projet

Typologie de bâtiment : Neuf
Type de bâtiment : Santé
Année de livraison : 2018
Surface totale du bâtiment en m² : 270
Coût total en € HT (hors foncier, hors VRD, hors honoraires) : 584545
Lot bois n°1 concerné : ossature bois
Coût du lot bois n°1 - € HT : 179563
Lot bois n°2 concerné : Aucun
Bois Français : non

Structure bois du bâtiment

Structure verticale :

ProduitEssenceProvenances (lieu de croissance du bois)Traitements de préservationMarque et certification produit
Panneau ossature boisEuropeJe n'ai pas l'information

Structure horizontale :

ProduitEssenceProvenances (lieu de croissance du bois)Traitements de préservationMarque et certification produit
Plancher bétonTempéréAucuneAucun traitement

Charpente :

ProduitEssenceProvenances (lieu de croissance du bois)Traitements de préservationMarque et certification produit
Charpente industrielleÉpicéa communEuropeJe n'ai pas l'information

Revêtement bois extérieur

Revêtement bois ou dérivés :

ProduitEssenceProvenances (lieu de croissance du bois)Marque et certification produitFinitionTraitements de préservation
Lame bois massifDouglasFranceAucune finition

Autre revêtement métallique :

Produit
Acier

Menuiserie intérieure et extérieure

Isolation des murs

Isolation intérieure des murs :

Produit
Laine de roche
Epaisseur (mm) Isolation intérieure des murs : 40

Isolation entre-montant des murs :

Produit
Epaisseur (mm) Isolation entre-montant des murs : 140

Isolation de la toiture

Epaisseur (mm) Isolation intérieure de la toiture : 300

Approche environnementale : Le choix d’utiliser des matériaux biosourcés répond à une logique de rapidité de construction (7 mois de chantier) et de coût. L'ossature bois s'est révélée indispensable pour sa rapidité de mise en oeuvre. L'isolation en ouate de cellulose (murs et toiture) produite localement à partir du broyage de journaux s'est imposée naturellement grâce à son prix compétitif. Le bardage bois était un plus architectural permettant une intégration dans le bourg tout en préservant l'intimité des usagers (secret médical) et le confort thermique. Une chaufferie bois à granulés permet de chauffer l'équipement.

Descriptif technique : L'infrastructure du bâtiment est en béton. Les pignons sont maçonnés. Les murs sont en ossatures bois isolés en ouate de cellulose. Un bac acier ondulé fait office de pare-pluie et est revêtu d'un bardage bois à claire voie. La charpente est en bois (traditionnelle sur une partie et fermette sur une autre), isolée en ouate de cellulose également. Un bac acier spécial "panneau solaire" vient en couverture et permet le revêtement secondaire par un bardage à claire-voie identique au bardage. Une chaufferie bois à granulés complète la partie technique environnementale.

Chauffage au Bois : oui
Appareil de chauffage au bois : Chaudière
Certifications, labels et marques bâtiment : Aucun
Données déclaratives

Acteurs du projet

Maître d'ouvrage (1)

Maître d'ouvrage - État ou collectivité (locale et territ)

Commune de Hanvec (29)

Etudes et ingénieries (3)

Maître d'œuvre - Architecte mandataire

Laboratoire d'Architecture de Bretagne (29)

Bureau d'études thermique

Global énergie services (GES) (29)

Economiste

ARMOR ECONOMIE (56)

Entreprises des lots bois (1)

Charpentier

MCA SCOP (29)




* : L'entreprise n'est plus active
Retour à la liste