Aménager

Rénovation et mise en accessibilité de la mairie de Liffol-le-Grand

88350 Liffol-le-Grand - Vosges - Grand Est
Lauréat régional

AMÉNAGEMENT BOIS

Aménagement intérieur

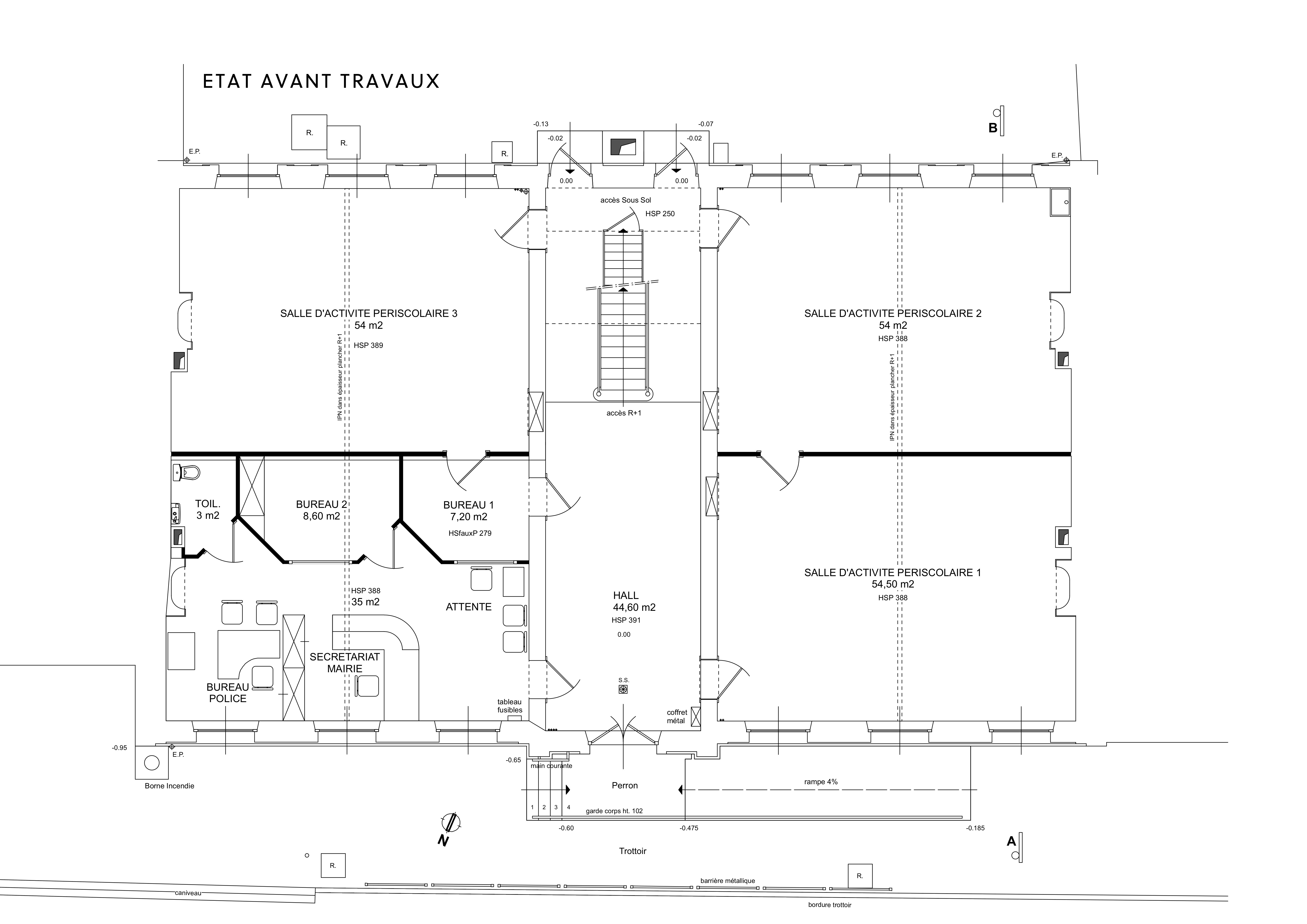
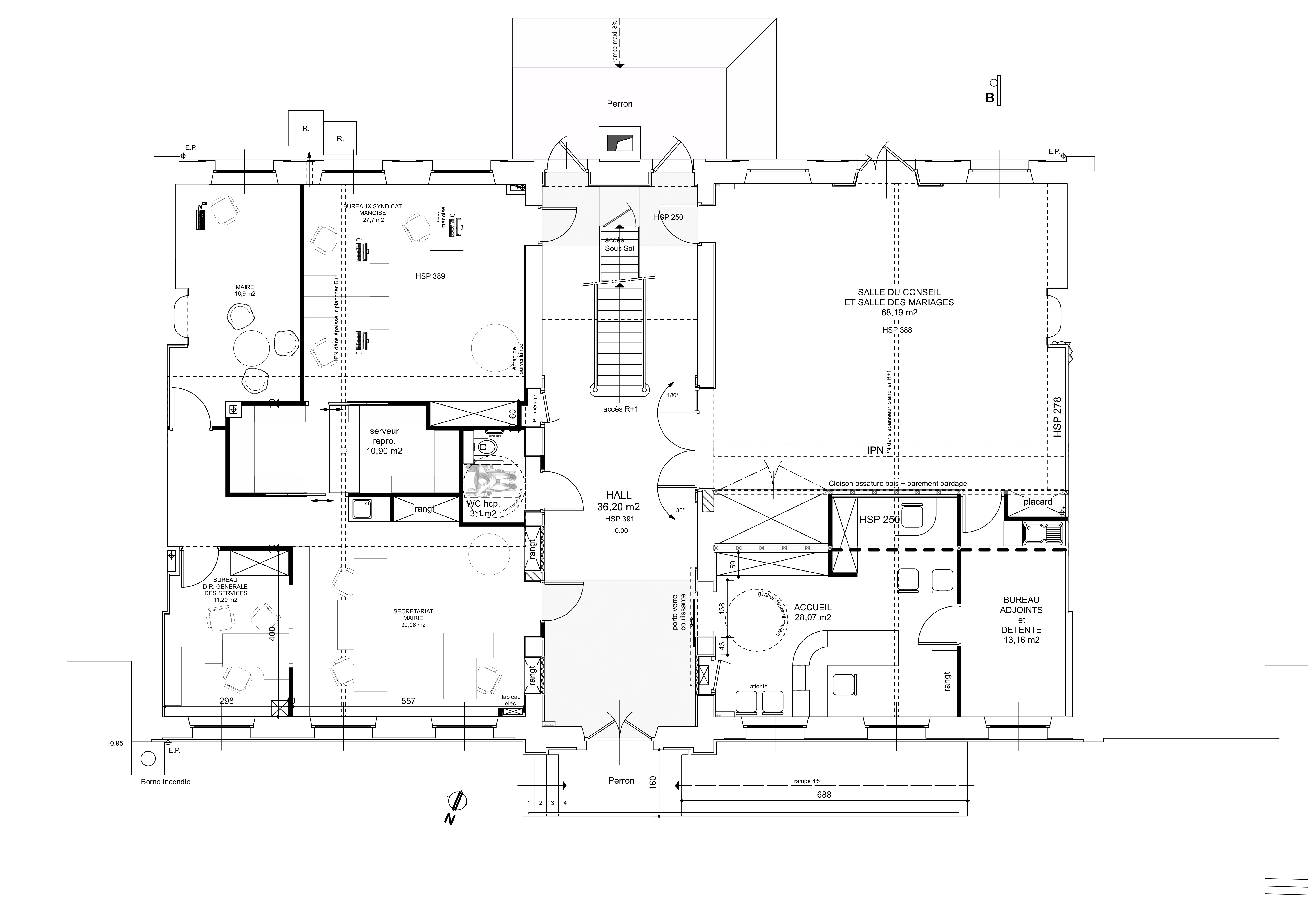
Comme de nombreux bâtiments de mairie, ce bâtiment abritait également l'école ; 4 salles de classes en RDC et la mairie en R+1. L'objectif de ce projet de mise en accessibilité était donc de descendre l'ensemble de la mairie en RDC. Véritable chalenge économique, ce chantier en site occupé s'est déroulé en 3 phases. Une restructuration lourde des différents espaces a offert à la commune de Liffol-le-Grand une grande salle de conseil. Un travail en coupe a permis de garder la lumière, la transparence et surtout d'atteindre un des principaux objectifs : une très bonne acoustique.

Catégorie aménagement bois, aménagement intérieur
Numéro de projet1377
Adresse du projet 27 rue de l'Orme
88350 Liffol-le-Grand
Date de candidature15/02/2019

aménagement bois

Coût total en € HT : 253760

aménagement intérieur

Année de réalisation : 2018
Coût total Aménagement Intérieur en € HT : 253760
Coût lots bois en € HT : 26850
Volume bois m³ : 2.4
Surface aménagée en m² : 276

Liste des produits :

ProduitEssenceProvenances (lieu de croissance du bois)Marque et certification produitFinition
Panneau massif d'agencementHêtreGrand-EstAutres
Bois Français : oui

Approche environnementale : Liffol-le-grand, capitale du siège, a reçu la première Indication Géographique "siège de Liffol". Dans cette philosophie de valoriser la filière bois, il nous a paru comme une évidence d'en faire de même dans la salle de conseil et de proposer un agencement avec du bois local. Aussi nous avons travailler la coupe de la salle de conseil avec une cloison bois et un plafond en bardage hêtre à claire-voie. Le hêtre à Liffol-le-Grand est utilisé dans l'ameublement, aujourd'hui c'est avec une grande fierté que les élus sont entourés de hêtre durant leurs réunions.

Descriptif technique de l'aménagement : Une cloison épaisse (intégrant bureau, placard entre la salle de conseil et l'accueil) et le plafond de biais assure avec le bardage hêtre de 40 x 40 à claire-voie de 40 mm l'acoustique de la salle de conseil. Le pourcentage de 95% de bois en plafond a nécessité de recouvrir le hêtre d'un vernis intumescent (Alphaflam et Alphacoat). Le complexe est constitué d'une structure primaire en pin, de 200 mm de laine de roche, un tissus uni gratté classé M1 (de S.I.C.M.) puis le bardage hêtre (1500 ml, soit 2,4 m3 correspondant au bardage) avec son ossature secondaire de la scierie Janès Timber.

Données déclaratives

Acteurs du projet

Maître d'ouvrage (1)

Maître d'ouvrage - État ou collectivité (locale et territ)

Commune de Liffol-le-Grand (88)

Etudes et ingénieries (1)

Maître d'œuvre - Architecte mandataire

marsal rousselot sarl d'architecture (88)

Entreprises des lots bois (2)

Menuisier

REB ET ELOI (52)

Constructeur bois

TERRATERRE (52)

Fournisseurs du bois (1)

Scierie

JANES TIMBER (88)




* : L'entreprise n'est plus active
Retour à la liste