Aménager
Aménager

APPARTEMENT D'ANGLE

67000 STRASBOURG - Bas Rhin - Grand Est

AMÉNAGEMENT BOIS

Aménagement intérieur

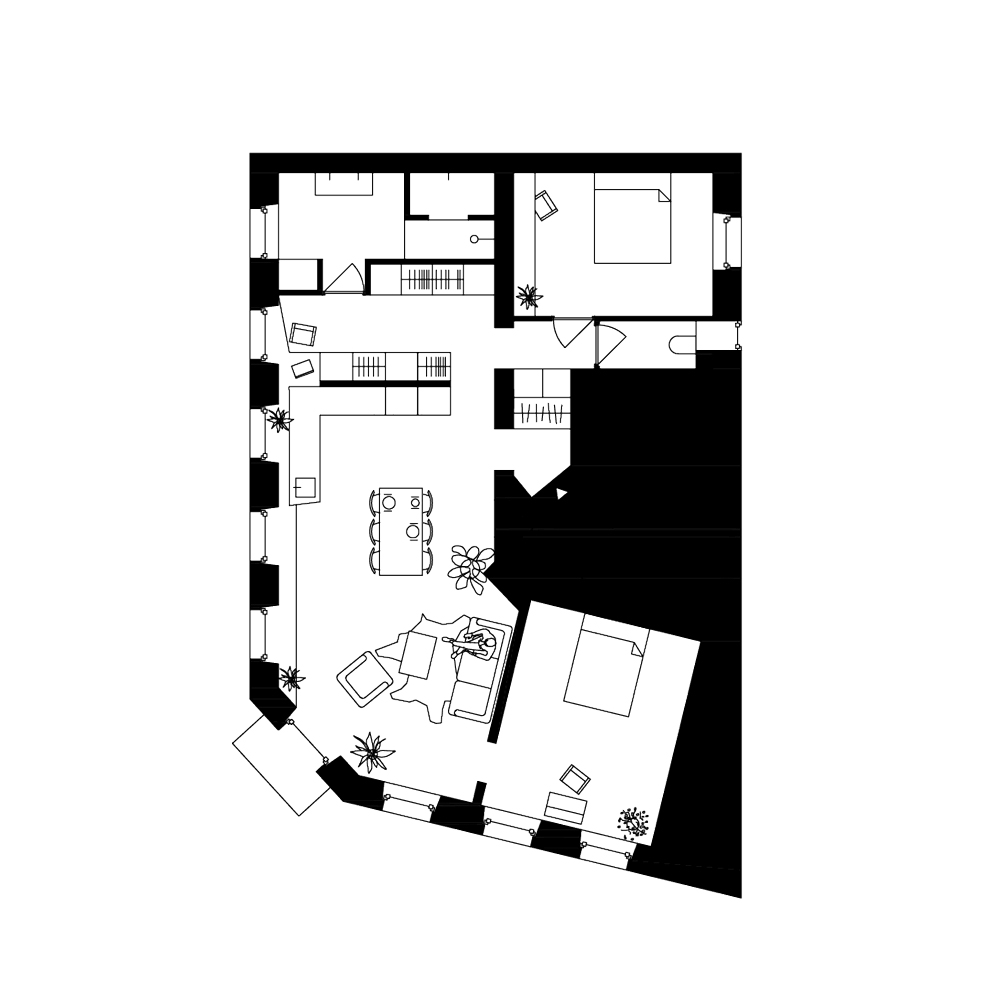
L’impulsion initiale du projet était d’offrir une chambre s’ouvrant sur l’agréable cour de l’immeuble. Ainsi, les pièces d’eau ont été inversées et comprimées par rapport au plan initial. L’ensemble dégage un généreux lieu de vie qui se construit autours d’un meuble central, d’une cuisine à l’italienne et d’une bibliothèque basse filante. En toile de fond, le mur miroir vient questionner l’espace et les lumières. La palette restreinte des matériaux, les éléments menuisés coulissants et l’aspect final filtré remémorent aux clients leurs souvenirs d’Asie.

Catégorie aménagement bois, aménagement intérieur
Numéro de projet1462
Adresse du projet 67000 STRASBOURG
Date de candidature19/02/2019

aménagement bois

Coût total en € HT : 90000

aménagement intérieur

Année de réalisation : 2018
Coût total Aménagement Intérieur en € HT : 90000
Coût lots bois en € HT : 30000
Volume bois m³ : 1.6
Surface aménagée en m² : 85

Liste des produits :

ProduitEssenceProvenances (lieu de croissance du bois)Marque et certification produitFinition
ParquetMélèzeGrand-EstHuile
Panneau massif d'agencementAutresOKOUMEHuile
MobilierAutresOKOUMEHuile
Bois Français : non

Approche environnementale : Bois Okoumé issue de la filière FSC. Le parquet existant a été conservé et rénové. La lumière naturelle a été maximisée. Sources de lumière basse consommation. Tri des déchets sur le chantier. Entreprises locales.

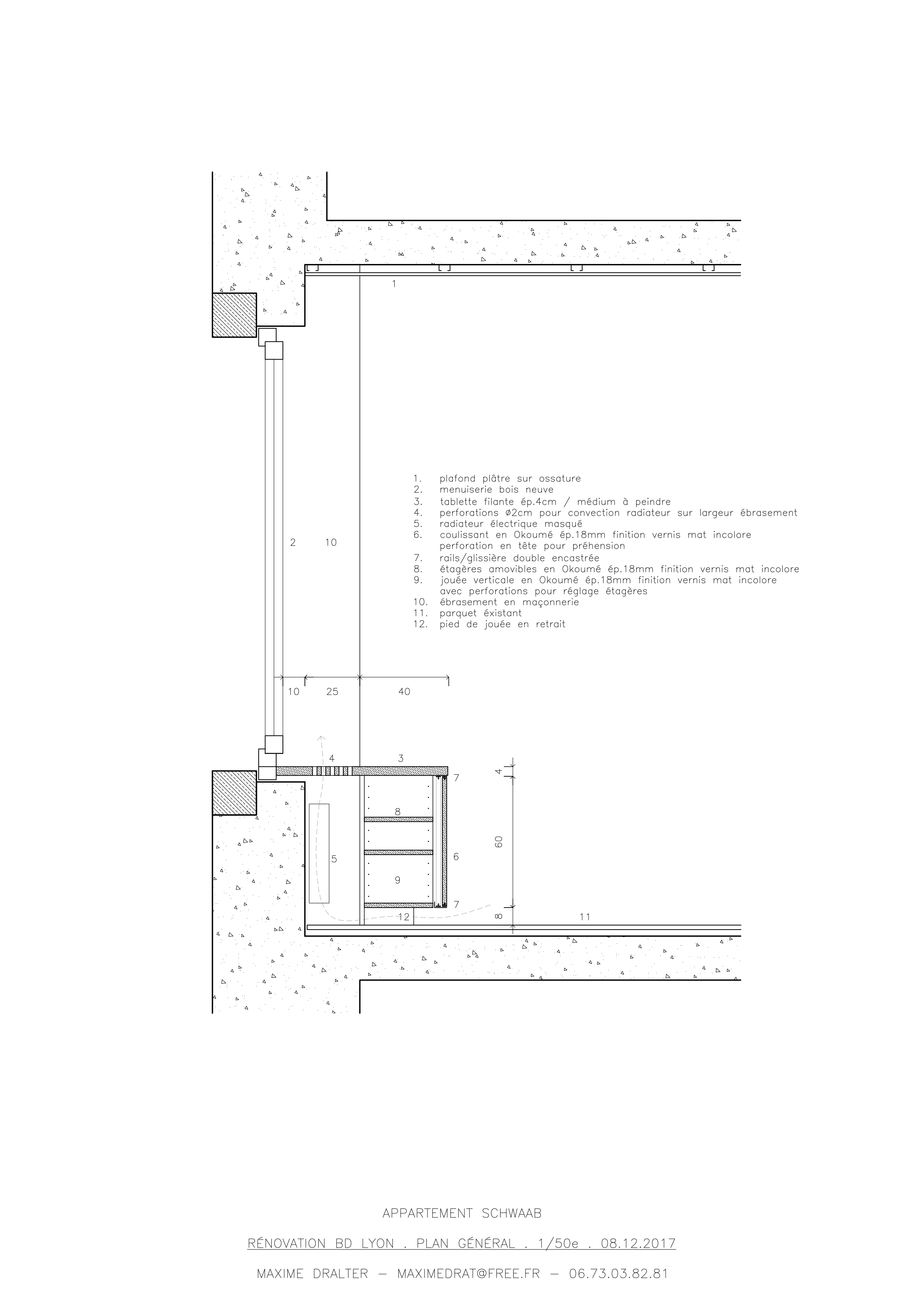
Descriptif technique de l'aménagement : Un soucis particulier a été apporté pour dénuer l'appartement. Les radiateurs sont masqués sous les profondes tablettes filantes perforées et un maximum d'équipements sont encastrés. Les luminaires sont constitués de globe de verre en applique. La palette de matériaux est volontairement restreinte. L'okoumé se décline généreusement au fil de l'appartement et fait écho au parquet en mélèze existant par un rapprochement des teintes et des veinures. La salle de bain est entièrement vêtue d'un carrelage en grès cérame de teinte gris clair. Il s'agît là, des deux seuls matériaux utilisés.

Données déclaratives

Acteurs du projet

Etudes et ingénieries (1)

Maître d'œuvre - Architecte mandataire

DRATLER DUTHOIT (67)

Entreprises des lots bois (1)

Menuisier

CUNY CREATIONS (67)




* : L'entreprise n'est plus active
Retour à la liste