Réhabiliter un logement
Réhabiliter un logement

LA MAISON AU TOIT COUPÉ

67870 BISCHOFFSHEIM - Bas Rhin - Grand Est

AMÉNAGEMENT BOIS

Bâtiment / logement

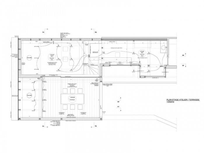
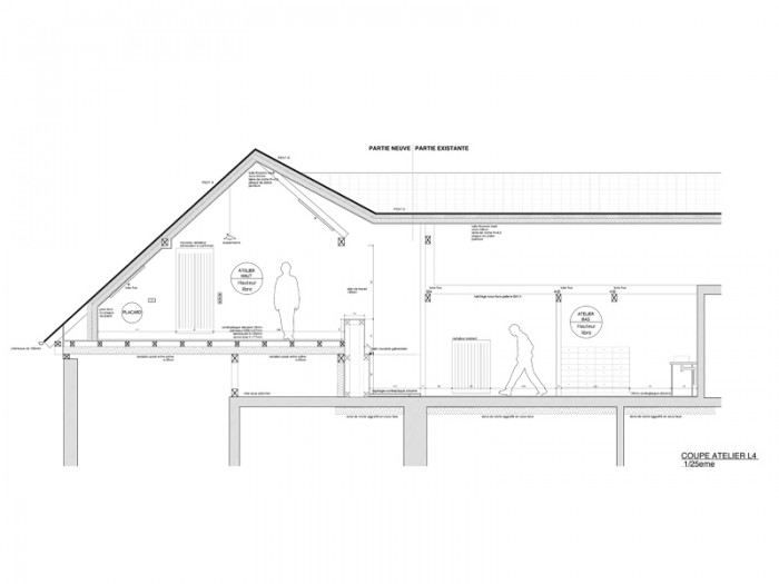
Le corps de ferme, encaissé dans la densité du bâti et accolé à la rue, dispose de peu de lumière. Le projet consiste en l'extension et la surélévation de la grange existante pour la création d'un atelier d'artiste et d'une terrasse exposée au soleil. La terrasse qui évide un “volume sans artifice” permet de s'insérer en douceur. L'ensemble fabrique un nouveau monde suspendu, s'isolant des voisins sans toutefois les ignorer.

Catégorie aménagement bois, Bâtiment / logement
Numéro de projet1464
Date de candidature19/02/2019

aménagement bois

Bâtiment / logement

Détail projet

Typologie de bâtiment : Extension / surélévation,Rénovation / Réhabilitation
Type de bâtiment : Logement individuel supérieur à 120 m²
Année de livraison : 2018
Surface totale du bâtiment en m² : 70
Coût total en € HT (hors foncier, hors VRD, hors honoraires) : 80000
Lot bois n°1 concerné : Charpente bois
Volume lot bois n°1 - m³ : 8
Coût du lot bois n°1 - € HT : 11000
Lot bois n°2 concerné : Bardage bois
Volume lot bois n°2 - m³ : 3.5
Coût du lot bois n°2 - € HT : 10000
Bois Français : oui

Structure bois du bâtiment

Structure verticale :

ProduitEssenceProvenances (lieu de croissance du bois)Traitements de préservationMarque et certification produit
Poteau poutreDouglasGrand-Est

Structure horizontale :

ProduitEssenceProvenances (lieu de croissance du bois)Traitements de préservationMarque et certification produit
Solivage traditionnelDouglasGrand-Est

Charpente :

ProduitEssenceProvenances (lieu de croissance du bois)Traitements de préservationMarque et certification produit
Charpente traditionnelleDouglasGrand-Est

Revêtement bois extérieur

Revêtement bois ou dérivés :

ProduitEssenceProvenances (lieu de croissance du bois)Marque et certification produitFinitionTraitements de préservation
Lame bois massifMélèzeEuropeAucune finition

Menuiserie intérieure et extérieure

Isolation des murs

Epaisseur (mm) Isolation intérieure des murs : 100
Epaisseur (mm) Isolation entre-montant des murs : 150

Isolation de la toiture

Epaisseur (mm) Isolation intérieure de la toiture : 200
Epaisseur (mm) Isolation entre-montant de la toiture : 150

Approche environnementale : La charpente bois existante a été conservé au maximum. De plus les éléments de charpente déposés ont été réutilisés. Aucun produit chimique n'a été utilisé sur les bois extérieurs. Les bois de mélèze en bardage est issu de filière PEFC. Le parquet de chêne est d'origine France et issu de filière PEFC. Le bois d'okoumé est issu de filière FSC. La lumière naturelle a été maximisée. Les sources de lumière sont basses consommations.

Chauffage au Bois : oui
Appareil de chauffage au bois : Poële/insert
Données déclaratives

Acteurs du projet

Etudes et ingénieries (1)

Maître d'œuvre - Architecte mandataire

DRATLER DUTHOIT (67)

Entreprises des lots bois (1)

Charpentier

GILLMANN (67)




* : L'entreprise n'est plus active
Retour à la liste