Apprendre – se divertir
Apprendre – se divertir

Lycée Suscinio à Morlaix

29600 MORLAIX - Finistère - Bretagne

BÂTIMENT / LOGEMENT

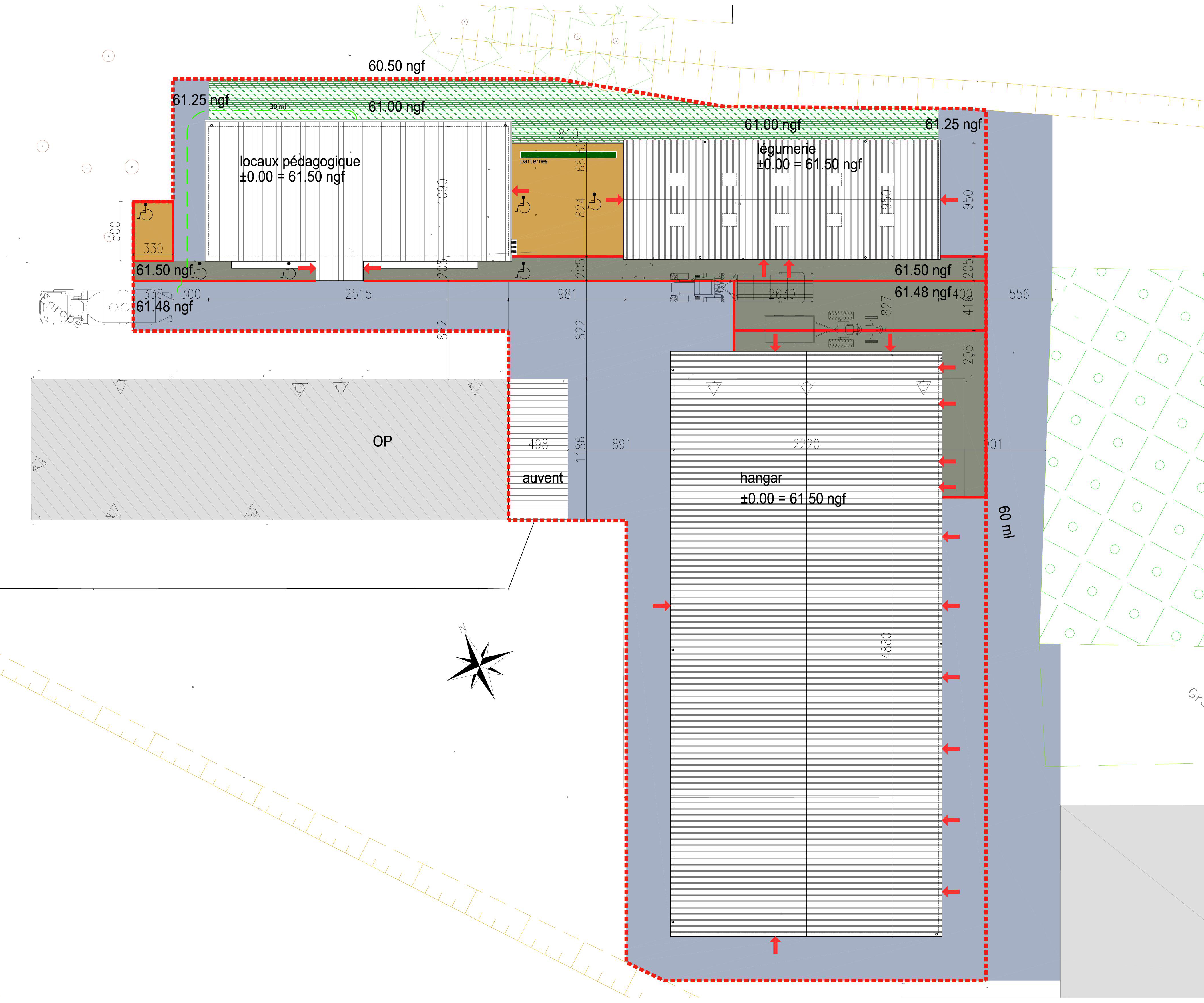
Le projet porte sur : - la construction d'un bâtiment dit "locaux pédagogiques" accueillant les vestiaires élèves et encadrants, une salle d'enseignement et les bureaux et locaux nécessaires à l'encadrement. - la construction d'un bâtiment dit "légumerie" accueillant des activités d'enseignement et de vente - la construction d'un hangar accueillant des activités d'enseignement et de stockage de matériel et matériaux. Les trois bâtiments sont à ossature et charpente bois bardés de Douglas non traité. L'ensemble construit compose le lieu de l'enseignement de l'agriculture biologique du lycée.

Catégorie Bâtiment / logement
Numéro de projet1488
Adresse du projet Lycée Suscinio
29600 MORLAIX
Date de candidature20/02/2019

Bâtiment / logement

Détail projet

Typologie de bâtiment : Neuf
Type de bâtiment : Enseignement ou éducation
Année de livraison : 2018
Surface totale du bâtiment en m² : 1990
Coût total en € HT (hors foncier, hors VRD, hors honoraires) : 1340000
Lot bois n°1 concerné : Charpente bois
Volume lot bois n°1 - m³ : 114.8
Lot bois n°2 concerné : ossature bois
Volume lot bois n°2 - m³ : 15.25
Bois Français : oui

Structure bois du bâtiment

Structure verticale :

ProduitEssenceProvenances (lieu de croissance du bois)Traitements de préservationMarque et certification produit
Panneau ossature boisÉpicéa de SitkaBretagneAucun traitement

Structure horizontale :

ProduitEssenceProvenances (lieu de croissance du bois)Traitements de préservationMarque et certification produit
Solivage traditionnelÉpicéa de SitkaBretagneAucun traitement

Charpente :

ProduitEssenceProvenances (lieu de croissance du bois)Traitements de préservationMarque et certification produit
Charpente bois lamellé-colléTempéré
Charpente traditionnellePin sylvestreFrance
Charpente bois lamellé-colléÉpicéa commun

Revêtement bois extérieur

Revêtement bois ou dérivés :

ProduitEssenceProvenances (lieu de croissance du bois)Marque et certification produitFinitionTraitements de préservation
Lame bois massifDouglasFranceAucune finitionAucun traitement

Menuiserie intérieure et extérieure

Menuiserie extérieure :

ProduitEssenceProvenances (lieu de croissance du bois)Marque et certification produitFinition
Menuiserie mixteChêneFrance

Isolation des murs

Isolation entre-montant des murs :

Produit
Epaisseur (mm) Isolation entre-montant des murs : 220

Isolation de la toiture

Epaisseur (mm) Isolation intérieure de la toiture : 400

Approche environnementale : En cohérence avec la démarche écologique de l'exploitation agricole du lycée les bâtiments sont en bois isolés de ouate de cellulose, plaques de plâtre absorbant les COV, peintures écologiques, bois de charpente et bardage Douglas français. Le chauffage est assuré par une chaudière à condensation à granulés de bois couplé à une ventilation double flux performante. Le projet est en adéquation avec l'environnement paysager du lycée.

Descriptif technique : L'ossature bois de 220 mm pour le local pédagogique et 145 pour la légumerie a été retenue pour sa capacité à permettre une forte isolation intégrée. La performance thermique du bâtiment pédagogique a été confirmée par une STD - le CEP est de 49.10 kW/(m²/an) dont 11.60 kW/(m²/an) de chauffage pour un test d'étanchéité à 0.60 m3/(h/m²) dans l'étude - le test final est de 0.48 m3/(h/m²) Les locaux pédagogiques sont chauffés et ventilés, la légumerie est ventilée mécaniquement mais non chauffée et le hangar est ventilé naturellement (bâtiment non fermé)

Chauffage au Bois : oui
Données déclaratives

Acteurs du projet

Maître d'ouvrage (1)

Maître d'ouvrage - État ou collectivité (locale et territ)

REGION BRETAGNE (CONSEIL REGIONAL DE BRETAGNE) (35)

Etudes et ingénieries (5)

Maître d'œuvre - Architecte mandataire

Atelier Trois Architectes (29) *

Bureau d'études acoustique

ACOUSTIBEL (35)

Bureau d'études structure bois

SBC (29)

Bureau d'études thermique

ARMOR INGÉNIERIE (22)

Economiste

ARMOR ECONOMIE (56)

Entreprises des lots bois (1)

Charpentier

DILASSER (29)




* : L'entreprise n'est plus active
Retour à la liste