Apprendre – se divertir
Apprendre – se divertir

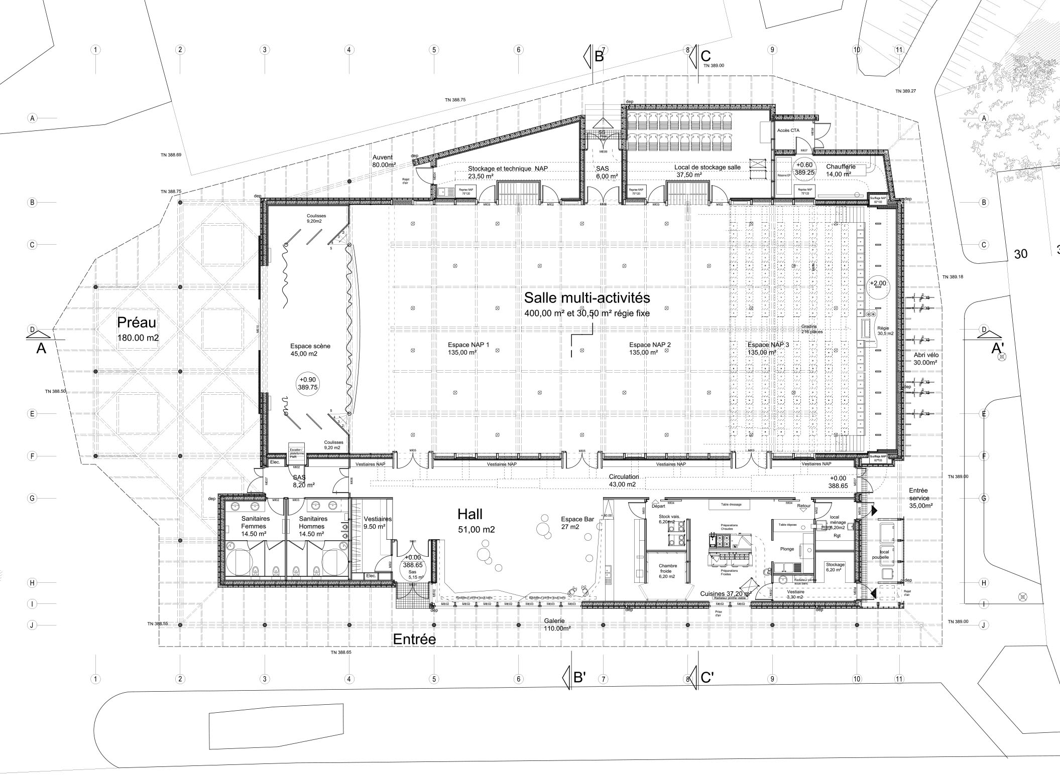
Salle multi-activités

88200 Saint-Etienne-Lès-Remiremont - Vosges - Grand Est

BÂTIMENT / LOGEMENT

Face aux vallons boisés, de nombreuses activités s'articulent sur le site de la Moutière. Les espaces extérieurs couverts protègent le bâtiment de la salle multi-activités et permettent ainsi de prolonger et de croiser les usages. La position géographique d'entrée de ville valorise le bâtiment comme un signal dans la ville. La charpente de la salle multi-activités, couronnée de vitrage, s'élève au-dessus des toitures. Elle dessine une émergence qui guide et caractérise, au même titre que le clocher et l'horizon vallonné.

Catégorie Bâtiment / logement
Numéro de projet1699
Adresse du projet Route de Xennois
La Moutière
88200 Saint-Etienne-Lès-Remiremont
Date de candidature26/02/2019

Bâtiment / logement

Détail projet

Typologie de bâtiment : Neuf
Type de bâtiment : Loisirs,Culture
Année de livraison : 2018
Surface totale du bâtiment en m² : 812
Coût total en € HT (hors foncier, hors VRD, hors honoraires) : 1400000
Lot bois n°1 concerné : Charpente bois
Volume lot bois n°1 - m³ : 250
Coût du lot bois n°1 - € HT : 440000
Lot bois n°2 concerné : Menuiserie intérieure bois
Coût du lot bois n°2 - € HT : 100000
Bois Français : non

Structure bois du bâtiment

Structure verticale :

ProduitEssenceProvenances (lieu de croissance du bois)Traitements de préservationMarque et certification produit
Panneau ossature boisGrand-EstJe n'ai pas l'information

Structure horizontale :

ProduitEssenceProvenances (lieu de croissance du bois)Traitements de préservationMarque et certification produit
Panneau de bois massif (CLT collé ou CLT cloué)Épicéa communEuropeJe n'ai pas l'information

Charpente :

ProduitEssenceProvenances (lieu de croissance du bois)Traitements de préservationMarque et certification produit
Charpente traditionnelleÉpicéa communGrand-EstAucun traitement

Revêtement bois extérieur

Revêtement bois ou dérivés :

ProduitEssenceProvenances (lieu de croissance du bois)Marque et certification produitFinitionTraitements de préservation
Lame bois massifMélèzeGrand-EstAucune finitionAucun traitement

Menuiserie intérieure et extérieure

Menuiserie extérieure :

ProduitEssenceProvenances (lieu de croissance du bois)Marque et certification produitFinition
Menuiserie boisPin sylvestreFrancePeinture

Isolation des murs

Isolation entre-montant des murs :

Produit
Laine de verre
Epaisseur (mm) Isolation entre-montant des murs : 180

Isolation extérieure des murs :

Produit
Laine de verre
Epaisseur (mm) Isolation extérieure des murs : 80

Isolation de la toiture

Epaisseur (mm) Isolation extérieure de la toiture : 220

Approche environnementale : Le bâtiment est construit comme un dispositif en gigogne d'enveloppes successives. Au centre, les MOB de la salle multi-activité, bardés de panneaux acoustiques forment la première enveloppe. Une deuxième enceinte, est constituée par les MOB du hall et l'ensemble des locaux annexes. Les espaces extérieurs, couverts par une toiture végétalisée, forment la troisième enveloppe et permettent de tempérer l'air autour du bâtiment. L' efficacité thermique et acoustique se traduit à la fois dans le système constructif en ossature bois et dans l'organisation des espaces.

Descriptif technique : La charpente principale du bâtiment est construite par la superposition orthogonale de poutres doubles en bois massif abouté, portant sur les quatorze mètres de la largeur de la salle. Des fermes et des caissons supportent les toitures des autres locaux et se prolongent en auvent et en préau. Le choix des matériaux est motivé par une rationalité constructive et une multiplicité d'ambiances. Dans la salle, le parquet en chêne massif, les murs bardés de panneaux et lattages en frêne, la charpente en bois massif est peinte en blanc, maximisent la luminosité de la salle.

Chauffage au Bois : non
Données déclaratives

Acteurs du projet

Maître d'ouvrage (2)

Maître d'ouvrage - État ou collectivité (locale et territ)

Ville de Saint-Etienne-lès-Remiremont (88)

Maître d'ouvrage - Promoteurs immobiliers privés

S.P.E.I. (88)

Etudes et ingénieries (6)

Maître d'œuvre - Architecte mandataire

Cartignies Canonica Architecte (88)

Bureau d'études acoustique

VENATHEC (54)

Bureau d'études structure bois

BARTHES BUREAU D'ETUDES BOIS (54)
BET2C (54)

Bureau d'études thermique

BET2C (54)

Economiste

BET2C (54)

Entreprises des lots bois (3)

Charpentier

SERTELET YVES (88)

Menuisier

CAGNIN Menuiserie (88)

Autre lot de la construction (en lien avec le bois)

SAS COUVAL (88)

Fournisseurs du bois (1)

Scierie

SCIERIE MANDRAY (88)




* : L'entreprise n'est plus active
Retour à la liste