Aménager
Aménager

MICROLOFT - Réhabilitation d'un appartement au coeur de Bordeaux

33000 BORDEAUX - Gironde - Nouvelle-Aquitaine

AMÉNAGEMENT BOIS

Aménagement intérieur

Cette réhabilitation a été réalisée dans le cadre de l'OPAH par le biais d'un financement InCité propriétaire occupant. Les objectifs sont de : Concevoir un lieu d’habitation pouvant accueillir confortablement un couple, en conformité avec les normes en vigueur; habitabilité, thermique, électrique, éclairement... Proposer une organisation spatiale singulière et adaptée Faire de la question environnementale un axe de conception Améliorer le confort en travaillant les qualités d'usages Conserver un objectif de qualité dans le cadre de l'OPAH (rendant l'accession à la propriété plus abordable)

Catégorie aménagement bois, aménagement intérieur
Numéro de projet176
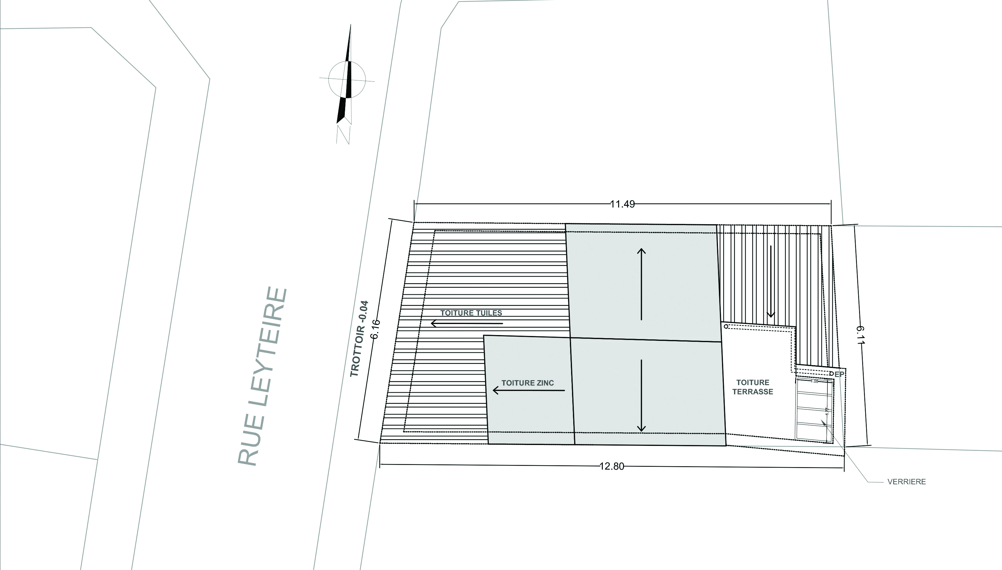
Adresse du projet 24 rue Leyteire
33000 BORDEAUX
Date de candidature05/03/2018

aménagement bois

typologie : Logement individuel inférieur 120 m²
Coût total en € HT : 52500

aménagement intérieur

Année de réalisation : 2016
Coût total Aménagement Intérieur en € HT : 52500
Coût lots bois en € HT : 20768
Surface aménagée en m² : 52

Liste des produits :

ProduitEssenceProvenances (lieu de croissance du bois)Marque et certification produitFinition
ParquetChêneFranceAutres
EscalierPin sylvestreFranceAutres
MobilierPin sylvestreFranceAutres
Panneau massif d'agencementPin sylvestreFranceAutres
Panneau acoustiquePin sylvestreFranceAutres
InstallationPin sylvestreFranceAutres

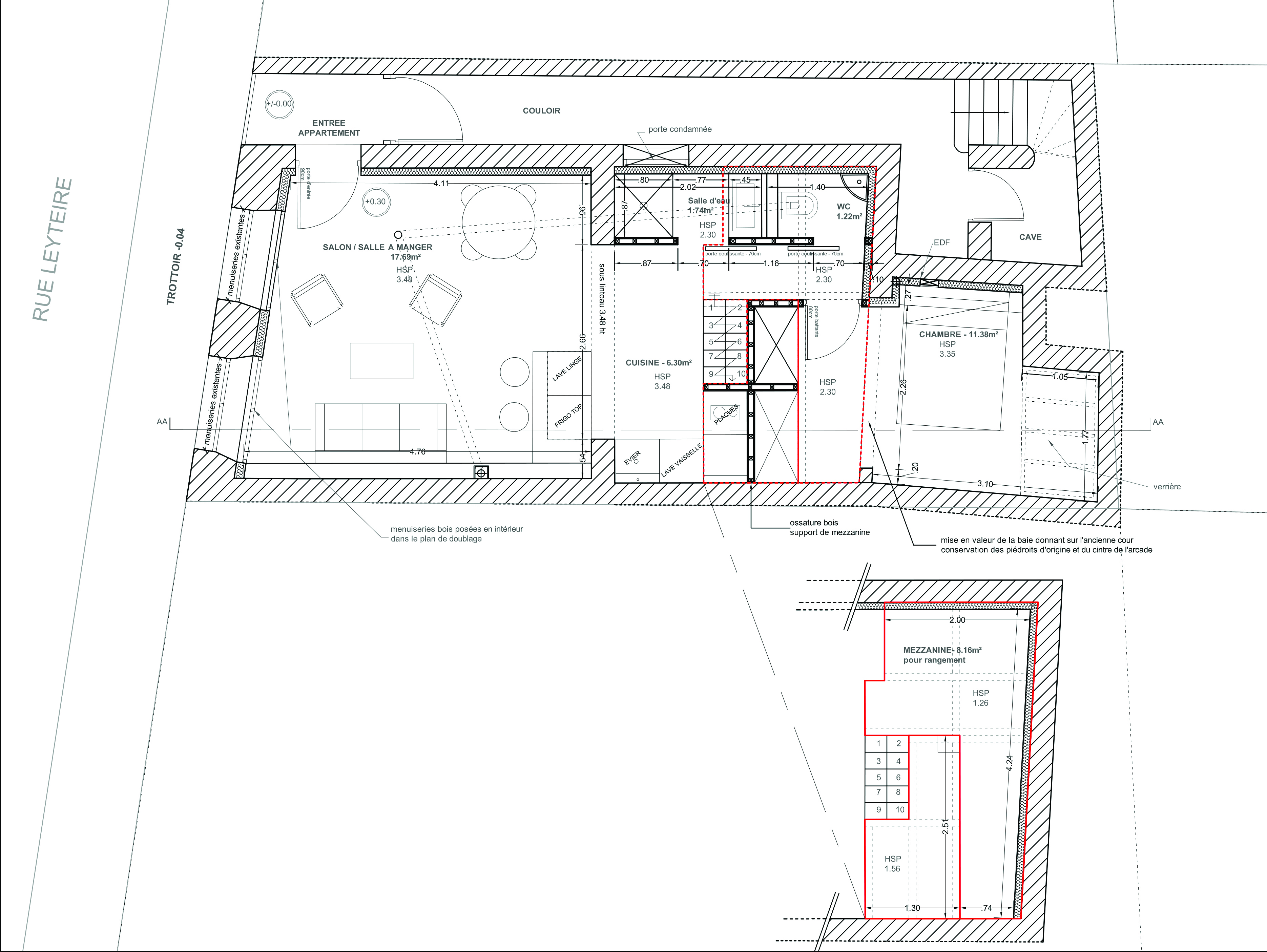
Approche environnementale : L'organisation de l’appartement doit s’opérer en fonction d’une position en RDC dans une rue passante, de la fonctionnalité et des contraintes d'éclairement. Nous proposons de libérer l’espace, de supprimer les cloisons, les faux plafonds, d’ouvrir les murs porteurs, de créer une verrière. L'enjeu est de réaliser un logement à faible coût, avec pour objectifs: - les qualités d'usages - la réduction des dépenses d'énergie et d'eau - de favoriser l'utilisation de matériaux sains - d'avoir un confort hygrothermique, acoustique et visuel.

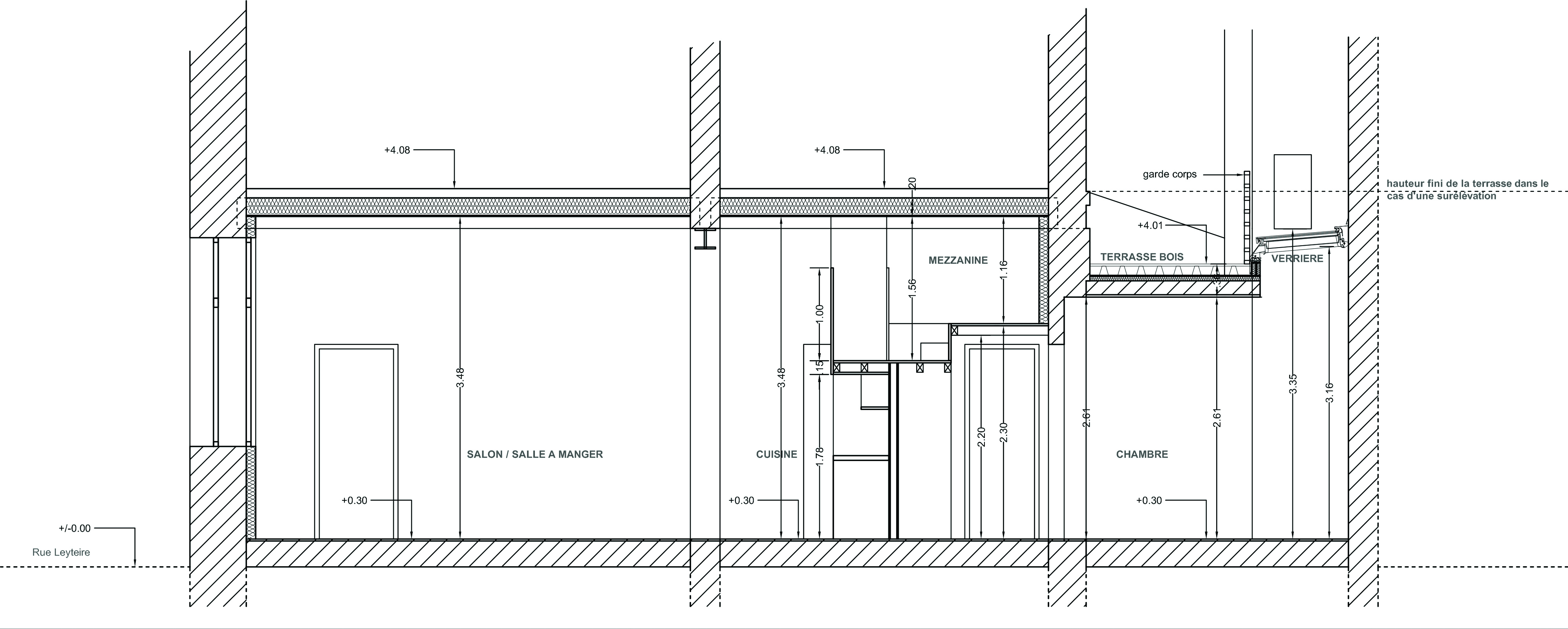
Descriptif technique de l'aménagement : Dans cet espace ainsi libéré et éclairé, nous réorganisons les fonctions autour d’un meuble mezzanine aux mille et un usages. Tout y est optimisé dans une emprise au sol de 16m2. Il abrite salle d’eau, WC, penderie et cuisine et une mezzanine à plusieurs niveaux qui fait office de chambre d’amis ou bureau. L’escalier participe du décor autant que de la fonctionnalité, il cache dans ses marches les rangements de la cuisine. Les gardes corps font office de bibliothèque. Ce meuble, élément fort du projet, accentue la verticalité de l’espace et par sa finition en bois apporte chaleur et douceur.

Données déclaratives

Acteurs du projet

Etudes et ingénieries (1)

Maître d'œuvre - Architecte mandataire

a_traits architecture & design graphique (33)

Entreprises des lots bois (2)

Charpentier

DRILLAUD CHARPENTE COUVERTURE (33)

Menuisier

POIRIER CHARLES (33)




* : L'entreprise n'est plus active
Retour à la liste