Aménager
Aménager

BASE DES MURS BLANCS - CENTRE NAUTIQUE

22370 PLENEUF VAL ANDRE - Côtes d'Armor - Bretagne

AMÉNAGEMENT BOIS

Aménagement exterieur

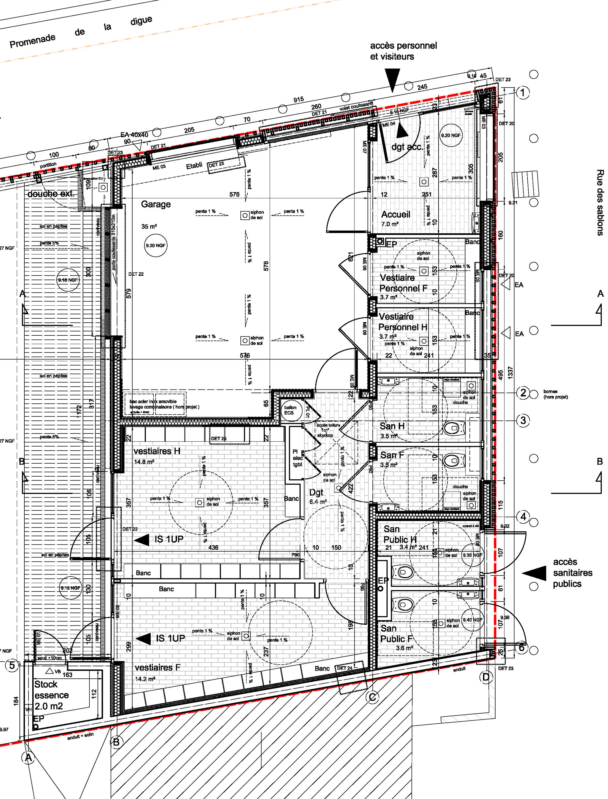
Afin de préserver les vues sur mer des bâtiments voisins et en raison notamment de la présence des baies dans le pignon mitoyen en limite sud de la parcelle, la construction d'un bâtiment à un seul niveau, et dont le volume constitue un faible impact sur la silhouette générale du front de mer, s'est imposé. L'analyse du site nous conduit à concevoir un nouvel bâtiment de volume unitaire et compact, recouvert d'une toiture terrasse pour un impact minimal dans le site. Il sera construit sur les limites séparatives des voies publiques, pour une meilleure visibilité depuis la plage. La structure du bâtiment sera réalisée en bois, sur une dalle en béton à niveau permettant un accès de plein pied depuis la cour et un entretien facile. Le bâtiment est construit uniquement à rez-de-chaussée. Le traitement des façades sur rues et des clôtures sera homogène, constitué d'un bardage vertical à petites lames posées à claire voie. Il prendra une patine grise avec le temps. Le bardage vertical présente l'avantage d'un écoulement facile de l'eau de pluie et du sable amené par le vent. Cette vêture recouvrira à la fois : les parois opaques, les baies vitrées des espaces de service (sanitaires, vestiaires), afin de préserver leur intimité tout en permettant l'éclairage naturel, puis se transforme en clôture et portail coulissant pour délimiter la cour intérieure. Le rythme des lames sera variable : plus serré devant les façades opaques, plus large devant les façades comportant des baies. Le bâtiment disposera à l’angle de deux grandes baies vitrées permettant une vue panoramique depuis le bureau d’accueil vers la mer et la cale à bateaux : l’une de plein pied avec la digue, constituera la "vitrine" de l'école de voile ; la seconde avec allège côté rue des Sablons. La baie côté digue sera protégée par un volet coulissant en lames de bois pendant les grandes marées. Au sud et à l’ouest, les limites parcellaires et clôtures ne seront pas modifiées.

Catégorie aménagement bois, aménagement exterieur
Numéro de projet1822
Adresse du projet Promenade de la digue / rue des Sablons
22370 PLENEUF VAL ANDRE
Date de candidature28/02/2019

aménagement bois

Coût total en € HT : 250000

aménagement exterieur

Année de réalisation : 2014
Coût total aménagement extérieur en € HT : 250000
Coût lots bois : 52000
Volume bois : 371
Surface aménagée en m² : 106

Liste des produits :

ProduitEssenceProvenances (lieu de croissance du bois)Traitements de préservationFinitionMarque et certification produit
ClôtureChâtaignierBretagneAucun traitementAucune finition
Bois Français : oui
Notice architecturale : Afin de préserver les vues sur mer des bâtiments voisins et en raison notamment de la présence des baies dans le pignon mitoyen en limite sud de la parcelle, la construction d'un bâtiment à un seul niveau, et dont le volume constitue un faible impact sur la silhouette générale du front de mer, s'est imposé. L'analyse du site nous conduit à concevoir un nouvel bâtiment de volume unitaire et compact, recouvert d'une toiture terrasse pour un impact minimal dans le site. Il sera construit sur les limites séparatives des voies publiques, pour une meilleure visibilité depuis la plage. La structure du bâtiment sera réalisée en bois, sur une dalle en béton à niveau permettant un accès de plein pied depuis la cour et un entretien facile. Le bâtiment est construit uniquement à rez-de-chaussée. Le traitement des façades sur rues et des clôtures sera homogène, constitué d'un bardage vertical à petites lames posées à claire voie. Il prendra une patine grise avec le temps. Le bardage vertical présente l'avantage d'un écoulement facile de l'eau de pluie et du sable amené par le vent. Cette vêture recouvrira à la fois : les parois opaques, les baies vitrées des espaces de service (sanitaires, vestiaires), afin de préserver leur intimité tout en permettant l'éclairage naturel, puis se transforme en clôture et portail coulissant pour délimiter la cour intérieure. Le rythme des lames sera variable : plus serré devant les façades opaques, plus large devant les façades comportant des baies. Le bâtiment disposera à l'angle de deux grandes baies vitrées permettant une vue panoramique depuis le bureau d'accueil vers la mer et la cale à bateaux : l'une de plein pied avec la digue, constituera la "vitrine" de l'école de voile ; la seconde avec allège côté rue des Sablons. La baie côté digue sera protégée par un volet coulissant en lames de bois pendant les grandes marées. Au sud et à l'ouest, les limites parcellaires et clôtures ne seront pas modifiées.
Approche environnementale : Matériaux mis en oeuvre: Le projet met en oeuvre des matériaux peu nombreux et choisis, adapté à leur situation et à leur contexte. Les façades du bâtiment sont traitées en bois, sur la Digue, sur la rue des Sablons, et sur toute la hauteur du bâtiment. La clôture sur cour, moins haute, reprend en continuité, la modénature de la façade en bois. La façade sur cour est traitée en bardage métallique. Peu vu depuis la digue, la clôture en claustra filtre les vues directes. Approche environnementale : l'ensemble des murs sont réalisés en ossature bois (sapin du Nord). Le bardage en Châtaigner « breton » a été retenu pour sa résistance particulière aux UV et aux embruns. Il pousse localement. Performance énergétique: le bâtiment est isolé et chauffé ponctuellement par des cassettes en plafond (vestiaires uniquement) de par son usage saisonnier.
Descriptif technique de l'aménagement : Murs extérieurs et refends: ossature bois Bardage en châtaigner Breton (en périphérie du bâtiment et clotures) Bardage métallique (cour) Menuiseries extérieures en alu laquées Portes intérieures en stratifiée Cloisons placo Carrelage (vestiaires, circulation, wc) Peinture (bureau d'accueil) Atelier / garage ( bardage métallique)
Données déclaratives

Acteurs du projet

Maître d'ouvrage (1)

Maître d'ouvrage - État ou collectivité (locale et territ)

COMMUNE DE PLENEUF VAL ANDRE (22)

Etudes et ingénieries (3)

Maître d'œuvre - Architecte mandataire

HENON TUDOR ARCHITECTES (22)

Bureau d'études structure bois

YANNICK DURAND INGENIEUR CONSEIL (YDIC) (22)

Economiste

OPRYME INGENIERIE (22)

Entreprises des lots bois (2)

Charpentier

SCOB (35)

Menuisier

SCOB (35)




* : L'entreprise n'est plus active
Retour à la liste