Réhabiliter un équipement

Hôtel La Villa Marine

76470 Le Tréport - Seine Maritime - Normandie

BÂTIMENT / LOGEMENT

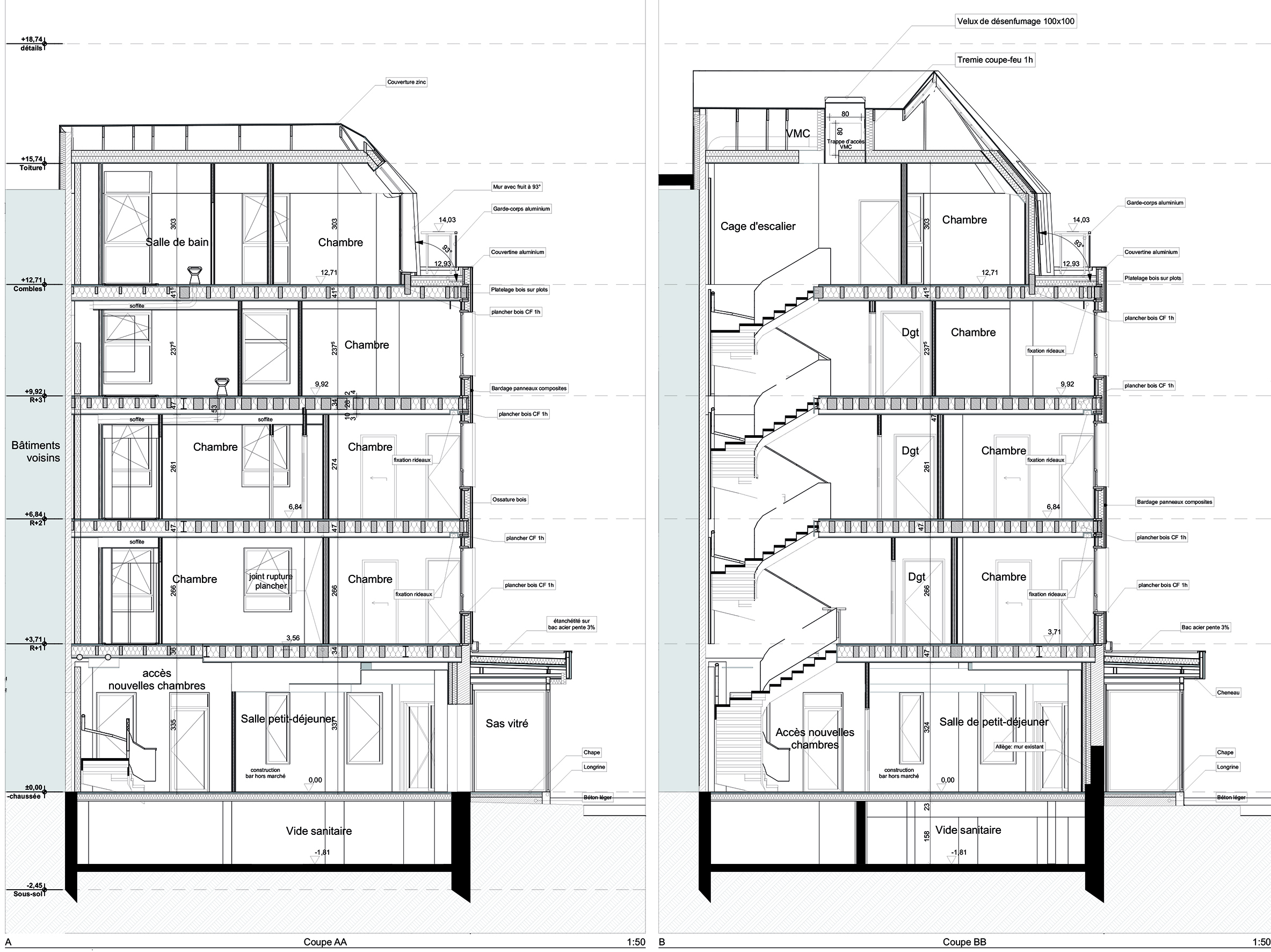
Situé au nord du Tréport, l’hôtel La Villa Marine est positionné sur un bras de terre qui s’étend entre le port et la plage de Mers-les-Bains. La mission consiste à construire en lieu et place d’un édifice en péril mitoyen un ensemble de 6 nouvelles chambres. Le projet s’aligne sur les bâtiments adjacents de part et d’autre en rattrapant les différences d’altimétrie avec un jeu de retrait ménageant des terrasses accessibles depuis les chambres. L’aspect général du bâtiment reconstruit reprend la composition tripartite environnante mais apporte une touche contemporaine dans le paysage.

Catégorie Bâtiment / logement
Numéro de projet1840
Adresse du projet Place Pierre Sémard
76470 Le Tréport
Date de candidature28/02/2019

Bâtiment / logement

Détail projet

Typologie de bâtiment : Extension / surélévation,Rénovation / Réhabilitation
Type de bâtiment : Logements de vacances ou de loisirs,Hébergement
Année de livraison : 2016
Surface totale du bâtiment en m² : 1306
Coût total en € HT (hors foncier, hors VRD, hors honoraires) : 530656
Lot bois n°1 concerné : Charpente bois
Volume lot bois n°1 - m³ : 40
Lot bois n°2 concerné : Aucun
Bois Français : oui

Structure bois du bâtiment

Structure verticale :

ProduitEssenceProvenances (lieu de croissance du bois)Traitements de préservationMarque et certification produit
Panneau ossature bois

Structure horizontale :

ProduitEssenceProvenances (lieu de croissance du bois)Traitements de préservationMarque et certification produit
Solivage traditionnel

Charpente :

ProduitEssenceProvenances (lieu de croissance du bois)Traitements de préservationMarque et certification produit
Charpente traditionnelle
Charpente traditionnelleÉpicéa communGrand-EstTraitement Classe 2 (trempage)

Revêtement bois extérieur

Menuiserie intérieure et extérieure

Isolation des murs

Isolation intérieure des murs :

Produit
Laine de verre
Epaisseur (mm) Isolation intérieure des murs : 100
Epaisseur (mm) Isolation entre-montant des murs : 150

Isolation de la toiture

Approche environnementale : RT 2012

Descriptif technique : Côté Ouest, les hauteurs s’aligneront sur la façade attenante du bâtiment existant : les baies s’établiront suivant le même gabarit, avec la même régularité. La toiture en zinc sera ensuite mise en œuvre avec la même inclinaison que sa voisine, toujours pour assurer une continuité.Côté Sud, les ouvertures conserveront une trame similaire. L’angle sera traité par un creux où viendront des baies donnant sur la mer. Une seconde terrasse sera ménagée par le retrait de l’attique. Les façades sont habillées de panneaux composites dont la pose en relief confère une texture travaillée au matériau.

Chauffage au Bois : non
Certifications, labels et marques bâtiment : Origine France Garantie (OFG),Bois de France
Données déclaratives

Acteurs du projet

Maître d'ouvrage (1)

Maître d'ouvrage - Industriels - commerçants - entreprise

LE PICARDIE (76)

Etudes et ingénieries (5)

Maître d'œuvre - Architecte mandataire

ULYSSES (76)

Bureau d'études acoustique

AGIR ACOUSTIQUE (76)

Bureau d'études structure bois

BET IDA (76)

Bureau d'études thermique

ABSCIA INGENIERIE (76)

Economiste

ABSCIA INGENIERIE (76)

Entreprises des lots bois (1)

Charpentier

Pesqueux Charpente (76)




* : L'entreprise n'est plus active
Retour à la liste