Habiter une maison

Maison passive à Bouvignies

59870 Bouvignies - Nord - Hauts-de-France

BÂTIMENT / LOGEMENT

La maison passive est une construction sans chauffage conventionnel. Elle est avant tout confortable, saine et économiquement avantageuse. Les apports solaires constituent la première source de chaleur. Les températures y sont très homogènes grâce à une très bonne isolation, une réduction des ponts thermiques et une parfaite étanchéité à l’air. Il n’existe pas de paroi froide grâce notamment au triple vitrage des menuiseries extérieures. La ventilation double flux, évite non seulement l’entrée d’air froid mais garantit aussi un renouvellement d’air sain à l’intérieur.

Catégorie Bâtiment / logement
Numéro de projet242
Date de candidature14/03/2018

Bâtiment / logement

Détail projet

Typologie de bâtiment : Neuf
Type de bâtiment : Logement individuel inférieur 120 m²
Année de livraison : 2018
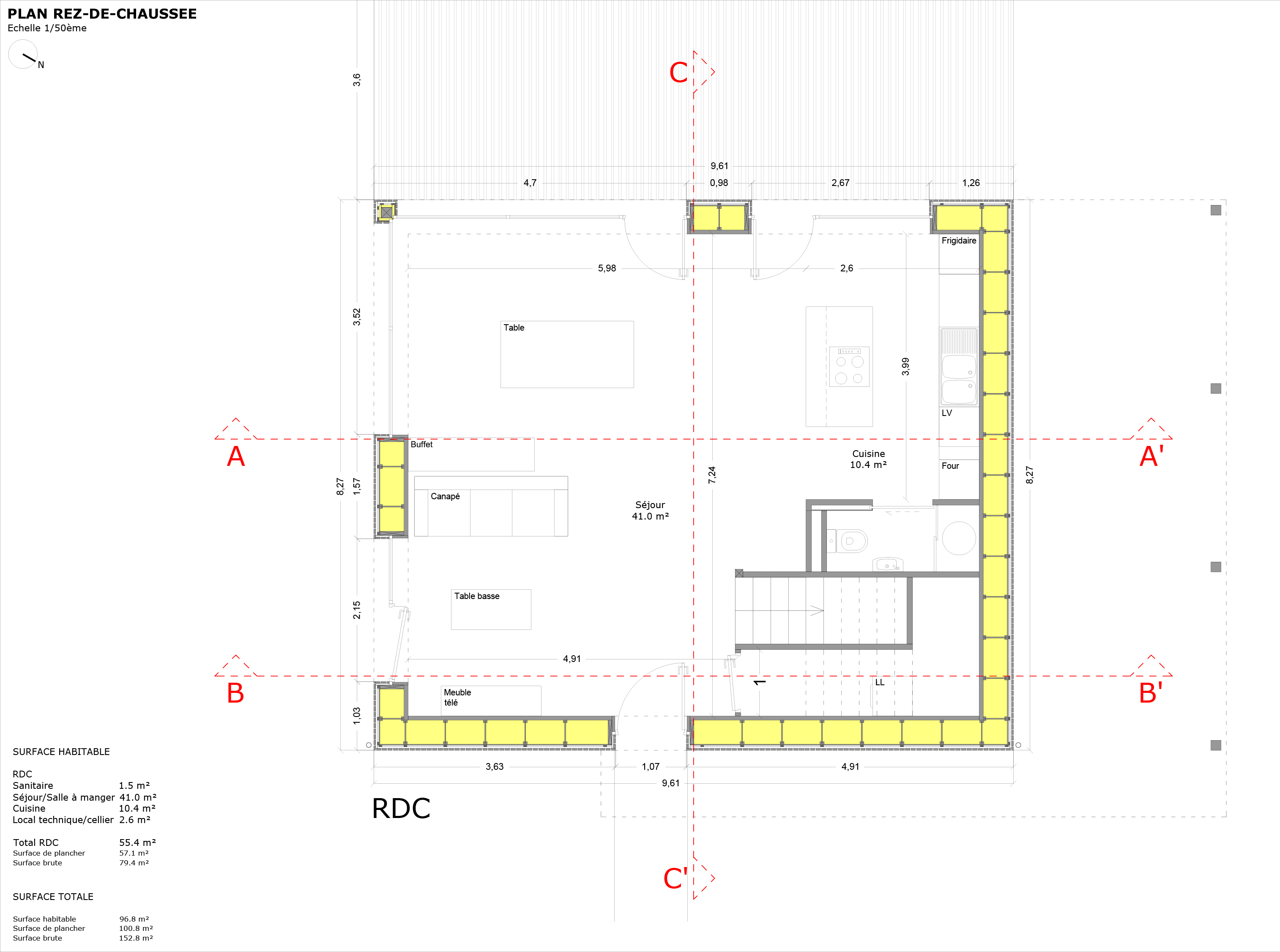
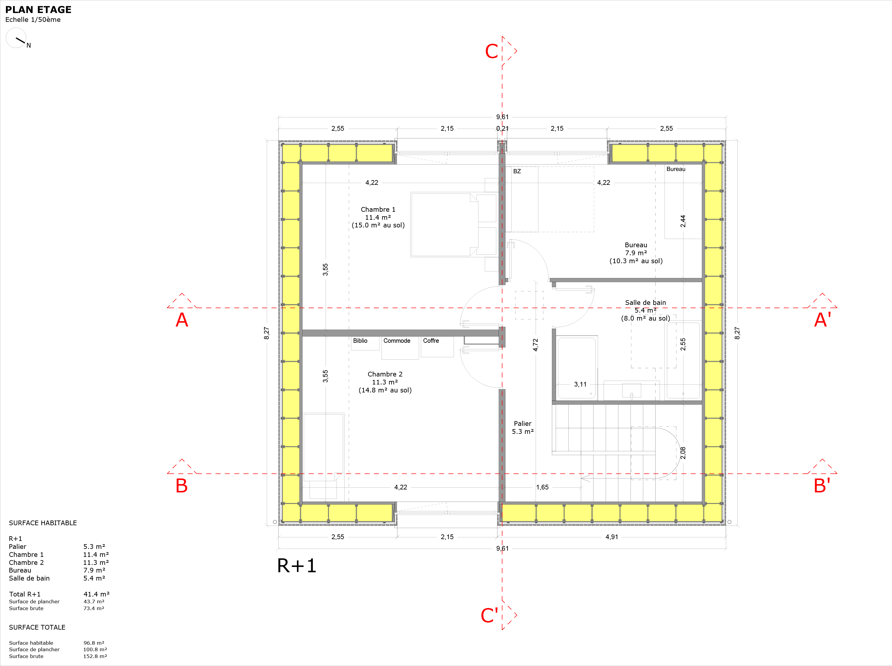
Surface totale du bâtiment en m² : 100
Coût total en € HT (hors foncier, hors VRD, hors honoraires) : 190000
Lot bois n°1 concerné : Aucun
Lot bois n°2 concerné : Aucun
Bois Français : non
Isolations biosourcées (préciser dans le descriptif technique) : oui
Finitions intéreures biosourcées ou géosourcées (préciser dans le descriptif technique) : oui

Structure bois du bâtiment

Structure verticale :

ProduitEssenceProvenances (lieu de croissance du bois)Traitements de préservationMarque et certification produit
Panneau de bois massif (CLT collé ou CLT cloué)EuropeJe n'ai pas l'information

Structure horizontale :

ProduitEssenceProvenances (lieu de croissance du bois)Traitements de préservationMarque et certification produit
Panneau de bois massif (CLT collé ou CLT cloué)Épicéa communEuropeJe n'ai pas l'information

Charpente :

ProduitEssenceProvenances (lieu de croissance du bois)Traitements de préservationMarque et certification produit
Caisson de toitureÉpicéa communEuropeJe n'ai pas l'information

Revêtement bois extérieur

Revêtement bois ou dérivés :

ProduitEssenceProvenances (lieu de croissance du bois)Marque et certification produitFinitionTraitements de préservation
Lame bois massifMélèzeEuropeAucune finitionJe n'ai pas l'information

Menuiserie intérieure et extérieure

Isolation des murs

Epaisseur (mm) Isolation entre-montant des murs : 360

Isolation de la toiture

Epaisseur (mm) Isolation entre-montant de la toiture : 360

Approche environnementale : Ossature bois massif / Isolation en Ouate de cellulose (Ossature) / Fibre de bois (Pare pluie) / Fibre de bois (Cloisons) / Menuiseries PVC Alu triple vitrage / Etanchéité à l’air / VMC double flux / Cuve d’eau de pluie

Descriptif technique : Le concept passif part du principe qu’un bâtiment avec tout le confort moderne n’a pas besoin de plus de 15 kWh par m2 et par an de chauffage, que la consommation d’énergie primaire ne doit pas dépasser la valeur de 120 kWh par m2 et par an et que l’étanchéité à l’air soit efficace avec un paramètre n50 inf.0,6 h-1

Chauffage au Bois : non
Certifications, labels et marques bâtiment : Passivhaus
Données déclaratives

Acteurs du projet

Maître d'ouvrage (1)

Maître d'ouvrage - Particuliers

particulier (x)

Etudes et ingénieries (1)

Maître d'œuvre - Architecte mandataire

Vincent Delsinne Architecte (59)

Entreprises des lots bois (1)

Constructeur bois

Bâti Bois concept (59)




* : L'entreprise n'est plus active
Retour à la liste