Apprendre – se divertir, Réhabiliter un équipement

Extension de l'école maternelle de Lavalette

31590 Lavalette - Haute garonne - Occitanie

AMÉNAGEMENT BOIS

Bâtiment / logement

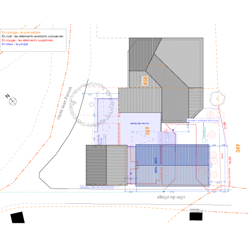
Le projet est la construction d'une école maternelle, composée d'une classe, d’une salle dédiée au temps périscolaire, d'une salle de repos et de sanitaires, le tout distribué par un hall d'entrée auquel on accède de plain-pied depuis la cour de l’ancienne école. Ce nouveau bâtiment a pour vocation de créer un espace dédié à la petite enfance, situé au cœur du village. Il respecte l’architecture locale et réussit à intégrer tout le programme demandé par la Mairie, sur une parcelle réduite. Son orientation, sa volumétrie mettent en avant une conception bioclimatique pour le confort des usagers et des consommations d’énergie réduites. L'ancienne cour, attenante, qui comprend un préau est naturellement conservée dans ce nouveau projet. Outre la construction neuve de l'école, l'intervention prévoit aussi l'agrandissement de la cour et l'aménagement d'une nouvelle entrée.

Catégorie aménagement bois, Bâtiment / logement
Numéro de projet273
Adresse du projet 19 rue Jean Parisot
31590 Lavalette
Date de candidature16/03/2018

aménagement bois

typologie : Enseignement ou éducation
Coût total en € HT : 378000

Bâtiment / logement

Détail projet

Typologie de bâtiment : Neuf,Extension / surélévation
Type de bâtiment : Enseignement ou éducation
Année de livraison : 2017
Surface totale du bâtiment en m² : 174
Coût total en € HT (hors foncier, hors VRD, hors honoraires) : 378000
Lot bois n°1 concerné : Charpente bois
Volume lot bois n°1 - m³ : 8.86
Coût du lot bois n°1 - € HT : 16633
Lot bois n°2 concerné : ossature bois
Volume lot bois n°2 - m³ : 11.2
Coût du lot bois n°2 - € HT : 20985

Structure bois du bâtiment

Structure verticale :

ProduitEssenceProvenances (lieu de croissance du bois)Traitements de préservationMarque et certification produit
Panneau ossature boisDouglasFranceTraitement Classe 2 (trempage)

Structure horizontale :

ProduitEssenceProvenances (lieu de croissance du bois)Traitements de préservationMarque et certification produit
Solivage traditionnelDouglasFranceTraitement Classe 2 (trempage)

Charpente :

ProduitEssenceProvenances (lieu de croissance du bois)Traitements de préservationMarque et certification produit
Charpente industrielleTempéréFranceTraitement Classe 2 (trempage)

Revêtement bois extérieur

Revêtement bois ou dérivés :

ProduitEssenceProvenances (lieu de croissance du bois)Marque et certification produitFinitionTraitements de préservation
Lame bois massifDouglasFrancepré-griséTraitement Classe 3b (autoclave)

Revêtement minéral :

Produit
Enduit ciment

Menuiserie intérieure et extérieure

Menuiserie extérieure :

ProduitEssenceProvenances (lieu de croissance du bois)Marque et certification produitFinition
Brise soleil boisDouglasFranceAucune finition

Isolation des murs

Epaisseur (mm) Isolation intérieure des murs : 45
Epaisseur (mm) Isolation entre-montant des murs : 140
Epaisseur (mm) Isolation extérieure des murs : 16

Isolation de la toiture

Epaisseur (mm) Isolation intérieure de la toiture : 40
Epaisseur (mm) Isolation entre-montant de la toiture : 240
Epaisseur (mm) Isolation extérieure de la toiture : 16

Approche environnementale : Le terrain proposé pour l'extension de l'école était constitué de la cour existante (entourées de murets hauts) et d'un parking situé entre contre-bas de celle-ci. L'implantation du projet dans la pente a permis de limiter les terrassements nécessaires à un minimum, d’agrandir la cour et de créer une percée depuis le portail de l’école jusqu’à l’entrée du bâtiment, vers les collines du lauragais et les Pyrénées. L'implantation de l'école perpendiculairement à la pente permet de bénéficier des meilleures expositions dans les salles d'activités : Sud-Est et Sud-Ouest. Le dortoir se trouve lui au calme, au nord du bâtiment. Des protections solaires adaptées ont bien-sûr été prévues pour les orientations concernées. Comme dans tous les projets de l’agence Collart, les matériaux mis en œuvre sont les plus naturels et biosourcés possible.

Descriptif technique : Le socle, partiellement enterré, de l'école a été réalisé en maçonnerie. Sur ce socle, une boite isolée a été construite en ossature bois et charpente bois ( inopannes ). Dès que cela était possible, des isolants naturels (ici du feutre de bois) ont été mis en œuvre. Deux refends intérieurs en maçonnerie enduits de terre assurent le confort hygrothermique des usagers. Les peintures sont les moins polluantes possibles, les revêtements de sol sont le carrelage pour l’entrée et les sanitaires et le caoutchouc pour les salles d’activités. Les tapées, les appuis de fenêtres, les meubles et vestiaires ont été réalisés en 3 plis. Les habillages de bas mur en médium. Les deux terrasses du projet ont été construites en bois. Les clôtures et garde-corps ont été réalisés en tasseaux de pin douglas traités autoclave gris, tout comme le bardage du bâtiment.

Chauffage au Bois : non
Données déclaratives

Acteurs du projet

Maître d'ouvrage (1)

Maître d'ouvrage - État ou collectivité (locale et territ)

Commune de Lavalette (31)

Etudes et ingénieries (1)

Maître d'œuvre - Architecte mandataire

JEAN-FRANCOIS COLLART (31)

Entreprises des lots bois (3)

Charpentier

ECO ET AVENIR BOIS (31)

Menuisier

CONCEPT CREATION BOIS (C.C.B.) (31)
METAL D'OC (11)




* : L'entreprise n'est plus active
Retour à la liste