Travailler – accueillir

Restaurant à Commercy

55200 COMMERCY - Meuse - Grand Est

BÂTIMENT / LOGEMENT

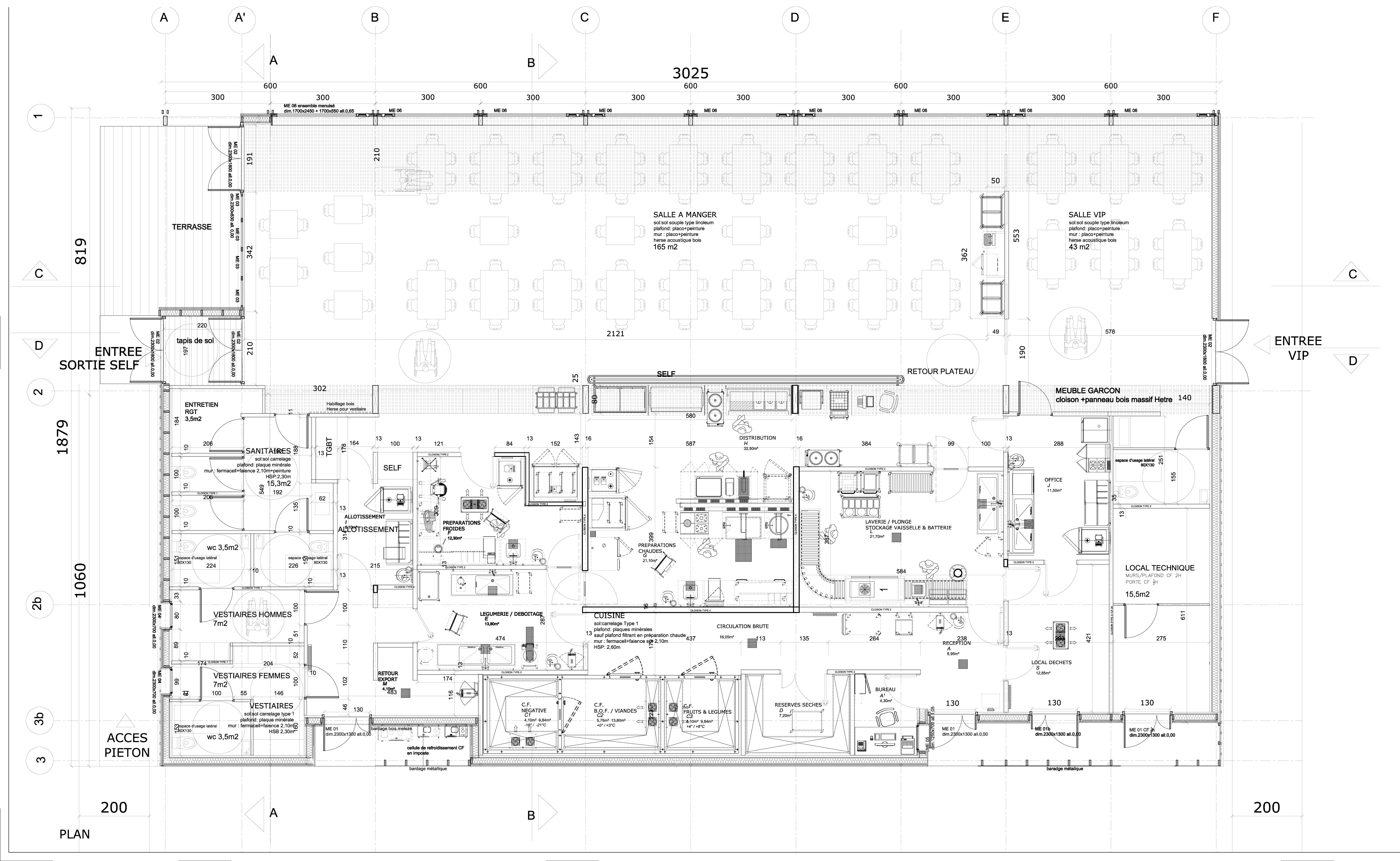
Sur les hauts de la ville de Commercy, le restaurant offre un panorama étonnant sur la vallée de la Meuse. Pour ce bâtiment construit sur la zone industrielle, nous avons choisi de reprendre le vocabulaire d’une architecture économique: un bardage métallique sur une ossature bois enveloppe la partie cuisine, pour atteindre une bonne performance énergétique et compenser la façade vitrée au nord, offrant la vue à la salle de restauration de 150 m2. Un maillage de bois en second plan habille les entrées sur les façades pignons.

Catégorie Bâtiment / logement
Numéro de projet301
Adresse du projet Zac du seugnon
55200 COMMERCY
Date de candidature19/03/2018

Bâtiment / logement

Détail projet

Typologie de bâtiment : Neuf
Type de bâtiment : Restauration
Année de livraison : 2016
Surface totale du bâtiment en m² : 550
Coût total en € HT (hors foncier, hors VRD, hors honoraires) : 1400000
Lot bois n°1 concerné : Charpente bois
Coût du lot bois n°1 - € HT : 150000
Lot bois n°2 concerné : Menuiserie extérieure bois
Coût du lot bois n°2 - € HT : 60000

Structure bois du bâtiment

Structure verticale :

ProduitEssenceProvenances (lieu de croissance du bois)Traitements de préservationMarque et certification produit
Panneau ossature boisJe n'ai pas l'information

Structure horizontale :

ProduitEssenceProvenances (lieu de croissance du bois)Traitements de préservationMarque et certification produit
Non préciséJe n'ai pas l'information

Charpente :

ProduitEssenceProvenances (lieu de croissance du bois)Traitements de préservationMarque et certification produit
Charpente bois lamellé-colléÉpicéa communJe n'ai pas l'information

Revêtement bois extérieur

Autre revêtement métallique :

Produit
Alu

Menuiserie intérieure et extérieure

Menuiserie extérieure :

ProduitEssenceProvenances (lieu de croissance du bois)Marque et certification produitFinition
Menuiserie boisMélèzeSaturateur

Isolation des murs

Isolation entre-montant des murs :

Produit
Laine de bois souple
Epaisseur (mm) Isolation entre-montant des murs : 160

Isolation extérieure des murs :

Produit
Fibre de bois (Panneaux)
Epaisseur (mm) Isolation extérieure des murs : 100

Isolation de la toiture

Epaisseur (mm) Isolation entre-montant de la toiture : 280
Epaisseur (mm) Isolation extérieure de la toiture : 80

Approche environnementale : Le projet en ossature bois, favorise l'utilisation de matériaux biosourcés et d'un chantier sec. La facade nord vitrée en triple vitrage est compensée par des apports solaires grâce au décalage de toiture au sud.

Descriptif technique : Bâtiment HPE non labellisé Projet en ossature bois avec panneau de contreventement OSB scotché à l'intérieur. Facade et charpente sur le même système constructif, économique. Facade nord triple vitrage Apport solaire par décalage de toiture

Chauffage au Bois : non
Données déclaratives

Acteurs du projet

Maître d'ouvrage (1)

Maître d'ouvrage - État ou collectivité (locale et territ)

CODECOM PAYS DE COMMERCY (55) *

Etudes et ingénieries (3)

Maître d'œuvre - Architecte mandataire

leloup (54)
MALINGREY/DUBRAVCOVA (54) *

Bureau d'études thermique

MAYA Construction Durable (75)

Entreprises des lots bois (2)

Charpentier

SERTELET YVES (88)

Menuisier

SCHREIBER (57)




* : L'entreprise n'est plus active
Retour à la liste