Habiter une maison

Au fond du jardin

62930 Wimereux - Pas de Calais - Hauts-de-France

BÂTIMENT / LOGEMENT

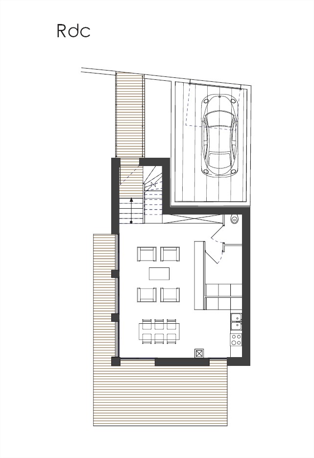
Maison Familiale Compacte, issue d'une division parcellaire en densification douce. comportant 3 Chambres. La maison s'est construit dans le fond du jardin de la maison familiale ancienne, autour d'un garage existant. on accède au logement par une passerelle, telle un navire au port.

Catégorie Bâtiment / logement
Numéro de projet345
Date de candidature20/03/2018

Bâtiment / logement

Détail projet

Typologie de bâtiment : Neuf
Type de bâtiment : Logement individuel inférieur 120 m²
Année de livraison : 2016
Surface totale du bâtiment en m² : 91
Coût total en € HT (hors foncier, hors VRD, hors honoraires) : 90000
Lot bois n°1 concerné : Charpente bois
Volume lot bois n°1 - m³ : 4.5
Coût du lot bois n°1 - € HT : 40824
Lot bois n°2 concerné : Charpente bois

Structure bois du bâtiment

Structure verticale :

ProduitEssenceProvenances (lieu de croissance du bois)Traitements de préservationMarque et certification produit
Panneau de bois massif (CLT collé ou CLT cloué)EuropeAucun traitement

Structure horizontale :

ProduitEssenceProvenances (lieu de croissance du bois)Traitements de préservationMarque et certification produit
Panneau de bois massif (CLT collé ou CLT cloué)Épicéa communEuropeAucun traitement

Charpente :

ProduitEssenceProvenances (lieu de croissance du bois)Traitements de préservationMarque et certification produit
Charpente bois lamellé-colléTempéréEuropeJe n'ai pas l'information

Revêtement bois extérieur

Revêtement bois ou dérivés :

ProduitEssenceProvenances (lieu de croissance du bois)Marque et certification produitFinitionTraitements de préservation
Lame bois massifMélèzeEuropeAucune finitionAucun traitement

Menuiserie intérieure et extérieure

Isolation des murs

Epaisseur (mm) Isolation intérieure des murs : 80
Epaisseur (mm) Isolation extérieure des murs : 160

Isolation de la toiture

Epaisseur (mm) Isolation extérieure de la toiture : 300

Approche environnementale : Maison en RT2012 -30% avec VMC DF et triple vitrage. Le chauffage ne se fait que par un poêle à pellets. Les pièces de vie sont tournées vers Est et le Sud.

Descriptif technique : Projet en CLT Woodeum avec isolation en polystyrène graphité de 160 mm ext. et 80 mm int. (passage des flux)

Chauffage au Bois : oui
Appareil de chauffage au bois : Poële/insert
Données déclaratives

Acteurs du projet

Maître d'ouvrage (1)

Maître d'ouvrage - Particuliers

particulier (x)

Etudes et ingénieries (2)

Maître d'œuvre - Architecte mandataire

agence BENC (62)

Bureau d'études thermique

OPTIMISATION CONSTRUCTION RENOVATION (O.C.R.) (59)

Entreprises des lots bois (1)

Charpentier

SBC - systéme bois construction (62)




* : L'entreprise n'est plus active
Retour à la liste