Aménager
Aménager

LES MAISONS DES CINQ CONTINENTS : ASIE

51430 BEZANNES - Marne - Grand Est

AMÉNAGEMENT BOIS

Aménagement intérieur

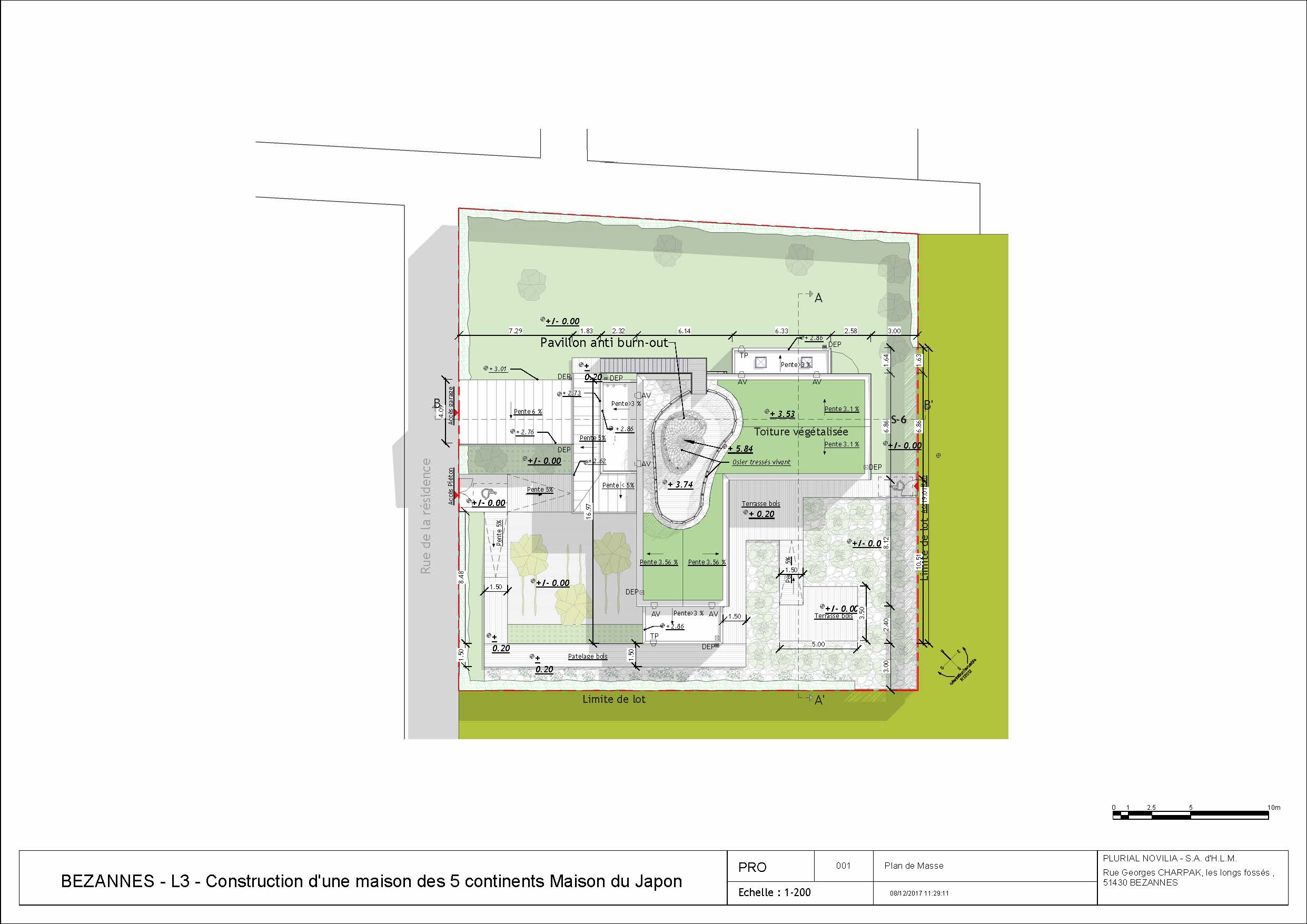
Les maisons des 5 continents réunissent les visions de 5 Architectes, originaires de chaque continent, autour d’une réflexion élargie sur la manière dont cultures et traditions viennent enrichir notre habitat. La Maison de l’Asie, d’inspiration japonaise, a été conçue et réalisée par S’PACE architectes associés. La maison du Japon ne peut être qu’harmonie. Harmonie avec l’Univers par sa relation au soleil, à la pluie au vent. La maison du Japon utilise la richesse des opposés : la lumière et l’ombre, le construit et le naturel, la rusticité et le high-tech.

Bâtiment / logement

Les maisons des 5 continents réunissent les visions de 5 Architectes originaires de chaque continent, autour d'une réflexion sur la manière dont cultures et traditions enrichissent l'habitat. La Maison Asie, d’inspiration japonaise, a été conçue et réalisée par S’PACE architectes associés. Construite en bois, murs en ossature, charpente lamellée collée, panneaux en CLT. La maison du Japon ne peut être qu’harmonie, avec l’Univers par sa relation au soleil, à la pluie au vent. Elle propose de vivre avec et dans la nature, d’être bien avec les autres, en préservant le bien-être de l’individu.

Catégorie aménagement bois, aménagement intérieur, Bâtiment / logement
Numéro de projet3938
Adresse du projet RUE CHARPAK
51430 BEZANNES
Date de candidature14/01/2020

aménagement bois

typologie : Logement individuel supérieur à 120 m²
Coût total en € HT : 435734

aménagement intérieur

Année de réalisation : 2019
Coût total Aménagement Intérieur en € HT : 101280
Coût lots bois en € HT : 13046
Volume bois m³ : 28
Surface aménagée en m² : 140

Liste des produits :

ProduitEssenceProvenances (lieu de croissance du bois)Marque et certification produitFinition
ParquetChêneFrance
InstallationÉpicéa communAuvergne-Rhône-AlpesLasure
Bois Français : non

Approche environnementale : Tout ici participe au respect mutuel de l’homme et de son environnement. Un paradigme partagé, celui de s’orienter vers la préservation des ressources naturelles, pour le choix des matériaux, de la gestion de l’eau et de l’énergie, aller au-delà des nouvelles normes et règles avec ambition et intention ».Les principaux matériaux biosourcés et restant apparents utilisés pour l'aménagement intérieur sont le bois, poutres en lamellé collé, plafonds en CLT, les menuiseries extérieures, le cisal et le parquet massif en revêtements de sol.

Descriptif technique de l'aménagement : La Maison de l’Asie, œuvre innovante par essence (l’Asie à Bezannes !), stimulante pour la créativité, puise son inspiration dans la construction domestique individuelle du Japon. Réalisée en bois (bois européens toutefois), matériau affiché, à l’extérieur et à l’intérieur, comme un révélateur de la performance technique, économique, énergétique, et environnementale de sa construction, elle offre grâce au bois, une grande qualité architecturale, une ambiance intérieure dépaysante, des espaces extérieurs soignés, traités comme autant de pièces de vie supplémentaires (systématique au Japon).

Bâtiment / logement

Détail projet

Typologie de bâtiment : Neuf
Type de bâtiment : Logement individuel supérieur à 120 m²
Année de livraison : 2019
Surface totale du bâtiment en m² : 140
Coût total en € HT (hors foncier, hors VRD, hors honoraires) : 435734
Lot bois n°1 concerné : ossature bois
Volume lot bois n°1 - m³ : 38
Coût du lot bois n°1 - € HT : 69605
Lot bois n°2 concerné : Menuiserie extérieure bois
Volume lot bois n°2 - m³ : -1
Coût du lot bois n°2 - € HT : 46891
Bois Français : oui
Isolations biosourcées (préciser dans le descriptif technique) : non
Finitions intéreures biosourcées ou géosourcées (préciser dans le descriptif technique) : oui

Structure bois du bâtiment

Structure verticale :

ProduitEssenceProvenances (lieu de croissance du bois)Traitements de préservationMarque et certification produit
Panneau ossature boisGrand-EstTraitement Classe 2 (trempage)

Structure horizontale :

ProduitEssenceProvenances (lieu de croissance du bois)Traitements de préservationMarque et certification produit
Panneau de bois massif (CLT collé ou CLT cloué)Épicéa communEuropeTraitement Classe 2 (trempage)

Charpente :

ProduitEssenceProvenances (lieu de croissance du bois)Traitements de préservationMarque et certification produit
Charpente bois lamellé-colléÉpicéa communAuvergne-Rhône-AlpesTraitement Classe 2 (trempage)

Revêtement bois extérieur

Revêtement bois ou dérivés :

ProduitEssenceProvenances (lieu de croissance du bois)Marque et certification produitFinitionTraitements de préservation
Lame bois massifPin sylvestreEuropePeintureTraitement Classe 2 (trempage)

Revêtement minéral :

Produit
Enduit ciment

Menuiserie intérieure et extérieure

Menuiserie extérieure :

ProduitEssenceProvenances (lieu de croissance du bois)Marque et certification produitFinition
Menuiserie boisPin sylvestreEuropePeinture

Isolation des murs

Isolation intérieure des murs :

Produit
Laine de verre
Epaisseur (mm) Isolation intérieure des murs : 140

Isolation extérieure des murs :

Produit
Polystyrène
Epaisseur (mm) Isolation extérieure des murs : 60

Isolation de la toiture

Epaisseur (mm) Isolation extérieure de la toiture : 130

Approche environnementale : Les matériaux et les méthodes de construction utilisés sont écologiques et durables. La structure est en bois, l'ensemble des murs en ossature bois et la charpente support de toiture terrasse plate en poutres de bois lamellé-Collé, les plafonds apparents en dalles massives de type CLT. Les menuiseries extérieures sont en bois certains revêtement sont également composés de matériaux biosourcés : parquets en chêne, et moquette végétale en cisal.

Descriptif technique : L'enjeu technique majeur de cet ouvrage était de relever le défi architectural d'un ouvrage de forme circulaire, entourant un patio central, également circulaire, et vêtu d'une couverture à double pan dont la ligne de faîtage est de hauteur variable. La solution d'une ossature bois surplombée d'une charpente traditionnelle en bois également, support de couverture arrondie et de pente variable s’est révélé la solution optimale, de par les qualités d'adaptabilité qu'offre le matériau bois, associé au savoir-faire des bureaux d'études et des entreprises régionales. PEFC (Gestion forestière durable) FSC (Gestion forestière responsable) Bois des Alpes Marquage CE

Chauffage au Bois : non
Certifications, labels et marques bâtiment : Aucun
Données déclaratives

Acteurs du projet

Maître d'ouvrage (1)

Maître d'ouvrage - Bailleur social privé

PLURIAL NOVILIA (51)

Etudes et ingénieries (4)

Maître d'œuvre - Architecte mandataire

S'PACE ARCHITECTURE (94)

Maître d’œuvre - Architecte associé

DIANE JOUVET (51)

Bureau d'études structure bois

Le Bâtiment Associé (51)

Bureau d'études thermique

BUREAU D'ETUDES FLUIDES ETNR (51)

Entreprises des lots bois (3)

Charpentier

Le Bâtiment Associé (51)

Menuisier

LEMPEREUR (08)

Constructeur bois

Le Bâtiment Associé (51)

Fournisseurs du bois (6)

Scierie

SCIERIE CHAUVIN (39)
Piveteau Bois (85)
Binderholz (DE)

Industriel

Piveteau Bois (85)
EURO LAMELLE (74) *
Binderholz (DE)




* : L'entreprise n'est plus active
Retour à la liste