Habiter ensemble

EBENE

44200 NANTES - Loire Atlantique - Pays de la Loire

BÂTIMENT / LOGEMENT

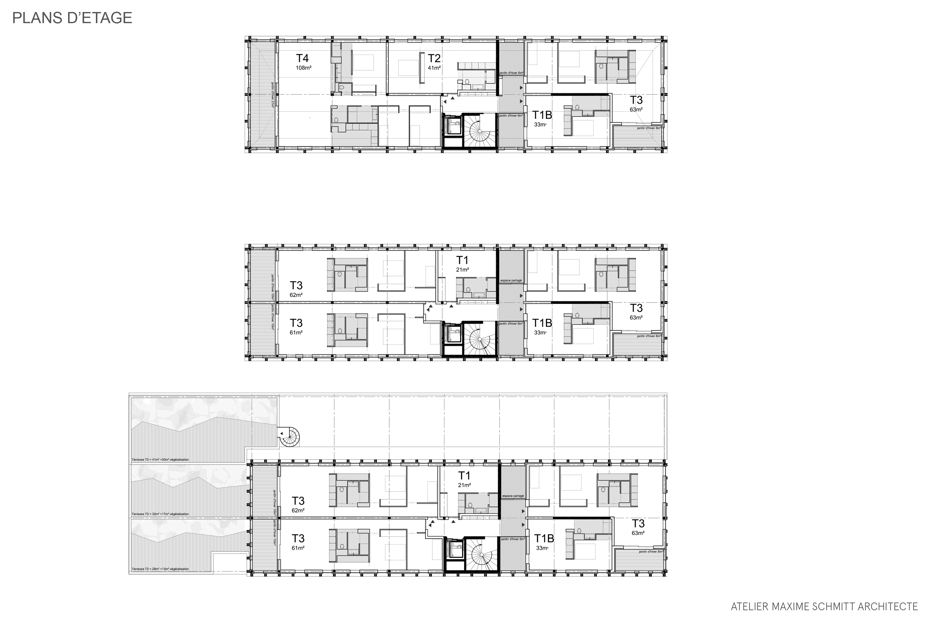
Reprenant les lignes de l’île de Nantes, constituées d’horizontales et d’émergences, le projet est composé d’un socle de béton noir et d’une volumétrie haute, tramée d’une modénature de pièces de bois. Il répond à la double ambition d'une architecture forte combinée à une insertion douce. Les lignes affirmées du projet cachent une réalisation avant tout intimiste, dont les appartements ont été pensés pour garantir la meilleure qualité de vie. L'utilisation généreuse du bois, déjà présent sur le site, accompagne cette volonté en façade et dans l'aménagement des parties communes et extérieures.

Catégorie Bâtiment / logement
Numéro de projet4000
Adresse du projet 5 Boulevard Léon Bureau
44200 NANTES
Date de candidature20/01/2020

Bâtiment / logement

Détail projet

Typologie de bâtiment : Neuf
Type de bâtiment : Logement collectif
Année de livraison : 2019
Surface totale du bâtiment en m² : 1636
Coût total en € HT (hors foncier, hors VRD, hors honoraires) : 2985000
Lot bois n°1 concerné : ossature bois
Volume lot bois n°1 - m³ : 128
Coût du lot bois n°1 - € HT : 795000
Lot bois n°2 concerné : Menuiserie intérieure bois
Volume lot bois n°2 - m³ : 13.5
Coût du lot bois n°2 - € HT : 121997
Bois Français : non
Isolations biosourcées (préciser dans le descriptif technique) : non
Finitions intéreures biosourcées ou géosourcées (préciser dans le descriptif technique) : oui

Structure bois du bâtiment

Structure verticale :

ProduitEssenceProvenances (lieu de croissance du bois)Traitements de préservationMarque et certification produit
Panneau ossature boisÉpicéa communEuropeTraitement Classe 2 (trempage)

Structure horizontale :

ProduitEssenceProvenances (lieu de croissance du bois)Traitements de préservationMarque et certification produit
Plancher béton

Charpente :

ProduitEssenceProvenances (lieu de croissance du bois)Traitements de préservationMarque et certification produit
Charpente bois lamellé-collé
Charpente bois lamellé-colléÉpicéa communEuropeTraitement Classe 2 (trempage)

Revêtement bois extérieur

Revêtement bois ou dérivés :

ProduitEssenceProvenances (lieu de croissance du bois)Marque et certification produitFinitionTraitements de préservation
Lame bois lamellé-collé ou aboutéDouglasFrance
Lame bois lamellé-collé ou aboutéDouglasFrancePeintureAucun traitement

Menuiserie intérieure et extérieure

Isolation des murs

Isolation intérieure des murs :

Produit
Laine de verre
Epaisseur (mm) Isolation intérieure des murs : 50
Epaisseur (mm) Isolation entre-montant des murs : 160
Epaisseur (mm) Isolation extérieure des murs : 50

Isolation de la toiture

Epaisseur (mm) Isolation intérieure de la toiture : 200

Approche environnementale : Outre le large recours au bois dans les parties visibles, jusqu'aux parties communes en chêne massif, les façade thermiques en murs à ossature bois avec isolation répartie de 24cm apportent un véritable confort thermique et acoustique. La finition du bois de façade peint en usine, traditionnelle des pays nordiques, garantit une durabilité esthétique, quand la perspective de son vieillissement constitue souvent une réelle limite. Enfin, de grands espaces tampon tempérés ainsi que de larges terrasses plantées finalisent l'intégration du projet dans son environnement.

Descriptif technique : Le projet limite les points porteurs et intègre des séparatifs en cloisons légères type SAD180, conférant une réelle évolutivité. Son manteau en ossature bois semi-rideau est paré d'un bardage en tôle aluminium thermolaqué et d'une modénature de bois peint organisant les larges surfaces vitrées (36% de la SHAB). L'ensemble des éléments de façade en Douglas d'origine France ont été préfabriqués et peints en usine, par panneaux d'une hauteur d'étage et d'une longueur de 8m environ. Les logements sont organisés autour de noyaux humides intégrant les fluides et un chauffage à air pulsé. PEFC (Gestion forestière durable) FSC (Gestion forestière responsable) NF Contreplaqués (CTBX - CTBC) NF Parquets Marquage CE NF Logement Démarche HQE

Chauffage au Bois : non
Certifications, labels et marques bâtiment : Effinergie,Bois de France
Données déclaratives

Acteurs du projet

Maître d'ouvrage (2)

Maître d'ouvrage - État ou collectivité (locale et territ)

Samoa - Ile de Nantes (44)

Maître d'ouvrage - Promoteurs immobiliers privés

Bouygues Immobilier Atlantique (44)

Etudes et ingénieries (6)

Maître d'œuvre - Architecte mandataire

ATELIER MAXIME SCHMITT ARCHITECTE (75)

Bureau d'études acoustique

ACOUSTIBEL (35)

Bureau d'études structure bois

ATELIER MAXIME SCHMITT ARCHITECTE (75)
Serba Novam Ingénierie (85)

Bureau d'études thermique

THETIS BATIMENT (35) *

Economiste

Naonec (44)

Entreprises des lots bois (4)

Charpentier

Godard Charpente (44)

Menuisier

ENTREPRISE BREHERET (44) *

Constructeur bois

Godard Charpente (44)
Cruard Charpente Et Construction Bois (53)

Fournisseurs du bois (1)

Industriel

EURO LAMELLE (74) *




* : L'entreprise n'est plus active
Retour à la liste