Aménager
Aménager

Complexe Sportif René Char

84000 AVIGNON - Vaucluse - Provence Alpes Côte d'Azur

AMÉNAGEMENT BOIS

Aménagement intérieur

La qualité des lieux d’enseignement et de pratiques sportives est indissociable de leur qualité acoustique. Ainsi, dès la naissance du projet, nous avons pris le parti d’intégrer ces dispositifs d’absorption acoustique. Réalisés en bois, ces dispositifs participent également à l’ambiance lumineuse et ainsi au confort visuel.

Bâtiment / logement

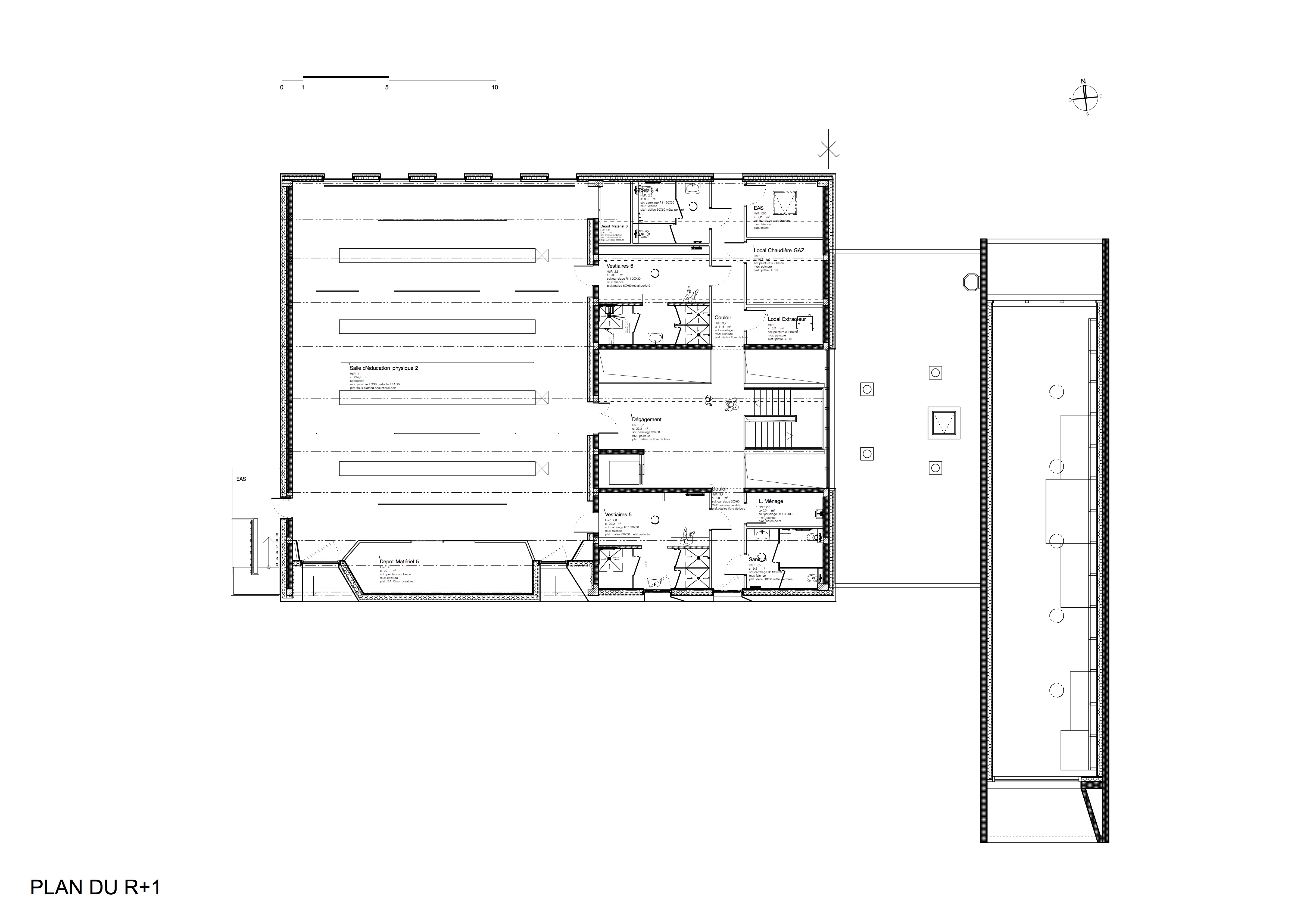
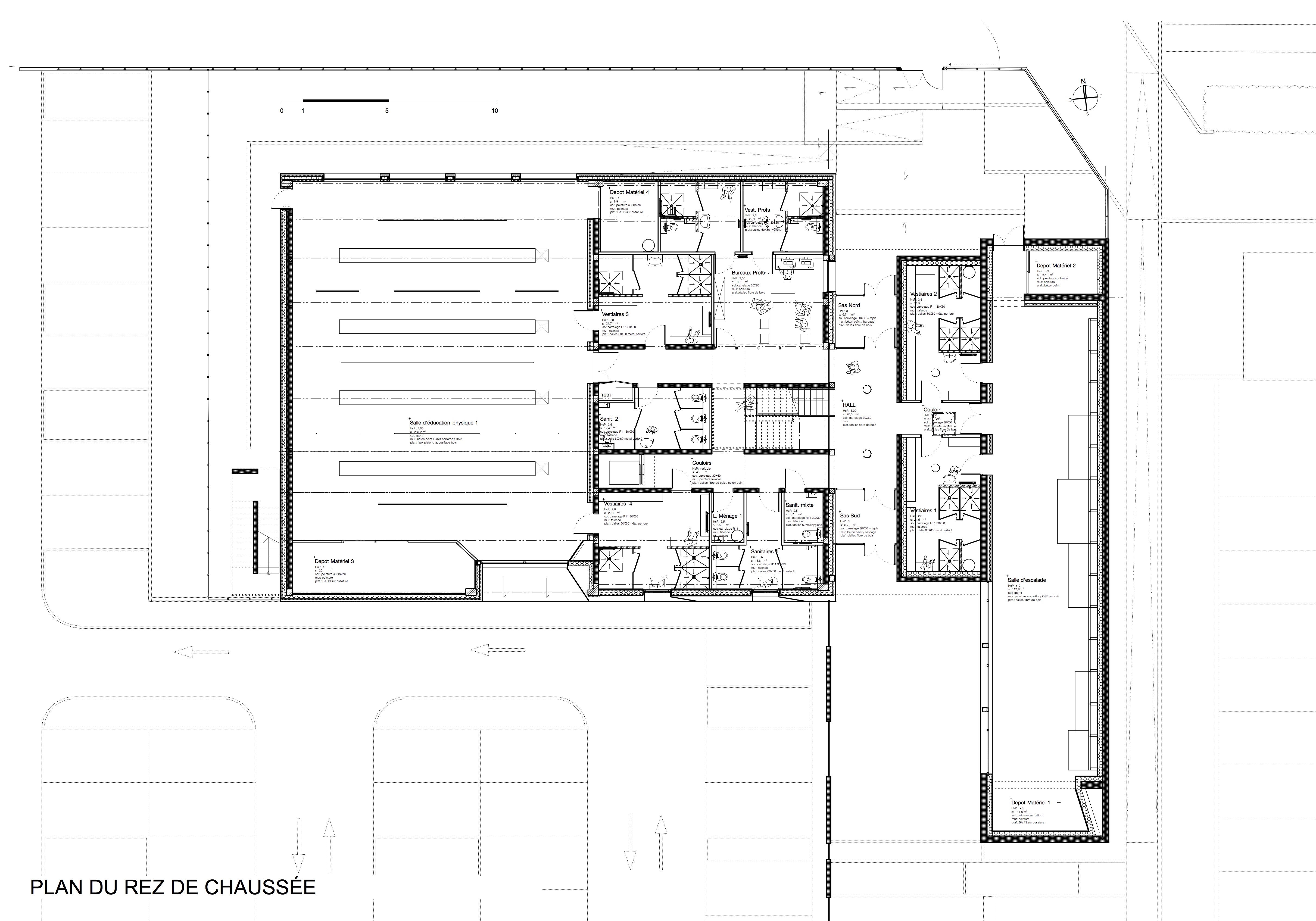
S'inspirant du parcours des Lycéens, un trait d’union paysager est dessiné sur un axe fort Nord-Sud. Placé sur cet axe, le hall à double entrée, délimite au Nord un parvis abrité (entrée publique) et au Sud un large mail (entrée des Lycéens et Enseignants). A l'Est du hall, un volume élancé en béton brut, souligne l’axe structurant et esquisse une direction. Il est destiné à la pratique de l'escalade. A l'Ouest, un volume plus horizontal, en mur ossature bois bardé, abrite les autres fonctionnalités du programme (les salles de danse, musculation, arts martiaux et vestiaires).

Catégorie aménagement bois, aménagement intérieur, Bâtiment / logement
Numéro de projet4109
Adresse du projet 2, rue Pierre Auguste Renoir
84000 AVIGNON
Date de candidature03/02/2020

aménagement bois

typologie : Enseignement ou éducation,Sport
Coût total en € HT : 432018

aménagement intérieur

Année de réalisation : 2020
Coût total Aménagement Intérieur en € HT : 432018
Coût lots bois en € HT : 204675
Volume bois m³ : 17
Surface aménagée en m² : 1150

Liste des produits :

ProduitEssenceProvenances (lieu de croissance du bois)Marque et certification produitFinition
Panneau acoustiqueTempéréEuropeTropicalAucune finition
Bois Français : non

Approche environnementale : Le choix des matériaux de finition intérieure a été guidé par une démarche environnementale. Le sol sportif est en caoutchouc. L’isolant intérieur est en laine de bois. Les revêtements acoustiques sont en bois sans finition ajoutée. Les menuiseries intérieures sont en bois. De plus, le projet est équipé de dispositifs générant, sur le long terme, des économies d’énergie. En effet, la quasi-totalité des espaces bénéfice de lumière naturelle (fenêtre ou puits de lumière). Le renouvellement d’air est assuré par un système autoréglage d’aérateur compact intégré dans les montants des fenêtres.

Descriptif technique de l'aménagement : Les salles de sports sont équipées de deux types de dispositifs d’absorption acoustique, l’un est vertical, l’autre est horizontal. Le premier est composé d’un complexe de laine de roche + panneaux OSB brut perforé, réalisé sur-mesure en atelier. Le deuxième se déploie sur les plafonds et est composé du complexe laine de verre + tasseaux de bois laissés bruts. Les dispositifs de chauffage et d’éclairage y sont intégrés. Pour finir, les plafonds des circulations sont habillés de panneaux démontables de fibre de bois.

Bâtiment / logement

Détail projet

Typologie de bâtiment : Neuf
Type de bâtiment : Enseignement ou éducation,Sport
Année de livraison : 2020
Surface totale du bâtiment en m² : 1150
Coût total en € HT (hors foncier, hors VRD, hors honoraires) : 1904639
Lot bois n°1 concerné : ossature bois
Volume lot bois n°1 - m³ : 39
Coût du lot bois n°1 - € HT : 248834
Lot bois n°2 concerné : Menuiserie intérieure bois
Volume lot bois n°2 - m³ : 17
Coût du lot bois n°2 - € HT : 204675
Bois Français : non
Isolations biosourcées (préciser dans le descriptif technique) : oui
Finitions intéreures biosourcées ou géosourcées (préciser dans le descriptif technique) : oui

Structure bois du bâtiment

Structure verticale :

ProduitEssenceProvenances (lieu de croissance du bois)Traitements de préservationMarque et certification produit
Panneau ossature boisÉpicéa communEuropeTraitement Classe 2 (trempage)

Structure horizontale :

ProduitEssenceProvenances (lieu de croissance du bois)Traitements de préservationMarque et certification produit
Plancher béton

Charpente :

ProduitEssenceProvenances (lieu de croissance du bois)Traitements de préservationMarque et certification produit
Charpente non bois

Revêtement bois extérieur

Revêtement bois ou dérivés :

ProduitEssenceProvenances (lieu de croissance du bois)Marque et certification produitFinitionTraitements de préservation
Panneau de synthèse ou compositeEurope

Menuiserie intérieure et extérieure

Isolation des murs

Isolation intérieure des murs :

Produit
Fibre de bois (Panneaux)
Epaisseur (mm) Isolation intérieure des murs : 50

Isolation entre-montant des murs :

Produit
Laine de chanvre
Laine de roche
Epaisseur (mm) Isolation entre-montant des murs : 145

Isolation extérieure des murs :

Produit
Laine de roche
Epaisseur (mm) Isolation extérieure des murs : 60

Isolation de la toiture

Epaisseur (mm) Isolation extérieure de la toiture : 260

Approche environnementale : L’implantation du projet, permet à toutes les salles de sport de bénéficier d’une double orientation Nord-Sud, et ainsi, optimiser les apports de lumière naturelle, les apports solaires thermiques au Sud et la ventilation naturelle. La maitrise du fort soleil d’été méditerranée se fait de façon passive grâce à un dessin précis des façades sud. En effet, elles sont percées d'ouvertures à embrasures chanfreinées, portant ombre sur les vitrages en saison chaude et apportant, aux espaces, une lumière appropriée et maitrisée. Le projet est labellisé Bâtiment Durable Méditerranéen Argent.

Descriptif technique : A l’image du parti architectural, le bâtiment se décompose en 2 entités structurelles. La première entité, constituée d’une enveloppe porteuse en béton brut matricé isolée par l’intérieur, s’oppose à la deuxième qui met en œuvre la « mixité structurelle ». En effet, elle est composée de 3 refends et un plancher béton, amenant inertie thermique et contreventement. La toiture est un bac acier isolé et étanché, posé sur une charpente métallique. Les façades Nord et Sud sont remplies de murs ossatures bois fabriqués et isolés en atelier. Les façades Est et Ouest sont isolées par l’extérieur.

Chauffage au Bois : oui
Données déclaratives

Acteurs du projet

Maître d'ouvrage (2)

Maître d'ouvrage - État ou collectivité (locale et territ)

Conseil Régional PACA (13)
AREA PACA (13)

Etudes et ingénieries (8)

Maître d'œuvre - Architecte mandataire

MV ARCHITECTES (13)

Bureau d'études acoustique

VENATHEC (54)

Bureau d'études structure bois

E.TECH. BOIS (05)

Bureau d'études environnement

BE SOL.A.I.R (13)

Bureau d'études thermique

BE SOL.A.I.R (13)

Economiste

VERDI INGENIERIE MEDITERRANEE (13)

Designer / architecte d'intérieur

MV ARCHITECTES (13)

Paysagiste

CALLARD Benjamin (13)

Entreprises des lots bois (2)

Menuisier

BASSEREAU (84)

Constructeur bois

TRIANGLE SCOP SA (13)




* : L'entreprise n'est plus active
Retour à la liste