Habiter ensemble

17 logements sociaux

95880 ENGHIEN LES BAINS - Val d'Oise - Ile de France

BÂTIMENT / LOGEMENT

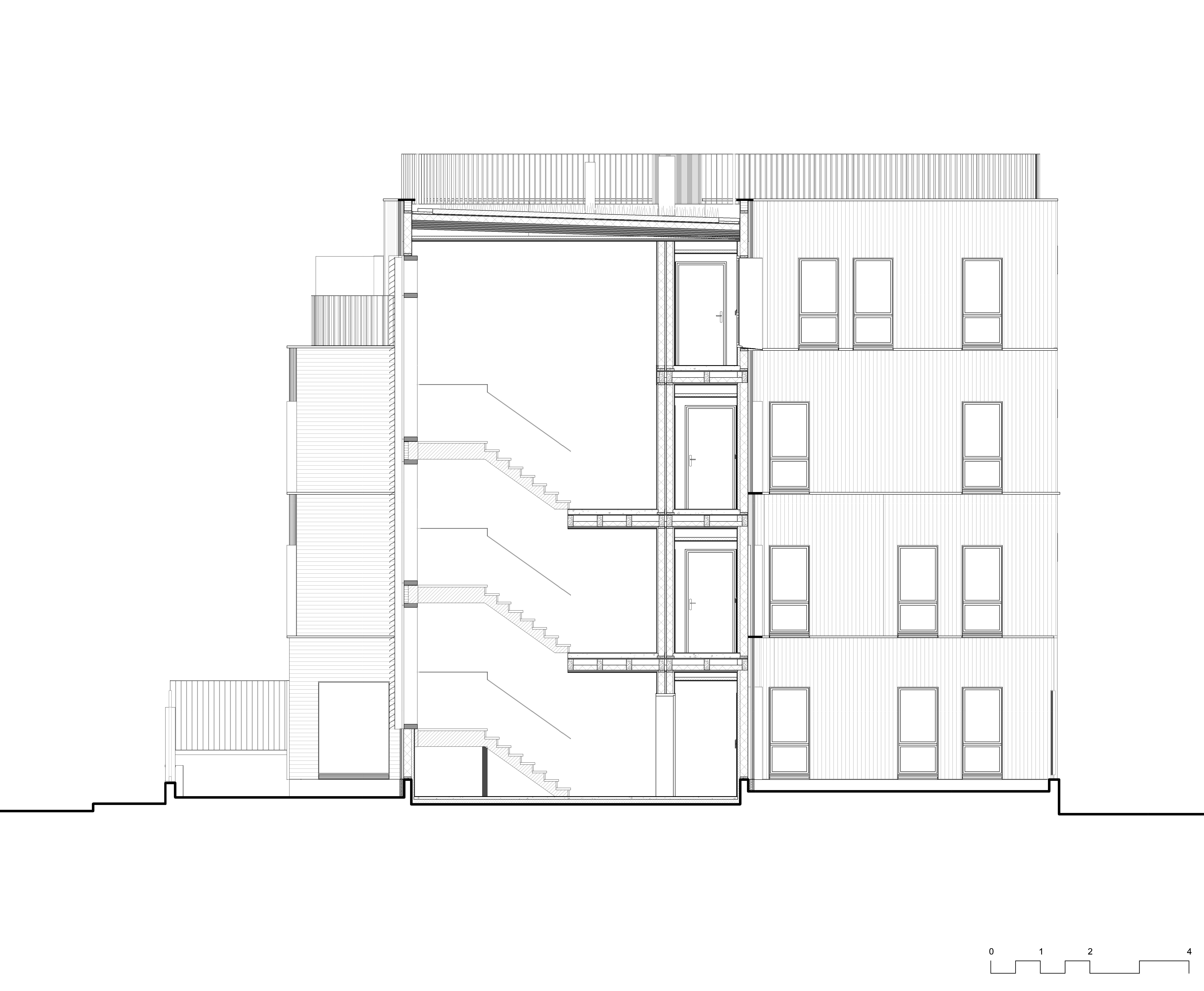
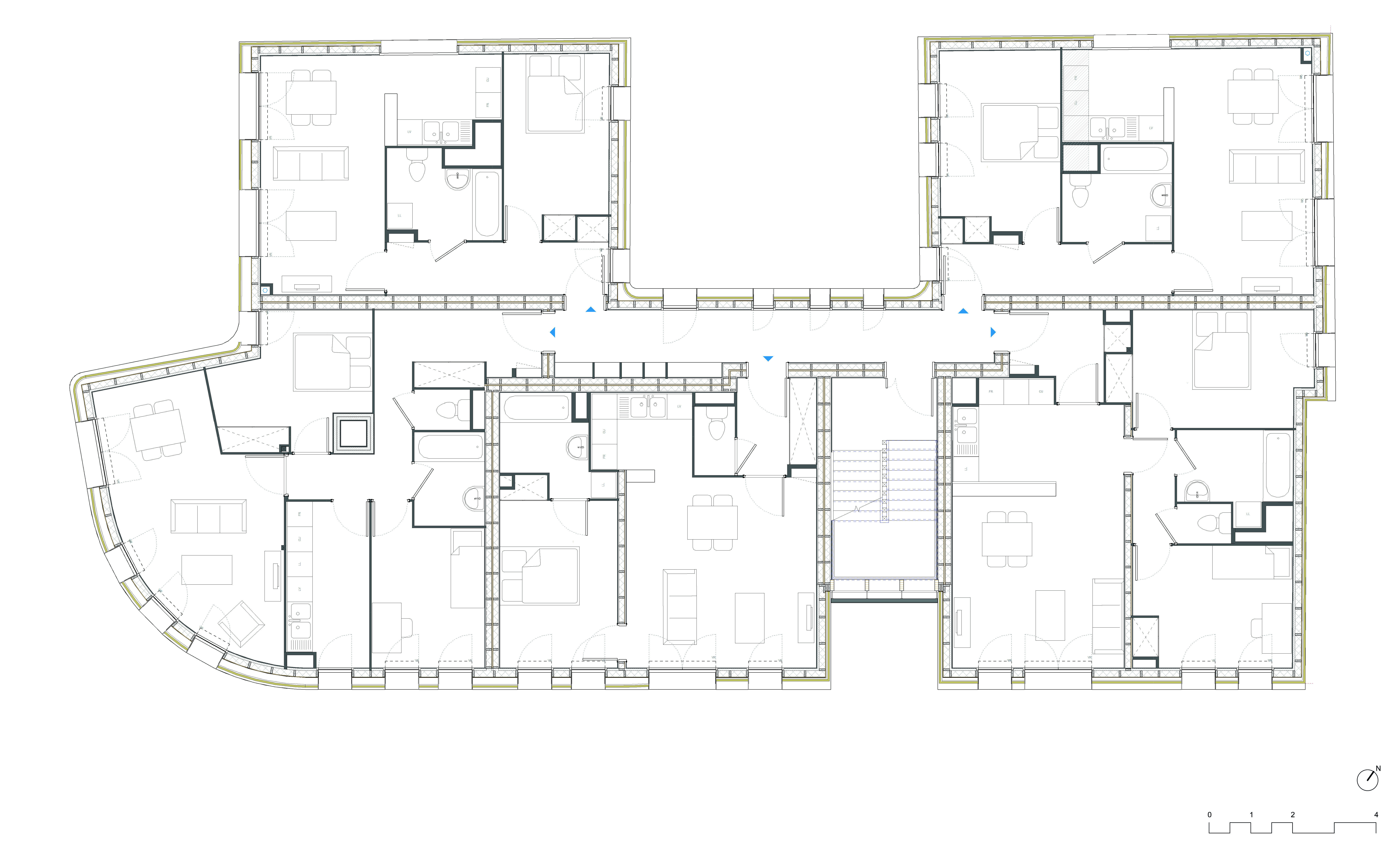
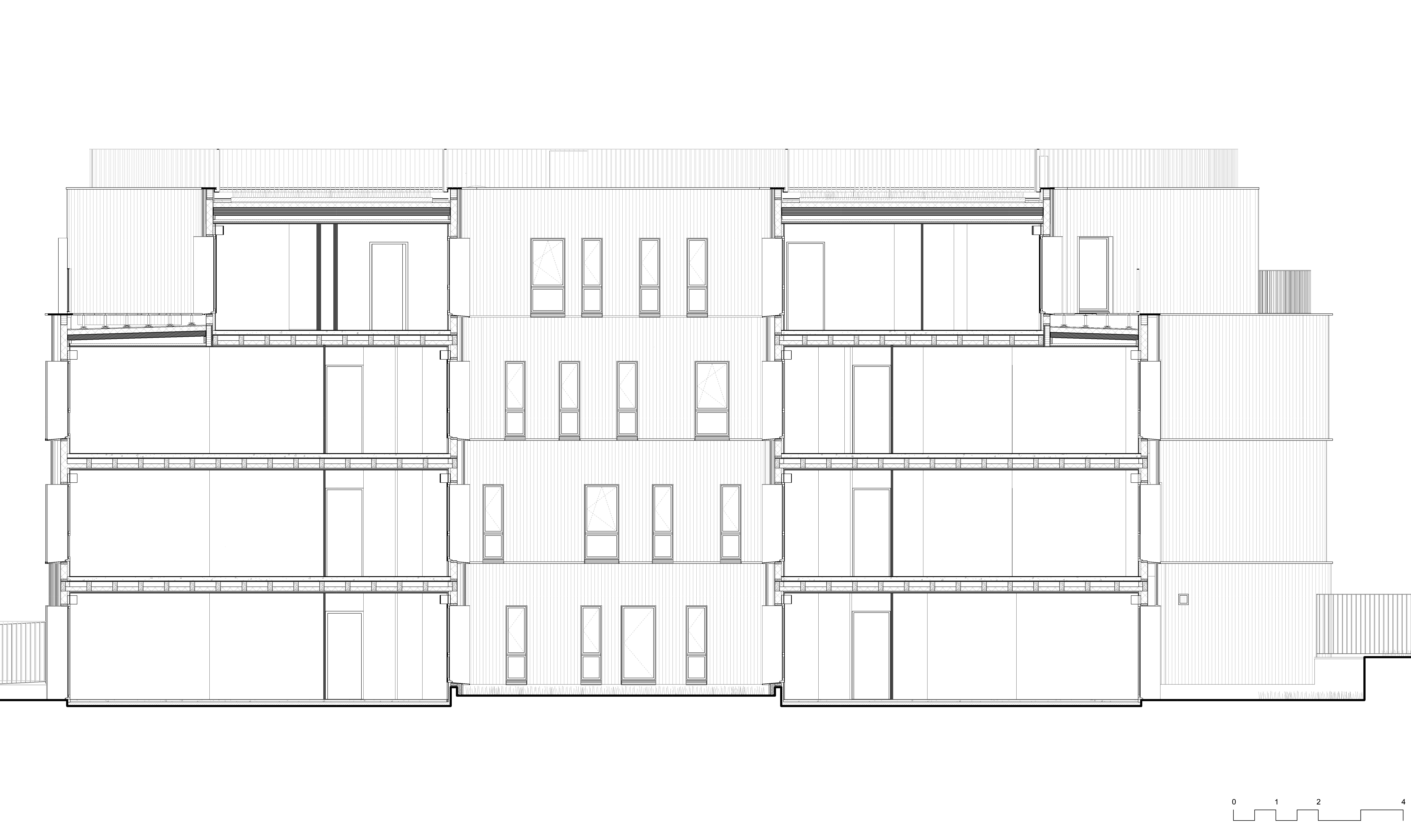
Ce bâtiment de 17 logements sociaux est entièrement construit en bois. Il est composé selon une graduation à partir d’un socle de morphologie régulière de trois niveaux qui vient marquer l’angle par un doux arrondi de façade, et sur lequel vient s’implanter un attique en dégradés. L’écriture se veut sobre par la limitation du nombre de matériaux en façade, et résolument contemporaine par un dessin soigné et fort des lignes fluides et constitutives de sa forme en courbes concises ou marquées, ainsi que par la rigueur de la trame sur laquelle les différents éléments de façades sont implantés.

Catégorie Bâtiment / logement
Numéro de projet4128
Adresse du projet 43 avenue de la Coussaye
95880 ENGHIEN LES BAINS
Date de candidature05/02/2020

Bâtiment / logement

Détail projet

Typologie de bâtiment : Neuf
Type de bâtiment : Logement collectif
Année de livraison : 2019
Surface totale du bâtiment en m² : 998
Coût total en € HT (hors foncier, hors VRD, hors honoraires) : 1880000
Lot bois n°1 concerné : ossature bois
Coût du lot bois n°1 - € HT : 483000
Lot bois n°2 concerné : Bardage bois
Coût du lot bois n°2 - € HT : 133
Bois Français : oui
Isolations biosourcées (préciser dans le descriptif technique) : non
Finitions intéreures biosourcées ou géosourcées (préciser dans le descriptif technique) : non

Structure bois du bâtiment

Structure verticale :

ProduitEssenceProvenances (lieu de croissance du bois)Traitements de préservationMarque et certification produit
Panneau ossature bois

Structure horizontale :

ProduitEssenceProvenances (lieu de croissance du bois)Traitements de préservationMarque et certification produit
Plancher mixte bois-béton
Panneau de bois massif (CLT collé ou CLT cloué)

Charpente :

ProduitEssenceProvenances (lieu de croissance du bois)Traitements de préservationMarque et certification produit
Charpente traditionnelle

Revêtement bois extérieur

Revêtement bois ou dérivés :

ProduitEssenceProvenances (lieu de croissance du bois)Marque et certification produitFinitionTraitements de préservation
Lame bois massif

Menuiserie intérieure et extérieure

Menuiserie extérieure :

ProduitEssenceProvenances (lieu de croissance du bois)Marque et certification produitFinition
Menuiserie mixte

Isolation des murs

Isolation intérieure des murs :

Produit
Laine de roche

Isolation de la toiture

Approche environnementale : La première approche est celle de l’insertion dans un contexte constitué d’un bâtis diffus anguleux en lisière d’un petit bois parc, et dans lequel le bâtiment marque un jalon plus doux. Un travail fin a été réalisé pour rapprocher perception des matériaux, dont le bois omniprésent, avec les cadrages et les séquences que les parcours offrent. Les drapés des façades qui s’enroulent sans paraître se superposé réintroduit la sensualité du matériaux bois dans une construction qui par son programme doit être maîtrisée.

Descriptif technique : Structure bois : plancher connectés à caisson, murs à ossatures bois, toiture en panneau de bois massifs. Bardage en lames de bois verticales avec des courbures variables entre les étages, à faux clairevoie, et sur des façades à l'aplomb. NF Logement Habitat et Environnement

Chauffage au Bois : non
Données déclaratives

Acteurs du projet

Maître d'ouvrage (1)

Maître d'ouvrage - Bailleur social privé

ICF Habitat (75)

Etudes et ingénieries (2)

Maître d'œuvre - Architecte mandataire

Thibaut Robert Architectes & Associés (75)

Bureau d'études structure bois

BET LIGOT (95)

Entreprises des lots bois (1)

Constructeur bois

OSSABOIS (88)




* : L'entreprise n'est plus active
Retour à la liste