Aménager
Aménager

Aménagements Accueil & Salle de créativité, Ecole Supérieure du Bois

44306 Nantes - Loire Atlantique - Pays de la Loire

AMÉNAGEMENT BOIS

Aménagement intérieur

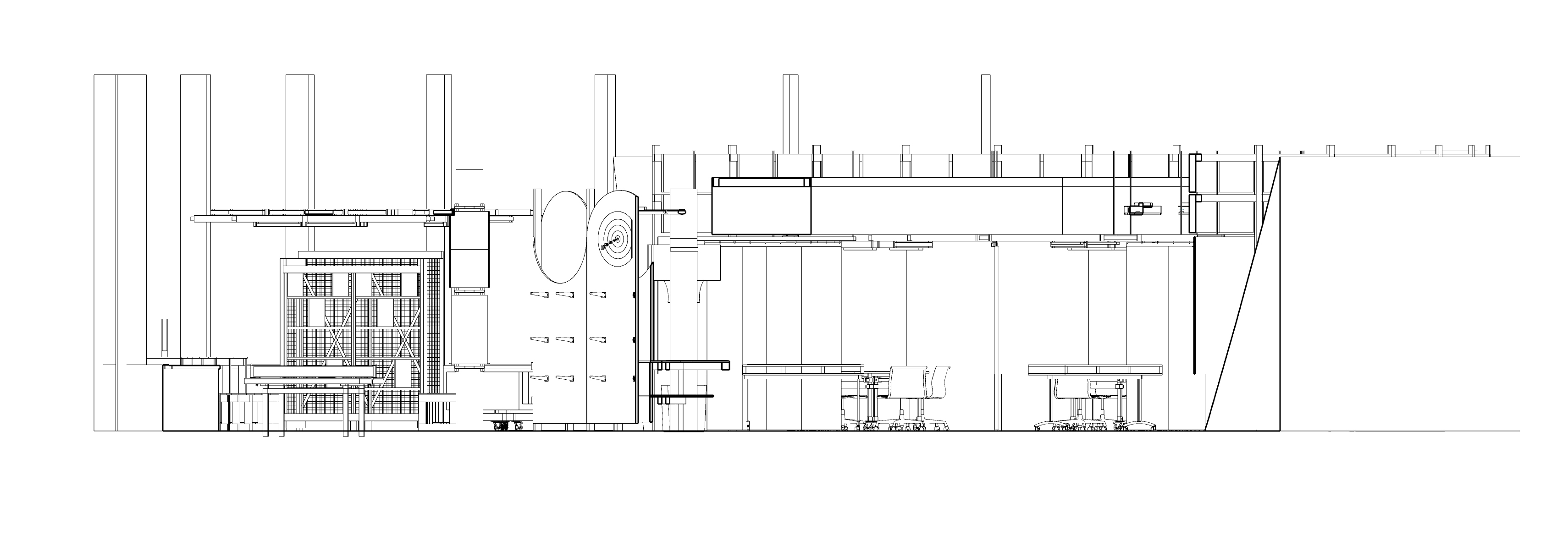
Il s’agit de réaménager un CDI en salle de créativité et de repenser l’espace d’accueil de l’Ecole, avec la création d’une microarchitecture Intention architecturale et design : pédagogie, esprit maker et projet d’enseignement. Pédagogie des formes et techniques : comprendre le fonctionnement de l’architecture et être dans une atmosphère DIY pour la salle de créativité ; technique d’assemblage visible pour le nouvel espace d’accueil. Esprit maker par la mixité et la valorisation des matériaux, le détournement de certains systèmes. Projet d’enseignement par l’implication d’étudiants de l’Ecole

Catégorie aménagement bois, aménagement intérieur
Numéro de projet4227
Adresse du projet Ecole Supérieure du Bois
7, rue Christian Pauc
BP 10 605
44306 Nantes
Date de candidature14/02/2020

aménagement bois

aménagement intérieur

Année de réalisation : 2020
Surface aménagée en m² : 20

Liste des produits :

ProduitEssenceProvenances (lieu de croissance du bois)Marque et certification produitFinition
Panneau massif d'agencementPeuplier
MobilierPays-de-la-Loire
Bois Français : oui

Approche environnementale : Utilisation de bois et matériaux naturels : montants d’ossature, panneaux contreplaqué peuplier, Marmoleum (pour le sol et le revêtement des tables / salle de créativité), laine de bois pour isolation. Les éléments ont été fabriqués dans les locaux de l’Ecole, ou dans l’atelier des Barreau Charbonnet (moins de 5 kms). Le réemploi de mobilier et/ou détournement de leur usage initial ou customisation a également été valorisé le plus possible : ex espace zen de la salle de créativité réalisé à partir de mobilier de réemploi ; pieds des fauteuils détournés en porte-manteaux

Descriptif technique de l'aménagement : Pour l’espace d’accueil, la micro architecture bois « à la Jean Prouvé » est entièrement démontable, déplaçable, facilement recyclable, autoportante. Aucune maçonnerie, assemblage avec sangles ou vitrages serrés sans colle. Les pièces de raccord et les techniques constructives sont magnifiées dans l’esthétique du projet. L’expression du bois est valorisée par l’huile teintée, qui révèle le veinage du peuplier. L’optimisation de la matière est également toujours recherchée ; la forme est créée par le besoin mais également par l’optimisation de la matière : le panneau acoustique devient luminaire dans la salle de créativité ; l’ancienne étagère à livre, customisée, devient cloison de séparation

Des matériaux issus du ré-emploi ont été utilisés dans le projet : non
Données déclaratives

Acteurs du projet

Maître d'ouvrage (3)

Maître d'ouvrage - État ou collectivité (locale et territ)

Ecole Supérieure Du Bois (44)

Autres

MyWoodenlife (75)
MyWoodenlife / Marie Cécile Pinson (75)

Etudes et ingénieries (3)

Maître d'œuvre - Architecte mandataire

Alter Smith (44)

Bureau d'études acoustique

Plateforme Régionale d'Innovation Bois Hd (44) *

Designer / architecte d'intérieur

Barreau et Charbonnet (44)

Fournisseurs du bois (2)

Industriel

ISB – SILVERWOOD – CARIB (35)
THEBAULT JEAN (79)




* : L'entreprise n'est plus active
Retour à la liste