Habiter ensemble
Habiter ensemble

RESIDENCE SOCIALE 126 LOGEMENTS - COALLIA HABITAT

93100 MONTREUIL - Seine Saint Denis - Ile de France

BÂTIMENT / LOGEMENT

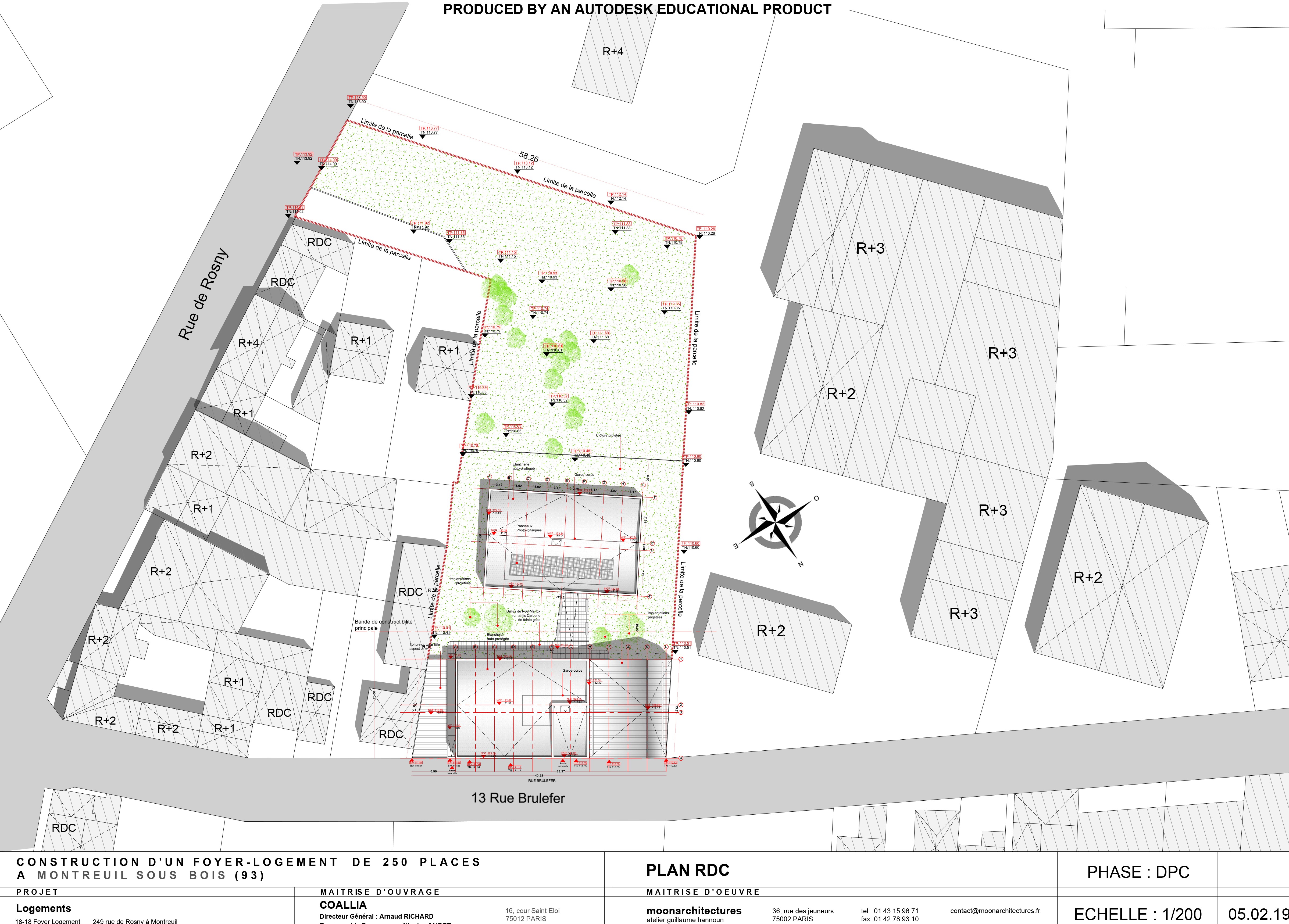
Le projet répond avant tout à une problématique : comment loger une population de 250 personnes dont la résidence a été classée en état d’insalubrité, le plus rapidement possible ? Notre proposition consiste à proposer un bâtiment pérenne, offrant toutes les caractéristiques d’un bâtiment de logements pérenne (respect des normes thermiques, acoustiques, feu, garantie décennale, etc.) mais dont la spécificité consiste à le construire dans un atelier afin d’accélérer le processus de mise en oeuvre. Dès lors, depuis les premières esquisses jusqu’à la livraison finale, tout est mis en oeuvre pour que le projet se réalise dans les meilleurs délais. Ainsi, entre nos premières esquisses et l’arrivée des résidents dans le bâtiment, il se sera déroulé moins d’un an. Cette accélération du délai de réalisation, incluant la conception, la mise au point du projet, la consultation des entreprises et l’ensemble de la mise en oeuvre n’est possible que grâce à notre parfaite maîtrise des systèmes de construction industrialisés.Pourtant, contrairement aux idées reçues, notre volonté de faire de l’architecture reste intacte et parfaitement compatible avec l’industrialisation de la construction. Ainsi, notre approche architecturale sur ce projet consiste, une fois le programme intégré, en un travail contextuel, visant à intégrer au mieux ce programme dans son environnement sans toutefois oblitérer le potentiel de la parcelle pour de futures constructions, incluant, ou non, notre projet.

Catégorie Bâtiment / logement
Numéro de projet4379
Adresse du projet 13 rue brulefer
93100 MONTREUIL
Date de candidature20/02/2020

Bâtiment / logement

Détail projet

Typologie de bâtiment : Neuf
Type de bâtiment : Logement collectif
Année de livraison : 2020
Surface totale du bâtiment en m² : 3032
Coût total en € HT (hors foncier, hors VRD, hors honoraires) : 5377782
Lot bois n°1 concerné : ossature bois
Volume lot bois n°1 - m³ : 350
Coût du lot bois n°1 - € HT : 1669000
Lot bois n°2 concerné : Bardage bois
Volume lot bois n°2 - m³ : 14
Coût du lot bois n°2 - € HT : 96000
Bois Français : oui
Isolations biosourcées (préciser dans le descriptif technique) : non
Finitions intéreures biosourcées ou géosourcées (préciser dans le descriptif technique) : non

Structure bois du bâtiment

Structure verticale :

ProduitEssenceProvenances (lieu de croissance du bois)Traitements de préservationMarque et certification produit
Panneau ossature boisEuropeTraitement Classe 2 (trempage)

Structure horizontale :

ProduitEssenceProvenances (lieu de croissance du bois)Traitements de préservationMarque et certification produit
Poutre en I ou mixteÉpicéa communEuropeTraitement Classe 2 (trempage)

Charpente :

ProduitEssenceProvenances (lieu de croissance du bois)Traitements de préservationMarque et certification produit
Charpente industrielleÉpicéa communEuropeJe n'ai pas l'information

Revêtement bois extérieur

Revêtement bois ou dérivés :

ProduitEssenceProvenances (lieu de croissance du bois)Marque et certification produitFinitionTraitements de préservation
Lame bois massifÉpicéa communEuropeTropicalLasureJe n'ai pas l'information

Autre revêtement métallique :

Produit
Acier
Alu

Menuiserie intérieure et extérieure

Isolation des murs

Isolation entre-montant des murs :

Produit
Laine de roche
Epaisseur (mm) Isolation entre-montant des murs : 145

Isolation de la toiture

Epaisseur (mm) Isolation intérieure de la toiture : 100

Approche environnementale : Le tissu urbain environnant est assez hétérogène, constitué d’une part de pavillons, mais également de grands bâtiments de logements en R+4 ou encore de construction industrielle de type hangar logistique ou ateliers de fabrication. Dans ce contexte, notre projet se présente comme une hybridation de ces typologies, mélangeant la volumétrie typique d’un pavillon, avec une toiture marquée et une volumétrie s’apparentant plus à de l’habitat collectif . La parcelle qui abritera le futur projet de foyer logement contient actuellement 17 arbres dont 1 qui sera remplacé par deux arbres de type 12/14. Pour animer le volet paysager, nous avons opté pour l’implantation et la végétalisation de la cour qui sépare les deux bâtiments projetés avec l’implantation de 2 arbres.

Descriptif technique : Pour répondre à ce programme, aux délais impartis et aux enjeux financiers, nous avons réalisé une partie importante de la construction en « hors site ». Ainsi le projet a été réalisé à plus de 50% dans un atelier, avec une mise en oeuvre fiable de matériaux résistants. De plus, cela a permis de construire les 3000m2 de plancher en moins de 6 mois. Enfin, le système est entièrement réversible et déplaçable si nécessaire, tout en répondant à l’ensemble des normes de la construction traditionnelle : stabilité au feu, garantie décennale, réglementation thermiques, …* PEFC (Gestion forestière durable) FSC (Gestion forestière responsable)

Chauffage au Bois : non
Données déclaratives

Acteurs du projet

Maître d'ouvrage (2)

Maître d'ouvrage - Bailleur social privé

Coallia (75)

Maître d'ouvrage - Promoteurs immobiliers privés

Coallia (75)

Etudes et ingénieries (4)

Maître d'œuvre - Architecte mandataire

MOONARCHITECTURES (75)

Bureau d'études structure bois

STEBAT (73)

Bureau d'études environnement

GEOTEC FRANCE (69)

Bureau d'études thermique

Alabiso Ingenierie (34)

Entreprises des lots bois (2)

Charpentier

EBC EXPERT CHARPENTE (95)

Constructeur bois

OSSABOIS (42)




* : L'entreprise n'est plus active
Retour à la liste