Travailler – accueillir
Travailler – accueillir

Ecoconstruction du poste technique PR5, collecteur des vallées de la theve et de l'ysieux

60560 Ory-la-ville - Oise - Hauts-de-France

BÂTIMENT / LOGEMENT

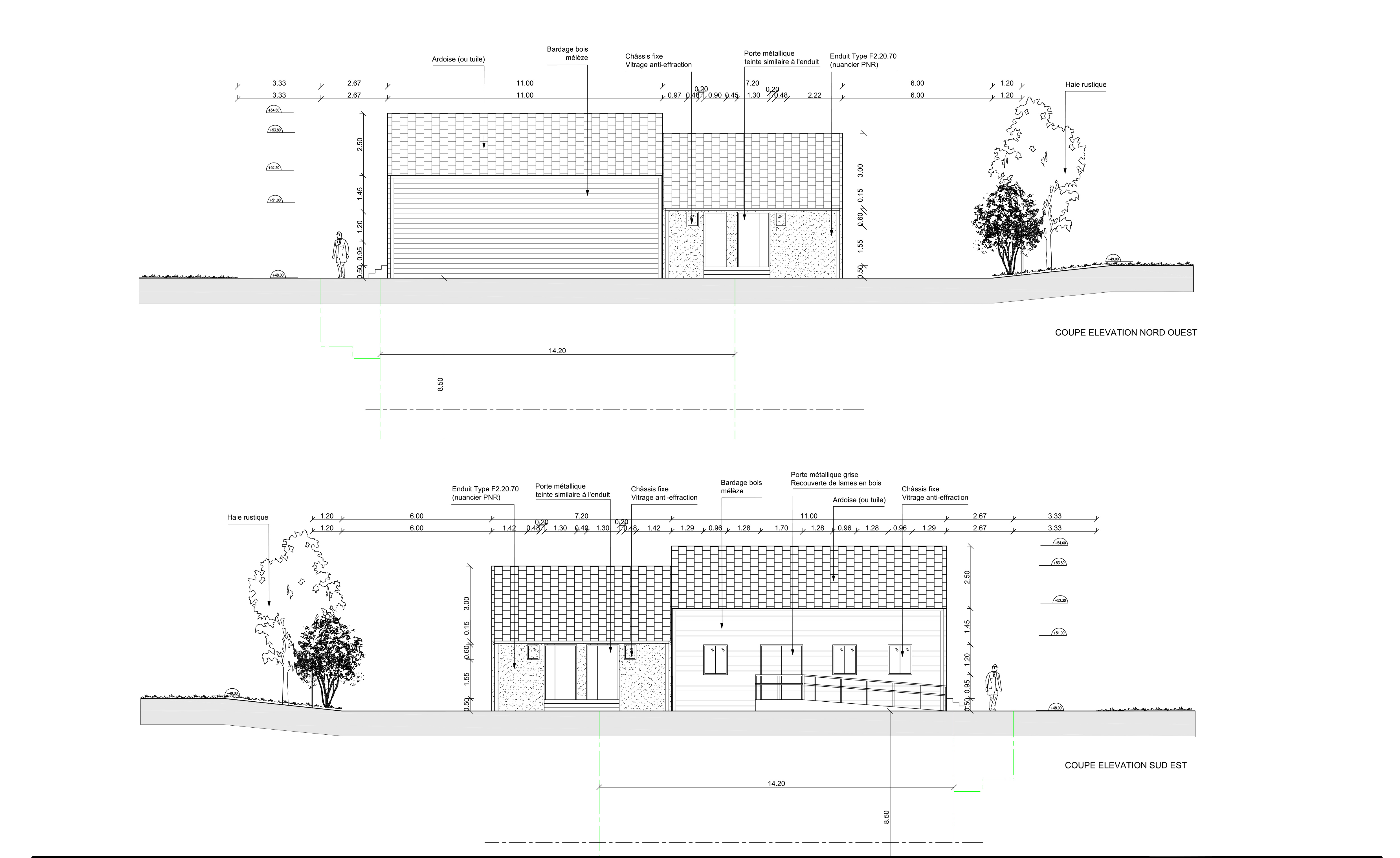
Le projet du Poste Technique PR5 s’inscrit dans le projet d’extension de la station d’épuration de Coye-La-Forêt porté par le Syndicat Intercommunal pour la Collecte et le Traitement des Eaux Usées des Bassins de la Thève et de l’Ysieux ( le SICTEUB ). Le projet se situe dans un site rural à la frontière entre des zones urbaines (habitations à 100m) et des zones naturelles (sous-bois, plaines agricoles, etc…) Le bâtiment conçu par AR ARCHITECTES, inspiré de l’architecture agricole, s’insère harmonieusement dans le paysage grâce à sa volumétrie et à sa matérialité.

Catégorie Bâtiment / logement
Numéro de projet4402
Adresse du projet 60560 Ory-la-ville
Date de candidature21/02/2020

Bâtiment / logement

Détail projet

Typologie de bâtiment : Neuf
Type de bâtiment : Industrie et commerce
Année de livraison : 2018
Surface totale du bâtiment en m² : 100
Lot bois n°1 concerné : Bardage bois
Volume lot bois n°1 - m³ : 6
Lot bois n°2 concerné : Charpente bois
Volume lot bois n°2 - m³ : 2
Bois Français : oui
Isolations biosourcées (préciser dans le descriptif technique) : oui
Finitions intéreures biosourcées ou géosourcées (préciser dans le descriptif technique) : non

Structure bois du bâtiment

Structure verticale :

ProduitEssenceProvenances (lieu de croissance du bois)Traitements de préservationMarque et certification produit
Non précisé

Structure horizontale :

ProduitEssenceProvenances (lieu de croissance du bois)Traitements de préservationMarque et certification produit
Plancher béton

Charpente :

ProduitEssenceProvenances (lieu de croissance du bois)Traitements de préservationMarque et certification produit
Charpente traditionnellePin sylvestreTraitement Classe 4 (autoclave)

Revêtement bois extérieur

Revêtement bois ou dérivés :

ProduitEssenceProvenances (lieu de croissance du bois)Marque et certification produitFinitionTraitements de préservation
Bardeau boisMélèzeFranceAucun traitement

Menuiserie intérieure et extérieure

Menuiserie extérieure :

ProduitEssenceProvenances (lieu de croissance du bois)Marque et certification produitFinition
Volet boisSapin pectinéFrance
Menuiserie mixteMélèzeFranceLasure

Isolation des murs

Isolation intérieure des murs :

Produit
Laine de bois souple
Fibre de bois (Panneaux)
Epaisseur (mm) Isolation intérieure des murs : 70

Isolation extérieure des murs :

Produit
Fibre de bois (Panneaux)
Epaisseur (mm) Isolation extérieure des murs : 40

Isolation de la toiture

Epaisseur (mm) Isolation intérieure de la toiture : 119

Approche environnementale : AR ARCHITECTES, spécialisé en écoconstruction et démarche HQE®, s’est inspiré de l’environnement rural et agricole avoisinant le site pour proposer un volume rappelant une longère. Ce bâtiment est réalisé avec des matériaux biosourcés. Grâce à l’isolation en fibre et laine de bois ainsi qu’au bardage en pin, à la charpente en mélèze, et aux menuiseries et volets, le bois est omniprésent dans le projet. Il permet un dialogue avec l’espace rural, et harmonise le PR avec son environnement. L’utilisation de matériaux biosourcé participe au respect des zones naturelles protégées proches du site.

Descriptif technique : Le Poste Technique PR5 est constitué de deux entités. La partie enterrée est en béton, elle contient la cuve du poste de refoulement. La partie hors-sol contient le local électrique, le local aération, le local transfo et le local de l’exploitant. Les murs en béton sont recouverts d'isolation en fibre de bois puis de bardage en bois de mélèze, tandis qu’une charpente également en bois supporte la couverture de tuile plate. L’isolation des parois, extérieure où intérieure est réalisée en matériaux biosourcé : fibre de bois ou laine de bois.

Chauffage au Bois : non
Données déclaratives

Acteurs du projet

Maître d'ouvrage (1)

Maître d'ouvrage - Services publics

SICTEUB (95) *

Etudes et ingénieries (2)

Maître d'œuvre - Architecte mandataire

NALDEO 78 (78)

Maître d’œuvre - Architecte associé

AR ARCHITECTES (75)

Entreprises des lots bois (4)

Charpentier

Sarl Ecb (Economie & Coordination En Bâtiments) (44)

Menuisier

Sarl Ecb (Economie & Coordination En Bâtiments) (44)

Constructeur bois

Sarl Ecb (Economie & Coordination En Bâtiments) (44)

Autre lot de la construction (en lien avec le bois)

Sarl Ecb (Economie & Coordination En Bâtiments) (44)




* : L'entreprise n'est plus active
Retour à la liste