Réhabiliter un équipement
Réhabiliter un équipement

Salle des Fêtes de Limeyrat

24210 LIMEYRAT - Dordogne - Nouvelle-Aquitaine

BÂTIMENT / LOGEMENT

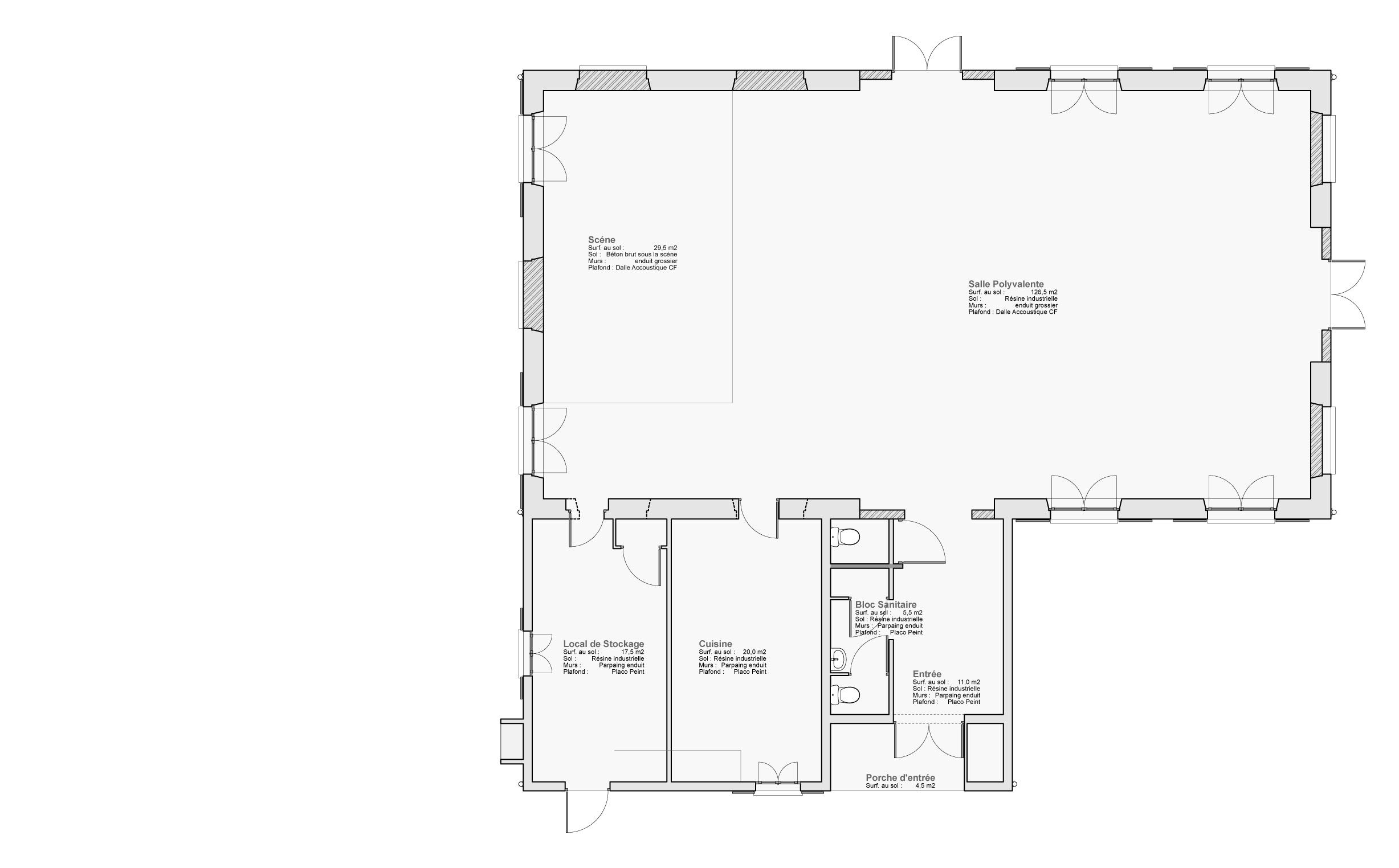
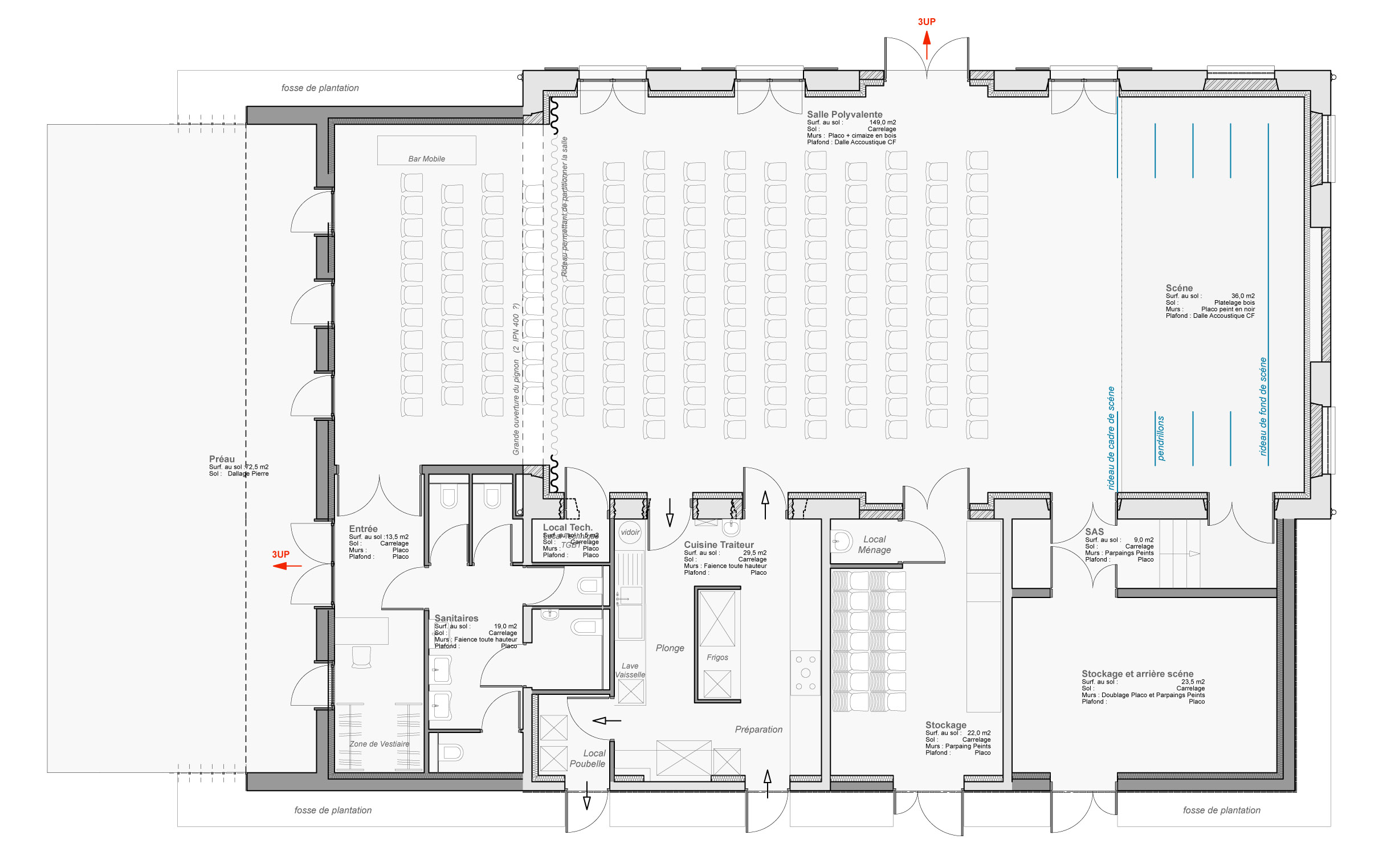
Le projet concerne la restructuration et l'agrandissement de la salle des fêtes de Limeyrat. Situé au cœur du bourg, cette salle polyvalente occupe le RdC d’un ancien séchoir à tabac auquel avait été adjoint une petite extension disgracieuse qui abritait un hall d’entrée et toutes les fonctions « servantes » de la salle (sanitaires, cuisine traiteur, local de stockage). Au delà de la mise en conformité et afin d’exprimer le renouveau de cet équipement, cette restructuration fut l'occasion de redisposer une entrée plus naturelle et plus généreuse en façade Sud, mais surtout de rééquilibrer les volumes en extension pour mettre en valeur le volume massif du séchoir et sa belle modénature architecturale en pierre de taille.

Catégorie Bâtiment / logement
Numéro de projet4412
Adresse du projet Le Bourg
24210 LIMEYRAT
Date de candidature23/02/2020

Bâtiment / logement

Détail projet

Typologie de bâtiment : Extension / surélévation,Rénovation / Réhabilitation
Type de bâtiment : Loisirs,Culture
Année de livraison : 2018
Surface totale du bâtiment en m² : 478
Coût total en € HT (hors foncier, hors VRD, hors honoraires) : 364000
Lot bois n°1 concerné : Bardage bois
Volume lot bois n°1 - m³ : 1.5
Coût du lot bois n°1 - € HT : 6500
Lot bois n°2 concerné : Menuiserie extérieure bois
Volume lot bois n°2 - m³ : 1
Coût du lot bois n°2 - € HT : 10500
Bois Français : non
Isolations biosourcées (préciser dans le descriptif technique) : non
Finitions intéreures biosourcées ou géosourcées (préciser dans le descriptif technique) : non

Structure bois du bâtiment

Structure verticale :

ProduitEssenceProvenances (lieu de croissance du bois)Traitements de préservationMarque et certification produit
Non précisé

Structure horizontale :

ProduitEssenceProvenances (lieu de croissance du bois)Traitements de préservationMarque et certification produit
Non préciséTempéréAucune

Charpente :

ProduitEssenceProvenances (lieu de croissance du bois)Traitements de préservationMarque et certification produit
Charpente traditionnelleSapin pectinéEuropeJe n'ai pas l'information

Revêtement bois extérieur

Revêtement bois ou dérivés :

ProduitEssenceProvenances (lieu de croissance du bois)Marque et certification produitFinitionTraitements de préservation
Lame bois massifMélèzeEuropeTropicalSaturateurJe n'ai pas l'information

Menuiserie intérieure et extérieure

Menuiserie extérieure :

ProduitEssenceProvenances (lieu de croissance du bois)Marque et certification produitFinition
Volet boisMélèzeEuropeTropicalSaturateur
Brise soleil boisMélèzeEuropeTropicalSaturateur

Isolation des murs

Isolation de la toiture

Approche environnementale : Afin de réellement souligner le volume du séchoir, une partie de l’extension est habillée avec un bardage bois. Ce dispositif permet de souligner et d’épurer simplement la silhouette du bâtiment,en privilégiant un effet de contraste. Pour cela, le bardage bois est d’un aspect des plus simple et des plus brut possible afin de souligner les enduits et ll modénature en pierre du séchoir.

Descriptif technique : Une partie des maçonneries en extension ont été isolées par l'extérieur grâce à de la laine de verre en 2 couches à laquelle on y a adjoint un bardage bois vertical en mélèze. La pose des lames a été faite sur planchette avec une finition grisée à l'aide d'un saturateur .

Chauffage au Bois : non
Données déclaratives

Acteurs du projet

Maître d'ouvrage (1)

Maître d'ouvrage - État ou collectivité (locale et territ)

Commune de Limeyrat (24)

Etudes et ingénieries (4)

Maître d'œuvre - Architecte mandataire

Agence WHa (24)

Bureau d'études structure bois

ID BATIMENT (24)

Bureau d'études thermique

CESTI (24)

Economiste

GALINAT ECC (24)

Entreprises des lots bois (2)

Charpentier

CCPF - Frédéric PRAT (19)

Menuisier

ETABLISSEMENT BERNEGOUE (24) *




* : L'entreprise n'est plus active
Retour à la liste