Aménager
Aménager

Centre d'art

73400 UGINE - Savoie - Auvergne-Rhône-Alpes

AMÉNAGEMENT BOIS

Aménagement intérieur

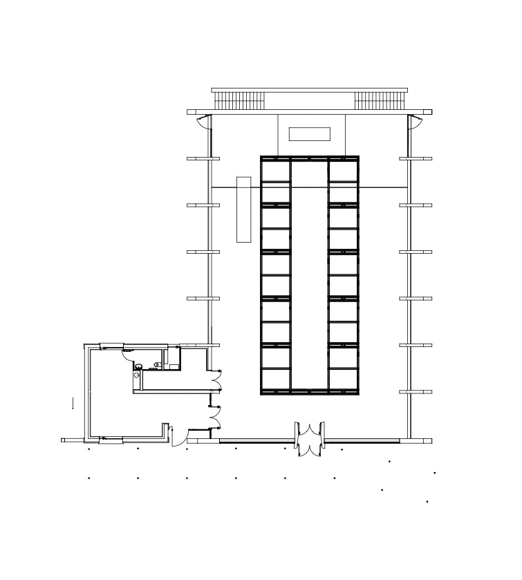
La transformation de l'église des fontaines d'Ugine en centre dédié à l'art contemporain est d'un point de vue architectural à d'abord une portée urbaine. L'ouverture de sa facade est une invitation, une manière de faire pénétrer la rue dans le bâtiment. La nef, est dédiée dans son ensemble à un espace d’exposition. A l’Ouest, la sacristie remplit désormais le rôle d’atelier, et abrite les espaces servant la grande halle. Entre les deux, un creux est ménagé et devient l’accès du centre. L’enjeu est de modifier le fonctionnement historique et religieux de l’église avec force et respect.

Catégorie aménagement bois, aménagement intérieur
Numéro de projet4520
Adresse du projet 54 Rue des Vignes
Esplanade des fontaines
73400 UGINE
Date de candidature25/02/2020

aménagement bois

typologie : Culture
Coût total en € HT : 387000

aménagement intérieur

Année de réalisation : 2019
Coût total Aménagement Intérieur en € HT : 82328
Coût lots bois en € HT : 63980
Volume bois m³ : 11
Surface aménagée en m² : 700

Liste des produits :

ProduitEssenceProvenances (lieu de croissance du bois)Marque et certification produitFinition
Panneau acoustiqueSapin pectinéAuvergne-Rhône-AlpesAutres
InstallationSapin pectinéAuvergne-Rhône-AlpesAutres
Bois Français : oui

Approche environnementale : L'objectif est avant tout à s'inscrire dans la continuité de la démarche de conception d'origine. En effet ce bâtiment de la fin des années cinquante est une véritable leçon de mise en oeuvre low-tech, de matériaux sourcés avant l'heure. En effet un travail de recherche nous démontre que l'ensemble des bois (coffrage coulissant y compris), briques et jusqu'aux ardoises de la couverture proviennent de communes comprisent dans un rayon de moins de cent kilomètres. Ainsi l'ossature suspendue de sapin et de toile que nous introduisons valorise des filières françaises les plus courtes possible.

Descriptif technique de l'aménagement : Le surdimensionnement originel des portiques de béton est exploité pour mettre en place un volume suspendu. C’est une ossature composée d'éléments de sapin moisés qui abrite l’ensemble des équipements techniques liés notamment à l’éclairage muséographique et au chauffage. Chacun des ses modules a été revêtu d’une toile de coton tendue. La composition permet de maîtriser l’acoustique existante et propose une grande liberté d’affichage et de modulation de la zone d’exposition, via un ensemble d’éléments suspendus à des rails rainurés en sous-face. Un projet à la fois rustique et précieux.

Données déclaratives

Acteurs du projet

Maître d'ouvrage (1)

Maître d'ouvrage - Services publics

COMMUNE D'UGINE (73)

Etudes et ingénieries (4)

Maître d'œuvre - Architecte mandataire

LIS & DANEAU ARCHITECTES (38)

Bureau d'études acoustique

THERMIBEL (38)

Bureau d'études structure bois

BOIS CONSEIL (LOIRE) (42)

Bureau d'études thermique

THERMIBEL (38)

Entreprises des lots bois (1)

Menuisier

MENUISERIE METRAL-CHARVET (73) *




* : L'entreprise n'est plus active
Retour à la liste