Habiter une maison
Habiter une maison

COA

49270 Orée d'Anjou - Maine et Loire - Pays de la Loire

BÂTIMENT / LOGEMENT

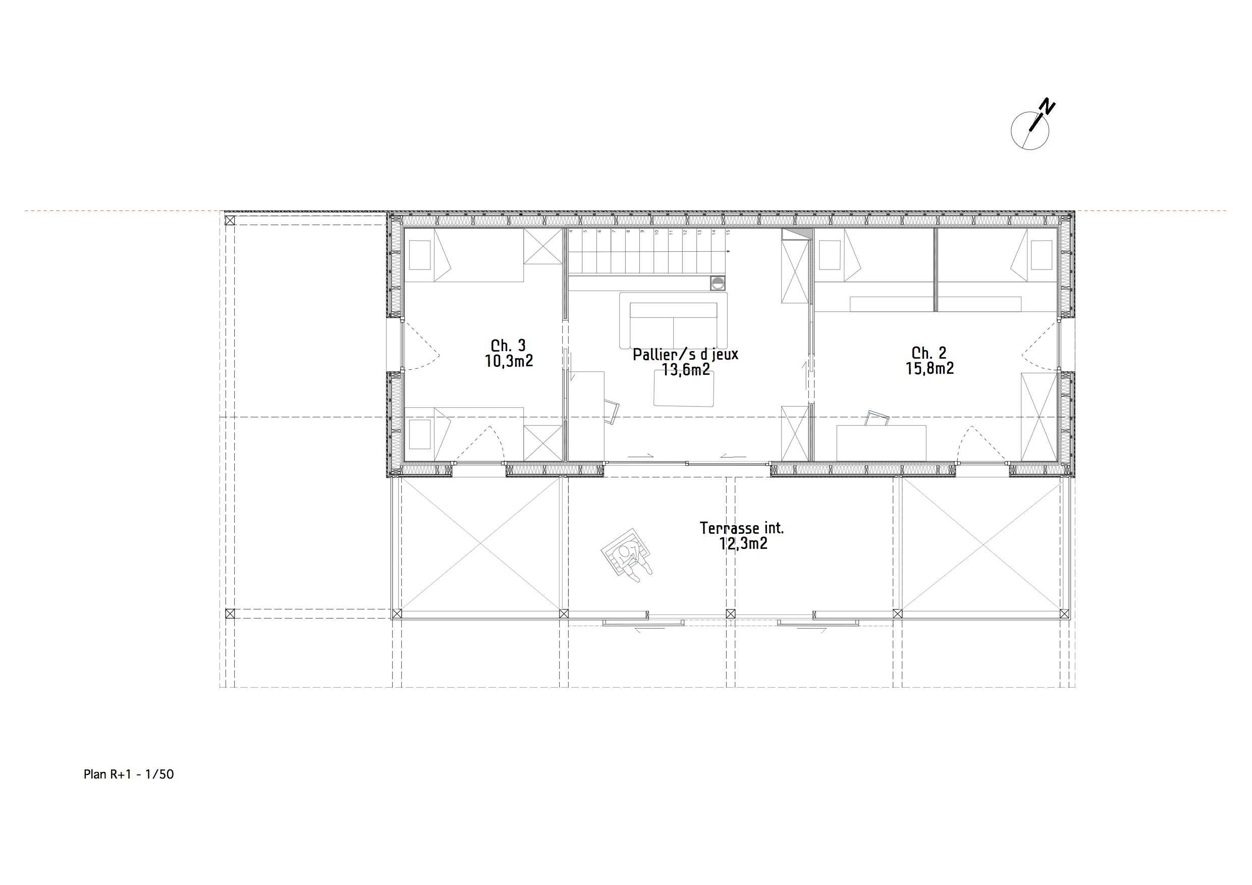
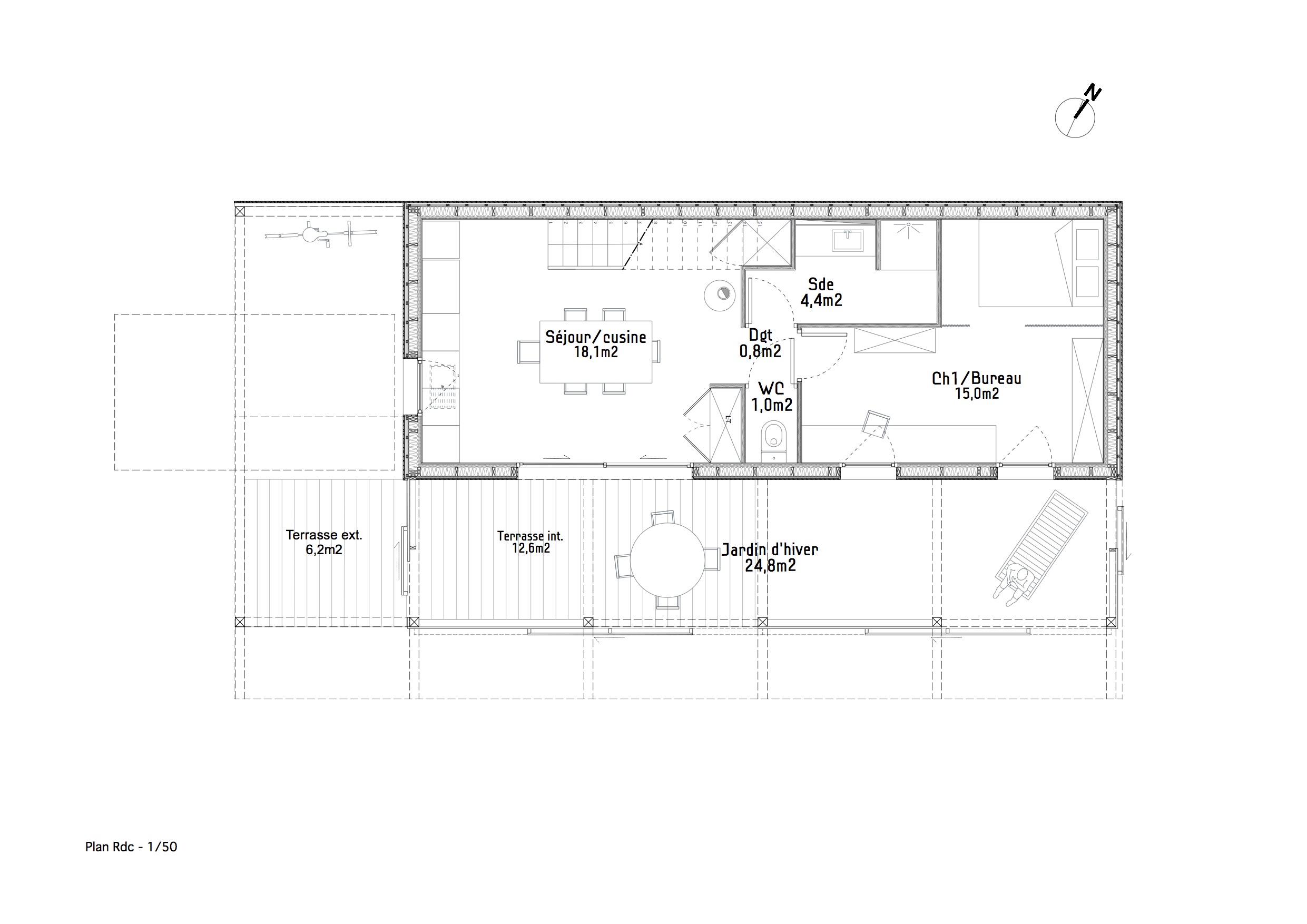
Les espaces de vie chauffés ont été optimisés au maximum, optimisant fonctionnellement chaque espace, afin de privilégier des espaces intermédiaires plus économiques. La cellule principale chauffée comprend toutes les fonctions nécessaires au confort de la famille. L’espace de vie se déploie dans les espaces intermédiaires à différents niveaux : terrasse et balcon du jardin d’hiver, terrasse et abri sous l’auvent. La diversification des “sas” et typologies d’espaces propose un rapport différent et mouvant au jardin. L’espace de la famille évolue selon les besoins et les saisons. Outre la réduction des surfaces chauffées, les choix de matériaux et de systèmes constructifs permettent de tenir à la fois le budget et l’ambiance souhaités par la famille. Le chantier est réalisé en deux phases, le jardin d'hiver sera clos dans une second temps. La maison est conçue pour être habitable avant l'exécution de cette dernière phase de travaux.

Catégorie Bâtiment / logement
Numéro de projet4616
Date de candidature28/02/2020

Bâtiment / logement

Détail projet

Typologie de bâtiment : Neuf
Type de bâtiment : Logement individuel inférieur 120 m²
Année de livraison : 2019
Surface totale du bâtiment en m² : 79
Coût total en € HT (hors foncier, hors VRD, hors honoraires) : 129000
Lot bois n°1 concerné : ossature bois
Coût du lot bois n°1 - € HT : 12797
Lot bois n°2 concerné : Charpente bois
Coût du lot bois n°2 - € HT : 13320
Bois Français : oui
Isolations biosourcées (préciser dans le descriptif technique) : non
Finitions intéreures biosourcées ou géosourcées (préciser dans le descriptif technique) : oui

Structure bois du bâtiment

Structure verticale :

ProduitEssenceProvenances (lieu de croissance du bois)Traitements de préservationMarque et certification produit
Panneau ossature boisDouglasPays-de-la-LoireJe n'ai pas l'information

Structure horizontale :

ProduitEssenceProvenances (lieu de croissance du bois)Traitements de préservationMarque et certification produit
Solivage traditionnelDouglasPays-de-la-Loire

Charpente :

ProduitEssenceProvenances (lieu de croissance du bois)Traitements de préservationMarque et certification produit
Charpente traditionnelleDouglasPays-de-la-Loire

Revêtement bois extérieur

Revêtement bois ou dérivés :

ProduitEssenceProvenances (lieu de croissance du bois)Marque et certification produitFinitionTraitements de préservation
Bardeau boisDouglasPays-de-la-LoireSaturateur
Panneau contreplaquéPin maritimeSaturateur

Menuiserie intérieure et extérieure

Menuiserie extérieure :

ProduitEssenceProvenances (lieu de croissance du bois)Marque et certification produitFinition
Brise soleil boisDouglasPays-de-la-LoireAucune finition

Isolation des murs

Isolation de la toiture

Chauffage au Bois : oui
Appareil de chauffage au bois : Poële/insert
Données déclaratives

Acteurs du projet

Maître d'ouvrage (1)

Maître d'ouvrage - Particuliers

particulier (x)

Etudes et ingénieries (2)

Maître d'œuvre - Architecte mandataire

Stéphanie Le Carluer Architecte (44)

Bureau d'études thermique

ADNE INGENIERIE (85)

Entreprises des lots bois (1)

Charpentier

Tierrhabitat (44)




* : L'entreprise n'est plus active
Retour à la liste