Habiter ensemble
Habiter ensemble

Eco-quartier - Construction de 20 logements bois BBC

21320 Pouilly en Auxois - Côte d'or - Bourgogne-Franche-Comté

BÂTIMENT / LOGEMENT

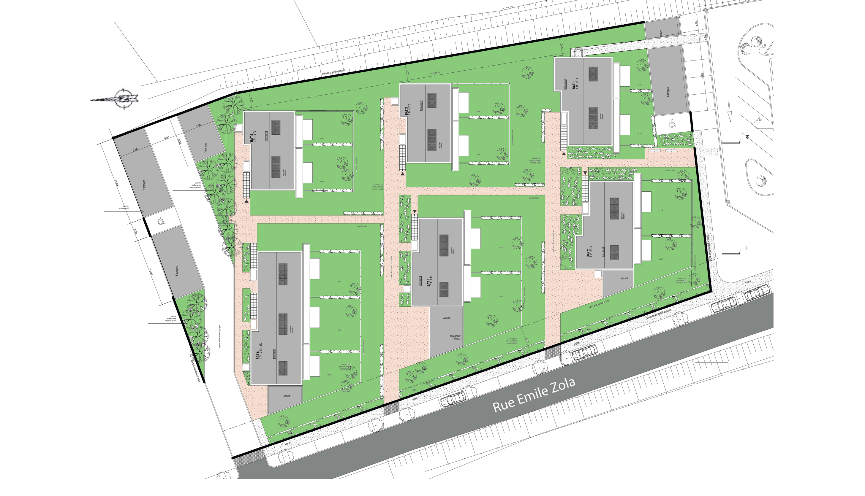
Au lieu-dit les « Annereaux », à l'entrée Nord Ouest de Pouilly-en-Auxois, le terrain de 5200 m², qui abritait pour partie l'ancienne gare de marchandises, est desservi à l'ouest par la rue Emile Zola et borde au sud un parking créé récemment. Dans l'esprit d'un «éco-quartier », les 20 logements sont répartis sur 6 petits bâtiments agencés sur trois bandes et séparés par une allée centrale. Des groupes de garages sont implantés en limite sud et nord du terrain. Le système constructif est mixte : -Le béton a été utilisé, au regard de ses qualités économiques et acoustiques, pour les dalles et refends séparatifs des logements collectifs, apportant de l'inertie aux bâtiments favorisant ainsi le confort d'été. -L'ossature bois est présente sur l'ensemble des façades et toitures mais aussi sur les planchers intermédiaires des logements individuels. -Un bardage Douglas avec fibres de bois a été largement utilisé sur l'ensemble des façades Nord et Est moins soumises aux intempéries. - Les volets sont également en douglas, les menuiseries extérieures en mélèze. Dans l'esprit d'un «éco-quartier », des sentes piétonnes sablées desservent les bâtiments et chaque logement. Les véhicules, garages et voiries ont été repoussés au Nord du projet. Toutes les pièces nobles (ou pièces de vie) des 20 logements sont orientées plein Sud sur les espaces verts. Des clôtures bois symboliques délimitent les espaces privés des espaces collectifs. Des haies vives épaisses, le long de la voirie d'accès constituent un cordon végétal et créent le concept de quartier résidentiel. La couleur ocre rouge et bardage bois favorise l'intégration du projet au contexte naturel vallonné de l'Auxois et bâti environnant. Le projet est labellisé par CERQUAL BBC Effinergie et Habitat environnement, qui atteste la prise en compte dès la conception technique de la performance énergétique et certifie que la consommation intègre les enjeux de réduction par 4 des émissions de gaz à effet de serre (ossature bois, toiture végétalisée, panneaux solaires thermiques, bassin de rétention des E.P., sols peu perméables, isolation par ouate de cellulose et fibre de bois, terrasse et balcons en bois...). L'implantation des constructions et l'orientation des pièces découlent directement des apports solaires nécessaires en hiver et à la mi-saison. Les pièces de vie, orientées plein sud, profiteront au maximum du soleil en hiver, sans aucune ombre projetée. Des balcons filtrants, ne nécessitant aucun entretien, limiteront l'effet de serre en été. <a href="http://www.aprovalbois.com/palmares"> Réalisation lauréate du palmarès 2011 des Trophées de la construction bois en Bourgogne </a> Projet concourant au palmarès 2012

Catégorie Bâtiment / logement
Numéro de projet4933
Adresse du projet 21320 Pouilly en Auxois
Date de candidature31/12/2012

Bâtiment / logement

Détail projet

Typologie de bâtiment : Neuf
Type de bâtiment : Logement collectif
Année de livraison : 2011
Surface totale du bâtiment en m² : 1615
Coût total en € HT (hors foncier, hors VRD, hors honoraires) : 1957
Coût du lot bois n°1 - € HT : 594
Bois Français : non
Matériaux issus du ré-emploi (préciser dans le descriptif technique) : non
Isolations biosourcées (préciser dans le descriptif technique) : non
Matériaux géosourcés (préciser dans le descriptif technique) : non
Finitions intéreures biosourcées ou géosourcées (préciser dans le descriptif technique) : non

Structure bois du bâtiment

Structure verticale :

ProduitEssenceProvenances (lieu de croissance du bois)Traitements de préservationMarque et certification produit
Panneau ossature boisDouglas

Structure horizontale :

ProduitEssenceProvenances (lieu de croissance du bois)Traitements de préservationMarque et certification produit
Plancher béton

Charpente :

ProduitEssenceProvenances (lieu de croissance du bois)Traitements de préservationMarque et certification produit
Charpente bois lamellé-colléDouglas
Charpente traditionnelle

Revêtement bois extérieur

Revêtement bois ou dérivés :

ProduitEssenceProvenances (lieu de croissance du bois)Marque et certification produitFinitionTraitements de préservation
Lame bois massifDouglas

Menuiserie intérieure et extérieure

Menuiserie extérieure :

ProduitEssenceProvenances (lieu de croissance du bois)Marque et certification produitFinition
Menuiserie bois
Volet bois
Brise soleil bois

Isolation des murs

Isolation de la toiture

Approche environnementale : N;

Chauffage au Bois : non
Appareil de chauffage au bois : Autres,Poële/insert,Poêle bouilleur,Chaudière
Données déclaratives

Acteurs du projet

Maître d'ouvrage (1)

Maître d'ouvrage - Bailleur social public

ORVITIS (21)

Etudes et ingénieries (4)

Maître d'œuvre - Architecte mandataire

A2A ARCHITECTES (21)

Bureau d'études structure bois

SYLVA CONSEIL (63)

Bureau d'études thermique

SYLVA CONSEIL (63)
BET CSI (21)

Entreprises des lots bois (3)

Charpentier

ETS CHARPENTE MORTIER (21)
Les charpentiers du Morvan (89)
LES CHARPENTIERS DE L'OUCHE (21)




* : L'entreprise n'est plus active
Retour à la liste