Travailler – accueillir

Ateliers Municipaux de Chevannes

91750 Chevannes - Essonne - Ile de France

BÂTIMENT / LOGEMENT

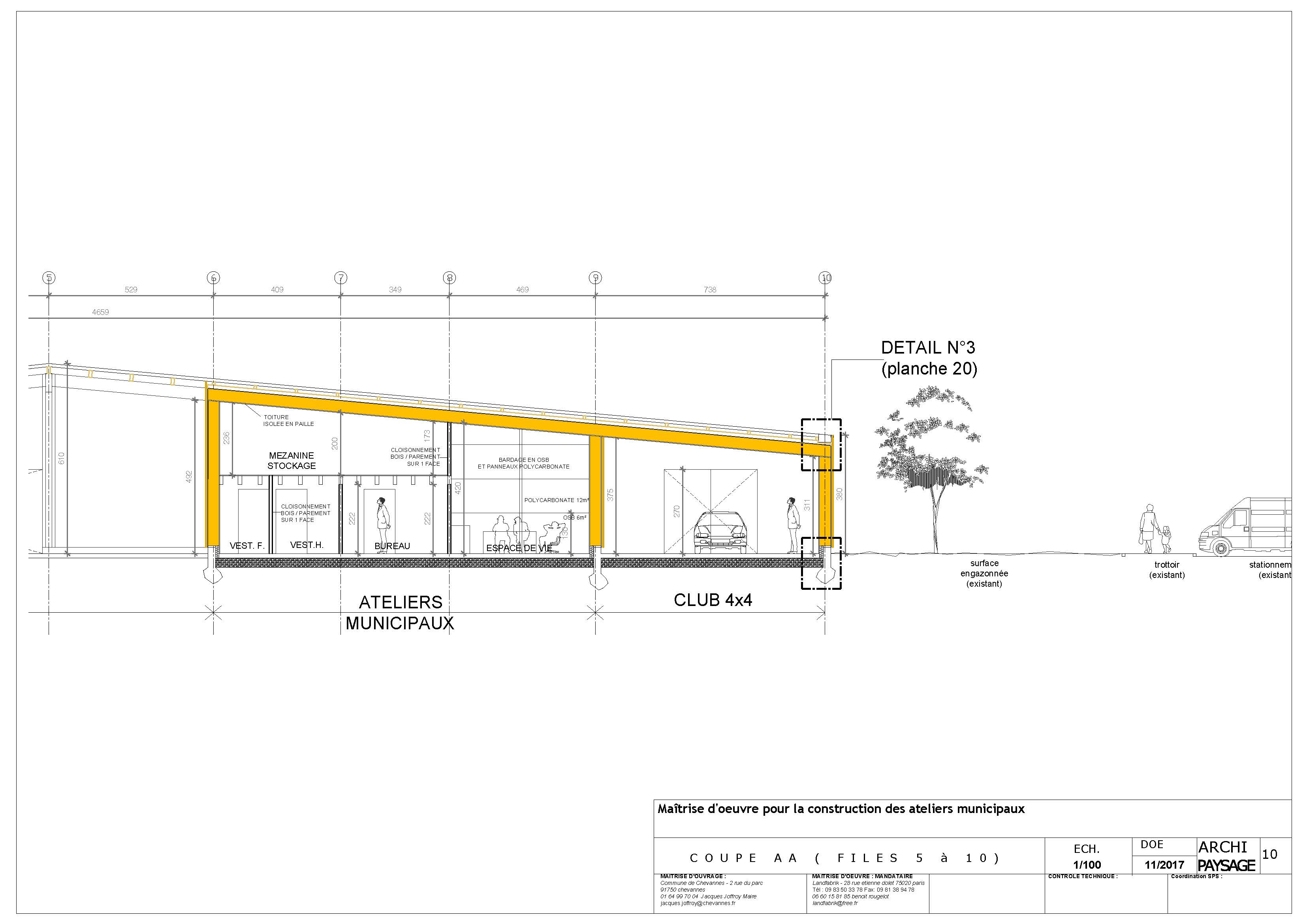
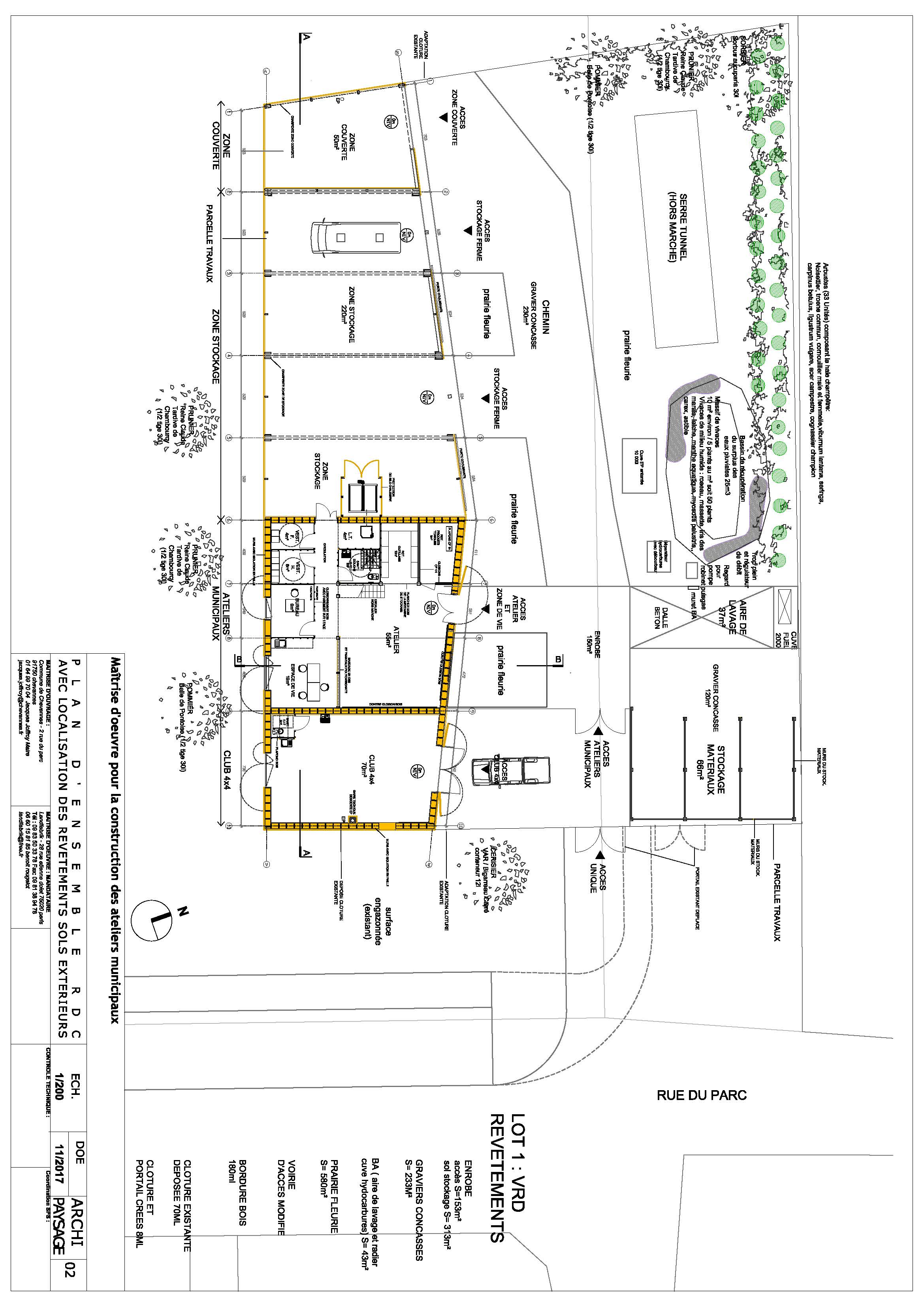
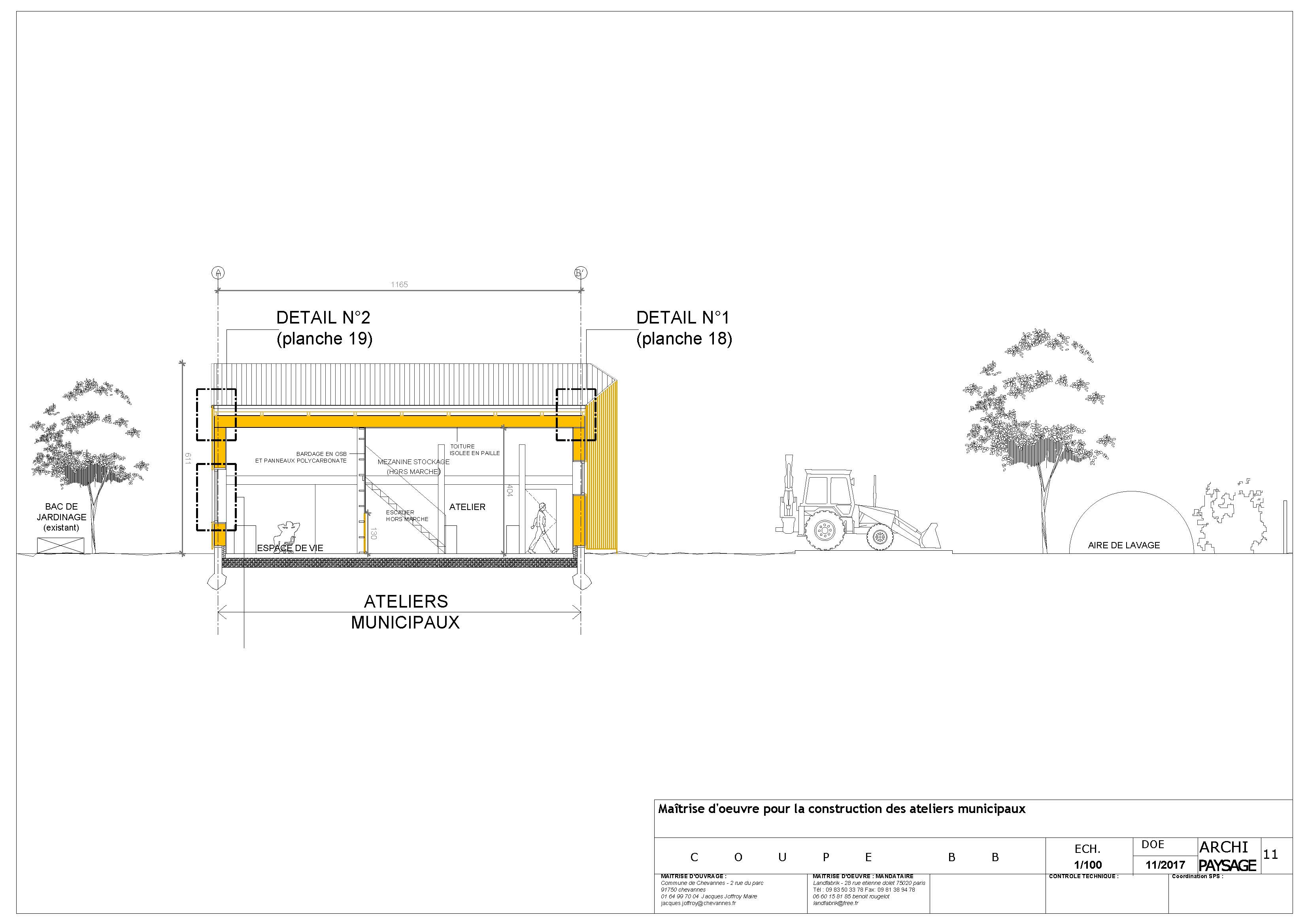
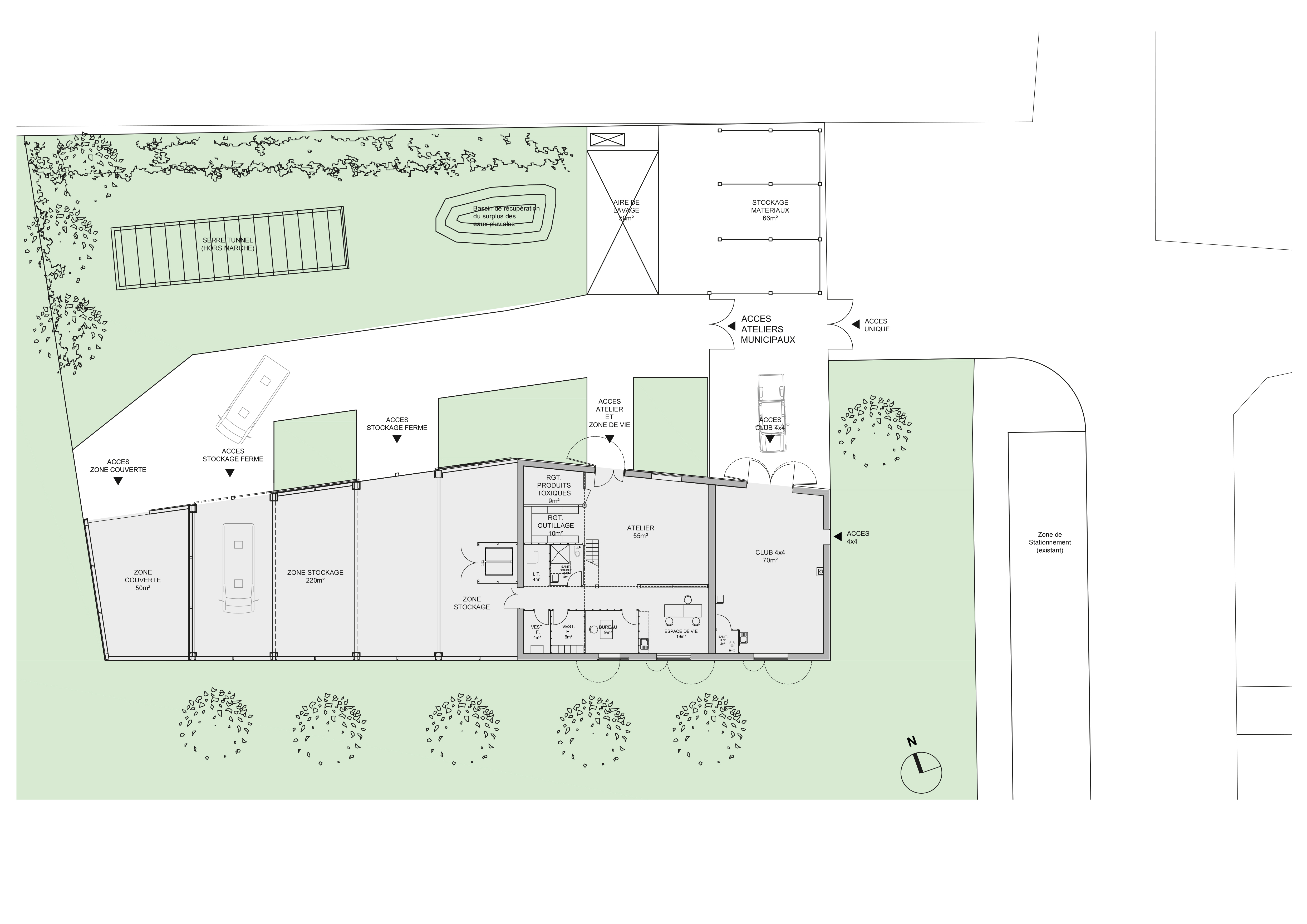
Ateliers Municipaux avec partie bureaux, salle de réunion, ateliers, vestiaires : chauffés Partie hangar pour véhicules et matériaux Isolation caisson préfabriqué paille Bardage Bois Brut Récupération des Eaux Pluviales Chaufferie Bois Granules

Catégorie Bâtiment / logement
Numéro de projet521
Adresse du projet 12 rue du parc
91750 Chevannes
Date de candidature24/03/2018

Bâtiment / logement

Détail projet

Typologie de bâtiment : Neuf
Type de bâtiment : Service institutionnel et public
Année de livraison : 2017
Surface totale du bâtiment en m² : 500
Coût total en € HT (hors foncier, hors VRD, hors honoraires) : 550000
Lot bois n°1 concerné : Charpente bois
Volume lot bois n°1 - m³ : 28
Coût du lot bois n°1 - € HT : 36000
Lot bois n°2 concerné : ossature bois
Volume lot bois n°2 - m³ : 203
Coût du lot bois n°2 - € HT : 82741

Structure bois du bâtiment

Structure verticale :

ProduitEssenceProvenances (lieu de croissance du bois)Traitements de préservationMarque et certification produit
Panneau ossature boisDouglasCentre-Val-de-LoireAucun traitement

Structure horizontale :

ProduitEssenceProvenances (lieu de croissance du bois)Traitements de préservationMarque et certification produit
Poutre en I ou mixteDouglasCentre-Val-de-LoireAucun traitement

Charpente :

ProduitEssenceProvenances (lieu de croissance du bois)Traitements de préservationMarque et certification produit
Charpente bois lamellé-colléDouglasCentre-Val-de-LoireAucun traitement

Revêtement bois extérieur

Revêtement bois ou dérivés :

ProduitEssenceProvenances (lieu de croissance du bois)Marque et certification produitFinitionTraitements de préservation
Lame bois massifDouglasCentre-Val-de-LoireAucune finitionAucun traitement

Menuiserie intérieure et extérieure

Menuiserie extérieure :

ProduitEssenceProvenances (lieu de croissance du bois)Marque et certification produitFinition
Volet boisDouglasCentre-Val-de-LoireAucune finition

Isolation des murs

Isolation intérieure des murs :

Produit
Paille
Epaisseur (mm) Isolation intérieure des murs : 360

Isolation entre-montant des murs :

Produit
Paille
Epaisseur (mm) Isolation entre-montant des murs : 360

Isolation extérieure des murs :

Produit
Fibre de bois (Panneaux)
Epaisseur (mm) Isolation extérieure des murs : 16

Isolation de la toiture

Epaisseur (mm) Isolation entre-montant de la toiture : 360
Epaisseur (mm) Isolation extérieure de la toiture : 16

Approche environnementale : Isolation caisson préfabriqué paille Récupération des Eaux Pluviales Chaufferie Bois Granules Haie de Biodiversité (Baies pour oiseaux) Bassin d'infiltration planté

Descriptif technique : Caisson fabriqué bois paille, OSB intérieur, Agepan Extérieur. Régulateur hygrothermique naturel. FSC (Gestion forestière responsable)

Chauffage au Bois : oui
Appareil de chauffage au bois : Chaudière
Certifications, labels et marques bâtiment : Bâtiment Biosourcé,Origine France Garantie (OFG)
Données déclaratives

Acteurs du projet

Maître d'ouvrage (1)

Maître d'ouvrage - État ou collectivité (locale et territ)

Mairie de Chevannes (91)

Etudes et ingénieries (2)

Maître d'œuvre - Architecte mandataire

LANDFABRIK (75)

Paysagiste

LANDFABRIK (75)

Entreprises des lots bois (2)

Charpentier

UTB (Les Charpentes du Gatinais) (45)

Menuisier

UTB (Les Charpentes du Gatinais) (45)




* : L'entreprise n'est plus active
Retour à la liste