Réhabiliter un équipement
Réhabiliter un équipement

Réhabilitation thermique et mise aux normes accessibilité du Centre de formation des apprentis du Moulin Rabaud

87051 Limoges - Haute Vienne - Nouvelle-Aquitaine

BÂTIMENT / LOGEMENT

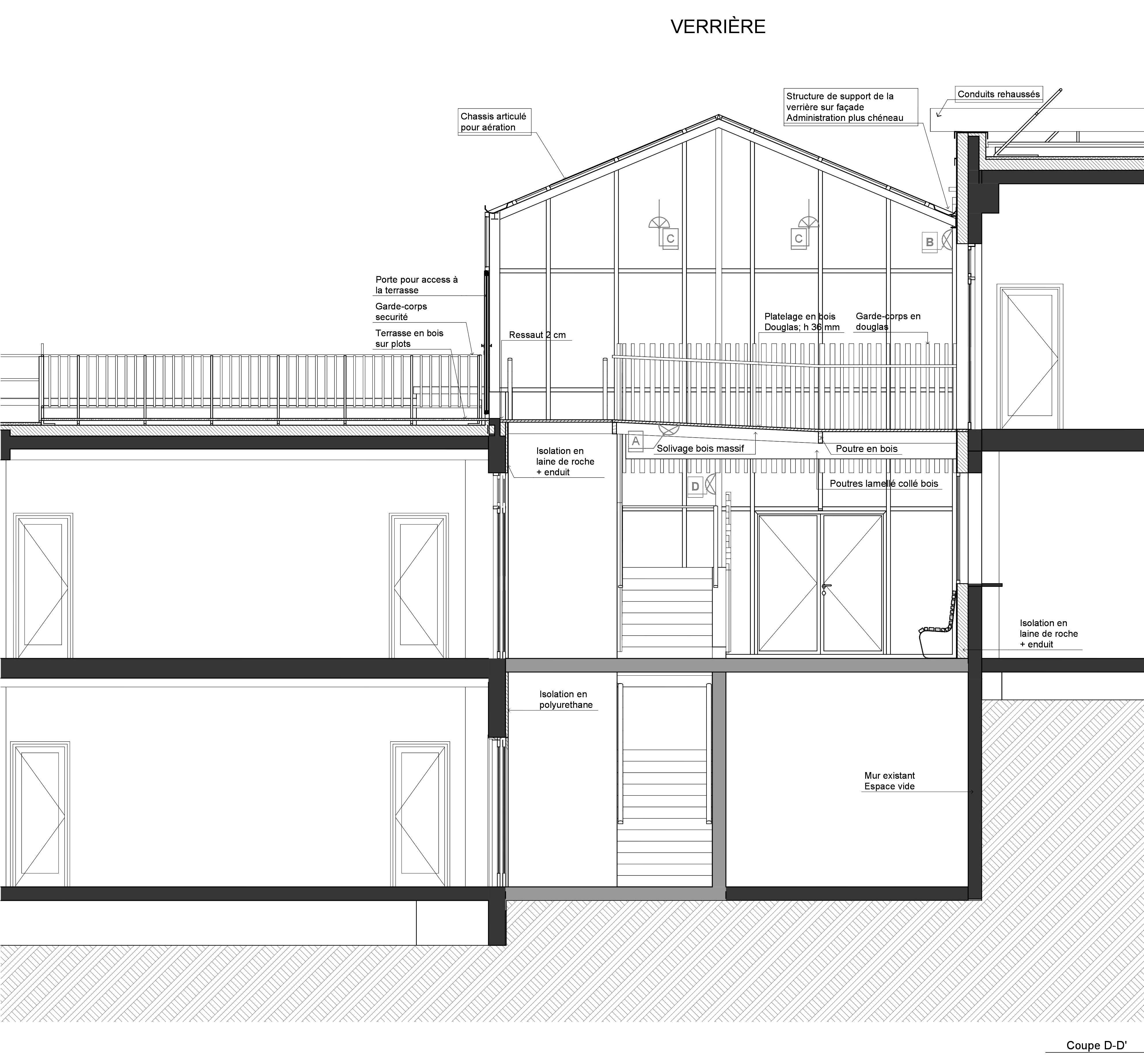
Isolation thermique extérieure et mise aux normes Accessibilité d’un ensemble de bâtiments du Centre de Formation des Apprentis de Limoges. Construits en 1974, les trois bâtiments présentent la même typologie: structure poteau-poutres et façades préfabriquées en béton, toits-terrasse non accessibles.Les bâtiments sont compacts et présentent des façades répétitives qui permettent des solutions économiques et efficaces: isolation par l’extérieur en panneaux préfabriqués en ossature bois. Cela permet de bien traiter les ponts thermiques et a peu d’incidences sur les espaces intérieurs.

Catégorie Bâtiment / logement
Numéro de projet530
Adresse du projet 104 rue Saint Gence
87051 Limoges
Date de candidature26/03/2018

Bâtiment / logement

Détail projet

Typologie de bâtiment : Rénovation / Réhabilitation
Type de bâtiment : Enseignement ou éducation
Année de livraison : 2017
Surface totale du bâtiment en m² : 3300
Coût total en € HT (hors foncier, hors VRD, hors honoraires) : 1800000
Lot bois n°1 concerné : ossature bois
Coût du lot bois n°1 - € HT : 285572.24
Lot bois n°2 concerné : Menuiserie extérieure bois
Coût du lot bois n°2 - € HT : 129827.99

Structure bois du bâtiment

Structure verticale :

ProduitEssenceProvenances (lieu de croissance du bois)Traitements de préservationMarque et certification produit
Panneau ossature boisDouglasNouvelle-AquitaineAucun traitement

Structure horizontale :

ProduitEssenceProvenances (lieu de croissance du bois)Traitements de préservationMarque et certification produit
Poutre en I ou mixteDouglasNouvelle-AquitaineAucun traitement

Charpente :

ProduitEssenceProvenances (lieu de croissance du bois)Traitements de préservationMarque et certification produit
Charpente non boisTempéréAucuneAucun traitement

Revêtement bois extérieur

Revêtement bois ou dérivés :

ProduitEssenceProvenances (lieu de croissance du bois)Marque et certification produitFinitionTraitements de préservation
Lame bois massifDouglasNouvelle-AquitaineSaturateurAucun traitement

Revêtement minéral :

Produit
Autres

Menuiserie intérieure et extérieure

Menuiserie extérieure :

ProduitEssenceProvenances (lieu de croissance du bois)Marque et certification produitFinition
Menuiserie mixteDouglasNouvelle-AquitaineHuile

Isolation des murs

Isolation entre-montant des murs :

Produit
Laine de roche
Epaisseur (mm) Isolation entre-montant des murs : 145

Isolation de la toiture

Epaisseur (mm) Isolation extérieure de la toiture : 110

Approche environnementale : L’approche insiste à la fois sur la performance environnementale du projet, une grande rapidité et qualité de mise en œuvre, et une requalification architecturale des bâtiments rénovés. Le projet prévoit d’aller au-delà de l’objectif BBC Rénovation, pour réduire l’impact environnemental du projet de façon plus globale : réduction des émissions de GES, faible énergie grise des matériaux, durabilité et recyclage en fin de vie, sans oublier le traitement de la ventilation et de l’étanchéité à l’air, indispensables pour la pérennité du bâtiment et le confort de ses usagers.

Descriptif technique : - ITE sur béton préfabriqué en panneaux ossature bois préfabriqués, isolation laine de roche. Parement : bardage en douglas du Limousin (traitement saturateur gris) / béton fibré - ITE des pignons en laine de roche, enduit chaux - Menuiseries bois-aluminium et stores - Renforcement de l'isolation des toitures terrasses, nouvelle membrane EPDM et gravier de réemploi - Création d'une verrière avec ouvrants automatisés selon la température - Réaménagement des circulations et adaptations pour l'accessibilité des espaces extérieurs - Nouveaux circuits de ventilation et de chauffage PEFC (Gestion forestière durable)

Chauffage au Bois : non
Données déclaratives

Acteurs du projet

Maître d'ouvrage (1)

Maître d'ouvrage - Services publics

CHAMBRE DE METIERS ET DE L'ARTISANAT (87) *

Etudes et ingénieries (3)

Maître d'œuvre - Architecte mandataire

Louise Ranck Latitude 48° Architectes (77)

Bureau d'études structure bois

ICS SEBASTIEN NICOLAS (87)

Bureau d'études thermique

FIABITAT CONCEPT (41)

Entreprises des lots bois (2)

Menuisier

ETS GUILLAUMIE (87)

Constructeur bois

ETS GUILLAUMIE (87)




* : L'entreprise n'est plus active
Retour à la liste