Réhabiliter un logement

ISSY

92130 Issy-les-Moulineaux - Hauts de Seine - Ile de France

BÂTIMENT / LOGEMENT

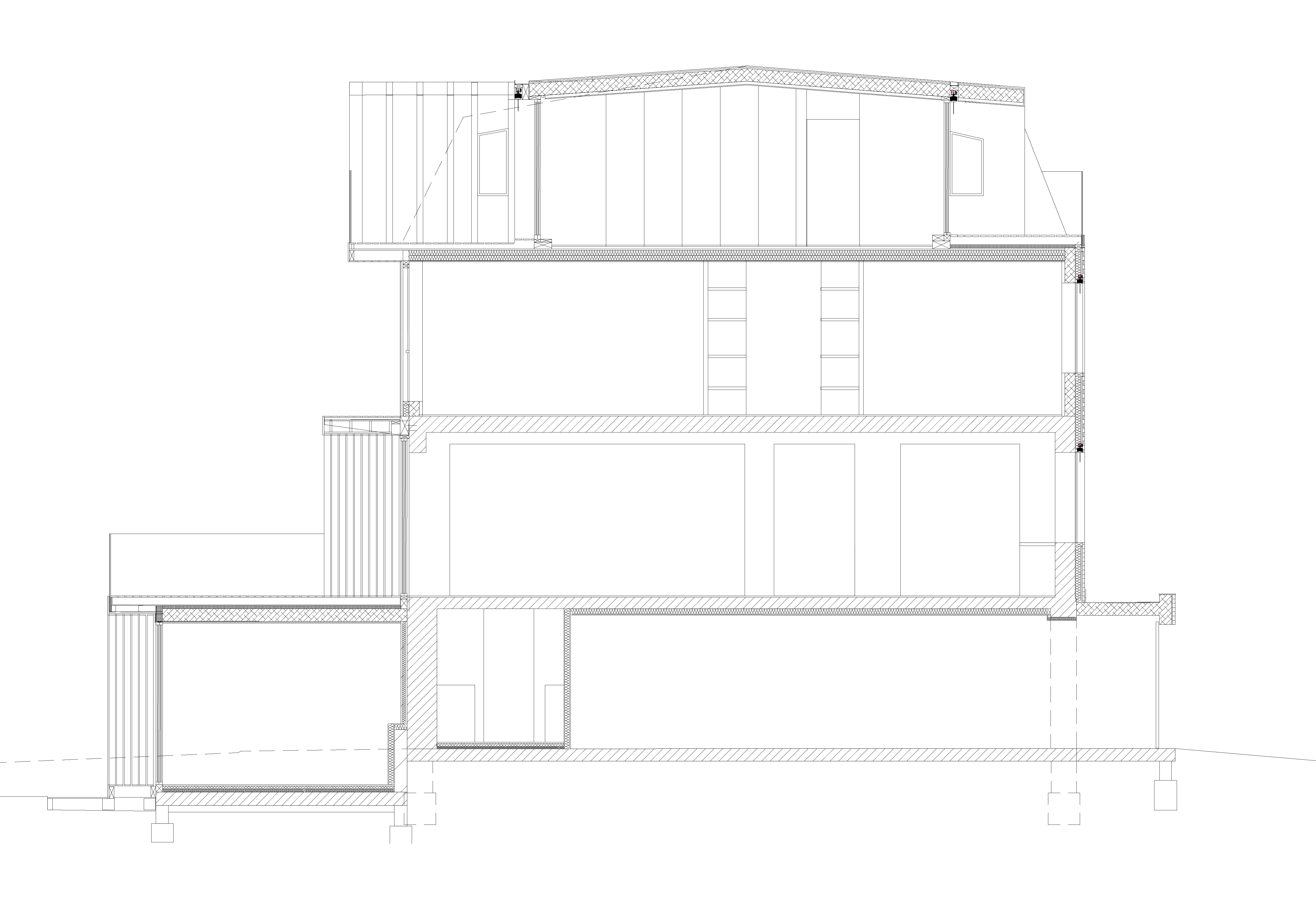
La principale volonté du projet consiste à réaménager spatialement et thermiquement la maison existante des années 1950/1960 et lui donner une architecture plus contemporaine. La partie de la toiture en bois est déposée afin de changer son gabarit et créer une surélévation. Côté rue, une extension d’un étage est placée dans le prolongement du garage existant afin d’agrandir ce dernier. Côté jardin une deuxième extension, qui comporte un salon de plain-pied sur le jardin, est aussi créée. En terme architectural, voulant apporter harmonie à l’ensemble, trois matériaux sont utilisés : afin de s’intégrer dans le paysage urbain, la structure existante côté rue et le R+2 sont habillés de briques moulées à la main de couleur rouge. La toiture est en zinc anthracite. Trois « volumes » en bois dessinent la façade côté jardin : le premier « volume » au RDC en ossature bois comporte un salon avec une grande baie vitrée avec au-dessus une grande terrasse en liaison direct avec la pièce de vie du R+1. Le deuxième « volume » est créé par un cadre en bois ajouré, qui souligne l’ouverture du R+1. Il protège la grande baie vitrée du soleil et des vues. Le dernier « volume » au niveau des combles est créé par un balcon et une pergola en bois, qui protège la baie vitrée de l’ensoleillement direct et lui aussi des vues.

Catégorie Bâtiment / logement
Numéro de projet5711
Date de candidature20/11/2020

Bâtiment / logement

Détail projet

Typologie de bâtiment : Extension / surélévation,Rénovation / Réhabilitation
Type de bâtiment : Logement individuel supérieur à 120 m²
Année de livraison : 2019
Surface totale du bâtiment en m² : 240
Dont extension / surélévation en m² : 100
Coût total en € HT (hors foncier, hors VRD, hors honoraires) : 500000
Coût du lot bois n°1 - € HT : 150000
Bois Français : oui
Isolations biosourcées (préciser dans le descriptif technique) : non
Finitions intéreures biosourcées ou géosourcées (préciser dans le descriptif technique) : oui

Structure bois du bâtiment

Structure verticale :

ProduitEssenceProvenances (lieu de croissance du bois)Traitements de préservationMarque et certification produit
Panneau ossature boisMélèze

Structure horizontale :

ProduitEssenceProvenances (lieu de croissance du bois)Traitements de préservationMarque et certification produit
Solivage traditionnelÉpicéa commun

Charpente :

ProduitEssenceProvenances (lieu de croissance du bois)Traitements de préservationMarque et certification produit
Charpente traditionnelleDouglas

Revêtement bois extérieur

Revêtement bois ou dérivés :

ProduitEssenceProvenances (lieu de croissance du bois)Marque et certification produitFinitionTraitements de préservation
Bardeau boisCUMARUHuile

Revêtement minéral :

Produit
Brique

Autre revêtement métallique :

Produit
Zinc

Menuiserie intérieure et extérieure

Isolation des murs

Isolation intérieure des murs :

Produit
Fibre de bois (Panneaux)
Epaisseur (mm) Isolation intérieure des murs : 7
Epaisseur (mm) Isolation entre-montant des murs : 15

Isolation extérieure des murs :

Produit
Fibre de bois (Panneaux)
Epaisseur (mm) Isolation extérieure des murs : 5

Isolation de la toiture

Epaisseur (mm) Isolation intérieure de la toiture : 10
Epaisseur (mm) Isolation entre-montant de la toiture : 20
Epaisseur (mm) Isolation extérieure de la toiture : 10

Approche environnementale : Ossature bois - isolation fibre de bois

Descriptif technique : Structure bois : ossature bois, essence pin Revêtement(s) extérieur(s) : - type de revêtement : brique type E-brick /Vetabrick collé (rue), toiture zinc - vmzinc - type de pose : sur structure secondaire en bois ou acier - type de traitement :huile de protection, hydrofuge - type de finition : Isolation : - dalle : laine de bois -pavatex - murs : laine de bois- pavatex - toit : laine de bois- pavatex - cloisons : laine Ultracoustic Ecose 45 de chez Knauf

Chauffage au Bois : non
Appareil de chauffage au bois : Poële/insert
Certifications, labels et marques bâtiment : BBC Effinergie rénovation,Origine France Garantie (OFG),Bois de France
Données déclaratives

Acteurs du projet

Maître d'ouvrage (1)

Maître d'ouvrage - Particuliers

particulier (x)

Etudes et ingénieries (1)

Maître d'œuvre - Architecte mandataire

SKP ARCHITECTURE (75)

Entreprises des lots bois (1)

Charpentier

EF2 (95)




* : L'entreprise n'est plus active
Retour à la liste