Habiter une maison

MAISON S

25270 Chapelle d'huin - Doubs - Bourgogne-Franche-Comté
Finaliste national
Lauréat régional

BÂTIMENT / LOGEMENT

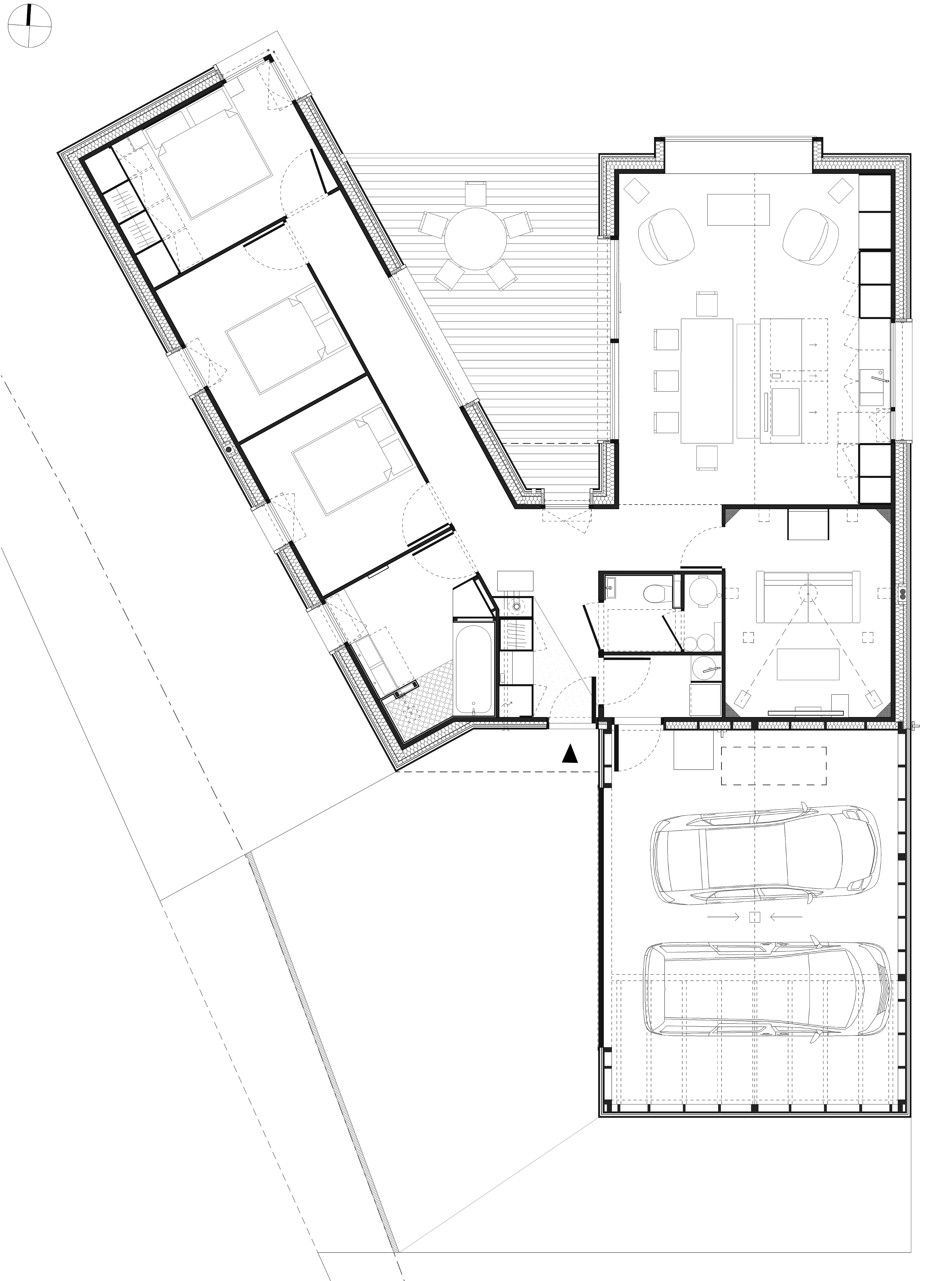
La maison est située sur la crête d'une combe, paysage caractéristique du Haut-Doubs et plus généralement du massif Jurassien. Elle s'intègre au formes bâties existantes voisines à double pans, tout en proposant un événement architectural singulier. L'habitation de plain pied se compose de trois volumes en toiture double pans, reliés par une partie plus basse en toiture terrasse. Le séjour et les chambres sont dirigés vers la vue sur la combe et définissent une terrasse intime sur le paysage alors que le volume de garage se positionne en recul de la rue et définit une cour.

Catégorie Bâtiment / logement
Numéro de projet5848
Date de candidature02/02/2021

Bâtiment / logement

Détail projet

Typologie de bâtiment : Neuf
Type de bâtiment : Logement individuel inférieur 120 m²
Année de livraison : 2020
Surface totale du bâtiment en m² : 150
Coût total en € HT (hors foncier, hors VRD, hors honoraires) : 320000
Lot bois n°1 concerné : Charpente bois
Volume lot bois n°1 - m³ : 600
Coût du lot bois n°1 - € HT : 130000
Lot bois n°2 concerné : Menuiserie intérieure bois
Coût du lot bois n°2 - € HT : 30000
Bois Français : oui
Isolations biosourcées (préciser dans le descriptif technique) : oui
Finitions intéreures biosourcées ou géosourcées (préciser dans le descriptif technique) : non

Structure bois du bâtiment

Structure verticale :

ProduitEssenceProvenances (lieu de croissance du bois)Traitements de préservationMarque et certification produit
Panneau de bois massif (CLT collé ou CLT cloué)Bourgogne-Franche-ComtéAucun traitement

Structure horizontale :

ProduitEssenceProvenances (lieu de croissance du bois)Traitements de préservationMarque et certification produit
Panneau de bois massif (CLT collé ou CLT cloué)Épicéa communBourgogne-Franche-ComtéAucun traitement
Plancher béton

Charpente :

ProduitEssenceProvenances (lieu de croissance du bois)Traitements de préservationMarque et certification produit
Panneau massifÉpicéa communBourgogne-Franche-ComtéAucun traitement

Revêtement bois extérieur

Revêtement minéral :

Produit
Bardeau terre cuite

Autre revêtement métallique :

Produit
Alu

Menuiserie intérieure et extérieure

Isolation des murs

Isolation extérieure des murs :

Produit
Laine de bois insufflée
Fibre de bois (Panneaux)
Epaisseur (mm) Isolation extérieure des murs : 220

Isolation de la toiture

Epaisseur (mm) Isolation extérieure de la toiture : 280

Approche environnementale : Le projet se compose d'un socle en béton sur lequel repose une charpente bois CLT apparente, isolée et couverte de tuiles mécaniques rouges. Le béton permet de garder l'inertie du poële à bois, unique système de chauffage, alors que la paroi bois massif apporte une atmosphère chaleureuse et une isolation optimale. La terre cuite en façade et en toiture limite la surchauffe en été. De plus, les tores à lames orientables reliés au système de domotique contrôlent les apports solaires.

Descriptif technique : Le projet se veut brut dans ses matérialités. L'usage du placo et des doublages est proscrit. Ce qui est vu fait partie intégrante de la structure porteuse. Rien ne peut être enlevé. Rien ne peut être ajouté. Ainsi l'épicéa du jura, le béton brut, le mobilier sur mesure en stratifié noir ou en pin mais aussi la tuile de terre cuite locale en façade, donnent une atmosphère spécifique, généreuse et honnête à l'habitation.

Chauffage au Bois : oui
Appareil de chauffage au bois : Poële/insert
Données déclaratives

Acteurs du projet

Maître d'ouvrage (1)

Maître d'ouvrage - Particuliers

particulier (x)

Etudes et ingénieries (4)

Maître d'œuvre - Architecte mandataire

Pierre Boissenin Architecte (25) *

Bureau d'études structure bois

Perrin et Associés (25)

Bureau d'études thermique

B2EC (25)

Economiste

Pierre Boissenin Architecte (25) *

Entreprises des lots bois (8)

Charpentier

CHARPENTE PONTARLIER (25)

Menuisier

SOUVET VMB (DELTA-SOUVET, DELTA) (25)

Autre lot de la construction (en lien avec le bois)

SBS domotique (25)
Rapid'Service (25)
JAMES CHAGUE (25)
MICHE-LO (25)
BBS ETANCHEITE (25)
SARL VAL CONFORT ENERGIE (25)

Fournisseurs du bois (1)

Industriel

SCHILLIGER BOIS (68)




* : L'entreprise n'est plus active
Retour à la liste