Aménager
Aménager

Restructuration du musée national d’Art Moderne du Centre Pompidou à Paris (75)

75004 Paris - Paris - Ile de France
Lauréat national

AMÉNAGEMENT BOIS

Aménagement intérieur

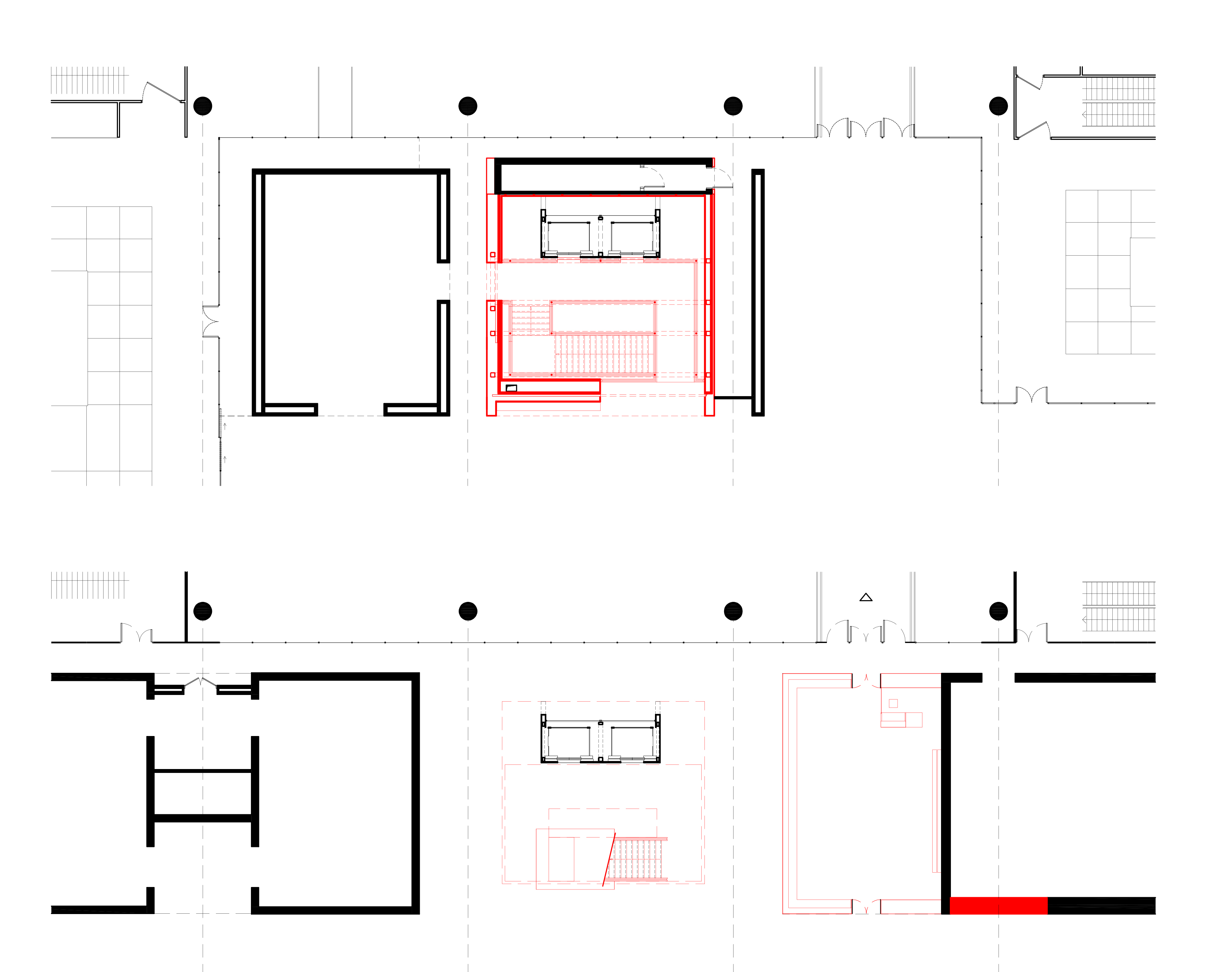
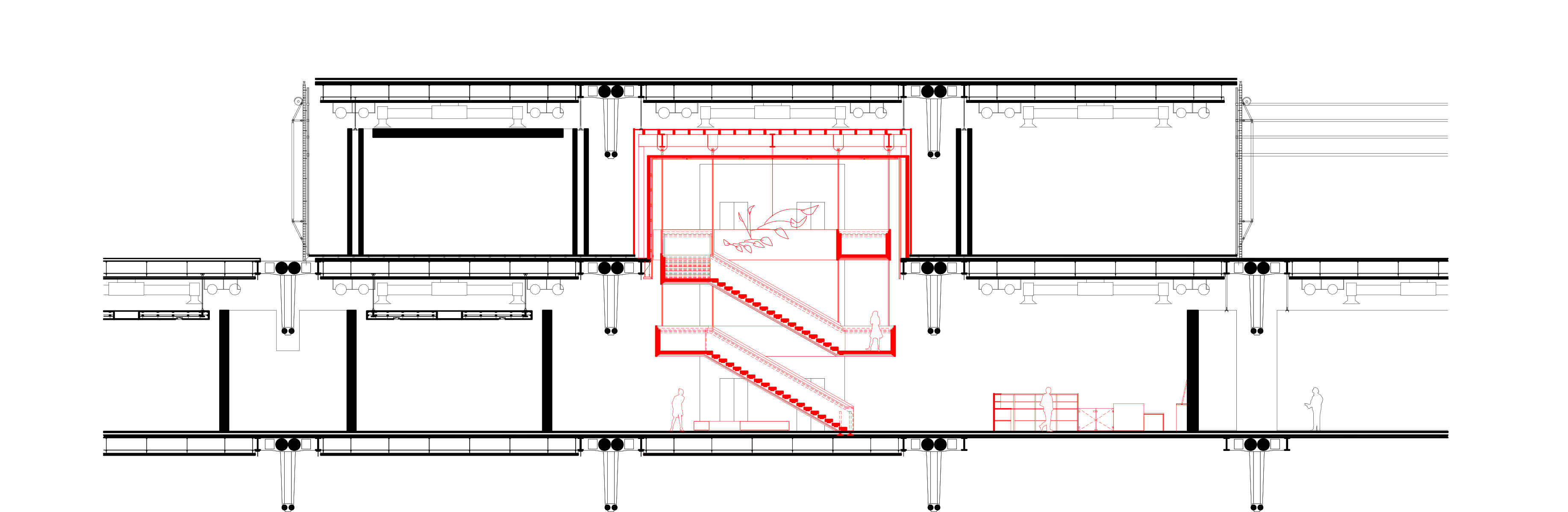
Le projet nait d’un besoin concret ; faciliter les cheminements et le repérage du public dans ce vaste musée répartis sur 2 niveaux. Il est conçu d’abord au regard des contraintes de site particulièrement fortes. La réponse s’est rapidement portée vers une structure en panneaux de bois de hêtre déroulé, suspendue à des tirants métalliques. L’escalier en bois est un prolongement visuel du sol du musée en bois debout. Les tirants entrent en résonance avec ceux qui composent l’architecture originale de Piano et Rogers.

Catégorie aménagement bois, aménagement intérieur
Numéro de projet591
Adresse du projet Place Georges-Pompidou
75004 Paris
Date de candidature27/03/2018
Récompensemention

aménagement bois

typologie : Culture
Coût total en € HT : 500000

aménagement intérieur

Année de réalisation : 2017
Coût total Aménagement Intérieur en € HT : 500000
Coût lots bois en € HT : 210687
Volume bois m³ : 40
Surface aménagée en m² : 700

Liste des produits :

ProduitEssenceProvenances (lieu de croissance du bois)Marque et certification produitFinition
EscalierHêtreGrand-EstJe n'ai pas l'information
Panneau massif d'agencementHêtreGrand-EstJe n'ai pas l'information
Bois Français : oui

Approche environnementale : Le recours à des panneaux de bois de hêtre entre dans une double démarche : - Utiliser le bois, puisque rare ressource renouvelable dans les matériaux de construction. - Utiliser le hêtre en structure pour tordre le cou à la mauvaise réputation de cette essence, pourtant extrêmement abondante en France (et bien que le produit soit transformé en Allemagne). Il s’agit de démontrer que des filières pourraient être développées en France.

Descriptif technique de l'aménagement : La structure consiste en un assemblage d’éléments préfabriqués extraits du catalogue du fabriquant. Des limons porteurs composés de 4 panneaux de 4cm d’épaisseur sont suspendus à des tirants métalliques (eux même suspendus à des portiques métalliques). Les marches en bois massif ajourées viennent liaisonner les limons porteurs. L’ensemble est butonné sur la cage d’ascenseur adjacente.

Données déclaratives

Acteurs du projet

Maître d'ouvrage (1)

Maître d'ouvrage - État ou collectivité (locale et territ)

CENTRE NATIONAL D'ART ET DE CULTURE GEORGES POMPIDOU (75)

Etudes et ingénieries (4)

Maître d'œuvre - Architecte mandataire

Benoît Sindt - Studiolada architectes (54)
ATELIERPNG ARCHITECTURE (75)

Bureau d'études structure bois

BARTHES BUREAU D'ETUDES BOIS (54)

Bureau d'études thermique

MAYA Construction Durable (75)

Entreprises des lots bois (2)

Charpentier

Les charpentiers de Paris (92)

Menuisier

Les charpentiers de Paris (92)

Fournisseurs du bois (1)

Industriel

Pollmeier Massivholz GmbH & Co.KG (DE)




* : L'entreprise n'est plus active
Retour à la liste