Habiter une maison
Habiter une maison

Maison T à Lamballe

22400 LAMBALLE ARMOR - Côtes d'Armor - Bretagne

BÂTIMENT / LOGEMENT

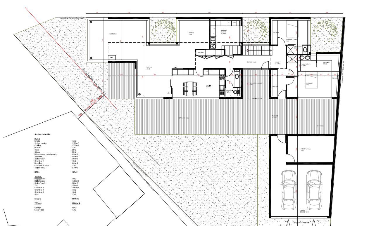
Le projet consiste en la réalisation d’une maison contemporaine, aux volumes simples et à la toiture plate. Celle-ci est implantée le plus au nord de la parcelle afin de s’ouvrir au sud, sur le jardin. Elle est composée de deux niveaux : le rez-de-chaussée traité en bardage métallique, avec de larges baies vitrées, et l’étage différencié par un bardage bois Douglas. Les grands volumes de la maison sont très lumineux. Des patios ponctuent le rez-de-chaussée, leur aménagement paysager entre en résonnance avec celui du jardin.

Catégorie Bâtiment / logement
Numéro de projet6146
Date de candidature08/03/2021

Bâtiment / logement

Détail projet

Typologie de bâtiment : Neuf
Type de bâtiment : Logement individuel supérieur à 120 m²
Année de livraison : 2021
Surface totale du bâtiment en m² : 260
Coût total en € HT (hors foncier, hors VRD, hors honoraires) : 438936
Lot bois n°1 concerné : ossature bois
Coût du lot bois n°1 - € HT : 52040
Lot bois n°2 concerné : Bardage bois
Coût du lot bois n°2 - € HT : 12260
Bois Français : oui
Isolations biosourcées (préciser dans le descriptif technique) : oui
Finitions intéreures biosourcées ou géosourcées (préciser dans le descriptif technique) : non

Structure bois du bâtiment

Structure verticale :

ProduitEssenceProvenances (lieu de croissance du bois)Traitements de préservationMarque et certification produit
Panneau ossature boisFranceAucun traitement

Structure horizontale :

ProduitEssenceProvenances (lieu de croissance du bois)Traitements de préservationMarque et certification produit
Plancher béton

Charpente :

ProduitEssenceProvenances (lieu de croissance du bois)Traitements de préservationMarque et certification produit
Caisson de toitureÉpicéa communFranceAucun traitement

Revêtement bois extérieur

Revêtement bois ou dérivés :

ProduitEssenceProvenances (lieu de croissance du bois)Marque et certification produitFinitionTraitements de préservation
Lame bois massifDouglasFranceAucune finitionAucun traitement

Autre revêtement métallique :

Produit
Acier

Menuiserie intérieure et extérieure

Isolation des murs

Isolation intérieure des murs :

Produit
Laine de verre
Epaisseur (mm) Isolation intérieure des murs : 450

Isolation entre-montant des murs :

Produit
Epaisseur (mm) Isolation entre-montant des murs : 300

Isolation de la toiture

Epaisseur (mm) Isolation intérieure de la toiture : 300

Approche environnementale : La construction est réalisée en ossature bois avec un isolant bio sourcé : la ouate de cellulose. Elle respecte plusieurs enjeux bio climatiques. Orientée nord-sud, avec de larges baies vitrées au sud et des patios amenant de la lumière zénithale au nord, les apports solaires sont optimisés. La couleur sombre du bardage métallique accentue ce phénomène. Un poêle à bois complète les apports en chauffage naturel de cette implantation réfléchie. Le jardin et les patios sont traités en espaces paysagers, avec des essences locales. Plusieurs arbres sont replantés.

Descriptif technique : La construction est en ossature bois. Le volume du rez-de-chaussée est habillé de panneaux de bardage métallique lisse de couleur sombre. Ce dernier est ponctué de patios en partie vitrés, et de larges baies vitrées en façades sud. Le volume rectangulaire de l’étage est habillé de panneaux de bardage bois, en Douglas naturel, à lames verticales, pause en rainures et languettes. Le bardage bois, grisera naturellement. Les menuiseries créées sont en aluminium de couleur foncée. En limite de propriété Est, la maçonnerie est enduite. Les toitures plates sont en étanchéité sur bac acier.

Chauffage au Bois : oui
Appareil de chauffage au bois : Poële/insert
Données déclaratives

Acteurs du projet

Maître d'ouvrage (1)

Maître d'ouvrage - Particuliers

particulier (x)

Etudes et ingénieries (2)

Maître d'œuvre - Architecte mandataire

COLAS DURAND ARCHITECTES (CDA) (22)

Bureau d'études thermique

BSO (BÂTI STRUCTURE OUEST) (22)

Entreprises des lots bois (2)

Menuisier

BESNARD STÉPHANE (22)

Constructeur bois

LA CHARPENTERIE SARL (22)




* : L'entreprise n'est plus active
Retour à la liste