Réhabiliter un logement

Surélévation PLATANES

67100 Strasbourg - Bas Rhin - Grand Est

BÂTIMENT / LOGEMENT

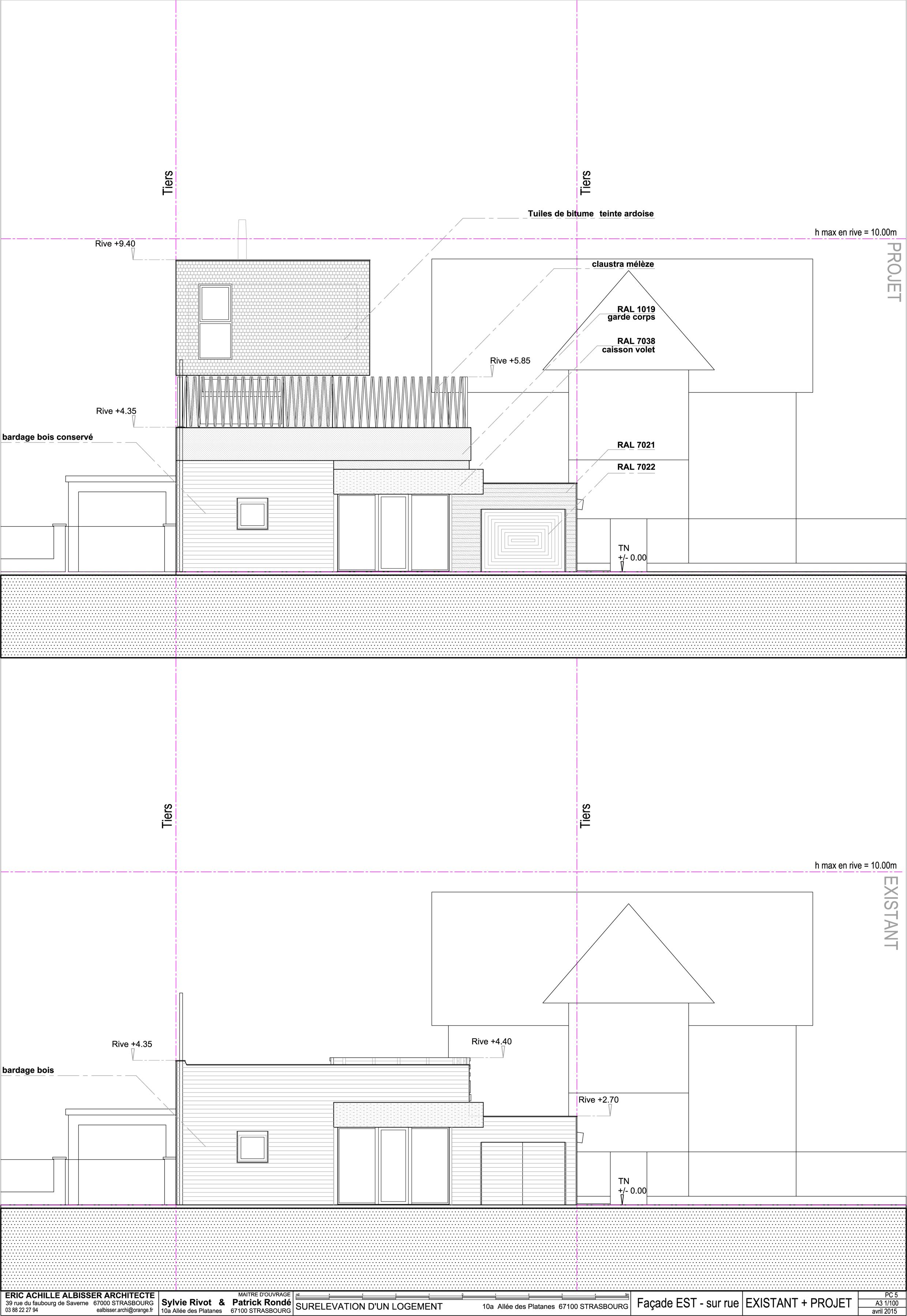
Cette double surélévation d'un logement en RdC, ex atelier occupant l'intégralité de son terrain, pallie à la rareté de vues vers le dehors en prolongeant verticalement l'espace de vie par un espace sur terrasse au N1 et une pièce en belvédère. Cet empilement génère une échelle en phase avec les gabarits de la rue, et préserve vues et apports de lumière pour le voisinage. Le strict volume du N2 qui semble se poser sur le claustra enveloppant et filtrant du N1, s'atteint par un escalier en panneau 3plis qui produit une séquence verticale aux lumières et vues multiples et découpées.

Catégorie Bâtiment / logement
Numéro de projet615
Date de candidature27/03/2018

Bâtiment / logement

Détail projet

Typologie de bâtiment : Extension / surélévation
Type de bâtiment : Logement individuel supérieur à 120 m²
Année de livraison : 2018
Surface totale du bâtiment en m² : 32
Coût total en € HT (hors foncier, hors VRD, hors honoraires) : 99000
Lot bois n°1 concerné : ossature bois
Coût du lot bois n°1 - € HT : 49768
Lot bois n°2 concerné : Menuiserie extérieure bois
Coût du lot bois n°2 - € HT : 8303
Bois Français : oui

Structure bois du bâtiment

Structure verticale :

ProduitEssenceProvenances (lieu de croissance du bois)Traitements de préservationMarque et certification produit
Panneau ossature boisGrand-Est

Structure horizontale :

ProduitEssenceProvenances (lieu de croissance du bois)Traitements de préservationMarque et certification produit
Dalle boisÉpicéa communGrand-Est

Charpente :

ProduitEssenceProvenances (lieu de croissance du bois)Traitements de préservationMarque et certification produit
Charpente bois lamellé-colléÉpicéa communGrand-Est

Revêtement bois extérieur

Revêtement bois ou dérivés :

ProduitEssenceProvenances (lieu de croissance du bois)Marque et certification produitFinitionTraitements de préservation
Lame bois massifÉpicéa communGrand-EstAutres
Lame bois massifMélèzeGrand-EstAucune finition
Panneau contreplaquéMélèzeGrand-EstLasure

Revêtement minéral :

Produit
Enduit ciment

Autre revêtement métallique :

Produit
Zinc

Menuiserie intérieure et extérieure

Menuiserie extérieure :

ProduitEssenceProvenances (lieu de croissance du bois)Marque et certification produitFinition
Menuiserie boisEuropePeinture

Isolation des murs

Isolation intérieure des murs :

Produit
Laine de bois souple
Epaisseur (mm) Isolation intérieure des murs : 45

Isolation entre-montant des murs :

Produit
Laine de bois souple
Epaisseur (mm) Isolation entre-montant des murs : 200

Isolation extérieure des murs :

Produit
Fibre de bois (Panneaux)
Epaisseur (mm) Isolation extérieure des murs : 40

Isolation de la toiture

Epaisseur (mm) Isolation intérieure de la toiture : 45
Epaisseur (mm) Isolation entre-montant de la toiture : 280
Epaisseur (mm) Isolation extérieure de la toiture : 40

Approche environnementale : Parois de R 7 et 9 quasi Passivhaus. Emploi de matériaux bois ou dérivés pour l'ensemble de la construction, (biosourçage, stockage carbone, perspirance, faible conductivité, faible énergie grise, légèreté), hormis le bardeau de bitume du N2 exploité ici comme protection à la forte exposition climatique de tous côtés, du bardage ventilé en voliges non rabotées (valorisation de produit bois peu transformé). L'énergie grise de ce matériau traditionnel reste modérée (résidu de process "pétrole" + quartz, produit localement). Création d'un potager en bacs (biodiversité et autosubsistance).

Descriptif technique : Deux niveaux en ossature bois s'appuient sur un mur de maçonnerie du Rdc et sur un portique en métal créé au droit d'un mur jugé insuffisamment porteur. Les lots ossature_isolation_couverture_bardage_escalier_enduit minéral ont été réalisés par un charpentier dont passion et ingéniosité ont permis une résolution poussée des détails d'imbrication des divers profilés et panneaux bois. Le plancher chauffant (gaz) existant au RdC est complété par un insert à bûches dont la chaleur s'élève par les trémies de l'escalier. Le conduit extérieur de 6m sera repris par la structure/loggia restant à poser sur le N1.

Chauffage au Bois : oui
Appareil de chauffage au bois : Autres
Données déclaratives

Acteurs du projet

Etudes et ingénieries (1)

Maître d'œuvre - Architecte mandataire

Eric Achille Albisser Architecte (67)

Entreprises des lots bois (1)

Charpentier

CHEHER'WOOD (57)




* : L'entreprise n'est plus active
Retour à la liste