Apprendre – se divertir

Pôle éducatif et périscolaire à Gy

70700 Gy - Haute Saône - Bourgogne-Franche-Comté

BÂTIMENT / LOGEMENT

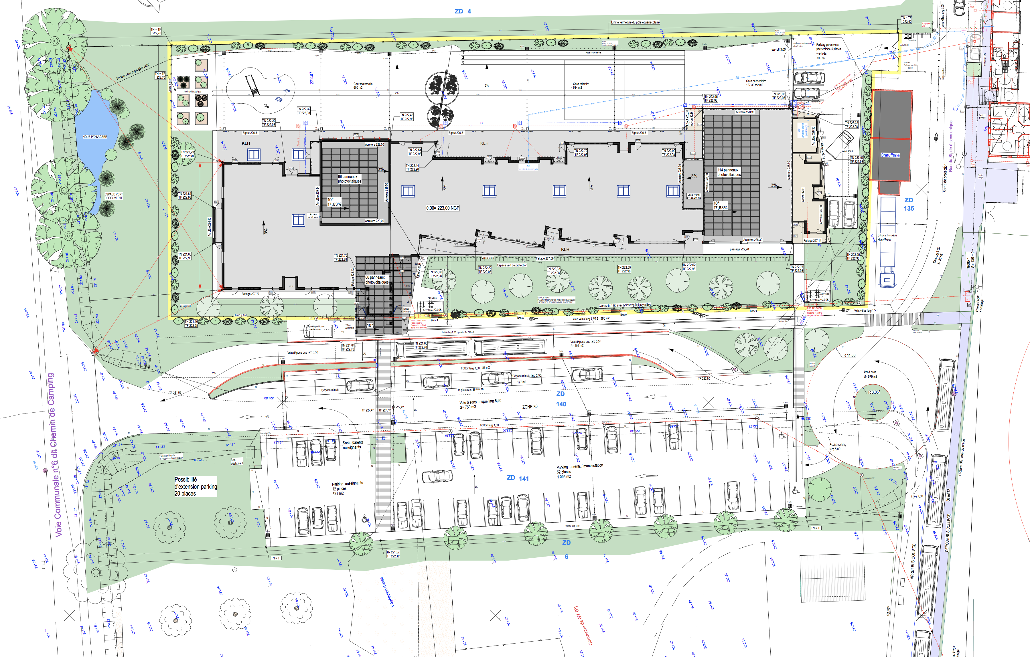
Pôle éducatif avec périscolaire à côté du collège et du gymnase de Gy. Le bâtiment s'est implanté parallèlement à la voie d'accès bus avec une orientation Nord-Est, Sud-Ouest. Il se décompose en trois volume distinct : un espace maternelle avec 3 classes, motricité sur le pignon Nord ouest, un corps central de bâtiment contenant le primaire avec 4 classes, BCD, salle activités et administration et d'une tête sur la façade Sud est composé du périscolaire.

Catégorie Bâtiment / logement
Numéro de projet6156
Adresse du projet Rue du Stade
70700 Gy
Date de candidature08/03/2021

Bâtiment / logement

Détail projet

Typologie de bâtiment : Neuf
Type de bâtiment : Enseignement ou éducation
Année de livraison : 2019
Surface totale du bâtiment en m² : 1714
Coût total en € HT (hors foncier, hors VRD, hors honoraires) : 2910738
Lot bois n°1 concerné : Charpente bois
Volume lot bois n°1 - m³ : 65
Coût du lot bois n°1 - € HT : 458741
Bois Français : oui
Isolations biosourcées (préciser dans le descriptif technique) : non
Finitions intéreures biosourcées ou géosourcées (préciser dans le descriptif technique) : non

Structure bois du bâtiment

Structure verticale :

ProduitEssenceProvenances (lieu de croissance du bois)Traitements de préservationMarque et certification produit
Panneau ossature boisSapin pectinéBourgogne-Franche-ComtéTraitement Classe 3a (trempage)

Structure horizontale :

ProduitEssenceProvenances (lieu de croissance du bois)Traitements de préservationMarque et certification produit
Plancher mixte bois-bétonEuropeAucun traitement

Charpente :

ProduitEssenceProvenances (lieu de croissance du bois)Traitements de préservationMarque et certification produit
Charpente bois lamellé-colléSapin pectinéBourgogne-Franche-ComtéTraitement Classe 3a (trempage)

Revêtement bois extérieur

Revêtement bois ou dérivés :

ProduitEssenceProvenances (lieu de croissance du bois)Marque et certification produitFinitionTraitements de préservation
Panneau de synthèse ou compositeEuropeJe n'ai pas l'informationAucun traitement

Menuiserie intérieure et extérieure

Isolation des murs

Isolation intérieure des murs :

Produit
Laine de verre
Epaisseur (mm) Isolation intérieure des murs : 80

Isolation entre-montant des murs :

Produit
Laine de verre
Epaisseur (mm) Isolation entre-montant des murs : 200

Isolation de la toiture

Epaisseur (mm) Isolation extérieure de la toiture : 280

Approche environnementale : Bâtiment BEPOS (énergie positive) Livraison d’eau chaude depuis la chaufferie jusqu’en sous-station sur la partie pôle et périscolaire depuis la chaufferie bois à proximité.

Descriptif technique : Murs de façades en ossature bois de 200mm avec bardage stratifié compact avec colonne vertébrale en murs banché. Toitures en bac acier 70S avec isolant laine de roche 120 mm et mousse polyuréthane 160 mm et en finition membrane pvc de teinte grise. Cette toiture dans un soucis d'économie d'énergie (bâtiment énergie positive BEPOS), recevra 246 panneaux photovoltaïques de teinte gris anthracite orientés Sud, Sud Ouest avec une inclinaison de 10° et répartis techniquement afin d'obtenir le meilleur rendement (pas d'ombre portée). infiltrométrie 0,61 m3/h/m2

Chauffage au Bois : oui
Appareil de chauffage au bois : Chaudière
Certifications, labels et marques bâtiment : Effinergie 2017
Données déclaratives

Acteurs du projet

Maître d'ouvrage (1)

Maître d'ouvrage - État ou collectivité (locale et territ)

Syndicat Intercommunal des Ecoles maternelles et Primaire de Gy - ComCom des Monts de Gy (70)

Etudes et ingénieries (4)

Maître d'œuvre - Architecte mandataire

Rochet-Blanc ARCHITECTE (70)

Bureau d'études structure bois

ETABLISSEMENTS VERDOT (25)

Bureau d'études thermique

BET VIALA (BET PICARD &VIALA) (BET VIALA) (25)

Economiste

Rochet-Blanc ARCHITECTE (70)

Entreprises des lots bois (2)

Charpentier

ETABLISSEMENTS VERDOT (25)

Menuisier

sarl Maignan (39)




* : L'entreprise n'est plus active
Retour à la liste