Travailler – accueillir
Travailler – accueillir

Clinique vétérinaire à Grandchamp des Fontaines

44119 Grandchamp des Fontaines - Loire Atlantique - Pays de la Loire

BÂTIMENT / LOGEMENT

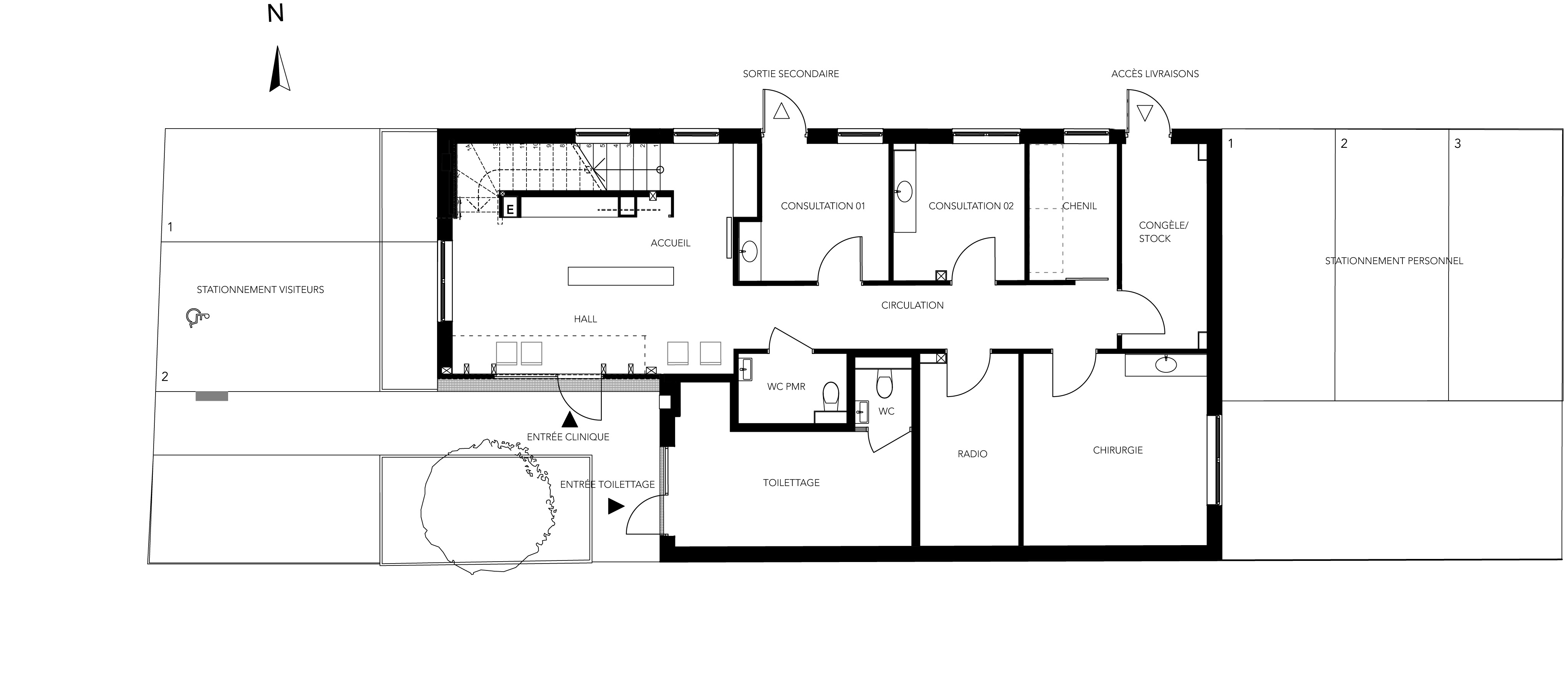
Le projet se décompose en 3 volumes qui s’inspirent des constructions voisines par leur volumétrie et leur toiture à double pente. Le volume principal est de forme plus verticale et sa façade sud est traitée en polycarbonate comme une façade lumineuse. De par sa hauteur et sa matérialité, ce volume permet à la fois de structurer la rue de la Butte, et de signaler la présence de la clinique vétérinaire. Les 2 autres volumes à l’arrière sont plus étendus et s'alignent au bâti avoisinant.

Catégorie Bâtiment / logement
Numéro de projet6158
Adresse du projet 14bis rue de la Butte
44119 Grandchamp des Fontaines
Date de candidature08/03/2021

Bâtiment / logement

Détail projet

Typologie de bâtiment : Neuf
Type de bâtiment : Santé
Année de livraison : 2020
Surface totale du bâtiment en m² : 146
Coût total en € HT (hors foncier, hors VRD, hors honoraires) : 274084.9
Lot bois n°1 concerné : ossature bois
Volume lot bois n°1 - m³ : 12
Coût du lot bois n°1 - € HT : 39400
Bois Français : non
Isolations biosourcées (préciser dans le descriptif technique) : non
Finitions intéreures biosourcées ou géosourcées (préciser dans le descriptif technique) : non

Structure bois du bâtiment

Structure verticale :

ProduitEssenceProvenances (lieu de croissance du bois)Traitements de préservationMarque et certification produit
Panneau ossature boisEuropeAucun traitement

Structure horizontale :

ProduitEssenceProvenances (lieu de croissance du bois)Traitements de préservationMarque et certification produit
Dalle boisÉpicéa communEuropeAucun traitement

Charpente :

ProduitEssenceProvenances (lieu de croissance du bois)Traitements de préservationMarque et certification produit
Charpente traditionnelleÉpicéa communEuropeAucun traitement

Revêtement bois extérieur

Menuiserie intérieure et extérieure

Isolation des murs

Isolation intérieure des murs :

Produit
Laine de roche
Epaisseur (mm) Isolation intérieure des murs : 60

Isolation entre-montant des murs :

Produit
Laine de roche
Epaisseur (mm) Isolation entre-montant des murs : 145

Isolation de la toiture

Epaisseur (mm) Isolation entre-montant de la toiture : 300

Approche environnementale : Le projet se compose visuellement de 3 volumes mais le volume chauffé est bien plus compact et permet de limiter les besoins énergétiques. La façade sud en polycarbonate apporte les besoins solaires nécessaires. Ossature bois pour les murs, fermettes pour la toiture, l'industrialisation et la préfabrication de toute la structure bois ont permis de rester dans une enveloppe budgétaire raisonnable.

Descriptif technique : PEFC (Gestion forestière durable) NF Logement

Chauffage au Bois : non
Certifications, labels et marques bâtiment : Aucun
Données déclaratives

Acteurs du projet

Etudes et ingénieries (4)

Maître d'œuvre - Architecte mandataire

Loom Architecture (44)

Bureau d'études structure bois

Atlantique Loire Structure (44)

Bureau d'études thermique

AIREO ENERGIES (44)

Economiste

Matrice Economie (44)

Entreprises des lots bois (1)

Charpentier

Eurl Safran Charpente Briodeau (44)




* : L'entreprise n'est plus active
Retour à la liste