Travailler – accueillir

Capitainerie Maison de la mer

22740 Lezardrieux - Côtes d'Armor - Bretagne

BÂTIMENT / LOGEMENT

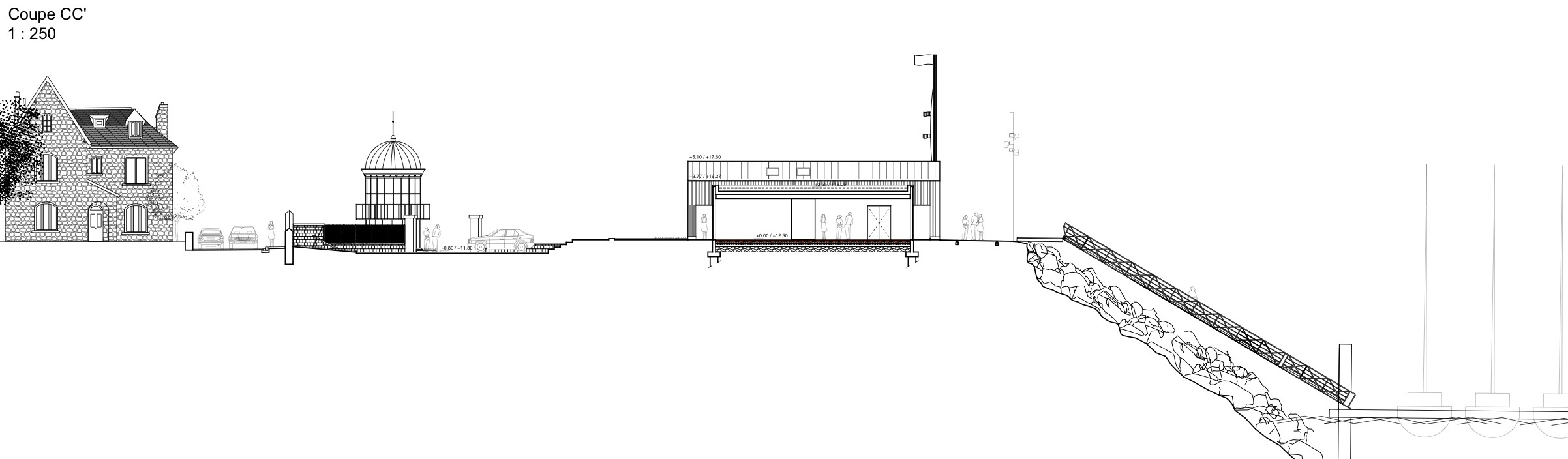
La capitainerie/maison de la mer est située à l'entrée du port, dans l'estuaire du Trieux, un site en zone de protection MH et Natura 2000. Construite sur pieux, en zone de submersion marine, sur la base d'une ossature centrale en BA, la charpente et les parois extérieures sont en ossature bois. Le programme comprend la capitainerie (bureau du port, salle des équipiers, sanitaires), des bureaux liés à l'activité portuaire, et une salle polyvalente. L'architecture est composée de plusieurs nefs juxtaposées, habillées de bardage bois et zinc dans une composition de trames verticales.

Catégorie Bâtiment / logement
Numéro de projet6180
Adresse du projet route départementale 20
22740 Lezardrieux
Date de candidature08/03/2021

Bâtiment / logement

Détail projet

Typologie de bâtiment : Neuf
Type de bâtiment : Service institutionnel et public
Année de livraison : 2020
Surface totale du bâtiment en m² : 500
Coût total en € HT (hors foncier, hors VRD, hors honoraires) : 1100000
Lot bois n°1 concerné : ossature bois
Volume lot bois n°1 - m³ : 43.7
Coût du lot bois n°1 - € HT : 75563
Lot bois n°2 concerné : Bardage bois
Volume lot bois n°2 - m³ : 14.6
Coût du lot bois n°2 - € HT : 58243
Bois Français : oui
Isolations biosourcées (préciser dans le descriptif technique) : non
Finitions intéreures biosourcées ou géosourcées (préciser dans le descriptif technique) : non

Structure bois du bâtiment

Structure verticale :

ProduitEssenceProvenances (lieu de croissance du bois)Traitements de préservationMarque et certification produit
Panneau ossature boisEuropeTraitement Classe 2 (trempage)

Structure horizontale :

ProduitEssenceProvenances (lieu de croissance du bois)Traitements de préservationMarque et certification produit
Solivage traditionnelÉpicéa communEuropeTraitement Classe 2 (trempage)

Charpente :

ProduitEssenceProvenances (lieu de croissance du bois)Traitements de préservationMarque et certification produit
Charpente traditionnelleÉpicéa communTraitement Classe 2 (trempage)

Revêtement bois extérieur

Revêtement bois ou dérivés :

ProduitEssenceProvenances (lieu de croissance du bois)Marque et certification produitFinitionTraitements de préservation
Lame bois massifDouglasFranceSaturateurAucun traitement

Revêtement minéral :

Produit
Autres

Autre revêtement métallique :

Produit
Zinc

Menuiserie intérieure et extérieure

Isolation des murs

Isolation intérieure des murs :

Produit
Laine de roche
Epaisseur (mm) Isolation intérieure des murs : 100

Isolation entre-montant des murs :

Produit
Laine de roche
Epaisseur (mm) Isolation entre-montant des murs : 150

Isolation de la toiture

Epaisseur (mm) Isolation intérieure de la toiture : 400

Approche environnementale : L'eau chaude du bloc sanitaire à disposition des plaisanciers est produite avec des panneaux solaires en toiture intégrés dans les pentes de couverture. L'enveloppe du bâtiment est entièrement habillés de filtres solaires en bois et/ou aluminium pour éviter l'échauffement.

Descriptif technique : Construit sur pieux ancrés sur le rocher à 12 m, le bâtiment est à 80 cm du sol avant travaux, pour répondre au risque de submersion marine. Sur un plancher posé sur longrine avec 220cm d'isolant, l'ossature centrale est en BA et l'ossature périphérique ainsi que la charpente en bois massif. L'ensemble est revêtu d'un bardage bois en Douglas français, constitué de planches et couvre-joints posés verticalement et traités avec un saturateur gris cendré et de tasseaux bois finition naturelle, en pose verticale ou en clins.

Chauffage au Bois : non
Données déclaratives

Acteurs du projet

Maître d'ouvrage (1)

Maître d'ouvrage - État ou collectivité (locale et territ)

COMMUNE DE LÉZARDRIEUX (22)

Etudes et ingénieries (1)

Bureau d'études environnement

SAFEGE (35)




* : L'entreprise n'est plus active
Retour à la liste