Apprendre – se divertir

Halle et salles de classe polyvalentes

57330 Zoufftgen - Moselle - Grand Est

BÂTIMENT / LOGEMENT

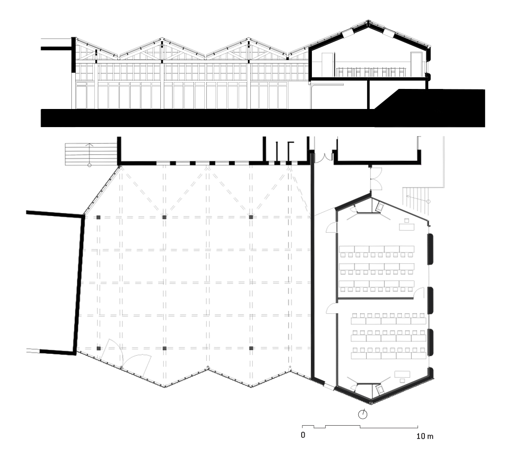
Cet ensemble architectural complète et achève la série d’extension déjà opérées depuis l’origine de l’école-mairie. Le projet prend la forme d’un pliage du toit et de la façade tel un origami. Il articule la continuité des bâtiments de l’école par un enduit à la chaux mais avec des ouvertures variées. Il revêt une image plus abstraite vers le parc au Nord, avec le découpage du toit qui répond à ceux existant de l’ancienne école et de l’église et un bardage de planches verticales de mélèze brut de sciage.

Catégorie Bâtiment / logement
Numéro de projet6270
Adresse du projet 57330 Zoufftgen
Date de candidature10/03/2021
Récompense3ème prix

Bâtiment / logement

Détail projet

Typologie de bâtiment : Neuf
Type de bâtiment : Enseignement ou éducation
Année de livraison : 2018
Surface totale du bâtiment en m² : 700
Dont extension / surélévation en m² : 551
Coût total en € HT (hors foncier, hors VRD, hors honoraires) : 560000
Volume lot bois n°1 - m³ : 80
Coût du lot bois n°1 - € HT : 280000
Volume lot bois n°2 - m³ : 20
Coût du lot bois n°2 - € HT : 62000
Bois Français : oui
Isolations biosourcées (préciser dans le descriptif technique) : oui
Finitions intéreures biosourcées ou géosourcées (préciser dans le descriptif technique) : oui

Structure bois du bâtiment

Structure verticale :

ProduitEssenceProvenances (lieu de croissance du bois)Traitements de préservationMarque et certification produit
Panneau ossature boisÉpicéa communEurope
Poteau poutreFrêneGrand-EstAucun traitement

Structure horizontale :

ProduitEssenceProvenances (lieu de croissance du bois)Traitements de préservationMarque et certification produit
Poutre en I ou mixteÉpicéa communEurope

Charpente :

ProduitEssenceProvenances (lieu de croissance du bois)Traitements de préservationMarque et certification produit
Charpente traditionnelleÉpicéa communGrand-EstJe n'ai pas l'information

Revêtement bois extérieur

Revêtement bois ou dérivés :

ProduitEssenceProvenances (lieu de croissance du bois)Marque et certification produitFinitionTraitements de préservation
Lame bois massifMélèzeGrand-EstAucun traitement

Revêtement minéral :

Produit
Enduit chaux

Menuiserie intérieure et extérieure

Menuiserie extérieure :

ProduitEssenceProvenances (lieu de croissance du bois)Marque et certification produitFinition
Menuiserie boisMélèzeGrand-EstLasure

Isolation des murs

Isolation intérieure des murs :

Produit
Laine de bois souple
Epaisseur (mm) Isolation intérieure des murs : 60

Isolation entre-montant des murs :

Produit
Epaisseur (mm) Isolation entre-montant des murs : 350

Isolation extérieure des murs :

Produit
Béton de chanvre
Epaisseur (mm) Isolation extérieure des murs : 350

Isolation de la toiture

Epaisseur (mm) Isolation intérieure de la toiture : 60
Epaisseur (mm) Isolation entre-montant de la toiture : 350
Epaisseur (mm) Isolation extérieure de la toiture : 120

Approche environnementale : Ce projet est évolutif et polyvalent. Une concertation avec les habitants du village a permis de déterminer les réels besoins. En résulte la construction d’une halle couverte et close, non chauffée. Le souhait de la commune de construire le plus écologiquement possible est satisfait par la construction bois et fibres végétales (bottes de paille et chaux-chanvre). Le fait que l’ensemble soit construit essentiellement en filière sèche contribue à la réduction des nuisances en site occupé, des déchets en chantier, de la consommation d’eau et des pollutions.

Descriptif technique : La construction est à 90% en filière sèche. Les caissons à ossature bois du plancher sont isolés de ouate de cellulose, les murs et la toiture sont isolés par des bottes de paille et une partie en chaux-chanvre projeté. La charpente de la couverture de la halle a été construite sur des poteaux en rondin de frêne des Vosges du Nord juste écorcés. Les salles de classe sont chauffées par la ventilation double flux raccordée au réseau de chaleur de la chaufferie bois à proximité.

Chauffage au Bois : non
Données déclaratives

Acteurs du projet

Maître d'ouvrage (1)

Maître d'ouvrage - État ou collectivité (locale et territ)

Mairie de ZOUFFTGEN (57)

Etudes et ingénieries (5)

Maître d'œuvre - Architecte mandataire

G. studio (67) *
K&+ architecture globale (67)

Bureau d'études structure bois

INGENIERIE BOIS (67)

Bureau d'études thermique

SOLARES BAUEN (67)

Economiste

E3 ECONOMIE (67)

Entreprises des lots bois (3)

Charpentier

CHARPENTES MARTIN FILS (67)

Menuisier

VOLLMER menuiseries extérieures (67)

Autre lot de la construction (en lien avec le bois)

BATILIBRE (67)

Fournisseurs du bois (1)

Scierie

SCIERIE MOMBERT (57)




* : L'entreprise n'est plus active
Retour à la liste