Habiter ensemble

Quartier sénior à Espinasse Vozelle

03110 ESPINASSE VOZELLE - Allier - Auvergne-Rhône-Alpes

BÂTIMENT / LOGEMENT

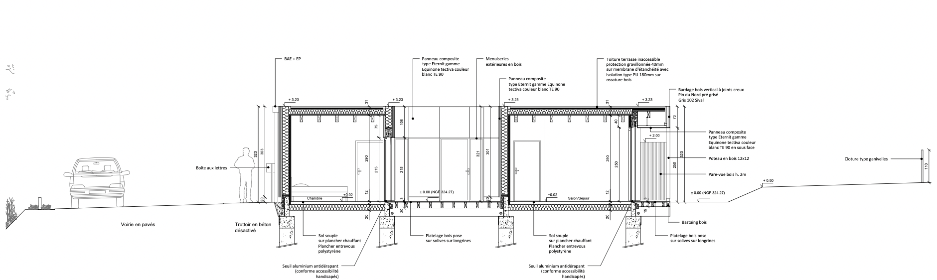
Le quartier sénior se compose de 10 logements adaptés pour personnes âgées et d'espaces extérieurs partagés. Les logements sont implantés sur un axe Est/ Ouest sur la base de 3 lignes cassées afin de permettre un rythme sur la longueur des façades, d’ouvrir certains chemins piétons en direction du Sud et des espaces partagés, et de faire bénéficier tous les logements des mêmes orientations. Les séjours sont donc tous orientés au Sud, protégés des rayons estivaux par une avancée de toiture, et par un arbre fruitier planté dans chaque jardin. Les 4 premiers logements ont été livrés en 2019.

Catégorie Bâtiment / logement
Numéro de projet6273
Adresse du projet 03110 ESPINASSE VOZELLE
Date de candidature10/03/2021

Bâtiment / logement

Détail projet

Typologie de bâtiment : Neuf
Type de bâtiment : Logement groupé
Année de livraison : 2019
Surface totale du bâtiment en m² : 226
Coût total en € HT (hors foncier, hors VRD, hors honoraires) : 399000
Coût du lot bois n°1 - € HT : 120130
Bois Français : oui
Isolations biosourcées (préciser dans le descriptif technique) : oui
Finitions intéreures biosourcées ou géosourcées (préciser dans le descriptif technique) : non

Structure bois du bâtiment

Structure verticale :

ProduitEssenceProvenances (lieu de croissance du bois)Traitements de préservationMarque et certification produit
Panneau ossature boisAuvergne-Rhône-AlpesJe n'ai pas l'information
Panneau ossature boisDouglasAuvergne-Rhône-AlpesJe n'ai pas l'information

Structure horizontale :

ProduitEssenceProvenances (lieu de croissance du bois)Traitements de préservationMarque et certification produit
Plancher béton

Charpente :

ProduitEssenceProvenances (lieu de croissance du bois)Traitements de préservationMarque et certification produit
Charpente traditionnelleDouglas

Revêtement bois extérieur

Revêtement bois ou dérivés :

ProduitEssenceProvenances (lieu de croissance du bois)Marque et certification produitFinitionTraitements de préservation
Bardeau boisMélèze
Lame bois massifMélèzeSaturateur

Menuiserie intérieure et extérieure

Menuiserie extérieure :

ProduitEssenceProvenances (lieu de croissance du bois)Marque et certification produitFinition
Menuiserie boisPin sylvestreFranceSaturateur

Isolation des murs

Isolation intérieure des murs :

Produit
Fibre de bois (Panneaux)
Epaisseur (mm) Isolation intérieure des murs : 100

Isolation extérieure des murs :

Produit
Fibre de bois (Panneaux)
Epaisseur (mm) Isolation extérieure des murs : 200

Isolation de la toiture

Epaisseur (mm) Isolation extérieure de la toiture : 180

Approche environnementale : La structure est composée de panneaux ossature bois Douglas avec isolant en panneaux de fibre de bois. Le doublage intérieur est de même nature. Chaque pièce bénéficie de lumière et de ventilation naturelles, aucun espace n'est privilégié par rapport aux autres. Les baies coulissantes disposent de BSO et sont dimensionnées pour faire pénétrer un maximum de lumière. Le confort visuel concerne aussi les vues sur l’extérieur. Les logements bénéficient d'une diversité des espaces extérieurs privatifs plus ou moins intimes : patio avec claustra bois, jardin au Sud avec petite terrasse protégée.

Chauffage au Bois : non
Données déclaratives

Acteurs du projet

Maître d'ouvrage (1)

Maître d'ouvrage - État ou collectivité (locale et territ)

COMMUNE DE ESPINASSE VOZELLE (03)

Etudes et ingénieries (4)

Maître d'œuvre - Architecte mandataire

ATELIER KIZILTAS ARCHITECTES (63)

Bureau d'études structure bois

ARBORESCENCE (69)
CHEVRIER INGENIERIE (03)

Paysagiste

ATELIER KIZILTAS ARCHITECTES (63)

Entreprises des lots bois (1)

Charpentier

CMV ROSSIGNOL (03)




* : L'entreprise n'est plus active
Retour à la liste