Habiter une maison

La maison bis

35000 RENNES - Ille et Vilaine - Bretagne

BÂTIMENT / LOGEMENT

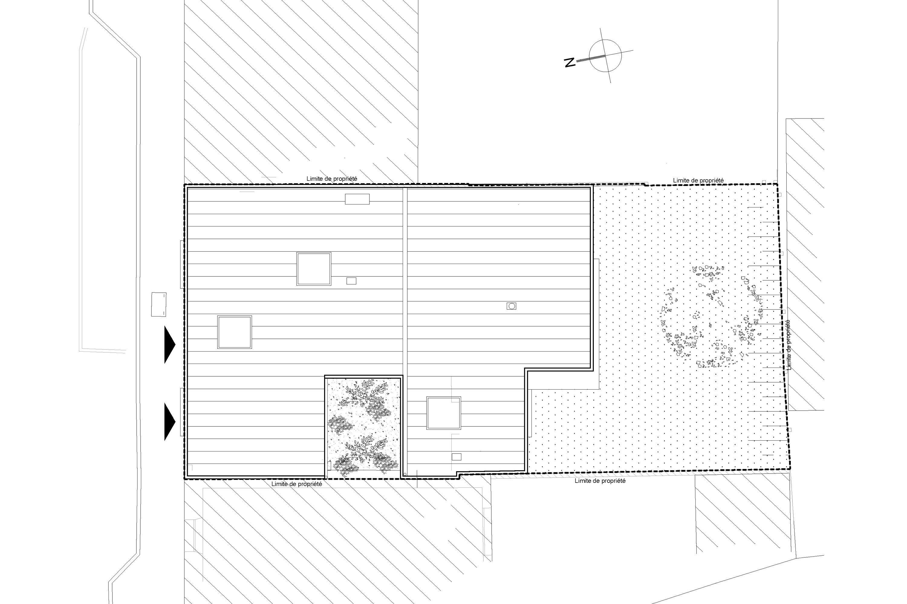
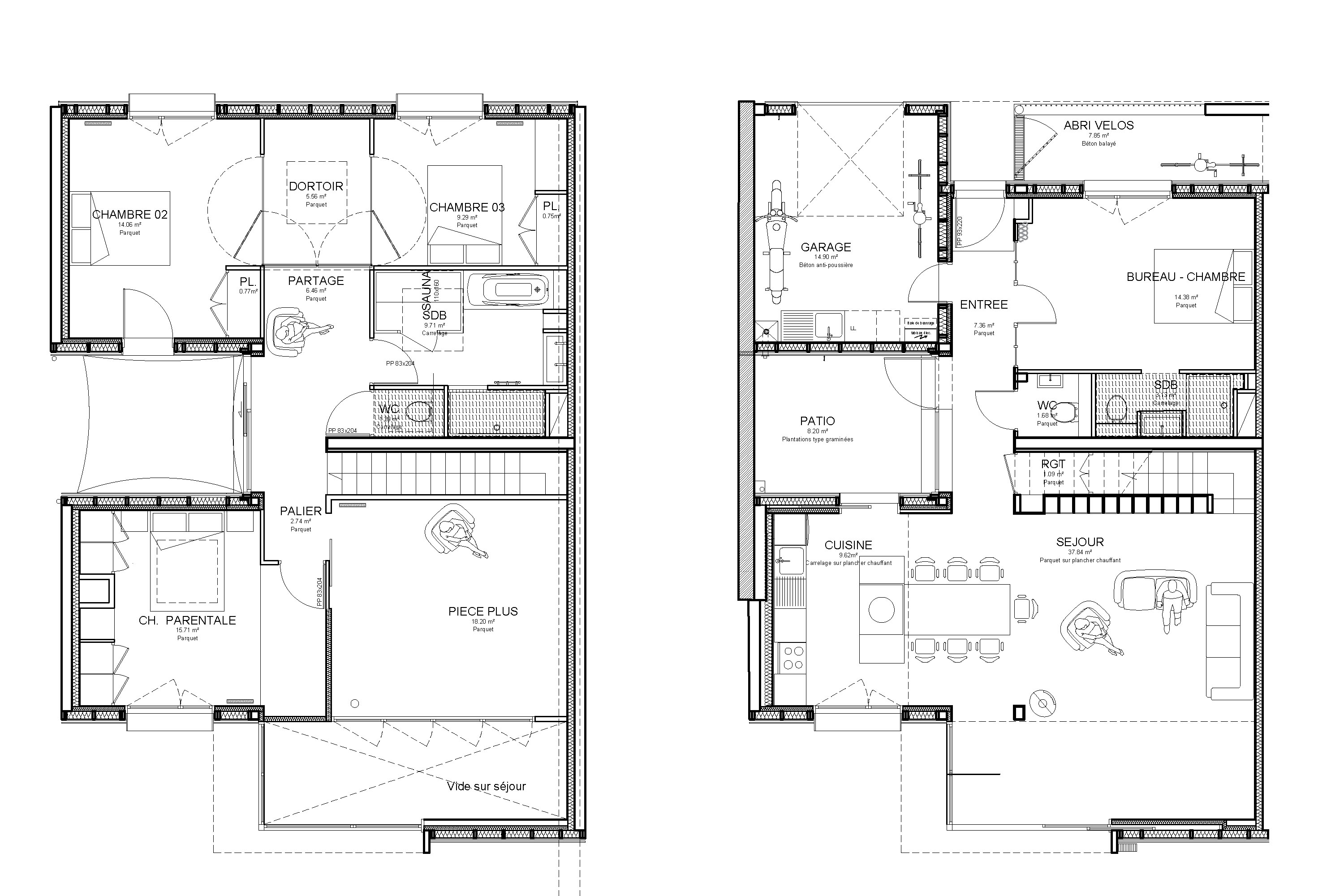
La famille a évolué; les enfants sont partis. La maison coincée entre deux murs est évolutive. Un patio intérieur sert d'apport de lumière mais aussi d'outil pour fabriquer des perspectives, des vues croisées dans la maison. De même, des ouvertures intérieures et les fenêtres de toit participent à cette richesse de rapport entre les pièces. La maison propose une pièce + des chambres variables qui évoluent en fonction des personnes accueillies et d'un sauna! Un ensemble bibliothèque escalier se dessine pour jouer avec le devant derrière, filtrer la lumière et devient ainsi un mur vivant.

Catégorie Bâtiment / logement
Numéro de projet6323
Date de candidature12/03/2021

Bâtiment / logement

Détail projet

Typologie de bâtiment : Neuf
Type de bâtiment : Logement individuel supérieur à 120 m²
Année de livraison : 2021
Surface totale du bâtiment en m² : 144
Coût total en € HT (hors foncier, hors VRD, hors honoraires) : 295000
Lot bois n°1 concerné : Charpente bois
Volume lot bois n°1 - m³ : 16.5
Lot bois n°2 concerné : Bardage bois
Volume lot bois n°2 - m³ : 2.35
Bois Français : oui
Isolations biosourcées (préciser dans le descriptif technique) : non
Finitions intéreures biosourcées ou géosourcées (préciser dans le descriptif technique) : non

Structure bois du bâtiment

Structure verticale :

ProduitEssenceProvenances (lieu de croissance du bois)Traitements de préservationMarque et certification produit
Panneau ossature bois

Structure horizontale :

ProduitEssenceProvenances (lieu de croissance du bois)Traitements de préservationMarque et certification produit
Plancher mixte bois-bétonTempéré

Charpente :

ProduitEssenceProvenances (lieu de croissance du bois)Traitements de préservationMarque et certification produit
Charpente bois lamellé-colléÉpicéa commun

Revêtement bois extérieur

Revêtement bois ou dérivés :

ProduitEssenceProvenances (lieu de croissance du bois)Marque et certification produitFinitionTraitements de préservation
Lame bois massifDouglas

Revêtement minéral :

Produit
Autres

Menuiserie intérieure et extérieure

Isolation des murs

Isolation intérieure des murs :

Produit
Laine de verre

Isolation de la toiture

Approche environnementale : L'usage du bois est une volonté d'une filière sèche, d'une facilité d'intervention en ville, et surtout d'un confort ressenti. Le plancher est en hourdis bois avec une chape béton. Les ouvertures sont très généreuses pour un apport solaire optimum.

Descriptif technique : La maison est composée de deux murs pignons en maçonnerie traditionnelle, d'un remplissage de façade en MOB, d'une charpente à double pente inversée, et d'un plancher béton en hourdis bois. Les menuiseries sont en aluminium. NF Maison Individuelle

Chauffage au Bois : non
Appareil de chauffage au bois : Poële/insert
Données déclaratives

Acteurs du projet

Maître d'ouvrage (1)

Maître d'ouvrage - Particuliers

particulier (x)

Etudes et ingénieries (1)

Maître d'œuvre - Architecte mandataire

GALLAIS CLAIRE ARCHITECTURE (35)

Entreprises des lots bois (2)

Charpentier

LAMY CHARPENTES (35)

Menuisier

mosbo (35) *

Fournisseurs du bois (1)

Industriel

DENIS MATERIAUX (DBI) (35)




* : L'entreprise n'est plus active
Retour à la liste