Réhabiliter un logement

La cerise sur le gâteau

35000 RENNES - Ille et Vilaine - Bretagne

BÂTIMENT / LOGEMENT

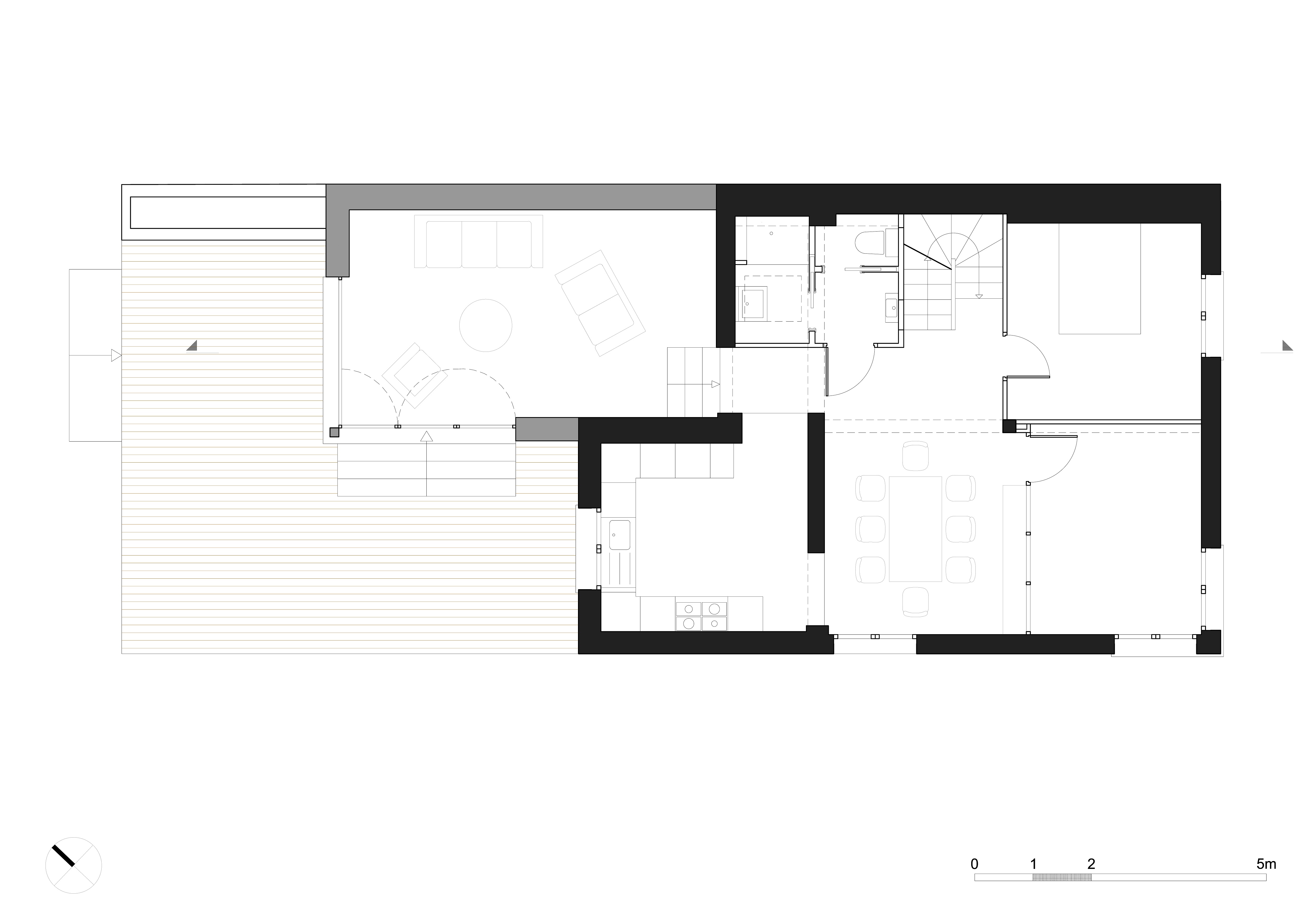
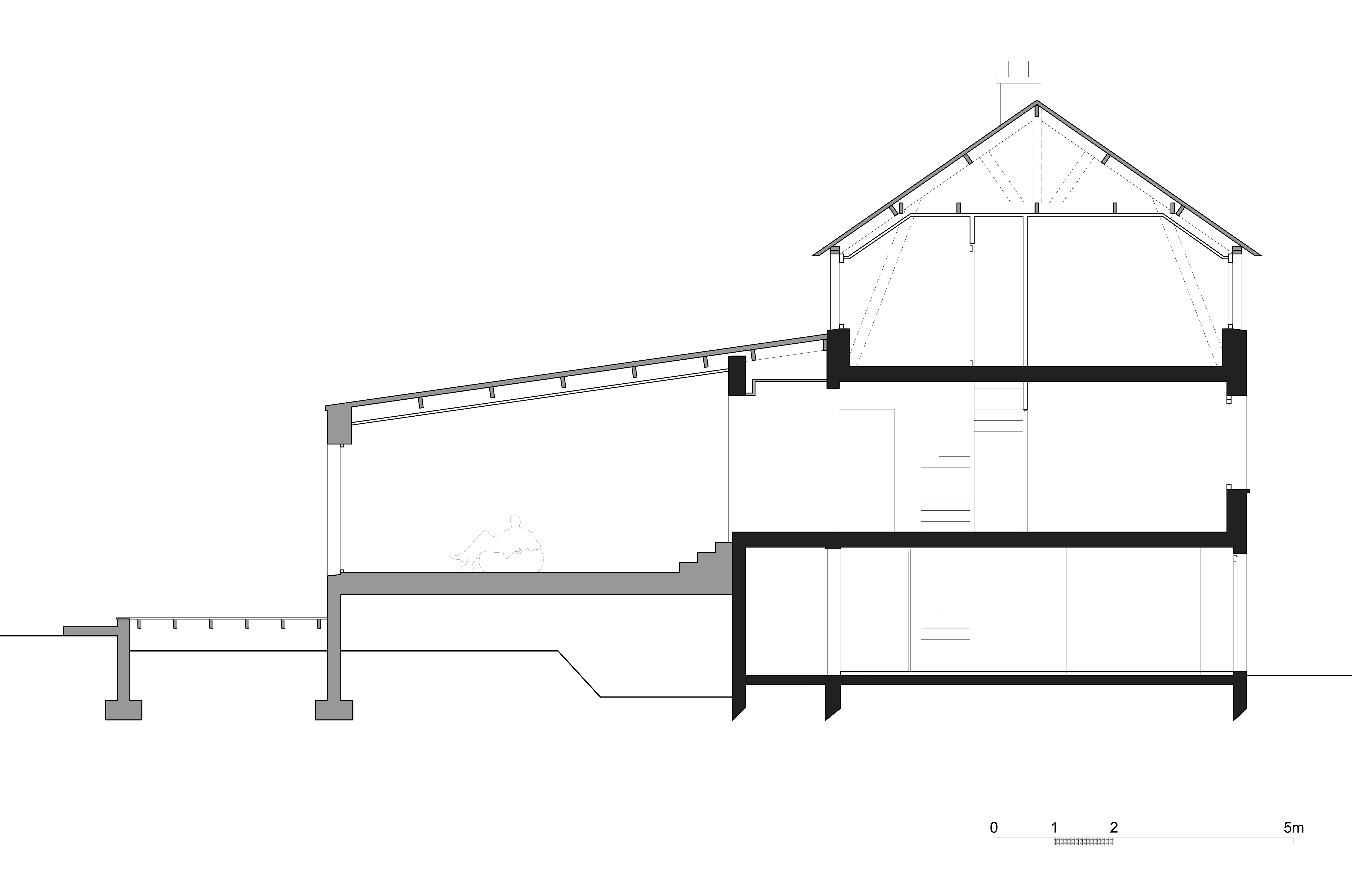
Dans cette rue composée de maisons en pierre se trouvait une maison des années 60 fonctionnelle mais sans qualité particulière. Le rapport au jardin de cette maison était inexistant et les combles impossible à aménager du fait de la faible hauteur sous toiture. Une surélévation permet de créer trois chambres et une salle de bain à l’étage. Une extension connecte par le biais d’une terrasse bois en demi-niveau le séjour à un jardin généreux. La surélévation est marquée par sa réalisation en chêne, composée d'un bandeau alternant menuiseries extérieures et panneaux pleins.

Catégorie Bâtiment / logement
Numéro de projet6324
Date de candidature12/03/2021

Bâtiment / logement

Détail projet

Typologie de bâtiment : Extension / surélévation
Type de bâtiment : Logement individuel supérieur à 120 m²
Année de livraison : 2017
Surface totale du bâtiment en m² : 145
Dont extension / surélévation en m² : 37
Coût total en € HT (hors foncier, hors VRD, hors honoraires) : 194000
Lot bois n°1 concerné : Charpente bois
Coût du lot bois n°1 - € HT : 18700
Lot bois n°2 concerné : Menuiserie extérieure bois
Coût du lot bois n°2 - € HT : 39000
Bois Français : oui
Isolations biosourcées (préciser dans le descriptif technique) : non
Finitions intéreures biosourcées ou géosourcées (préciser dans le descriptif technique) : non

Structure bois du bâtiment

Structure verticale :

ProduitEssenceProvenances (lieu de croissance du bois)Traitements de préservationMarque et certification produit
Non précisé
Panneau ossature bois

Structure horizontale :

ProduitEssenceProvenances (lieu de croissance du bois)Traitements de préservationMarque et certification produit
Plancher béton

Charpente :

ProduitEssenceProvenances (lieu de croissance du bois)Traitements de préservationMarque et certification produit
Charpente traditionnelleSapin pectinéFrance

Revêtement bois extérieur

Revêtement bois ou dérivés :

ProduitEssenceProvenances (lieu de croissance du bois)Marque et certification produitFinitionTraitements de préservation
Lame bois massifIPE

Menuiserie intérieure et extérieure

Menuiserie extérieure :

ProduitEssenceProvenances (lieu de croissance du bois)Marque et certification produitFinition
Menuiserie boisChêneFranceLasure

Isolation des murs

Isolation de la toiture

Descriptif technique : La surélévation est réalisée en ossature chêne, avec menuiseries extérieures en chêne de France et remplissage panneaux sandwichs avec parement chêne intérieur et extérieur. Les menuiseries existantes sont toutes remplacées et réalisées en chêne de France, portail et porte de garage inclus. Les menuiseries intérieures de la maison existantes sont toutes remplacées. Une verrière en bois est réalisée dans le séjour. Une généreuse terrasse en lames d'ipé sur lambourdes en sapin traité classe 4 est créée.

Chauffage au Bois : non
Données déclaratives

Acteurs du projet

Maître d'ouvrage (1)

Maître d'ouvrage - Particuliers

particulier (x)

Etudes et ingénieries (2)

Maître d'œuvre - Architecte mandataire

Briand Renault Architectes (35)

Bureau d'études thermique

ICOFLUIDES Maison (35)

Entreprises des lots bois (2)

Charpentier

CHARPENTE JPG (35)

Menuisier

POUPIN (53)




* : L'entreprise n'est plus active
Retour à la liste