Aménager
Aménager

Crématorium d'agglomération

54000 Nancy - Meurthe et Moselle - Grand Est
Lauréat régional

AMÉNAGEMENT BOIS

Aménagement intérieur

Conception par l'architecte de l'ensemble du mobilier du nouveau crématorium pour intégrer pleinement ce dernier à l’œuvre architecturale. Soit : - banque d'accueil - bancs des salles de cérémonie - pupitres des salles de cérémonies - tables basses des salles d'attentes - panneaux acoustiques.

Bâtiment / logement

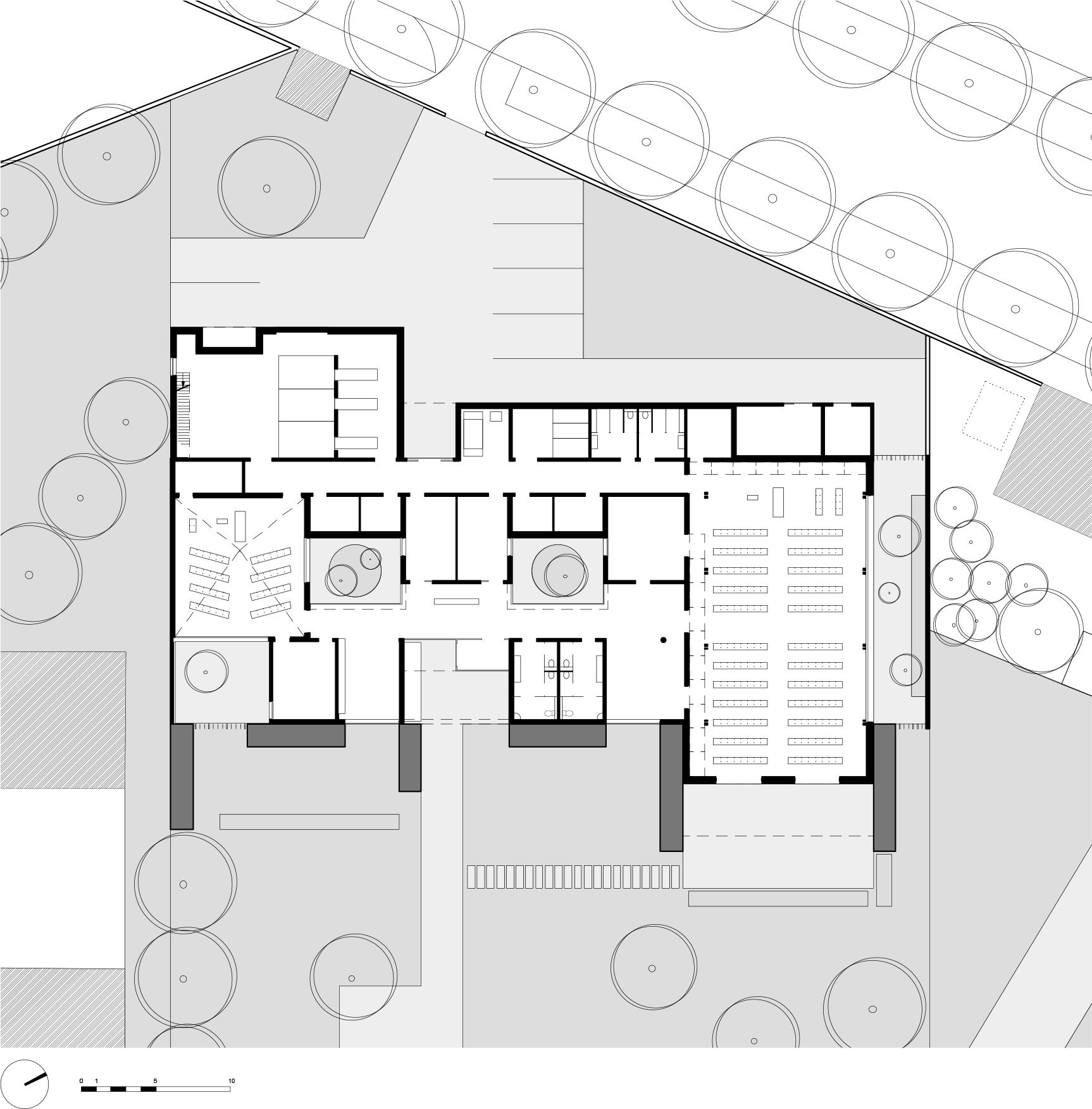
Le programme, celui du nouveau crématorium d'agglomération, comporte des enjeux techniques et fonctionnels très spécifiques, mais aussi évidemment architecturaux. Comme la pratique de la crémation implique des cérémonies laïques ou religieuses de différents cultes, elle demande à l'architecture une solennité neutre pour l'accompagnement du défunt par ses proches quelque soit la nature du rite. Il s'agit de traduire dans l'espace, la matière et la lumière, un rapport universel de l'homme à la mort. Le nouveau crématorium s'implante en retrait du mur d'enceinte sur l'avenue Paul Doumer et tourne sa façade principale vers le cimetière à la manière d'un pavillon isolé dans un parc. Cette façade est scandée par de massives piles de pierres calcaires marquant le passage du parvis paysager à l'intérieur du crématorium, porteur d'une monumentalité sensible au site et au parcours. L'écriture architecturale du projet recherche la stabilité des formes, la clarté des volumes, et la simplicité noble des matériaux naturels : pierre, bois, enduit. Le bâtiment de 1 200 m2 s'étire horizontalement et laisse émerger des volumes simples bardés de zinc : le long pan incliné de la grande salle de cérémonie, la pyramide à 4 faces de la petite salle, et en arrière plan le volume technique. Les espaces d'accueil du public orientent dés l'entrée les parcours distincts vers chacune des salles de cérémonies. La séquence des espaces traversés par les familles est traité avec soin et sobriété. La progression du chemin, tant physique que psychologique, vers les salles de cérémonies et l'adieu au défunt, se traduisent dans la définition des dimensions, des apports de lumière et des matériaux. A partir du hall d'entrée, chaque parcours est accompagné par un patio prodiguant une lumière naturelle maîtrisée et des vues intériorisées. Les salons d'attente sont traités comme des alcôves le long des parcours. Éléments importants du programme, les 2 salles de cérémonies de 50 et 200 places pourront accueillir dans des conditions respectueuses des cérémonies simultanées. Elles font toutes 2 l'objet d'un travail architectural, structurel et acoustique particulièrement étudié qui s'exprime notamment dans la combinaison d'une charpente contemporaine apparente et d'échappées visuelles vers des patios paysagés. L'ensemble des accès et fonctions techniques est situé côté cour de service, protégé de l'avenue Paul Doumer par le mur d'enceinte. Cette partie, traitée dans la plus grande fonctionnalité et ergonomie pour le personnel, est équipée de 3 fours de crémation dont un pour cercueil de grands gabarits. En complément du programme, une salle de convivialité de 100 m2 avec office et sanitaires sera également édifiée sur le site. Cette salle pourra recevoir les familles à l'issue des cérémonies, mais également des inhumations du cimetière du Sud.

Catégorie aménagement bois, aménagement intérieur, Bâtiment / logement
Numéro de projet633
Adresse du projet Avenue Paul Doumer
54000 Nancy
Date de candidature28/03/2018

aménagement bois

typologie : Service institutionnel et public
Coût total en € HT : 70000

aménagement intérieur

Année de réalisation : 2017-2018
Coût lots bois en € HT : 70000
Surface aménagée en m² : 1200

Liste des produits :

ProduitEssenceProvenances (lieu de croissance du bois)Marque et certification produitFinition
MobilierChêne

Descriptif technique de l'aménagement : L'ensemble du mobilier a été conçu à partir de panneaux lamellé chêne de 40mm. Finition cirée. Certains éléments complémentaires sont réalisés en panneaux MDF teintés dans la masse (Valchromat) de teinte noire.

Bâtiment / logement

Détail projet

Typologie de bâtiment : Neuf
Type de bâtiment : Culte
Année de livraison : 2018
Surface totale du bâtiment en m² : 1200
Lot bois n°1 concerné : Charpente bois
Volume lot bois n°1 - m³ : 109
Coût du lot bois n°1 - € HT : 200000
Lot bois n°2 concerné : Aucun
Coût du lot bois n°2 - € HT : 125000
Bois Français : non

Structure bois du bâtiment

Structure verticale :

ProduitEssenceProvenances (lieu de croissance du bois)Traitements de préservationMarque et certification produit
Panneau ossature bois

Structure horizontale :

ProduitEssenceProvenances (lieu de croissance du bois)Traitements de préservationMarque et certification produit
Non précisé

Charpente :

ProduitEssenceProvenances (lieu de croissance du bois)Traitements de préservationMarque et certification produit
Panneau massifÉpicéa commun

Revêtement bois extérieur

Revêtement minéral :

Produit
Pierre agraphée

Autre revêtement métallique :

Produit
Zinc

Menuiserie intérieure et extérieure

Isolation des murs

Epaisseur (mm) Isolation intérieure des murs : 120
Epaisseur (mm) Isolation extérieure des murs : 120

Isolation de la toiture

Epaisseur (mm) Isolation extérieure de la toiture : 200

Approche environnementale : Dans le cas du nouveau crématorium de Nancy-Vandoeuvre, la méthode de calcul de la RT2012 est d'emblée sans objet car l’établissement est classé V, soit « établissement de culte ». Ce type de bâtiment n'est pas soumis à la réglementation thermique 2012 en raison des spécificités liées à son utilisation (Hygrométrie, apports internes, grande variabilité de l’occupation,...) qui ne permettent pas de définir un scénario conventionnel. Il n’était donc pas possible de comparer les indicateurs de performances thermique avec la réglementation. Afin de vérifier le niveau de performance thermique du projet, nous avons eu recours à la Simulation Thermique Dynamique (STD), avec des allers-retours en phase APS-APD. La Simulation Thermique Dynamique permet d’appréhender et d’anticiper le comportement thermique du bâtiment dans le but de faire des économies d’énergies et d’optimiser le confort intérieur de la construction. La particularité du bâtiment réside dans l'importante production de chaleur liée au process de crémation. Cette énergie, récupérée, est utilisée pour le chauffage du bâtiment. Celui-ci est donc conçu avec un niveau d'isolation courant, basé sur les valeurs couramment mises en œuvre dans le cadre de construction soumises à la RT2012, permettant une affectation optimale des coûts de construction. Surinvestir dans l'enveloppe isolante du bâtiment n'était pas pertinent sur ce projet. L'approche par la modélisation du comportement du bâtiment a permis un travail fin sur l'enjeu principal du projet : la maîtrise du confort intérieur, avec la prise en compte des fortes fluctuations du taux d'occupation dans la partie publique (salles de cérémonies 50 et 200 places, salons) et l'objectif de ne pas avoir recours à la climatisation. La Simulation Thermique Dynamique permet, entre autres, de travailler sur le confort d'été. A partir des températures intérieures heure par heure, sont déterminés les taux d'inconfort de chaque pièce ou zone. Les résultats du projet sont comparés avec le référentiel H.Q.E. CERTIVEA (groupe du CSTB) et notamment la cible 8.3. « Création de conditions de confort hygrothermique d’été dans les locaux n’ayant pas recours à un système de refroidissement ». Ce référentiel définit l’inconfort d’été lorsque la température intérieure atteint ou dépasse 28°C. Pour notre zone climatique, le référentiel définit : La Simulation Thermique Dynamique a donc permis d'optimiser les propriétés du bâtiment en terme de composition des parois, surface vitrée, systèmes d'occultation et les débits de ventilation afin d'obtenir, pour chacune des deux salles de cérémonie, un niveau de confort PERFORMANT (salle 200 places) et TRES PERFORMANT (salle 50 places). Le système de ventilation des salles réalise un « free-cooling » qui permet de déstocker la nuit la chaleur accumulée la journée. L'objectif d'un Établissement Recevant du Public, avec des locaux de capacités importantes, conçus sans climatisation est ainsi atteint.

Descriptif technique : La charpente de la Grande salle de cérémonie est composée principalement d’éléments structurels en bois. La charpente de toiture se compose d’un panneau CLT conjugué à des poutre en bois lamellé collé 12/24 tous les 48cm (formant 1 vide – 1 plein), par l’intermédiaire de vis insérées par le dessus du panneau. Cet ensemble forme des poutres en « T » limitant la flèche sur 11 m de portée. La toiture repose sur une poutre LVL à inertie variable fixée sur les poteaux en lamellé collé et supportant également des chevrons 12/24 sur le même principe que la toiture, et venant s’insérer dans les espaces des poutres de toiture. Cette charpente supporte une étanchéité apparente et 2 verrières. La charpente de la petite salle de cérémonie formant une pointe de diamant excentrée est composée de 4 arêtiers en lamellé collé, créant les formes de pente et supportant des chevrons en bois massif. Un panneau CLT vient se placer sur ces chevrons créant un diaphragme indéformable. Ce panneau supporte une couverture Zinc à joint debout.

Chauffage au Bois : non
Données déclaratives

Acteurs du projet

Maître d'ouvrage (1)

Maître d'ouvrage - Services publics

SEM CRELOR (54)

Etudes et ingénieries (3)

Maître d'œuvre - Architecte mandataire

BAGARD & LURON architectes (54)

Bureau d'études acoustique

VENATHEC (54)

Bureau d'études structure bois

BARTHES BUREAU D'ETUDES BOIS (54)

Entreprises des lots bois (2)

Charpentier

MADDALON Frères (54)

Menuisier

France-Lanord & Bichaton (54)




* : L'entreprise n'est plus active
Retour à la liste