Habiter une maison

Maison aux Sanières

04850 Jausiers - Alpes de haute provence - Provence Alpes Côte d'Azur
Finaliste national

BÂTIMENT / LOGEMENT

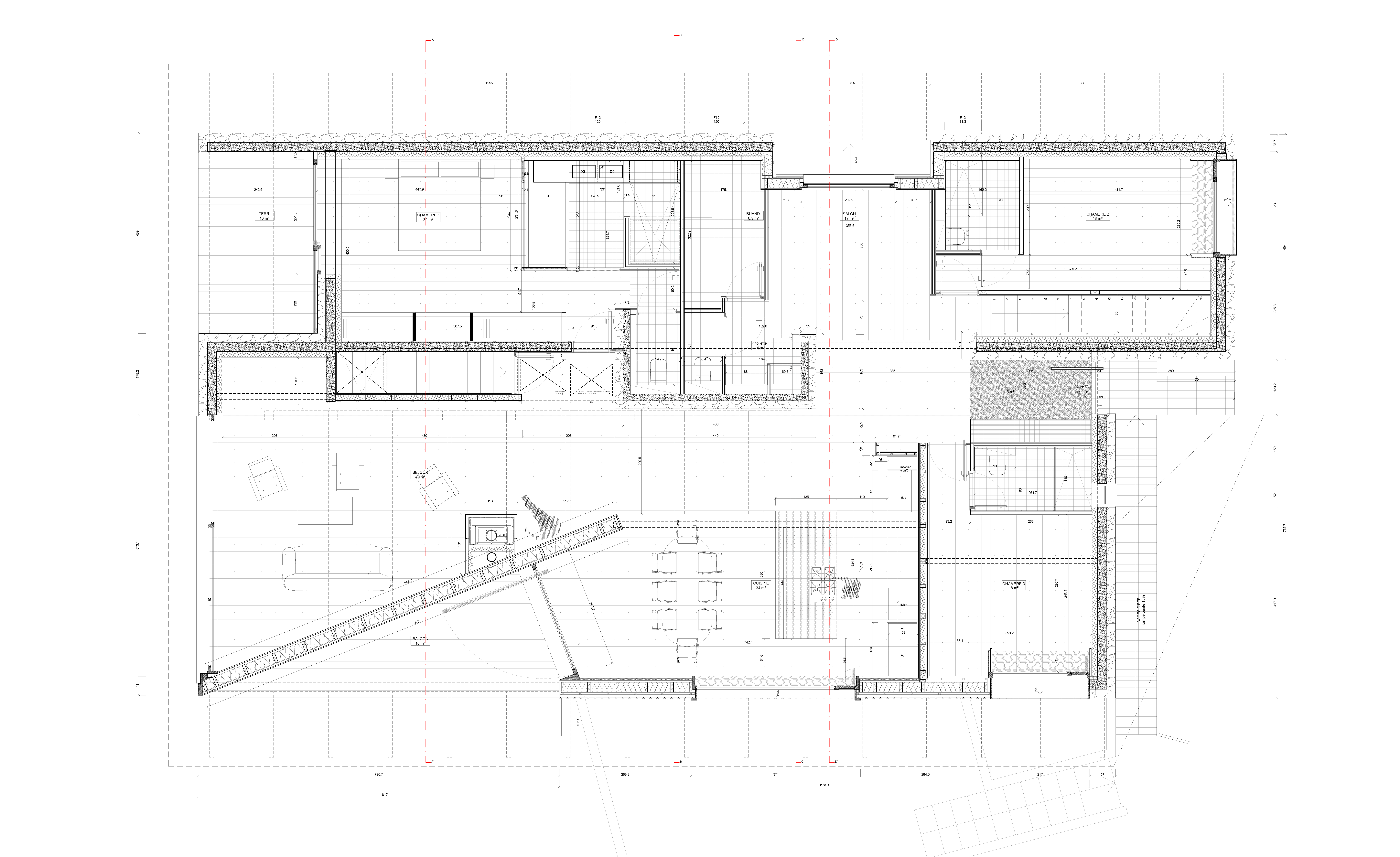
La maison est organisée en son intérieur par des cavités, des creux qui invitent la famille à profiter de l’environnement naturel extérieur toute l’année pour qu’il puisse ressentir de plus près les vents, le paysage gris de l’hiver, le soleil de la montagne et assister, protégé, au spectacle des saisons qui mutent et du temps qui change. Ces creux, qui sont au service d’une expérience presque extérieure, sont à la fois les occasions de la rencontre et d’une relation privilégiée entre la famille et l’environnement, entre le parcours intérieur et les vues plus larges que le site donne à voir.

Catégorie Bâtiment / logement
Numéro de projet6374
Date de candidature13/03/2021

Bâtiment / logement

Détail projet

Typologie de bâtiment : Neuf
Type de bâtiment : Logement individuel supérieur à 120 m²
Année de livraison : 2021
Surface totale du bâtiment en m² : 300
Coût total en € HT (hors foncier, hors VRD, hors honoraires) : 850000
Lot bois n°1 concerné : Charpente bois
Volume lot bois n°1 - m³ : 40
Coût du lot bois n°1 - € HT : 206000
Lot bois n°2 concerné : Menuiserie intérieure bois
Coût du lot bois n°2 - € HT : 150000
Bois Français : oui
Isolations biosourcées (préciser dans le descriptif technique) : oui
Finitions intéreures biosourcées ou géosourcées (préciser dans le descriptif technique) : non

Structure bois du bâtiment

Structure verticale :

ProduitEssenceProvenances (lieu de croissance du bois)Traitements de préservationMarque et certification produit
Panneau ossature boisEuropeTraitement Classe 3a (trempage)

Structure horizontale :

ProduitEssenceProvenances (lieu de croissance du bois)Traitements de préservationMarque et certification produit
Solivage traditionnelÉpicéa communEuropeTraitement Classe 2 (trempage)

Charpente :

ProduitEssenceProvenances (lieu de croissance du bois)Traitements de préservationMarque et certification produit
Charpente bois lamellé-colléDouglasProvence-Alpes-Côte-d'Azur

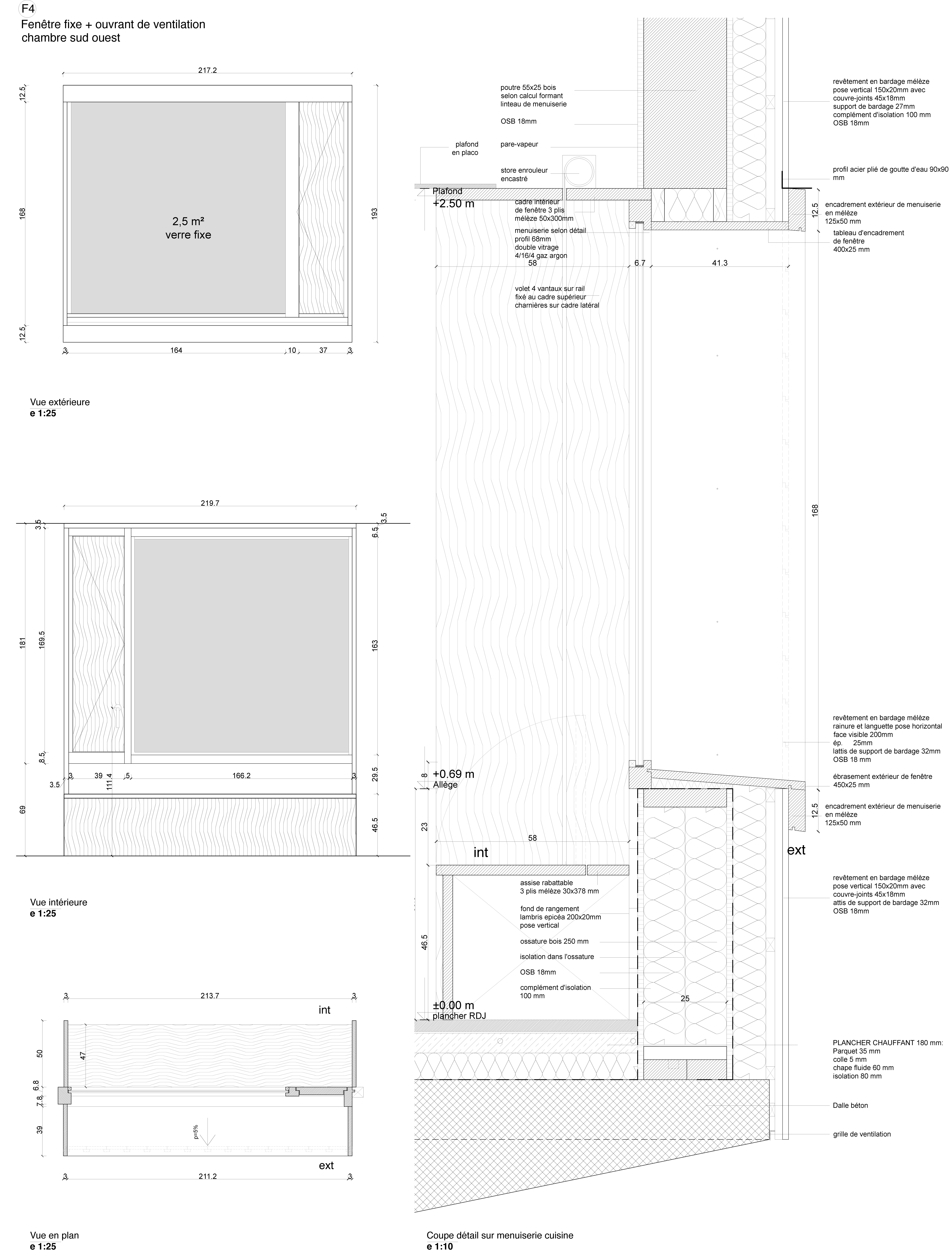
Revêtement bois extérieur

Revêtement bois ou dérivés :

ProduitEssenceProvenances (lieu de croissance du bois)Marque et certification produitFinitionTraitements de préservation
Bardeau boisMélèzeProvence-Alpes-Côte-d'AzurAucune finitionAucun traitement
Lame bois massifDouglasEuropeAucune finitionAucun traitement

Menuiserie intérieure et extérieure

Menuiserie extérieure :

ProduitEssenceProvenances (lieu de croissance du bois)Marque et certification produitFinition
Menuiserie boisMélèzeProvence-Alpes-Côte-d'AzurAutres

Isolation des murs

Epaisseur (mm) Isolation entre-montant des murs : 220

Isolation extérieure des murs :

Produit
Fibre de bois (Panneaux)

Isolation de la toiture

Epaisseur (mm) Isolation entre-montant de la toiture : 200
Epaisseur (mm) Isolation extérieure de la toiture : 100

Approche environnementale : La réinterprétation de traditions constructives et formelles; matières du contexte proche; rendre palpable le genius loci en produisant des ambiances intérieures graduées avec l’environnement extérieur dans un élan de s’approcher des éléments naturels pour produire une architecture vivante et lumineuse. La maison s’oriente pour suivre le parcours du soleil le long de la journée, des ventilations croisées assurées par des parties pleines ouvrantes et surfaces vitrées pour des apports solaires, un mur pare-vent constitue l’abri propice pour profiter de l’extérieur protégé des temps incléments.

Descriptif technique : Structure porteuse en ossature bois sur socle béton banché, revêtements extérieurs et menuiseries en mélèze du pays, revêtements intérieurs en Douglas bois issus de forêts gérées durablement, fourniture des pierres de carrière à moins de 5 km, plancher chauffant, ventilation et apports solaires par ensemble menuisé partie fixe vitrée+volet plein ouvrant, stores enrouleurs pour contrôle solaire, zonage de chauffe selon patrons d’utilisation définis par la famille, chaudière à granulés bois, usage de VMC double flux.

Chauffage au Bois : oui
Appareil de chauffage au bois : Poële/insert,Chaudière
Données déclaratives

Acteurs du projet

Maître d'ouvrage (1)

Maître d'ouvrage - Particuliers

particulier (x)

Etudes et ingénieries (1)

Maître d'œuvre - Architecte mandataire

AMASA (04)

Entreprises des lots bois (2)

Charpentier

ATELIER BOREALIS (05)

Menuisier

Atelier Vernucci (04)




* : L'entreprise n'est plus active
Retour à la liste