Apprendre – se divertir

Périscolaire et logements en cœur de village

88600 Gugnécourt - Vosges - Grand Est

BÂTIMENT / LOGEMENT

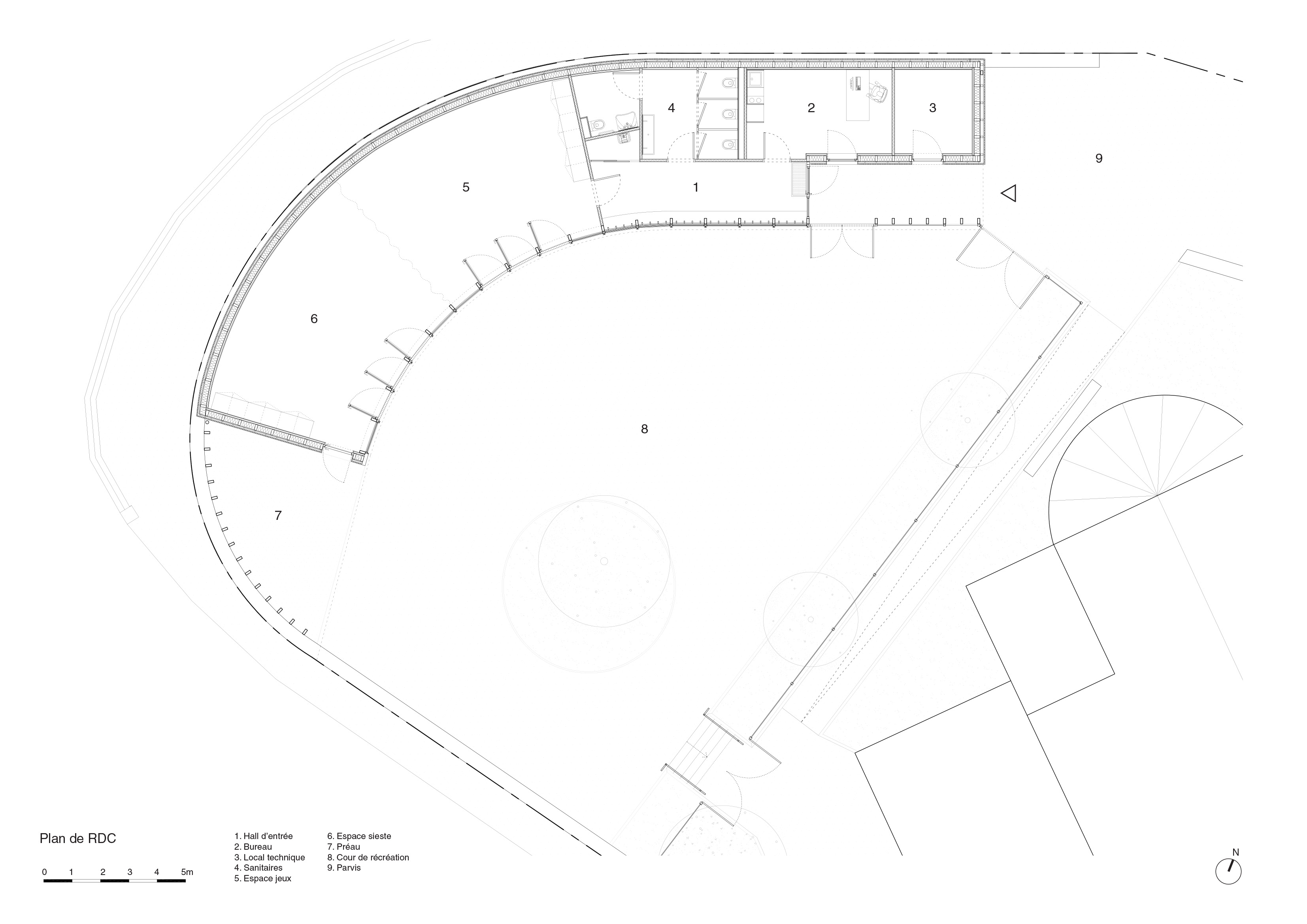
Aménagement du cœur de village à Gugnecourt. Un programme qui combine plusieurs besoins : - un accueil périscolaire et sa cour - 3 studios pour les étudiants du CFR (futurs agriculteurs) - mise aux normes d'accessibilité pour l'église et la petite salle des fêtes - 3 garages et 5 places de stationnement L'occasion de redessiner ce cœur, le requalifier, le « réparer » en partie suite aux disparitions progressives des vieilles fermes qui tombaient en ruine.

Catégorie Bâtiment / logement
Numéro de projet6411
Adresse du projet rue de l'Eglise
88600 Gugnécourt
Date de candidature15/03/2021
Récompense2ème prix

Bâtiment / logement

Détail projet

Typologie de bâtiment : Neuf
Type de bâtiment : Enseignement ou éducation
Année de livraison : 2020
Surface totale du bâtiment en m² : 315
Coût total en € HT (hors foncier, hors VRD, hors honoraires) : 497000
Lot bois n°1 concerné : Charpente bois
Coût du lot bois n°1 - € HT : 122000
Lot bois n°2 concerné : Menuiserie intérieure bois
Coût du lot bois n°2 - € HT : 67000
Bois Français : oui
Isolations biosourcées (préciser dans le descriptif technique) : non
Finitions intéreures biosourcées ou géosourcées (préciser dans le descriptif technique) : non

Structure bois du bâtiment

Structure verticale :

ProduitEssenceProvenances (lieu de croissance du bois)Traitements de préservationMarque et certification produit
Panneau ossature boisÉpicéa communGrand-EstTraitement Classe 2 (trempage)

Structure horizontale :

ProduitEssenceProvenances (lieu de croissance du bois)Traitements de préservationMarque et certification produit
Solivage traditionnelÉpicéa communGrand-EstTraitement Classe 2 (trempage)

Charpente :

ProduitEssenceProvenances (lieu de croissance du bois)Traitements de préservationMarque et certification produit
Charpente traditionnelleÉpicéa communGrand-EstTraitement Classe 2 (trempage)

Revêtement bois extérieur

Revêtement bois ou dérivés :

ProduitEssenceProvenances (lieu de croissance du bois)Marque et certification produitFinitionTraitements de préservation
Lame bois massifDouglasGrand-EstAucune finitionAucun traitement

Menuiserie intérieure et extérieure

Menuiserie extérieure :

ProduitEssenceProvenances (lieu de croissance du bois)Marque et certification produitFinition
Menuiserie boisPin sylvestreFranceLasure

Isolation des murs

Isolation intérieure des murs :

Produit
Laine de roche
Epaisseur (mm) Isolation intérieure des murs : 60

Isolation entre-montant des murs :

Produit
Laine de roche
Epaisseur (mm) Isolation entre-montant des murs : 200

Isolation de la toiture

Epaisseur (mm) Isolation extérieure de la toiture : 200

Approche environnementale : Travail pragmatique sur les ressources géosourcées : Les bardages et structures en bois de douglas proviennent de la scierie Mandray à Taintrux (88) et la scierie Strabach à La Bourgonce (88) Les couvertines du muret sont en grès rose de la carrière Sebeler à Bleurville (88) Les moellons du muret sont récupérés de diverses démolitions. Et au milieu, un beau tilleul planté avec la participation des enfants, le jour de la sainte Catherine (le jour où tout bois prend racine).

Descriptif technique : Le fil rouge est le muret en pierre. Nous l’avons prolongé pour ceinturer l’ensemble de l’îlot. Le bâtiment périscolaire vient se blottir dans le creux de l’anse pour libérer un grand vide central : la cour. Cette cour protégée, est essentielle pour faire le lien entre le périscolaire, la salle des fêtes et l’église. Cet ensemble pourra répondre à de multiples usages pour la collectivité. Une telle restructuration est déterminante pour les 238 habitants du village. Les principes de mutualisation et polyvalence sont essentiels pour favoriser les usages et valoriser au mieux l’investissement.

Chauffage au Bois : non
Données déclaratives

Acteurs du projet

Maître d'ouvrage (1)

Maître d'ouvrage - État ou collectivité (locale et territ)

Commune de Gugnécourt (88)

Etudes et ingénieries (3)

Maître d'œuvre - Architecte mandataire

Christophe AUBERTIN - Studiolada Architectes (54)

Maître d’œuvre - Architecte collaborateur

Studiolada Architectes (54)

Bureau d'études structure bois

STÉ INGÉNIERIE GÉNÉRALE MARCHAL (SIGMA) (88)

Entreprises des lots bois (2)

Charpentier

SERTELET YVES (88)

Menuisier

MENUISERIE VAXELAIRE (88)

Fournisseurs du bois (1)

Scierie

SCIERIE MANDRAY (88)




* : L'entreprise n'est plus active
Retour à la liste