Habiter une maison

Maison Bioclimatique | Solaire Home Série XL

44780 Missillac - Loire Atlantique - Pays de la Loire

BÂTIMENT / LOGEMENT

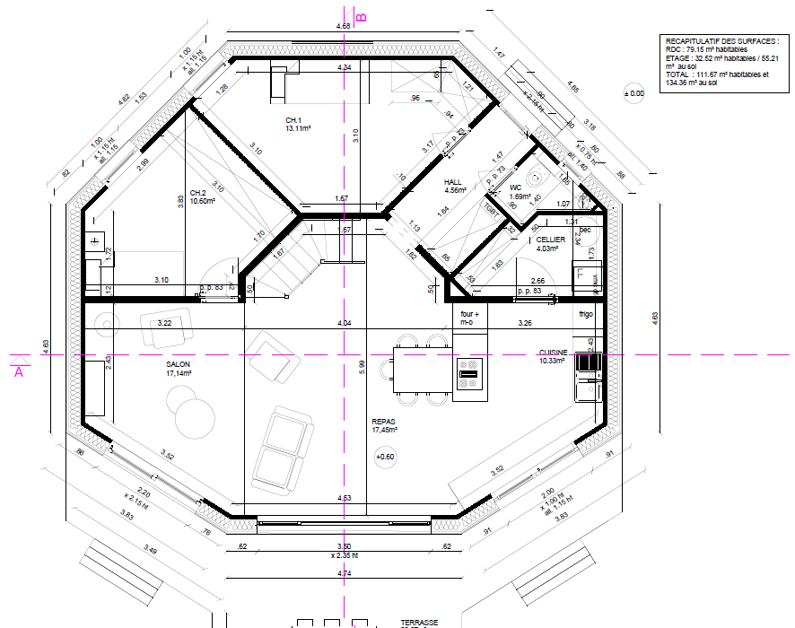
Les maisons "Solaire Home" sont des maisons Bioclimatiques par leurs formes "Octogonale" et leurs positions sur le terrain, orientées au sud entre autres ( deux procédés à l'origine du Feng Shui). A ce sujet, la DDTM écrit par exemple que "notre nombre de pans de toiture participe à la limitation de gaz à effet de serre …", ce qui ouvre parfois des dérogations aux règlements d'urbanisme non adaptés. Les plots bétons (moins consommateurs de matière qu'une dalle) permettent de limiter le volume terrassement sur le projet, d'empêcher les remontées d'humidité entre autres.

Catégorie Bâtiment / logement
Numéro de projet6599
Date de candidature19/01/2022

Bâtiment / logement

Détail projet

Typologie de bâtiment : Neuf
Type de bâtiment : Logement individuel inférieur 120 m²
Année de livraison : 2022
Surface totale du bâtiment en m² : 112
Coût total en € HT (hors foncier, hors VRD, hors honoraires) : 160000
Bois Français : oui
Isolations biosourcées (préciser dans le descriptif technique) : oui
Matériaux géosourcés (préciser dans le descriptif technique) : non
Finitions intéreures biosourcées ou géosourcées (préciser dans le descriptif technique) : oui

Structure bois du bâtiment

Structure verticale :

ProduitEssenceProvenances (lieu de croissance du bois)Traitements de préservationMarque et certification produit
Poteau poutreÉpicéa communBourgogne-Franche-ComtéTraitement Classe 2 (trempage)

Structure horizontale :

ProduitEssenceProvenances (lieu de croissance du bois)Traitements de préservationMarque et certification produit
Poutre en I ou mixteDouglasBourgogne-Franche-ComtéTraitement Classe 2 (trempage)

Charpente :

ProduitEssenceProvenances (lieu de croissance du bois)Traitements de préservationMarque et certification produit
Charpente bois lamellé-colléDouglasFranceTraitement Classe 2 (trempage)

Revêtement bois extérieur

Revêtement bois ou dérivés :

ProduitEssenceProvenances (lieu de croissance du bois)Marque et certification produitFinitionTraitements de préservation
Lame bois massifDouglasFranceAucune finitionAucun traitement

Menuiserie intérieure et extérieure

Menuiserie extérieure :

ProduitEssenceProvenances (lieu de croissance du bois)Marque et certification produitFinition
Menuiserie boisPin maritimeEuropePeinture
Menuiserie boisÉpicéa communFrancePeinture

Isolation des murs

Isolation intérieure des murs :

Produit
Epaisseur (mm) Isolation intérieure des murs : 250

Isolation de la toiture

Epaisseur (mm) Isolation entre-montant de la toiture : 300

Approche environnementale : Nos maisons ont été conçues pour fortement diminuer les besoins en chauffage, voir les supprimer. Le confort thermique "Low-tech" est atteint avec des matériaux naturels, sains et chauds! Pour information, le mur de briques de terre crue (qui apporte l'inertie souvent manquante des maisons en bois) pèse environ 6 tonnes. Volume, luminosité, hygrométrie, acoustique participent au chapitre "Santé et Bien-être" des modèles "Solaire Home". Phyto-épuration, réserve d'eau, panneaux solaires guident cette construction sur "le chemin de l'autonomie".

Chauffage au Bois : oui
Appareil de chauffage au bois : Poële/insert
Données déclaratives

Acteurs du projet

Maître d'ouvrage (1)

Maître d'ouvrage - Particuliers

particulier (x)

Etudes et ingénieries (1)

Maître d'œuvre - Architecte mandataire

Solaireau Maitrise D'Oeuvre (44)

Entreprises des lots bois (1)

Charpentier

Atelier Isac (44)




* : L'entreprise n'est plus active
Retour à la liste