Réhabiliter un logement
Réhabiliter un logement

MAISON GRAUER

13320 Bouc-Bel-Air - Bouches du rhône - Provence Alpes Côte d'Azur

BÂTIMENT / LOGEMENT

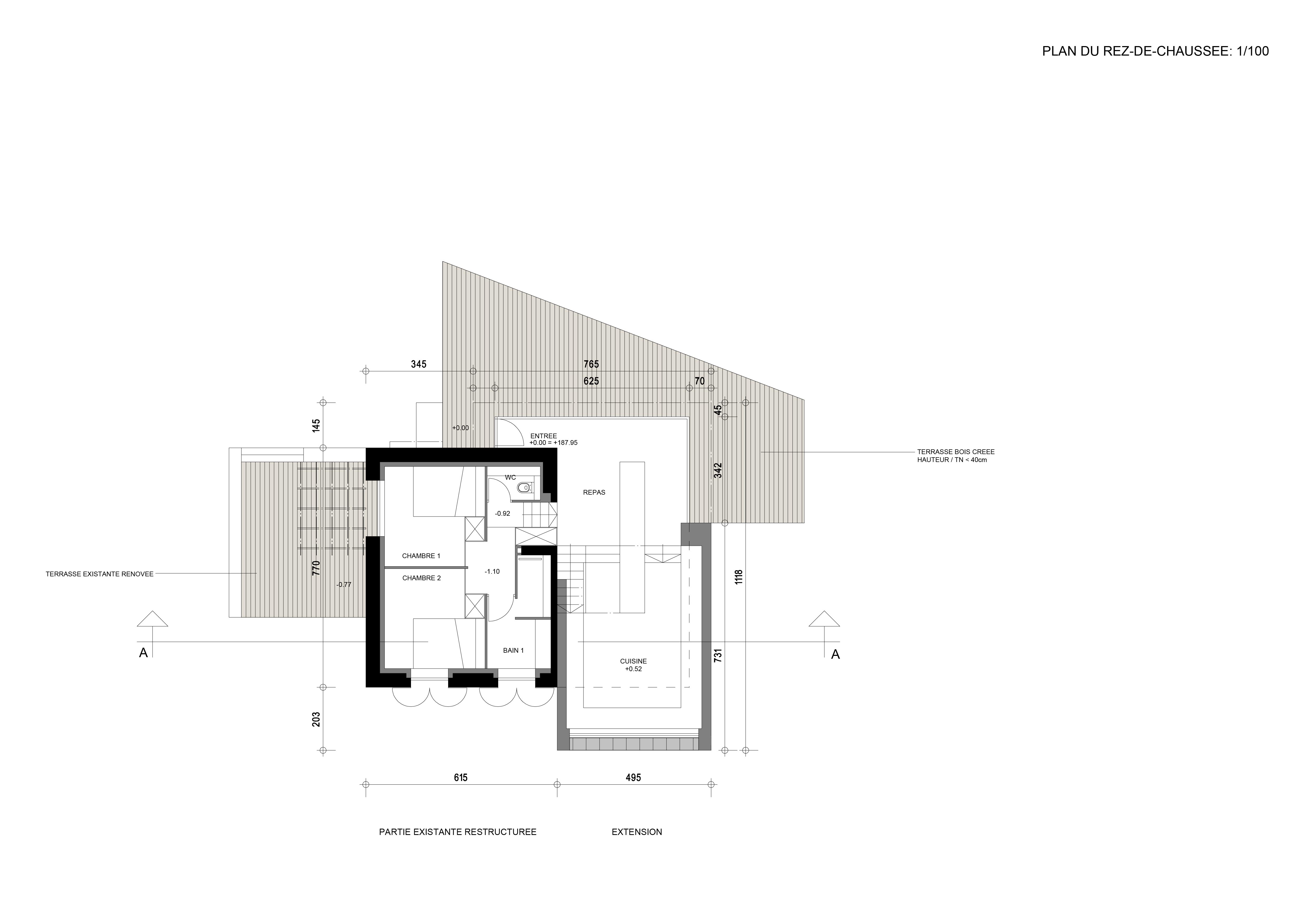
Projet de restructuration et agrandissement d'une maison des années 1930 située en lisière de zone naturelle protégée, en contrebas du centre ancien de la commune de Bouc-Bel-Air dans les Bouches-du-Rhône. Objectif: restructurer et agrandir la maison existante afin d'y loger une famille de 4 personnes / construction d'une piscine et réorganisation générale des abords. Particularité: le Maître d'Ouvrage est aussi l'entrepreneur. Menuisier/charpentier de métier, ses compétences hors du commun lui ont permis de réaliser ce chantier de A à Z, en auto-construction, performance remarquable!

Catégorie Bâtiment / logement
Numéro de projet6681
Date de candidature03/02/2022

Bâtiment / logement

Détail projet

Typologie de bâtiment : Extension / surélévation,Rénovation / Réhabilitation
Type de bâtiment : Logement individuel supérieur à 120 m²
Année de livraison : 2021
Surface totale du bâtiment en m² : 162
Dont extension / surélévation en m² : 52
Coût total en € HT (hors foncier, hors VRD, hors honoraires) : 450000
Bois Français : oui
Isolations biosourcées (préciser dans le descriptif technique) : oui
Finitions intéreures biosourcées ou géosourcées (préciser dans le descriptif technique) : non

Structure bois du bâtiment

Structure verticale :

ProduitEssenceProvenances (lieu de croissance du bois)Traitements de préservationMarque et certification produit
Panneau ossature boisDouglasFranceAucun traitement

Structure horizontale :

ProduitEssenceProvenances (lieu de croissance du bois)Traitements de préservationMarque et certification produit
Poutre en I ou mixteDouglasFranceAucun traitement

Charpente :

ProduitEssenceProvenances (lieu de croissance du bois)Traitements de préservationMarque et certification produit
Charpente bois lamellé-colléDouglasFranceAucun traitement

Revêtement bois extérieur

Autre revêtement métallique :

Produit
Zinc

Menuiserie intérieure et extérieure

Menuiserie extérieure :

ProduitEssenceProvenances (lieu de croissance du bois)Marque et certification produitFinition
Brise soleil boisCèdreAmériqueAucune finition

Isolation des murs

Isolation intérieure des murs :

Produit
Fibre de bois (Panneaux)
Epaisseur (mm) Isolation intérieure des murs : 100

Isolation entre-montant des murs :

Produit
Fibre de bois (Panneaux)
Epaisseur (mm) Isolation entre-montant des murs : 150

Isolation de la toiture

Epaisseur (mm) Isolation entre-montant de la toiture : 300

Approche environnementale : Chantier réalisé en auto-construction par le Maître d'Ouvrage lui-même en utilisant les ressources (atelier) dont il dispose en tant qu'entrepreneur local (entreprise de menuiserie & construction bois). Valorisation du bâti existant; Isolation renforcée en matériau biosourcé (fibre de bois); Optimisation des apports solaire; chauffage par poêle à bois: structure de l'extension 100% bois (ossature de Pin de Douglas français); Menuiseries extérieures en acier fabriquées par le Maître d'Ouvrage; finitions intérieures utilisant majoritairement le bois sous différent aspect (parquet, placards...).

Descriptif technique : Extension: - Murs à ossature bois (Pin de Douglas français); isolation fibre de bois; parement zinc quartz à joints debout. - Planchers bois: LC de Pin de Douglas français, solivage poutre I, isolation fibre de bois; parquet chêne massif en finition. - Charpente/couverture: LC de Pin de Douglas français, solivage poutre I, isolation fibre de bois; couverture zinc quartz à joints debout. - Menuiseries extérieures acier thermolaqué.

Performance du bâtiment (Cep en kWhep/m²/an) : 30
Chauffage au Bois : oui
Appareil de chauffage au bois : Poële/insert
Données déclaratives

Acteurs du projet

Maître d'ouvrage (1)

Maître d'ouvrage - Particuliers

particulier (x)

Entreprises des lots bois (1)

Constructeur bois

G Bois Construction (13)




* : L'entreprise n'est plus active
Retour à la liste