Réhabiliter un logement
Réhabiliter un logement

Réhabilitation EnerPhit d'un séchoir à tabac en logement

67118 GEISPOLSHEIM - Bas Rhin - Grand Est

BÂTIMENT / LOGEMENT

Niché au cœur du village de Geispolsheim, posé au milieu des jardins à moins de 600 m d'un monument historique, ce séchoir à tabac réhabilité en logement passif est un havre de paix. Les objectifs principaux du projet étaient de transformer cet ancien séchoir en logement individuel confortable, sain et passif, sans impacter l'environnement dans lequel il était installé. Le séchoir réhabilité n'a quasiment pas changé d'aspect extérieur, le bardage a été conservé, seules les découpes pour les menuiseries ont été réalisées.

Catégorie Bâtiment / logement
Numéro de projet6683
Date de candidature03/02/2022

Bâtiment / logement

Détail projet

Typologie de bâtiment : Rénovation / Réhabilitation
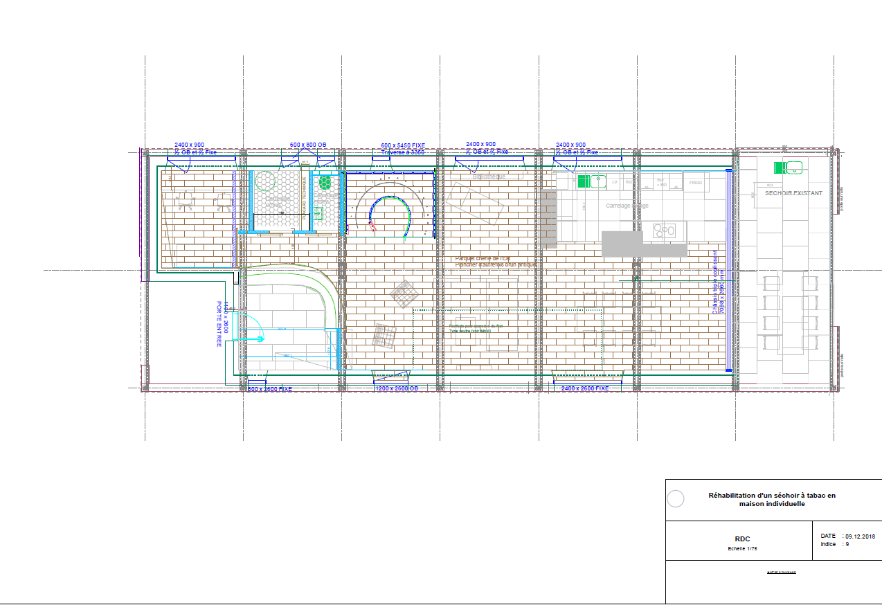
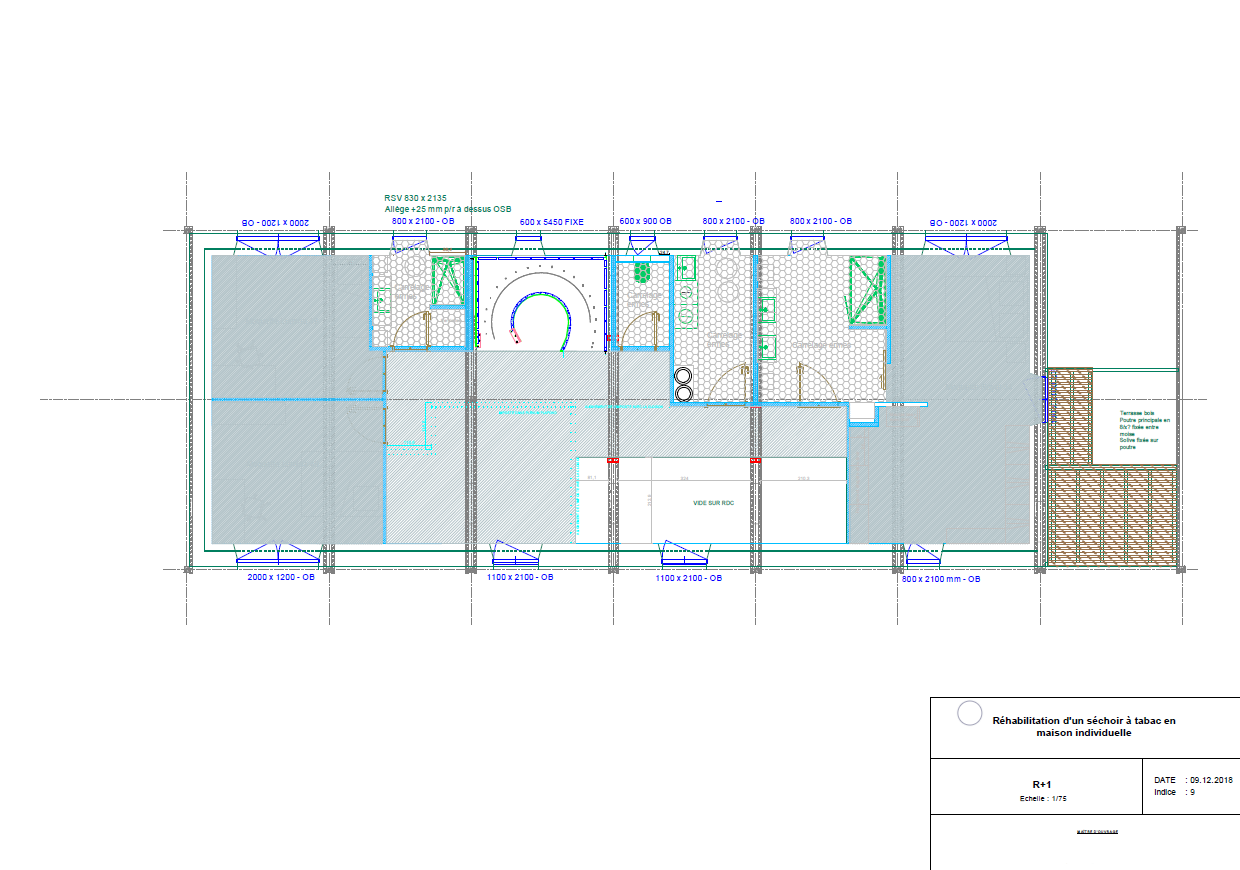
Type de bâtiment : Logement individuel supérieur à 120 m²
Année de livraison : 2019
Surface totale du bâtiment en m² : 230
Coût total en € HT (hors foncier, hors VRD, hors honoraires) : 380000
Lot bois n°1 concerné : ossature bois
Bois Français : non
Isolations biosourcées (préciser dans le descriptif technique) : oui
Matériaux géosourcés (préciser dans le descriptif technique) : oui
Finitions intéreures biosourcées ou géosourcées (préciser dans le descriptif technique) : non

Structure bois du bâtiment

Structure verticale :

ProduitEssenceProvenances (lieu de croissance du bois)Traitements de préservationMarque et certification produit
Panneau ossature bois

Structure horizontale :

ProduitEssenceProvenances (lieu de croissance du bois)Traitements de préservationMarque et certification produit
Dalle bois

Charpente :

ProduitEssenceProvenances (lieu de croissance du bois)Traitements de préservationMarque et certification produit
Charpente bois lamellé-collé

Revêtement bois extérieur

Revêtement bois ou dérivés :

ProduitEssenceProvenances (lieu de croissance du bois)Marque et certification produitFinitionTraitements de préservation
Lame bois massif

Menuiserie intérieure et extérieure

Isolation des murs

Isolation intérieure des murs :

Produit
Laine de bois souple
Epaisseur (mm) Isolation intérieure des murs : 120

Isolation entre-montant des murs :

Produit
Epaisseur (mm) Isolation entre-montant des murs : 200

Isolation extérieure des murs :

Produit
Fibre de bois (Panneaux)
Epaisseur (mm) Isolation extérieure des murs : 60

Isolation de la toiture

Epaisseur (mm) Isolation extérieure de la toiture : 380

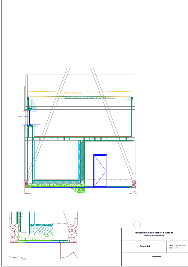
Approche environnementale : Une approche bioclimatique est privilégiée : une enveloppe performante et des orientations favorables. Le projet présente une étanchéité à l'air anticipée et très performante pour une réhabilitation. Les matériels et matériaux employés sont principalement biosourcés et apportent un confort de vie indéniable. La limite des surchauffes estivales est obtenue par inertie, via le free-cooling mécanique et le positionnement permettant une surventilation manuelle. Le réemploi d'anciennes poutres pour le parquet, ainsi que de la charpente existante, a limité l'empreinte énergétique du projet.

Descriptif technique : Spécificités Techniques : Murs extérieurs construits "à l'envers", méthode spécifiquement développée pour le chantier, pour ne pas démonter le bardage existant et dénaturer le moins possible le projet. Utilisation de la charpente existante. Menuiseries Triple Vitrage Alu au rez-de-chaussée, PVC à l'étage. Utilisation possible de l'eau du puits pour les WC. Free-cooling avec registres motorisés et sur-débit de ventilation. Gestion KNX Dali des luminaires. Ventilation mécanique Double Flux avec batteries électriques terminales. Insert avec prise d'air extérieure. ECS par ballon thermodynamique.

Performance du bâtiment (Cep en kWhep/m²/an) : 42
Chauffage au Bois : oui
Appareil de chauffage au bois : Poële/insert
Certifications, labels et marques bâtiment : Enerphit
Données déclaratives

Acteurs du projet

Maître d'ouvrage (1)

Maître d'ouvrage - Particuliers

particulier (x)

Etudes et ingénieries (6)

Maître d'œuvre - Architecte mandataire

INGEDAIR (67)

Maître d’œuvre - Architecte associé

Jérôme Vetter & Associés (67)

Bureau d'études structure bois

BOIS2BOO (67)

Bureau d'études environnement

INGEDAIR (67)

Bureau d'études thermique

INGEDAIR (67)

Economiste

INGEDEC (67)

Entreprises des lots bois (1)

Charpentier

BOIS2BOO (67)




* : L'entreprise n'est plus active
Retour à la liste