Habiter ensemble
Habiter ensemble

Maison partagée "Hikari"

92330 Sceaux - Hauts de Seine - Ile de France

BÂTIMENT / LOGEMENT

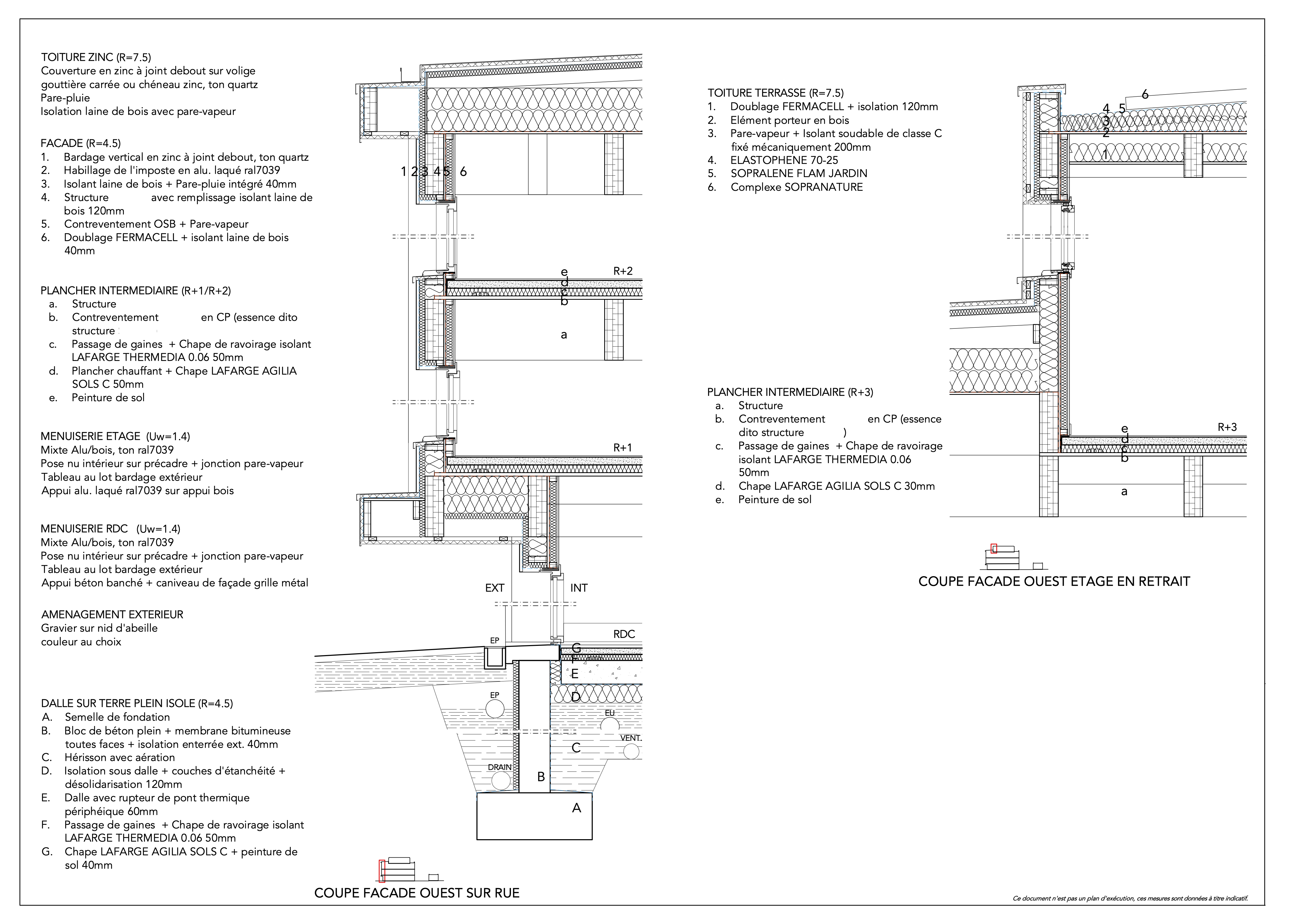
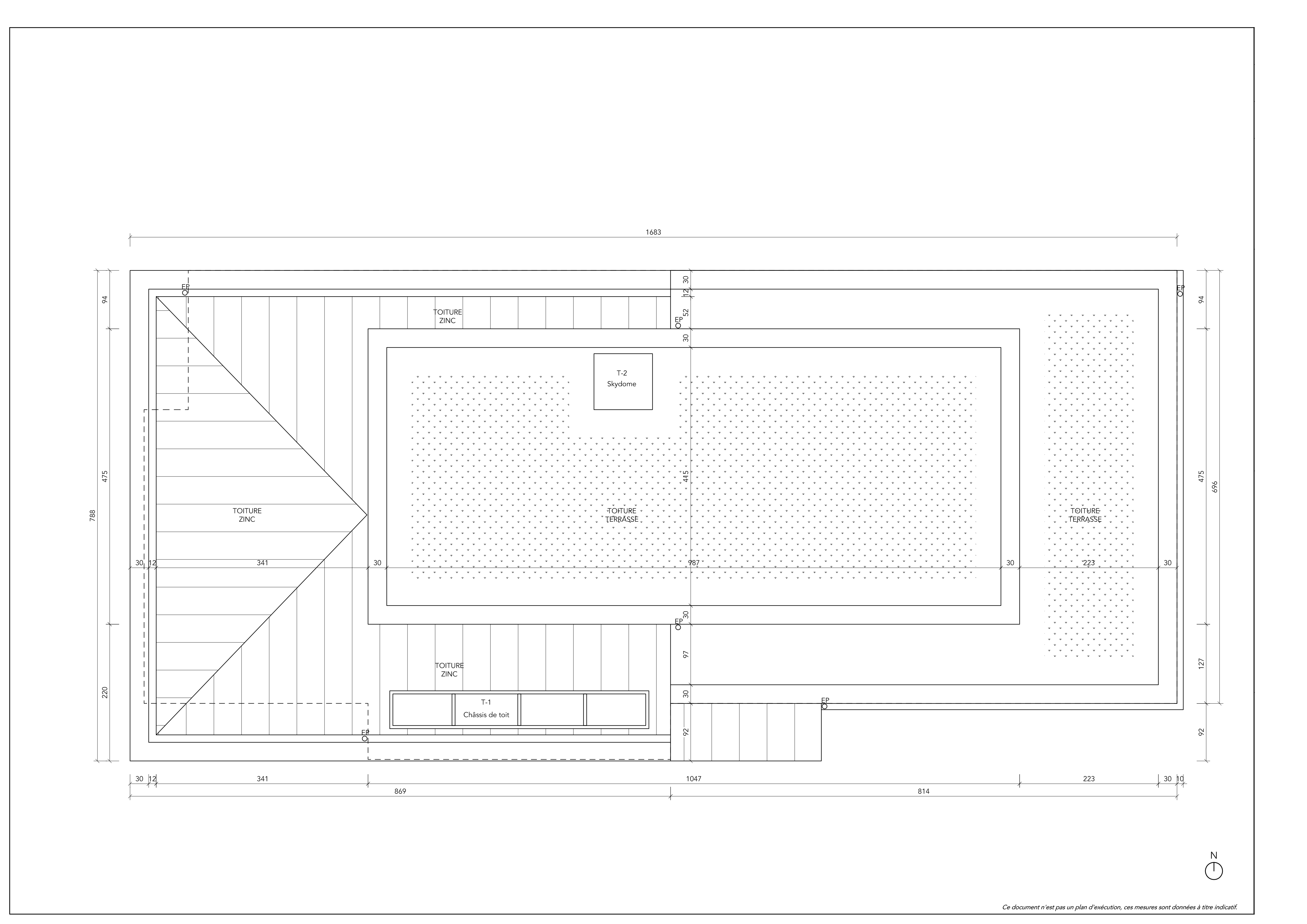
À l’extérieur, les expositions et le climat local dessinent les façades, sur la rue du zinc prépatiné pour recevoir les vents dominants au sud-ouest, un débords de toiture pour ombrager les baies au sud, une toiture végétalisée pour améliorer le confort d’été et un bardage en Douglas naturel coté jardin. Les éléments constructifs en bois sont mis en valeur pour créer une ambiance chaleureuse: menuiseries bois, escalier en madrier massif, poutraison et planchers hauts en bois. Niveaux indépendants distribués par une cage d’escalier coupe feu permettant l’évolution des usages au long terme.

Catégorie Bâtiment / logement
Numéro de projet6770
Adresse du projet 3 Ter Avenue De La République
92330 Sceaux
Date de candidature14/02/2022

Bâtiment / logement

Détail projet

Typologie de bâtiment : Neuf
Type de bâtiment : Logement groupé
Année de livraison : 2020
Surface totale du bâtiment en m² : 300
Coût total en € HT (hors foncier, hors VRD, hors honoraires) : 601369
Volume lot bois n°1 - m³ : 44
Coût du lot bois n°1 - € HT : 424958
Bois Français : non
Isolations biosourcées (préciser dans le descriptif technique) : oui
Matériaux géosourcés (préciser dans le descriptif technique) : non
Finitions intéreures biosourcées ou géosourcées (préciser dans le descriptif technique) : oui

Structure bois du bâtiment

Structure verticale :

ProduitEssenceProvenances (lieu de croissance du bois)Traitements de préservationMarque et certification produit
Poteau poutreÉpicéa communEuropeTraitement Classe 2 (trempage)

Structure horizontale :

ProduitEssenceProvenances (lieu de croissance du bois)Traitements de préservationMarque et certification produit
Plancher mixte bois-bétonÉpicéa communEuropeTraitement Classe 2 (trempage)

Charpente :

ProduitEssenceProvenances (lieu de croissance du bois)Traitements de préservationMarque et certification produit
Charpente bois lamellé-colléÉpicéa communEuropeTraitement Classe 2 (trempage)

Revêtement bois extérieur

Revêtement bois ou dérivés :

ProduitEssenceProvenances (lieu de croissance du bois)Marque et certification produitFinitionTraitements de préservation
Lame bois massifDouglasFrancepré-griséTraitement Classe 3b (autoclave)

Autre revêtement métallique :

Produit
Zinc

Menuiserie intérieure et extérieure

Menuiserie extérieure :

ProduitEssenceProvenances (lieu de croissance du bois)Marque et certification produitFinition
Menuiserie mixtePin maritimeFranceLasure

Isolation des murs

Isolation intérieure des murs :

Produit
Fibre de bois (Panneaux)
Epaisseur (mm) Isolation intérieure des murs : 45

Isolation entre-montant des murs :

Produit
Laine de bois souple
Epaisseur (mm) Isolation entre-montant des murs : 120

Isolation extérieure des murs :

Produit
Fibre de bois (Panneaux)
Epaisseur (mm) Isolation extérieure des murs : 45

Isolation de la toiture

Epaisseur (mm) Isolation intérieure de la toiture : 330
Epaisseur (mm) Isolation entre-montant de la toiture : 120

Approche environnementale : Une superstructure est réalisée en quasi totalité avec des matériaux biosourcés et/ou recyclables. Une gestion des eaux pluviales avec 100% des surfaces extérieures libres perméables et 100% des eaux en toiture infiltrées sur la parcelle. Une densification urbaine contrôlée dans un quartier résidentiel du centre-ville de Sceaux (92), la maison propose un habitat de densité intermédiaire avec deux logements, un local d’activité professionnel et des espaces partagés pour le vivre ensemble.

Descriptif technique : Descriptif technique: Structure verticale + Système poteau-poutre en bois LC Doublage intérieur en Fermacel (12mm) Frein-vapeur (Durelis Vapourblock 12mm) Isolation laine de bois souple + rigide Ventilation extérieure des façade par lattage et contre-lattage Bardage bois (Douglas Opus autoclave gris) Bardage casette zinc prépatiné Structure horizontale Toiture zinc prépatiné Terrasse EPDM et bacs précultivés Chape anhydrite avec plancher chauffant ENR Chape de ravoirage avec réseaux Plancher contreplaqué construction Plafond suspendu isolé (partiel) PEFC (Gestion forestière durable) FSC (Gestion forestière responsable) NF Portes résistant au feu en bois NF Vantaux de portes planes NF Contreplaqués (CTBX - CTBC) NF Fenêtres Bois et Portes Extérieures - Acotherm Marquage CE

Performance du bâtiment (Cep en kWhep/m²/an) : 39
Chauffage au Bois : non
Données déclaratives

Acteurs du projet

Maître d'ouvrage (1)

Maître d'ouvrage - Particuliers

particulier (x)

Etudes et ingénieries (3)

Maître d'œuvre - Architecte mandataire

TEISSEIRE Ken (92)

Maître d’œuvre - Architecte associé

Teisseire Hélène architecte (92)

Bureau d'études thermique

Keeplanet (67)




* : L'entreprise n'est plus active
Retour à la liste